Ведомость отправочных элементов и два листа на 1 сборку
Ведомость отправочных элементов и два листа на 1 сборку
Печально, но если два листа на сборку, ведомость второй лист не видит...
- Таран Д. А.
- Администратор
- Сообщения: 2877
- Регистрация: 30 ноя 2011, 18:41
- Откуда: г. Москва
- Контактная информация:
Re: Ведомость отправочных элементов и два листа на 1 сборку
А что создать дубль чертежа не судьба?alstey писал(а):Печально, но если два листа на сборку, ведомость второй лист не видит...
Администратор Topengineer.ru 8 (495) 215-07-79 (офис) ; 8 (925) 755-9318 (сот.); Skype wildomen ; http://vk.com/tekla_structures
Разработка КМД | Разработка КМ | Разработка КЖ | Обучение Tekla Structures | Купить Tekla Structures
Разработка КМД | Разработка КМ | Разработка КЖ | Обучение Tekla Structures | Купить Tekla Structures
Re: Ведомость отправочных элементов и два листа на 1 сборку
Ты имеешь ввиду два листа с одним и тем же номером листа?Таран Д. А. писал(а):А что создать дубль чертежа не судьба?
- Таран Д. А.
- Администратор
- Сообщения: 2877
- Регистрация: 30 ноя 2011, 18:41
- Откуда: г. Москва
- Контактная информация:
Re: Ведомость отправочных элементов и два листа на 1 сборку
Зачем с одинаковым то?alstey писал(а):Ты имеешь ввиду два листа с одним и тем же номером листа?Таран Д. А. писал(а):А что создать дубль чертежа не судьба?
Администратор Topengineer.ru 8 (495) 215-07-79 (офис) ; 8 (925) 755-9318 (сот.); Skype wildomen ; http://vk.com/tekla_structures
Разработка КМД | Разработка КМ | Разработка КЖ | Обучение Tekla Structures | Купить Tekla Structures
Разработка КМД | Разработка КМ | Разработка КЖ | Обучение Tekla Structures | Купить Tekla Structures
Re: Ведомость отправочных элементов и два листа на 1 сборку
Создал два чертежа на одну сборку (на одном не помещалась). В результате было два чертежа с метками п.4 и п.4-1. В ведомость отправочных элементов попадает только п.4. Как тут быть?
- Таран Д. А.
- Администратор
- Сообщения: 2877
- Регистрация: 30 ноя 2011, 18:41
- Откуда: г. Москва
- Контактная информация:
Re: Ведомость отправочных элементов и два листа на 1 сборку
Надо с шаблоном колдовать. Раньше такой функции не было не тестировали на ней да и не применял честно говоря ни разу только КМД из КМ делал.alstey писал(а):Создал два чертежа на одну сборку (на одном не помещалась). В результате было два чертежа с метками п.4 и п.4-1. В ведомость отправочных элементов попадает только п.4. Как тут быть?
Администратор Topengineer.ru 8 (495) 215-07-79 (офис) ; 8 (925) 755-9318 (сот.); Skype wildomen ; http://vk.com/tekla_structures
Разработка КМД | Разработка КМ | Разработка КЖ | Обучение Tekla Structures | Купить Tekla Structures
Разработка КМД | Разработка КМ | Разработка КЖ | Обучение Tekla Structures | Купить Tekla Structures
Re: Ведомость отправочных элементов и два листа на 1 сборку
Видимо, в этой ситуации нужно все-таки уходить от двух листов на сборку. В моем случае получился бы А0, а это то еще неудобство...Таран Д. А. писал(а):Надо с шаблоном колдовать. Раньше такой функции не было не тестировали на ней да и не применял честно говоря ни разу только КМД из КМ делал.
- Таран Д. А.
- Администратор
- Сообщения: 2877
- Регистрация: 30 ноя 2011, 18:41
- Откуда: г. Москва
- Контактная информация:
Re: Ведомость отправочных элементов и два листа на 1 сборку
Что у тебя там за конструкции такие?alstey писал(а):Видимо, в этой ситуации нужно все-таки уходить от двух листов на сборку. В моем случае получился бы А0, а это то еще неудобство...Таран Д. А. писал(а):Надо с шаблоном колдовать. Раньше такой функции не было не тестировали на ней да и не применял честно говоря ни разу только КМД из КМ делал.
Администратор Topengineer.ru 8 (495) 215-07-79 (офис) ; 8 (925) 755-9318 (сот.); Skype wildomen ; http://vk.com/tekla_structures
Разработка КМД | Разработка КМ | Разработка КЖ | Обучение Tekla Structures | Купить Tekla Structures
Разработка КМД | Разработка КМ | Разработка КЖ | Обучение Tekla Structures | Купить Tekla Structures
Re: Ведомость отправочных элементов и два листа на 1 сборку
Ничего такого, только габариты. Как тут еще детали поместить?Таран Д. А. писал(а):Что у тебя там за конструкции такие?
- Таран Д. А.
- Администратор
- Сообщения: 2877
- Регистрация: 30 ноя 2011, 18:41
- Откуда: г. Москва
- Контактная информация:
Re: Ведомость отправочных элементов и два листа на 1 сборку
1) Ну вот поэтому и не делаем на сварке конструкций. Монтаж затягивается и чертежи некрасивые. Как вариант разбить конструкцию по другому на более мелкие сборки а остальное на монтажниках показать.alstey писал(а):Ничего такого, только габариты. Как тут еще детали поместить?Таран Д. А. писал(а):Что у тебя там за конструкции такие?
2 ) Ну лично на мой взгляд тут места еще вагон и маленькая тележка. Я бы уместил. Немного геморрно, но вполне обычная работа. Во вложении куда более плотно уложено при этом все печатали на а3 и все всех устроили и на заводе и на монтаже.
Короче варианты есть надо пробовать.
Администратор Topengineer.ru 8 (495) 215-07-79 (офис) ; 8 (925) 755-9318 (сот.); Skype wildomen ; http://vk.com/tekla_structures
Разработка КМД | Разработка КМ | Разработка КЖ | Обучение Tekla Structures | Купить Tekla Structures
Разработка КМД | Разработка КМ | Разработка КЖ | Обучение Tekla Structures | Купить Tekla Structures
Re: Ведомость отправочных элементов и два листа на 1 сборку
Мог бы уточнить, что имеешь ввиду?Таран Д. А. писал(а):1) Ну вот поэтому и не делаем на сварке конструкций.
Re: Ведомость отправочных элементов и два листа на 1 сборку
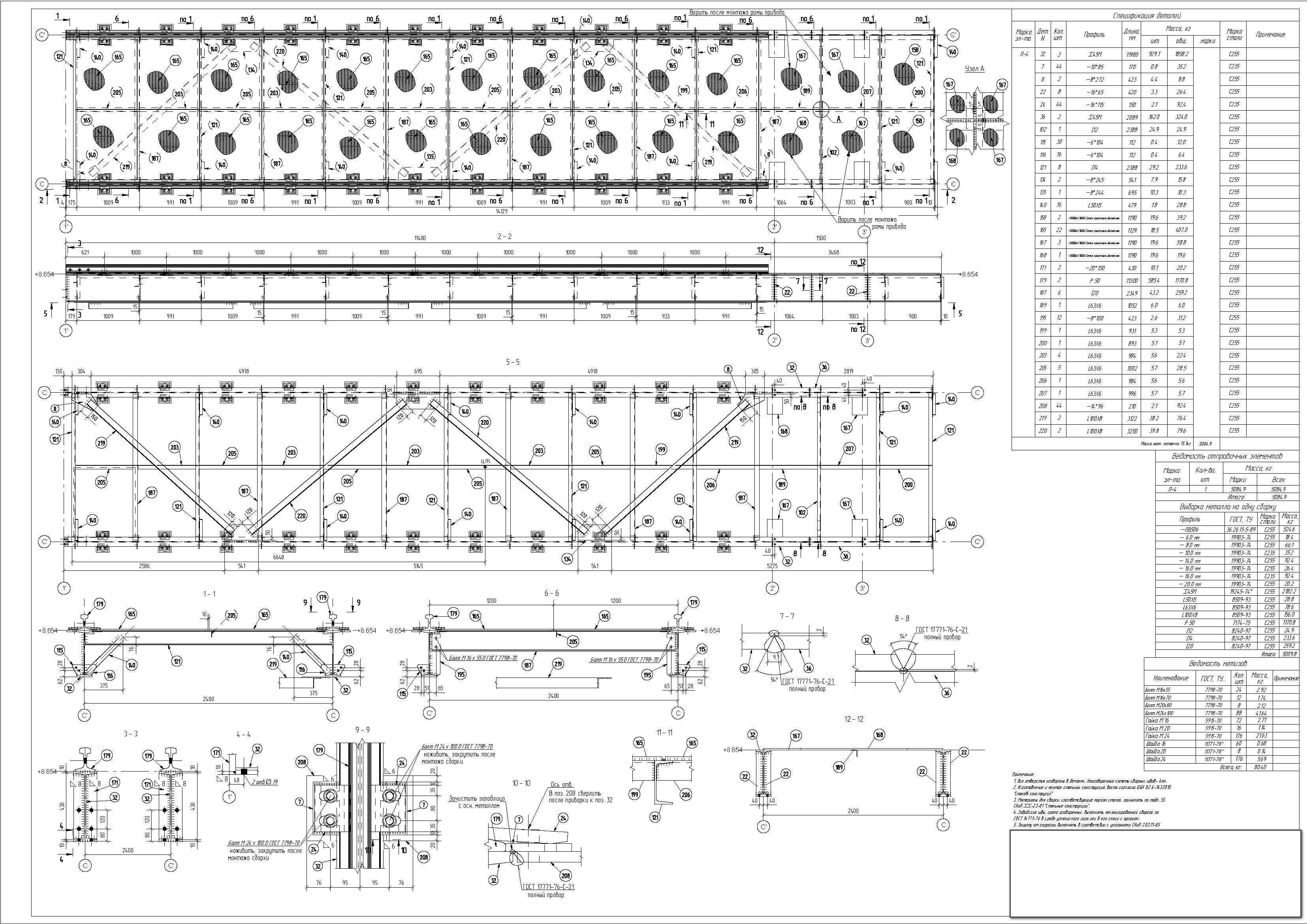
Захотелось попробовать компоновку с планом, как у тебя на чертеже. Вот что выходит.
- Таран Д. А.
- Администратор
- Сообщения: 2877
- Регистрация: 30 ноя 2011, 18:41
- Откуда: г. Москва
- Контактная информация:
Re: Ведомость отправочных элементов и два листа на 1 сборку
А у меня работает 
Администратор Topengineer.ru 8 (495) 215-07-79 (офис) ; 8 (925) 755-9318 (сот.); Skype wildomen ; http://vk.com/tekla_structures
Разработка КМД | Разработка КМ | Разработка КЖ | Обучение Tekla Structures | Купить Tekla Structures
Разработка КМД | Разработка КМ | Разработка КЖ | Обучение Tekla Structures | Купить Tekla Structures
phpbb3 styles
Кто сейчас на конференции
Сейчас этот форум просматривают: нет зарегистрированных пользователей и 5 гостей

