Точное отображение профилей Tekla Structures
Точное отображение профилей Tekla Structures
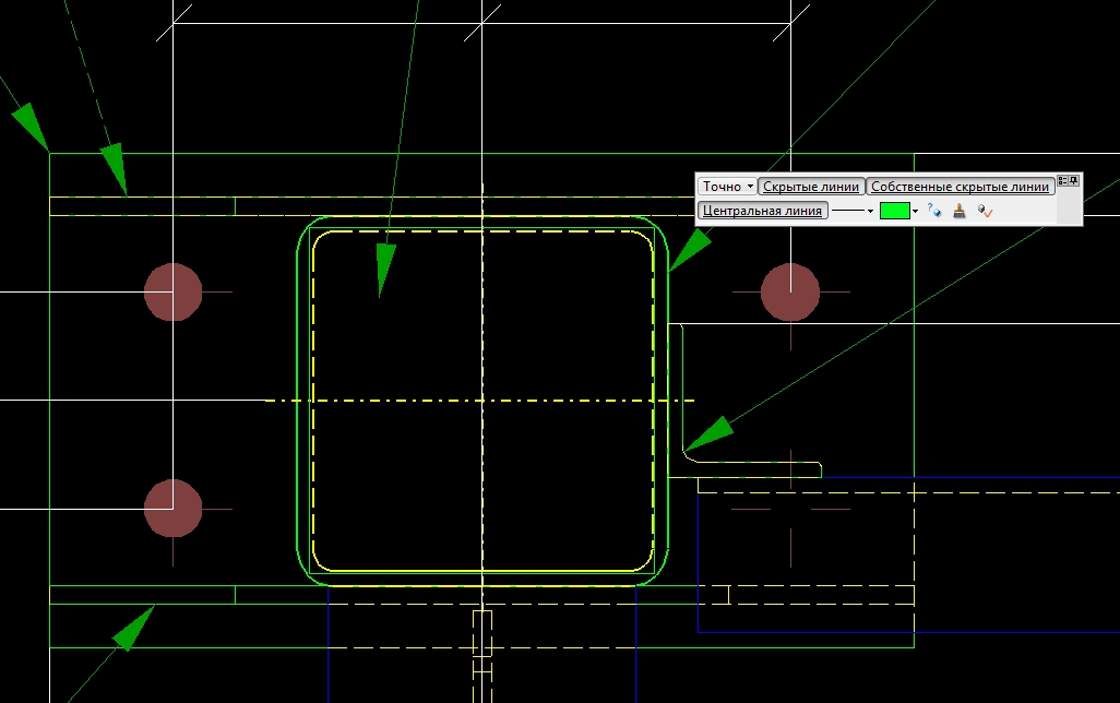
Периодически не отображаются скругления граней квадратных труб. Как поправить?
phpbb3 styles
Кто сейчас на конференции
Сейчас этот форум просматривают: нет зарегистрированных пользователей и 13 гостей

