Вставка ссылки на DWG файл в Tekla Structures
Вставка ссылки на DWG файл в Tekla Structures
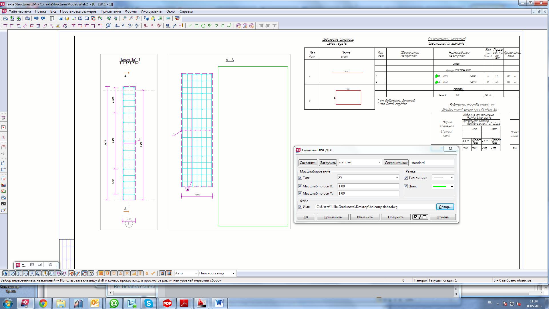
При вызове функции Вид-Добавить DWG файл появляется окно свойств, в котором нужно выбрать файл. после выбора появляется запрос: укажите первую точку. Какая бы точка не выбиралась запрос на вторую точку не появляется и ссылка не вставляется. Раньше всё работало. с чем может быть связана проблема? кто нибудь сталкивался?
Re: Вставка ссылки на DWG файл
русские буквы в пути
Re: Вставка ссылки на DWG файл
Чё делать-то?)) 
Re: Вставка ссылки на DWG файл
если есть русские буквы в пути, то убрать их, че тут еще сделаешь
-
dimitriy_popov
- Сообщения: 103
- Регистрация: 15 дек 2011, 10:02
- Откуда: Тула
Re: Вставка ссылки на DWG файл
Версия файла dwg должна быть желательно не раньше 2004Iuliia писал(а):Русских нет!
Теперь выдаёт просто пустое окно.
Re: Вставка ссылки на DWG файл
Спаисбо.
Кажется разобралась, нужно было обязательно сохранить шаблон этой вставки, иначе путь к файлу удалялся.
Кажется разобралась, нужно было обязательно сохранить шаблон этой вставки, иначе путь к файлу удалялся.
Re: Вставка ссылки на DWG файл
При вставке dwg файла в чертеж, линии вставленного чертежа жирные, хотя в автокаде 0,00 стоит вес линий.
В таблице цветов в каталоге принтеров все стоит на 0.
Подскажите как их уменьшить?
В таблице цветов в каталоге принтеров все стоит на 0.
Подскажите как их уменьшить?
phpbb3 styles
Кто сейчас на конференции
Сейчас этот форум просматривают: нет зарегистрированных пользователей и 4 гостя

