Подскажите как создать такой компонент в Tekla Structures
Подскажите как создать такой компонент в Tekla Structures
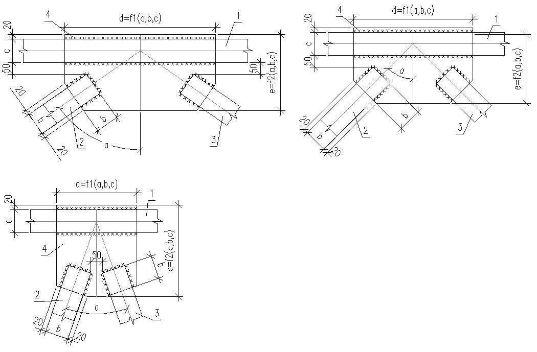
На рисунке 1 представлены три схемы узла который необходимо параметризировать. Основными переменными которые желательно чтобы программа отлавливала автоматически это размеры профилей 1, 2, 3 («b» и «с») и угол между профилями «2» и «3» – «a». В справке удалось найти функцию угла наклона второстепенной балки к основной. Например: «fAD("уклон", 12345)». Но для нее почему-то разработчиками предусмотрено только значения угла от 0 до 45 градусов. При больших углах функция выдает значение 0, что уже усложняет задачу, так как описать математически параметры получаемой в следствии установки компонента пластины не имеется возможности, не используя угол между подкосами «2» и «3».
На первом этапе создания такого компонента я пытался решить задачу хотя бы с автоматической обрезкой элементов подкосов «2» и «3» под прямым углом к собственной оси и на заданном расстоянии от боковой грани пояса «1». Схема в Текле без применения компонента приведена на рисунке 2. Схема с созданным компонентом и привязками расстояний обрезной плоскости подкоса на рисунке 3.
Каким образом можно привязать обрезную плоскость перпендикулярно оси элемента?
В базовом учебнике по компонентам очень скудная информация. Хотелось бы поподробнее ознакомится со всеми возможностями программы в данной теме. Так как узлов предстоит делать много и хочется не только тупо кнопки тыкать, но и понимать логику работы программы.
Файл с компонентом в формате Теклы прилагаю.
Прошу дать какие-либо пояснения или возможно даже подправить сам компонент, если задача поставленная понятна и уже известны методы ее решения.
Каким образом можно привязать обрезную плоскость перпендикулярно оси элемента?
В базовом учебнике по компонентам очень скудная информация. Хотелось бы поподробнее ознакомится со всеми возможностями программы в данной теме. Так как узлов предстоит делать много и хочется не только тупо кнопки тыкать, но и понимать логику работы программы.
Файл с компонентом в формате Теклы прилагаю.
Прошу дать какие-либо пояснения или возможно даже подправить сам компонент, если задача поставленная понятна и уже известны методы ее решения.
Re: Подскажите как создать такой компонент
Предлагаю не вводить плоскости подрезки, а привязывать базовые точки элементов
а где сам компонент?
а где сам компонент?
Re: Подскажите как создать такой компонент
сам компонент в формате теклы не цепляется к посту почему-то. да это и не суть важно. Задача вроде и по картинкам понятна.
Базовые точки - не вариант потому как планируется использование созданной геометрии фермы в "осях" и при попытке вычисления координат на сколько смещать базовую точку торца раскосов в формуле необходимо учитывать угол между поясом и раскосом, а он по функционалу программы ограничен максимальным значением в 45 градусов. Получается что диапазон углов от 0 до 45 сделать можно, а как только раскос под углом более 45 градусов значение формулы в ноль превращается. А без формулы эту точку я вообще не понимаю как в компоненте задать меняющейся от геометрии фермы
Базовые точки - не вариант потому как планируется использование созданной геометрии фермы в "осях" и при попытке вычисления координат на сколько смещать базовую точку торца раскосов в формуле необходимо учитывать угол между поясом и раскосом, а он по функционалу программы ограничен максимальным значением в 45 градусов. Получается что диапазон углов от 0 до 45 сделать можно, а как только раскос под углом более 45 градусов значение формулы в ноль превращается. А без формулы эту точку я вообще не понимаю как в компоненте задать меняющейся от геометрии фермы
Re: Подскажите как создать такой компонент
а профили элементов какие? а то вроде на эскизах что-то типа трубы видится, а в текле уголки. если это уголки, одиночные они будут или спаренные?:)
Re: Подскажите как создать такой компонент
Профили самые классические. Спаренные равно полочные уголки тавром. В месте стыковки двух отправочных марок - крестом.
Re: Подскажите как создать такой компонент
Нашел стандартный компонент 196 и пару похожих на него, которые можно использовать для большинства подобных узлов. Но в них не удается сделать узел стыковки двух "полу ферм" и торцевые узлы крепления к колоннам тоже далеки от идеала получаются. Так что задача все равно стоит та же по сути. Понять бы принцип и пачку подобных узлов для ферм я бы наклепал за пару дней.
Re: Подскажите как создать такой компонент
не знаю, может я чего-то пару лет назад не понимал, но дошел до того, что чем больше пытаешься параметризировать, особенно полльзовательскими компонентами, тем больше проблем:) какие-то вещи очень удобно параметризировать. Я сздал например элемент из двух уголков спаренных с сухарями, который позволяет выбирать либо тавровое, либо крестовое сечение, далее этими компонентами "накидывается" решетка фермы, а уж по мне так выстроить фасонки (такие какие мне нужны, а не какие компонент выстроит)- дело нескольких минут. Обязательно попадется случай когда твой компонент не подойдет, придется еще чего-то изобретать, список их будет расти и расти...я сейчас пытаюсь осваивать стандартные компоненты, но с ними тоже немало вопросов. например делаю ребро жесткости в элементе с одной стороны, зеркалю этот элемент, а ребро не зеркалится - оно остается с той же стороны...так вот
Re: Подскажите как создать такой компонент
На выходе хочется получить пусть не один универсальный, а несколько компонентов.
Тыкая пояса - главные балки и раскосы - второстепенные в модели получаться должен компонент который бы обрезал торцы раскосов, и вставлял косынку с размерами зависящими от положения пояса и раскосов.
При создание компонента указываю тип - соединение. Положение - авто.
Из объектов на первом этапе пусть будет только обрезающая раскос плоскость. Далее пытаюсь привязать к граничным плоскостям раскоса и пояса положение ручек обрезающей плоскости - получается чушь. Ручек всего три. И когда привязываешь только одну из ручек привязка отображается но работает не корректно. и при изменении геометрии плоскость улетает фиг знает куда.
Тыкая пояса - главные балки и раскосы - второстепенные в модели получаться должен компонент который бы обрезал торцы раскосов, и вставлял косынку с размерами зависящими от положения пояса и раскосов.
При создание компонента указываю тип - соединение. Положение - авто.
Из объектов на первом этапе пусть будет только обрезающая раскос плоскость. Далее пытаюсь привязать к граничным плоскостям раскоса и пояса положение ручек обрезающей плоскости - получается чушь. Ручек всего три. И когда привязываешь только одну из ручек привязка отображается но работает не корректно. и при изменении геометрии плоскость улетает фиг знает куда.
Re: Подскажите как создать такой компонент
обрезай не плоскостью, а деталью. деталь - балка, какой-нибудь квадрат 150*150. направляй вдоль раскоса. первая точка на торце раскоса (уже обрезанного ей же), вторая на дальней грани пояса.
- vladimir_a
- Сообщения: 699
- Регистрация: 07 дек 2011, 21:22
Re: Подскажите как создать такой компонент
Спасибо все получилосьmarsianin писал(а):обрезай не плоскостью, а деталью. деталь - балка, какой-нибудь квадрат 150*150. направляй вдоль раскоса. первая точка на торце раскоса (уже обрезанного ей же), вторая на дальней грани пояса.
Re: Подскажите как создать такой компонент в Tekla Structure
у меня тоже получилось с коробкой из 200х200 квадрата, только не удалось размер 50мм от края пояса выдержать точно. так как привязка квадрата по оси средней раскоса, а нужно было по краю. Короче я забил и сделал все стандартным компонентом, расчленив и подогнав его под свои нужды.
Re: Подскажите как создать такой компонент
Пришлите, пожалуйста, компонентик с сухарями для ферм. Если не жалко...CuPo>I<a писал(а):не знаю, может я чего-то пару лет назад не понимал, но дошел до того, что чем больше пытаешься параметризировать, особенно полльзовательскими компонентами, тем больше проблем:) какие-то вещи очень удобно параметризировать. Я сздал например элемент из двух уголков спаренных с сухарями, который позволяет выбирать либо тавровое, либо крестовое сечение, далее этими компонентами "накидывается" решетка фермы, а уж по мне так выстроить фасонки (такие какие мне нужны, а не какие компонент выстроит)- дело нескольких минут. Обязательно попадется случай когда твой компонент не подойдет, придется еще чего-то изобретать, список их будет расти и расти...я сейчас пытаюсь осваивать стандартные компоненты, но с ними тоже немало вопросов. например делаю ребро жесткости в элементе с одной стороны, зеркалю этот элемент, а ребро не зеркалится - оно остается с той же стороны...так вот
Letranger85@gmail.com
Пытался в личку попросить, но форум сообщает что почему-то что такого пользователя не существует.
- vladimir_a
- Сообщения: 699
- Регистрация: 07 дек 2011, 21:22
Re: Подскажите как создать такой компонент в Tekla Structure
Подскажите пожалуйста как вставить в компонент болты? Создал компонент лестница. Прикручиваю лесенку к косоуру болтами. Сохраняю закрываю, а их там нет 
Последний раз редактировалось vladimir_a 01 мар 2012, 10:34, всего редактировалось 1 раз.
Re: Подскажите как создать такой компонент в Tekla Structure
Все должно нормально работать.
Есть параметры на косоур или ступень, что за макрос (возможно, проблема в нем)?
Есть параметры на косоур или ступень, что за макрос (возможно, проблема в нем)?
- vladimir_a
- Сообщения: 699
- Регистрация: 07 дек 2011, 21:22
Re: Подскажите как создать такой компонент в Tekla Structure
параметры на косоур. макрос- деталь
- vladimir_a
- Сообщения: 699
- Регистрация: 07 дек 2011, 21:22
Re: Подскажите как создать такой компонент в Tekla Structure
Вопрос такого плана. Как создать условие на сварку цех/площадка?
Re: Подскажите как создать такой компонент в Tekla Structure
"Сварочная площадка" Тип значения Да/Нет
- vladimir_a
- Сообщения: 699
- Регистрация: 07 дек 2011, 21:22
Re: Подскажите как создать такой компонент в Tekla Structure
Поясните, как повторить этот фокус с "ВЕС" в компоненте.
-
dimitriy_popov
- Сообщения: 103
- Регистрация: 15 дек 2011, 10:02
- Откуда: Тула
Re: Подскажите как создать такой компонент в Tekla Structure
Попробуй записать - fTpl("WEIGHT",6290)rka писал(а):Поясните, как повторить этот фокус с "ВЕС" в компоненте
Re: Подскажите как создать такой компонент в Tekla Structure
спасибо, получилось.
Re: Подскажите как создать такой компонент в Tekla Structure
Добрый день, пожалуйста помогите мне !!!
У меня есть опора. Мне нужно создать три соединения. Другими словами, я первый раз в жизни хочу создать интеллектуальный пользовательский компонент. Беру первое соединение , создаю пользовательский компонент, открываю редактор. И тут… я не могу понять как задать фиксированные и переменные расстояния. Что уж я только не нажимала, и что уже только не читала. Мне нужно, чтобы уголки ставились на определенном расстоянии от пластины, к которой выполняется соединение. И мне нужно чтобы сам компонент тоже подстраивался под пластину к которой он присоединяет. Кто-нибудь может объяснить мне последовательность? Я совершенно не понимаю как это сделать. Дело в том что иногда в результате моих мучений у меня появляется расстояние, но я не могу понять в результате чего оно появилось, и как оно создалось, и по какому принципу. Я пыталась задать фиксированный размер сотню раз и перепробовала все возможное. Я делаю по справке. Выделяю зеленый уголок. Появляются ручки. Выделяю одну ручку. Щелкаю правой кнопкой мыши и выбираю в меню пункт Привязать к плоскости. В низу у меня пишется Укажите плоскость для привязки к ней. И тут, я уже что только не делала. Все плоскости показываются, но ничего не создается. По справке после того как я щелкаю на плоскость должен создаться размер. А он мне при любых манипуляциях пишет. -Укажите плоскость для привязки к ней.
У меня есть опора. Мне нужно создать три соединения. Другими словами, я первый раз в жизни хочу создать интеллектуальный пользовательский компонент. Беру первое соединение , создаю пользовательский компонент, открываю редактор. И тут… я не могу понять как задать фиксированные и переменные расстояния. Что уж я только не нажимала, и что уже только не читала. Мне нужно, чтобы уголки ставились на определенном расстоянии от пластины, к которой выполняется соединение. И мне нужно чтобы сам компонент тоже подстраивался под пластину к которой он присоединяет. Кто-нибудь может объяснить мне последовательность? Я совершенно не понимаю как это сделать. Дело в том что иногда в результате моих мучений у меня появляется расстояние, но я не могу понять в результате чего оно появилось, и как оно создалось, и по какому принципу. Я пыталась задать фиксированный размер сотню раз и перепробовала все возможное. Я делаю по справке. Выделяю зеленый уголок. Появляются ручки. Выделяю одну ручку. Щелкаю правой кнопкой мыши и выбираю в меню пункт Привязать к плоскости. В низу у меня пишется Укажите плоскость для привязки к ней. И тут, я уже что только не делала. Все плоскости показываются, но ничего не создается. По справке после того как я щелкаю на плоскость должен создаться размер. А он мне при любых манипуляциях пишет. -Укажите плоскость для привязки к ней.
- Таран Д. А.
- Администратор
- Сообщения: 2877
- Регистрация: 30 ноя 2011, 18:41
- Откуда: г. Москва
- Контактная информация:
Re: Подскажите как создать такой компонент в Tekla Structure
Вы выбрали не самый удобный компонент для обучения.Anna писал(а):Добрый день, пожалуйста помогите мне !!!..........
Лучше или приезжайте к нам на обучение на выходных (это самый логичный вариант)
Либо выходите в скайп я помогу. Однако научить работать за несколько минут не обещаю.. все же надо затратить время на обучение.
Мой скайп wildomen
Администратор Topengineer.ru 8 (495) 215-07-79 (офис) ; 8 (925) 755-9318 (сот.); Skype wildomen ; http://vk.com/tekla_structures
Разработка КМД | Разработка КМ | Разработка КЖ | Обучение Tekla Structures | Купить Tekla Structures
Разработка КМД | Разработка КМ | Разработка КЖ | Обучение Tekla Structures | Купить Tekla Structures
Re: Подскажите как создать такой компонент в Tekla Structure
Anna,
Вопрос , а зачем придумывать свой компонент.
Вот мы сейчас рисуем вышки, все соединения можно выполнить стандартными компонентами.
Посмотрите компоненты:
110
149
60
67
50
56
44
169
Не забудьте их настроить под себя.
Вопрос , а зачем придумывать свой компонент.
Вот мы сейчас рисуем вышки, все соединения можно выполнить стандартными компонентами.
Посмотрите компоненты:
110
149
60
67
50
56
44
169
Не забудьте их настроить под себя.
Администратор Topengineer.ru 8 (495) 215-07-79 (офис) ; 8 (925) 755-9316 (сот.); Skype: perezhog
Разработка КМД | Разработка КМ | Обучение Tekla Structures
Разработка КМД | Разработка КМ | Обучение Tekla Structures
Re: Подскажите как создать такой компонент в Tekla Structure
Ну потому что , в данном случае все опоры сварные. И там не нужны болты и отверстия. К тому же у нас все детали должны быть как можно проще, чтобы их можно было легче изготовить, потому что изготовление у нас допотопное, соответственно и отверстий должно быть минимум, чтоб сборщикам можно было как можно легче и быстрее изготовить детали.
- Таран Д. А.
- Администратор
- Сообщения: 2877
- Регистрация: 30 ноя 2011, 18:41
- Откуда: г. Москва
- Контактная информация:
Re: Подскажите как создать такой компонент в Tekla Structure
Сварные или нет профиля в данном случае значения не имеет. Компонент сработает и для них. А боты в компоненте отключаются.Anna писал(а):Ну потому что , в данном случае все опоры сварные. И там не нужны болты и отверстия. К тому же у нас все детали должны быть как можно проще, чтобы их можно было легче изготовить, потому что изготовление у нас допотопное, соответственно и отверстий должно быть минимум, чтоб сборщикам можно было как можно легче и быстрее изготовить детали.
Администратор Topengineer.ru 8 (495) 215-07-79 (офис) ; 8 (925) 755-9318 (сот.); Skype wildomen ; http://vk.com/tekla_structures
Разработка КМД | Разработка КМ | Разработка КЖ | Обучение Tekla Structures | Купить Tekla Structures
Разработка КМД | Разработка КМ | Разработка КЖ | Обучение Tekla Structures | Купить Tekla Structures
Re: Подскажите как создать такой компонент в Tekla Structure
Для самого первого параметрического компонента, уж слишком сложное соединение, начните с прямых т.е. обычные балка с балкой или с колонной, делать наклонные вещи по сложнее будет.Anna писал(а):Добрый день, пожалуйста помогите мне !!!
У меня есть опора. Мне нужно создать три соединения. Другими словами, я первый раз в жизни хочу создать интеллектуальный пользовательский компонент. Беру первое соединение ...
А конкретно в вашем случае подойдет 11 компонент для удаления болтов существует несколько способов, одно из них: укажите то количество рядов болта которое нужно) т.е."0"
-
construct1
- Сообщения: 15
- Регистрация: 22 июл 2012, 21:43
Re: Подскажите как создать такой компонент в Tekla Structure
Хочю создать свою ступеньку(которая состоит из 5 элементов) для лестниц, как стандартный элемент, но мне нужно, чтобы в спецификаци отображалось в столбце сечение одной строчкой "Ступенька №?". Возможно ли? Ессли да! Тогда подскажите пожалуйста по подробней!
Re: Подскажите как создать такой компонент в Tekla Structure
Возможно, но придется посидеть с таблицами, деталям присваиваешь атрибут, в соответствии с ним делаешь сортировку в шаблоне if find "атрибут" ...construct1 писал(а):Хочю создать свою ступеньку(которая состоит из 5 элементов) для лестниц, как стандартный элемент, но мне нужно, чтобы в спецификаци отображалось в столбце сечение одной строчкой "Ступенька №?". Возможно ли? Ессли да! Тогда подскажите пожалуйста по подробней!
- Таран Д. А.
- Администратор
- Сообщения: 2877
- Регистрация: 30 ноя 2011, 18:41
- Откуда: г. Москва
- Контактная информация:
Re: Подскажите как создать такой компонент в Tekla Structure
Какая именно спецификаций имеется ввиду?Айдар писал(а):Возможно, но придется посидеть с таблицами, деталям присваиваешь атрибут, в соответствии с ним делаешь сортировку в шаблоне if find "атрибут" ...construct1 писал(а):Хочю создать свою ступеньку(которая состоит из 5 элементов) для лестниц, как стандартный элемент, но мне нужно, чтобы в спецификаци отображалось в столбце сечение одной строчкой "Ступенька №?". Возможно ли? Ессли да! Тогда подскажите пожалуйста по подробней!
Администратор Topengineer.ru 8 (495) 215-07-79 (офис) ; 8 (925) 755-9318 (сот.); Skype wildomen ; http://vk.com/tekla_structures
Разработка КМД | Разработка КМ | Разработка КЖ | Обучение Tekla Structures | Купить Tekla Structures
Разработка КМД | Разработка КМ | Разработка КЖ | Обучение Tekla Structures | Купить Tekla Structures
-
construct1
- Сообщения: 15
- Регистрация: 22 июл 2012, 21:43
Re: Подскажите как создать такой компонент в Tekla Structure
Стандартная КМДТаран Д. А. писал(а):Какая именно спецификаций имеется ввиду?Айдар писал(а):Возможно, но придется посидеть с таблицами, деталям присваиваешь атрибут, в соответствии с ним делаешь сортировку в шаблоне if find "атрибут" ...construct1 писал(а):Хочю создать свою ступеньку(которая состоит из 5 элементов) для лестниц, как стандартный элемент, но мне нужно, чтобы в спецификаци отображалось в столбце сечение одной строчкой "Ступенька №?". Возможно ли? Ессли да! Тогда подскажите пожалуйста по подробней!
- Таран Д. А.
- Администратор
- Сообщения: 2877
- Регистрация: 30 ноя 2011, 18:41
- Откуда: г. Москва
- Контактная информация:
Re: Подскажите как создать такой компонент в Tekla Structure
Есть ведомости на чертеже есть ведомости в экселе.
Как именно Вы будете маркировать ту деталь которая необходима?
Какие планируете отличительные параметры?
Как именно Вы будете маркировать ту деталь которая необходима?
Какие планируете отличительные параметры?
Администратор Topengineer.ru 8 (495) 215-07-79 (офис) ; 8 (925) 755-9318 (сот.); Skype wildomen ; http://vk.com/tekla_structures
Разработка КМД | Разработка КМ | Разработка КЖ | Обучение Tekla Structures | Купить Tekla Structures
Разработка КМД | Разработка КМ | Разработка КЖ | Обучение Tekla Structures | Купить Tekla Structures
-
construct1
- Сообщения: 15
- Регистрация: 22 июл 2012, 21:43
Re: Подскажите как создать такой компонент в Tekla Structure
В спецификации КМД на листе. №дет."1"/Кол. "10"/Профиль "Ступенька ЛС1"/ и т.д.Таран Д. А. писал(а):Есть ведомости на чертеже есть ведомости в экселе.
Как именно Вы будете маркировать ту деталь которая необходима?
Какие планируете отличительные параметры?
Но ступенька состоит: из уголков, просечно-вытяжного листа и листа. А в спецификаци в колонке "Профиль" надо просто одной строчкой "Ступенька ЛС1"!
Re: Подскажите как создать такой компонент в Tekla Structure
С чего начать даже не знаю.
Нужно создать компонент детали двутавра в котором имя профиль я задается пользователем, а так же габариты профиля.
С чего начать?
Нужно создать компонент детали двутавра в котором имя профиль я задается пользователем, а так же габариты профиля.
С чего начать?
Re: Подскажите как создать такой компонент в Tekla Structure
Кто нибудь может ответить на первый вопрос в теме?
"Каким образом можно привязать обрезную плоскость перпендикулярно оси элемента?"
"Каким образом можно привязать обрезную плоскость перпендикулярно оси элемента?"
Re: Подскажите как создать такой компонент в Tekla Structure
Привязать плоскость к торцу не пробовали?"Каким образом можно привязать обрезную плоскость перпендикулярно оси элемента?"
Re: Подскажите как создать такой компонент в Tekla Structure
Пробовал, подрезку нельзя привязать к плоскости на которой она находится=( цикл возникаетПривязать плоскость к торцу не пробовали?
Re: Подскажите как создать такой компонент в Tekla Structure
остаётся только к центральной плоскости привязать.Artu писал(а):Пробовал, подрезку нельзя привязать к плоскости на которой она находится=( цикл возникаетПривязать плоскость к торцу не пробовали?
«Есть только две бесконечные вещи: Вселенная и глупость. Хотя насчет Вселенной я не вполне уверен.» А. Эйнштейн
Re: Подскажите как создать такой компонент в Tekla Structure
Попробуйте создать две плоскости. Одну привяжите к торцу детали, вторая-параллельная ей, привяжите к ней подрезку и параметрически задайте расстояние от торцевой плоскости. Может так?
Re: Подскажите как создать такой компонент в Tekla Structure
в таком случае получится цикл и ничего работать не будет, мне кажется >_>ilya_kon писал(а):Попробуйте создать две плоскости. Одну привяжите к торцу детали, вторая-параллельная ей, привяжите к ней подрезку и параметрически задайте расстояние от торцевой плоскости. Может так?
«Есть только две бесконечные вещи: Вселенная и глупость. Хотя насчет Вселенной я не вполне уверен.» А. Эйнштейн
Re: Подскажите как создать такой компонент в Tekla Structure
во вложении пример компонента...объяснять ничего не буду, 10 раз уже обмусоливали такой момент
текла 20
текла 20
- Вложения
-
Cut_rot.7z- (3.91 КБ) 3142 скачивания
Re: Подскажите как создать такой компонент в Tekla Structure
А вот за компонент спасибо большое!!! завтра вскрою его и постараюсь разобраться!CuPo>I<a
-
AndrejjerdnA
- Сообщения: 103
- Регистрация: 18 сен 2014, 07:20
Re: Подскажите как создать такой компонент в Tekla Structure
Новую тему решил не создавать.
Не подскажите, какие условия необходимо использовать при применении параметра "ДА/НЕТ" (см. вложение с пояснением)
Да - "1", Нет - "0"?
Не подскажите, какие условия необходимо использовать при применении параметра "ДА/НЕТ" (см. вложение с пояснением)
Да - "1", Нет - "0"?
Re: Подскажите как создать такой компонент в Tekla Structure
без кавычек пиши - это число
-
AndrejjerdnA
- Сообщения: 103
- Регистрация: 18 сен 2014, 07:20
Re: Подскажите как создать такой компонент в Tekla Structure
Да, все разобрался. Спасибо!CuPo>I<a писал(а):без кавычек пиши - это число
Re: Подскажите как создать такой компонент в Tekla Structures
Подскажите пожалуйста, если ли такой компонент, который из пластины созданной балкой, возвращает пластину созданную контурной пластиной?
phpbb3 styles
Кто сейчас на конференции
Сейчас этот форум просматривают: нет зарегистрированных пользователей и 11 гостей

