Практический семинар Tekla Structures 2017

Обозначение сварных швов в Tekla Structures

Создание чертежей в Tekla Structures
Аватара пользователя
Таран Д. А.
Администратор
Сообщения: 2877
Регистрация: 30 ноя 2011, 18:41
Откуда: г. Москва
Контактная информация:

Обозначение сварных швов в Tekla Structures

Сообщение Таран Д. А. » 12 янв 2012, 10:01

БЕСПЛАТНО!
Обновленная версия WeildApp – приложение для прорисовки сварки вTekla Structures.
Теперь линия рисуется по 3 точкам.
1. Начало
2. Конец
3. С какой стороны от отрезка будут штрихи
Версия от 23 Июля 2014.
Приложение разработано специалистами http://TopEngineer.ru/

Изображение

Перемер регулировки прозрачности

Изображение
Изображение


НОВОЕ!!!
Скачать для Tekla Structures V20.0 http://topengineer.ru/TeklaDownload/WeldApp/20.0.zip
Скачать для Tekla Structures V19.1 http://topengineer.ru/TeklaDownload/WeldApp/19.1.zip
Скачать для Tekla Structures V19.0 http://topengineer.ru/TeklaDownload/WeldApp/19.0.zip
Скачать для Tekla Structures V18.1 http://topengineer.ru/TeklaDownload/WeldApp/18.1.zip
Скачать для Tekla Structures V18.0 http://topengineer.ru/TeklaDownload/WeldApp/18.0.zip
Скачать для Tekla Structures V17.0 http://topengineer.ru/TeklaDownload/WeldApp/17.0.zip


Обновление утилиты WeildApp для прорисовки сварных швов в Tekla Structures.

Изменения:
1) Добавлен новый инструмент удаления всех сварных швов с чертежа. Данная функция полезна при клонировании чертежей и удалении некорректно клонированной сварки.
2) Добавлен инструмент позволяющий автоматически проставлять метки и символы швов прорисованных твердотельно в моделях Tekla Structures 19.0 и выше
3) Добавлена функции автоматического указания катета шва согласно заполненным таблицам соответствий толщин деталей и катетов швов.
4) Добавлена возможность вставки таблиц из EXCEL
5) Добавлена возможность вставки текста с неограниченным количеством символов. Поддерживается Word и прочие текстовые редакторы.
6) Добавлена утилита для нумерации чертежей
7) Добавлена версия программы для Tekla Structures v20.
8) Исправлены ошибки при построении шва по дуге.
9) Добавлена возможность изменения прозрачности приложения чтобы меньше затенять чертеж.
10) По умолчанию галочка использовать параметры чертежа для определения размера штриха включена. Ранее была выключена.
11) Добавлены подсказки к кнопкам.
12) Размер линии обрыва по умолчанию 15 (было 1)
13) Линия разрыва рисуется с иначе (заступ за точку начала и точку конца) символ приведен в соответствии в ГОСТ.
14) Добавлена возможность прорисовки символа шва в разрезе.

Утилита поставляется бесплатно.
Для пользователей пакета локализации Topengineer обновление автоматическое.
Для пользователей, скачивающих утилиту с сайта отдельно от среды инструкций по установке ниже.

Порядок установки
1.Качаем нужную версию WeildApp. Разрядность значения не имеет.
2. Библиотеку KMDPlugins.dll перенести в папку «%Директория программы Tekla Structures\%Версия программы\nt\bin\plugins»
3. Скопировать WeldSymbols.sym в директорию «%Директория программы Tekla Structures\%Версия программы\Environments\%Ваша среда%\symbols»
4. WeldApp%версия%.exe, WeldApp.cs и картинки копируем в «%Директория программы Tekla Structures\%Версия программы\Environments\Common\macros\drawings.

Примечание
Утилита не работает при одновременно запущенных нескольких Tekla Structures на одном компьютере.

Цвикла Антон
Сообщения: 7
Регистрация: 12 дек 2011, 10:15

Re: Обозначение сварных швов в Tekla Structures

Сообщение Цвикла Антон » 12 янв 2012, 15:23

Вот пару вопросов по сварным швам:

Работаю в среде KMD_RUS_v1.0, предложенной авторами этого форума.

1) Для того, чтобы в спец. отобразилась длина сварного шва, необходимо на модели задать само значение этой длины, в голове считать эту цифру оО или же есть какие-то хитрости...?

2) Как быстро на чертежах сборок создавать сварные шви, используя ваше дополнение, все руками дорисовывать или все же есть определенная система ?

Спасибо!

Аватара пользователя
Таран Д. А.
Администратор
Сообщения: 2877
Регистрация: 30 ноя 2011, 18:41
Откуда: г. Москва
Контактная информация:

Re: Обозначение сварных швов в Tekla Structures

Сообщение Таран Д. А. » 12 янв 2012, 15:56

Изображение
Текла мысли читать не может. Длины швов надо назначать. Катеты тоже.
В свойствах балки укажите тип катет и длину шва.

Как вариант можно прорисовывать сварку твердотельно. Тогда и на чертежах сварка будет рисоваться штрихами сама и считать длину автоматом.
Но это можно делать только в версии 17.1 и 18.0.
Для версии 17.0 будет обновление среды если будет такая потребность.

Alex
Сообщения: 236
Регистрация: 01 дек 2011, 09:23
Контактная информация:

Re: Обозначение сварных швов в Tekla Structures

Сообщение Alex » 07 фев 2012, 08:19

Вот еще плагин по прорисовке свари в чертежах.
Отличие в работе: мы как бы вшили функционал нашего приложения в теклу, теперь чтобы нарисовать сварной шов нужно нажать кнопочку и указать две точки, при этом не будут запускаться никакие приложения.
К тому же получили неожиданный результат - шов рисоваться стал блоком, как в автокаде (правда без возможности масштабировать).
Плюсы:
-не надо никаких сторонних приложений
-можно задать любое сочетание кнопок для быстрого вызова
-простота прорисовки и удаления швов, при необходимости шов можно отразить
-не нужно устанавливать, просто копируется .dll
-возможно в любой момент изменить содержание полилинии (штришки, крестики, смайлики и т.д)
Минусы:
-не клонируется, текла еще не научилась понимать наши полилинии
-при утрировании вида, если зазор м/у частями детали большой, то рисует сплошную линию на месте зазора

Как поставить:
1. копируем SNS.Tekla.Utility в Tekla Structures\17.0\nt\bin\plugins
2. копируем картинки в Tekla Structures\17.0\nt\bitmaps
3. копируем WeldSymbols в папку symbols.
4. добавляем кнопочки на панель как на рисунке
5. если у вас уже была установленна weldApp то меняем SNS.Tekla.Utility.dll в папке C:\Windows\Microsoft.NET\assembly\GAC_MSIL\

vla, мы поменяли логику прорисовки теперь вроде все рисуется нормально.
Вложения
Сварка.zip
(10.46 КБ) 1552 скачивания
1.PNG
Администратор Topengineer.ru 8 (495) 215-07-79 (офис) ; 8 (925) 755-9316 (сот.); Skype: perezhog
Разработка КМД | Разработка КМ | Обучение Tekla Structures

Айдар
Сообщения: 231
Регистрация: 06 дек 2011, 22:23
Контактная информация:

Re: Обозначение сварных швов в Tekla Structures

Сообщение Айдар » 07 фев 2012, 08:34

Звучит очень интересно! Спасибо!
Продолжая развитие этого вопроса, а нет ли способа заменить буржуйские символы на наши, скажем либо реснички, либо символ катета?

Аватара пользователя
vladimir_a
Сообщения: 699
Регистрация: 07 дек 2011, 21:22

Re: Обозначение сварных швов в Tekla Structures

Сообщение vladimir_a » 07 фев 2012, 08:36

Alex писал(а):vla, мы поменяли логику прорисовки теперь вроде все рисуется нормально.
От души! А то уже затра... :)
Alex писал(а): -возможно в любой момент изменить содержание полилинии (штришки, крестики, смайлики и т.д)
что-то никак :(

Alex
Сообщения: 236
Регистрация: 01 дек 2011, 09:23
Контактная информация:

Re: Обозначение сварных швов в Tekla Structures

Сообщение Alex » 07 фев 2012, 13:11

1. штришки ставятся?
2. нормально не перекашивает их?
3. WeldSymbols - тут находятся линии замени на то что хочешь
Администратор Topengineer.ru 8 (495) 215-07-79 (офис) ; 8 (925) 755-9316 (сот.); Skype: perezhog
Разработка КМД | Разработка КМ | Обучение Tekla Structures

Аватара пользователя
vladimir_a
Сообщения: 699
Регистрация: 07 дек 2011, 21:22

Re: Обозначение сварных швов в Tekla Structures

Сообщение vladimir_a » 08 фев 2012, 18:21

ставятся нормально без перекосов. чет никак невкурю как заменить. И кнопки приходится при каждом запуске прикручивать

Alex
Сообщения: 236
Регистрация: 01 дек 2011, 09:23
Контактная информация:

Re: Обозначение сварных швов в Tekla Structures

Сообщение Alex » 10 фев 2012, 08:20

Ну собственно как поменять что рисуется
Вложения
Снимок.PNG
Администратор Topengineer.ru 8 (495) 215-07-79 (офис) ; 8 (925) 755-9316 (сот.); Skype: perezhog
Разработка КМД | Разработка КМ | Обучение Tekla Structures

Аватара пользователя
vladimir_a
Сообщения: 699
Регистрация: 07 дек 2011, 21:22

Re: Обозначение сварных швов в Tekla Structures

Сообщение vladimir_a » 10 фев 2012, 08:36

Да я знаю где это все находится, но у мня чет не меняется текущий символ :)

Владимир Шнейдер
Сообщения: 291
Регистрация: 03 фев 2012, 17:29
Откуда: Днепропетровск

Re: Обозначение сварных швов в Tekla Structures

Сообщение Владимир Шнейдер » 07 мар 2012, 14:54

А как в этой версии сварки менять монтажный стык на заводской? Отдельного окошка вообще нет?

Аватара пользователя
Таран Д. А.
Администратор
Сообщения: 2877
Регистрация: 30 ноя 2011, 18:41
Откуда: г. Москва
Контактная информация:

Re: Обозначение сварных швов в Tekla Structures

Сообщение Таран Д. А. » 07 мар 2012, 16:25

Отдельное окно убрали. Теперь сварка просто инструмент в текле.

Владимир Шнейдер
Сообщения: 291
Регистрация: 03 фев 2012, 17:29
Откуда: Днепропетровск

Re: Обозначение сварных швов в Tekla Structures

Сообщение Владимир Шнейдер » 07 мар 2012, 21:22

Ну а как монтажный шов показывать?
Как боретесь со сбившимися ресничками на месте разрыва?

Аватара пользователя
Таран Д. А.
Администратор
Сообщения: 2877
Регистрация: 30 ноя 2011, 18:41
Откуда: г. Москва
Контактная информация:

Re: Обозначение сварных швов в Tekla Structures

Сообщение Таран Д. А. » 07 мар 2012, 22:07

Бороться просто. Перед клонированием не ставить урезать детали.
Урезание детали необходимо включать после клонирования. Тогда сварка не будет сбиваться в кучу.
Все же включить укорачивание проще чем показать сварку заново.

Аватара пользователя
vladimir_a
Сообщения: 699
Регистрация: 07 дек 2011, 21:22

Re: Обозначение сварных швов в Tekla Structures

Сообщение vladimir_a » 07 мар 2012, 22:08

Владимир Шнейдер писал(а):Ну а как монтажный шов показывать?
Как боретесь со сбившимися ресничками на месте разрыва?
Alex писал(а):Ну собственно как поменять что рисуется
viewtopic.php?f=6&t=95&p=1300#p936

Владимир Шнейдер
Сообщения: 291
Регистрация: 03 фев 2012, 17:29
Откуда: Днепропетровск

Re: Обозначение сварных швов в Tekla Structures

Сообщение Владимир Шнейдер » 09 мар 2012, 10:12

vla писал(а):
Владимир Шнейдер писал(а):Ну а как монтажный шов показывать?
Как боретесь со сбившимися ресничками на месте разрыва?
Alex писал(а):Ну собственно как поменять что рисуется
viewtopic.php?f=6&t=95&p=1300#p936
Я видел этот пост, но я так и не понял, как поменять символ. можно пошагово объяснить, как быстро поменять текущий символ скажем, на монт. сварку, а затем назад?

Аватара пользователя
vladimir_a
Сообщения: 699
Регистрация: 07 дек 2011, 21:22

Re: Обозначение сварных швов в Tekla Structures

Сообщение vladimir_a » 09 мар 2012, 10:32

Да, брат я тоже так и не понял :) , поэтому вернулся к версии 10.11.11

Владимир Шнейдер
Сообщения: 291
Регистрация: 03 фев 2012, 17:29
Откуда: Днепропетровск

Re: Обозначение сварных швов в Tekla Structures

Сообщение Владимир Шнейдер » 09 мар 2012, 10:37

vla писал(а):Да, брат я тоже так и не понял :) , поэтому вернулся к версии 10.11.11
ну я надеюсь, Дима или Алексей нам объяснять, они же как-то меняют :-)
Или делают все заводской сваркой. В нормальных проектах так и есть, но мы-то работаем в наших реалиях...

seeyounexttuesday
Сообщения: 19
Регистрация: 09 фев 2012, 22:35

Re: Обозначение сварных швов в Tekla Structures

Сообщение seeyounexttuesday » 20 мар 2012, 22:36

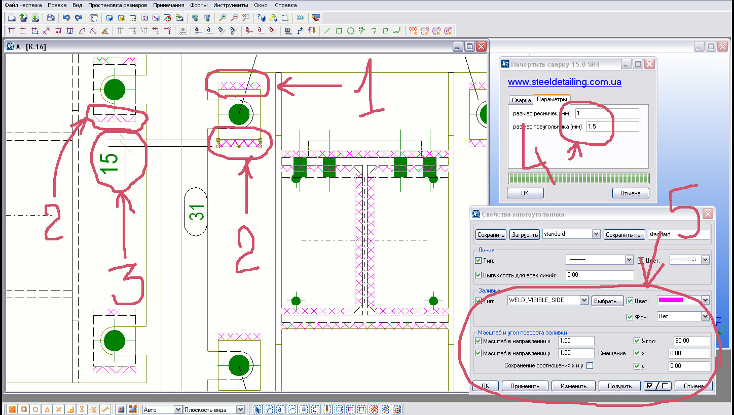
Понимаю, что все (возможно) давно перешли на версию 17 и более, но все же.....
Изучаю 15.0, sr4. На двг.ру скачал приложение для автоматической дорисовки сварных швов.
Возникло несколько моментов, которые не могу решить. Возможно, кто-нибудь сталкивался с этим. Подскажите. Далее по картинке:
1. Нормально нарисованная сварка.
2. Неправильно нарисованная сварка.
3. При заданных параметрах в п.4 (размер ресничек и треугольника) высота многоугольника сварки все равно 1.5 мм.
4. 1 мм и 1.5 мм - значения по умолчанию. При вводе бОльших значений результат меняется, при вводе меньше - нет. Так же с заводской сваркой - высота ресничек получается 1.5 мм (при стандартном значении параметров).
5. Менял настройки самой штриховки - результат подбирать надо. Но не буду же я каждый лист так отстраивать, верно? Долго.

Так вот вопрос: как сделать так, чтобы сварка отображалась нормально и высота этих многоугольников была 1 мм, как и в настройках.
Кто сталкивался? Кто решил?

И еще: когда ставится цифра с катетом шва над сваркой, она определенного размера (3 мм высота шрифта). Как по умолчанию сделать, предположим, 2.5 мм? Задание в чертеже свойств по умолчанию для текста не влияют на это. Т.е. до отрисовки сварки свойства меняй-не меняй - программа все равно ставит текст 3 мм высотой, а потом ее можно редактировать.
+ иногда ставится текст "L10", например, вместо просто "10"... Можно, конечно, редактировать потом и т.д. Но как можно этого избежать?

Заранее, спасибо!
Вложения
snap_007.jpg

seeyounexttuesday
Сообщения: 19
Регистрация: 09 фев 2012, 22:35

Re: Обозначение сварных швов в Tekla Structures

Сообщение seeyounexttuesday » 21 мар 2012, 00:55

Таааак.... Пока разобрался только с пунктом 3: 1.5 мм получается потому, что масштаб этого вида 1:15 стоит.... При масштабе 1:10 получается все как надо.... Но до сих пор мучает вопрос "Как избавиться от косяков типа пункт 2"?.... У кого какие идеи?

Аватара пользователя
CuPo>I<a
Сообщения: 846
Регистрация: 26 дек 2011, 12:41
Откуда: Златоуст
Контактная информация:

Re: Обозначение сварных швов в Tekla Structures

Сообщение CuPo>I<a » 21 мар 2012, 05:23

может с этими вопросами стоит обратиться по синему адресу?

seeyounexttuesday
Сообщения: 19
Регистрация: 09 фев 2012, 22:35

Re: Обозначение сварных швов в Tekla Structures

Сообщение seeyounexttuesday » 21 мар 2012, 10:50

Да, я думал об этом. Просто хотел уточнить вдруг кто из местных с этим сталкивался... Но тем ребятам тоже напишу.

Alex
Сообщения: 236
Регистрация: 01 дек 2011, 09:23
Контактная информация:

Re: Обозначение сварных швов в Tekla Structures

Сообщение Alex » 22 мар 2012, 19:38

Может кому пригодится сварка под 18.0

SNS.Tekla.Utility.dll замените в папке C:\Windows\Microsoft.NET\assembly\GAC_MSIL\SNS.Tekla.Utility\v4.0_1.1.1.1__84c72cdce9cf2710

P/s:Как это отразится на сварке 17.0 не проверил еще.
Вложения
Сварка 18.0.rar
(60.18 КБ) 1206 скачиваний
Последний раз редактировалось Alex 22 мар 2012, 19:53, всего редактировалось 2 раза.
Администратор Topengineer.ru 8 (495) 215-07-79 (офис) ; 8 (925) 755-9316 (сот.); Skype: perezhog
Разработка КМД | Разработка КМ | Обучение Tekla Structures

Alex
Сообщения: 236
Регистрация: 01 дек 2011, 09:23
Контактная информация:

Re: Обозначение сварных швов в Tekla Structures

Сообщение Alex » 22 мар 2012, 19:41

Проверил,
Если замените SNS.Tekla.Utility.dll, в 17.0 работать сварка не будет.
Появится время исправим
Администратор Topengineer.ru 8 (495) 215-07-79 (офис) ; 8 (925) 755-9316 (сот.); Skype: perezhog
Разработка КМД | Разработка КМ | Обучение Tekla Structures

djynar
Сообщения: 41
Регистрация: 06 дек 2011, 12:44

Re: Обозначение сварных швов в Tekla Structures

Сообщение djynar » 26 мар 2012, 10:54

Доброго дня всем! Сварку поставил заводскую. направление меняется- все здорово! не нравится что около каждого штриха появляется вопросительный знак, у всех такая проблема и как вылечить? Ребята молодцы все таки!!!

Аватара пользователя
vladimir_a
Сообщения: 699
Регистрация: 07 дек 2011, 21:22

Re: Обозначение сварных швов в Tekla Structures

Сообщение vladimir_a » 26 мар 2012, 10:55

djynar писал(а):Доброго дня всем! Сварку поставил заводскую. направление меняется- все здорово! не нравится что около каждого штриха появляется вопросительный знак, у всех такая проблема и как вылечить? Ребята молодцы все таки!!!
А на монтажную меняется? ;)

paps
Сообщения: 118
Регистрация: 13 янв 2012, 09:23

Re: Обозначение сварных швов в Tekla Structures

Сообщение paps » 27 мар 2012, 13:12

Прошу помощи у всех кому удалось нормально "завести" ВЕЛД АПП. Скачал и все сделал как описано ниже:

Alex » 22 мар 2012, 19:38

Может кому пригодится сварка под 18.0

SNS.Tekla.Utility.dll замените в папке C:\Windows\Microsoft.NET\assembly\GAC_MSIL\SNS.Tekla.Utility\v4.0_1.1.1.1__84c72cdce9cf2710

P/s:Как это отразится на сварке 17.0 не проверил еще.
ВЛОЖЕНИЯ
Сварка 18.0.rar
(60.18 КБ) Скачиваний: 11

Штрихи ставит, но не зеркалит и не меняет "заводской" на "монтажный". Штрихи направлены только налево или вниз, если нажимаешь на изменение направления штрихов ВЕЛД АПП зависает и закрыть удается только через диспетчер задач. WIN 7 x32, Tekla v18.0

Alex
Сообщения: 236
Регистрация: 01 дек 2011, 09:23
Контактная информация:

Re: Обозначение сварных швов в Tekla Structures

Сообщение Alex » 27 мар 2012, 21:05

Добрый день,
В 18 версии сам не работаю, приложение запустилось после того как скомпелировал под Текла 18.0.
Я решил, что все нормально. Все ошибки (совместимость с 17.0, перевороты штришков, пробел м/у последними штрихами) исправим скоро.
Счас заканчиваем один проект для Текла, думаю на следущей недели выложим новую версию утилиты про прорисовки швов.
Кстати свой завод похоже убедили обозначать сварку по iso (стандартная текловская сварка), что и всем советуем, т.к более информативно.
Администратор Topengineer.ru 8 (495) 215-07-79 (офис) ; 8 (925) 755-9316 (сот.); Skype: perezhog
Разработка КМД | Разработка КМ | Обучение Tekla Structures

Владимир Шнейдер
Сообщения: 291
Регистрация: 03 фев 2012, 17:29
Откуда: Днепропетровск

Re: Обозначение сварных швов в Tekla Structures

Сообщение Владимир Шнейдер » 27 мар 2012, 21:15

Alex писал(а):Добрый день,
В 18 версии сам не работаю, приложение запустилось после того как скомпелировал под Текла 18.0.
Я решил, что все нормально. Все ошибки (совместимость с 17.0, перевороты штришков, пробел м/у последними штрихами) исправим скоро.
Счас заканчиваем один проект для Текла, думаю на следущей недели выложим новую версию утилиты про прорисовки швов.
Кстати свой завод похоже убедили обозначать сварку по iso (стандартная текловская сварка), что и всем советуем, т.к более информативно.
Алексей, будем сильно ждать, так как сварка - одна из немногих вещей, которые сильно достают в Текле.
Тоже думаем над переходом на европейские стандарты, но надо сильное лобби для продавливания через директора-технолога-ОТК-сварщики-сборщики и т.д.

paps
Сообщения: 118
Регистрация: 13 янв 2012, 09:23

Re: Обозначение сварных швов в Tekla Structures

Сообщение paps » 28 мар 2012, 08:14

Спасибо Всем за отклики. Буду ждать обновления. А пока по старинке буду скидывать в автокад и СПДСом раставлять сварку (сроки горят по проекту).
P.S. Ребята МОЛОДЦЫ, что "подтягивают" теклу под нужды проектировщиков России.

Klim
Сообщения: 4
Регистрация: 23 мар 2012, 11:41

Re: Обозначение сварных швов в Tekla Structures

Сообщение Klim » 27 апр 2012, 11:16

Alex писал(а):Может кому пригодится сварка под 18.0

SNS.Tekla.Utility.dll замените в папке C:\Windows\Microsoft.NET\assembly\GAC_MSIL\SNS.Tekla.Utility\v4.0_1.1.1.1__84c72cdce9cf2710

P/s:Как это отразится на сварке 17.0 не проверил еще.
Если у меня 18 и до этого сварка не стояла? У меня просто нет такой папку в Microsoft.NET

Аватара пользователя
vladimir_a
Сообщения: 699
Регистрация: 07 дек 2011, 21:22

Re: Обозначение сварных швов в Tekla Structures

Сообщение vladimir_a » 27 апр 2012, 13:19

Klim писал(а):
Если у меня 18 и до этого сварка не стояла? У меня просто нет такой папку в Microsoft.NET
viewtopic.php?f=16&t=250#p1894

Аватара пользователя
ZMK
Сообщения: 187
Регистрация: 06 дек 2011, 05:34

Re: Обозначение сварных швов в Tekla Structures

Сообщение ZMK » 14 май 2012, 05:45

Alex писал(а):Вот еще плагин по прорисовке свари в чертежах.
Отличие в работе: мы как бы вшили функционал нашего приложения в теклу, теперь чтобы нарисовать сварной шов нужно нажать кнопочку и указать две точки, при этом не будут запускаться никакие приложения.
К тому же получили неожиданный результат - шов рисоваться стал блоком, как в автокаде (правда без возможности масштабировать).
Как поставить:
1. копируем SNS.Tekla.Utility в Tekla Structures\17.0\nt\bin\plugins
2. копируем картинки в Tekla Structures\17.0\nt\bitmaps
3. копируем WeldSymbols в папку symbols.
4. добавляем кнопочки на панель как на рисунке
5. если у вас уже была установленна weldApp то меняем SNS.Tekla.Utility.dll в папке C:\Windows\Microsoft.NET\assembly\GAC_MSIL\
А такую же но для 18 можно рабочий вариант сделать?
Поставил конечно на 18ую, работает но, не так как хочется.
Сделал как по пунктам, но изменил версию теклы. В принципе работает(сварку рисует причем только заводскую, поворачивает). Но вот что меня не устраивает:
1. расстояние м\у штрихами сварки не соответствует масштабу.
2. нельзя поменять тип сварки(монтажная\заводская).

Спасибо!
Вложения
сварка1.jpg

Аватара пользователя
vladimir_a
Сообщения: 699
Регистрация: 07 дек 2011, 21:22

Re: Обозначение сварных швов в Tekla Structures

Сообщение vladimir_a » 14 май 2012, 06:48

ZMK писал(а): А такую же но для 18 можно рабочий вариант сделать?

Спасибо!
Поставьте сварку установщиком ссылка на который в шапке темы
Вложения
сварка.jpg
Последний раз редактировалось vladimir_a 14 май 2012, 07:35, всего редактировалось 1 раз.

Аватара пользователя
ZMK
Сообщения: 187
Регистрация: 06 дек 2011, 05:34

Re: Обозначение сварных швов в Tekla Structures

Сообщение ZMK » 14 май 2012, 07:28

vla писал(а):
ZMK писал(а): А такую же но для 18 можно рабочий вариант сделать?

Спасибо!
Поставьте сварку установщиком ссылка на который в шапке темы
оу, не увидел во время установки SNS.Tekla.Utility. :roll:
Решился первый вопрос, а как менять тип сварки?

PS. Где хранятся настройки меню пользовательских панелей интерфейса?
Создаю панель, закрываю теклу, открываю, и нету панели. :evil:

Аватара пользователя
vladimir_a
Сообщения: 699
Регистрация: 07 дек 2011, 21:22

Re: Обозначение сварных швов в Tekla Structures

Сообщение vladimir_a » 14 май 2012, 07:30

Панель создают в режиме модели

Аватара пользователя
ZMK
Сообщения: 187
Регистрация: 06 дек 2011, 05:34

Re: Обозначение сварных швов в Tekla Structures

Сообщение ZMK » 14 май 2012, 07:43

vla писал(а):Панель создают в режиме модели
смотря какой интерфейс нужен, как я помню если нужно для модели, создают в модели. а если для чертежей то надо в чертежах создать...
как ни странно работает. но панель и в модели и в чертежах. :D

У Вас тоже не меняется тип сварки?

Аватара пользователя
vladimir_a
Сообщения: 699
Регистрация: 07 дек 2011, 21:22

Re: Обозначение сварных швов в Tekla Structures

Сообщение vladimir_a » 14 май 2012, 07:46

ZMK писал(а): У Вас тоже не меняется тип сварки?
Меняется без проблем.Только я пользуюсь другой утилитой. На скрине выше видно :)
Вложения
сварка1.jpg

Аватара пользователя
ZMK
Сообщения: 187
Регистрация: 06 дек 2011, 05:34

Re: Обозначение сварных швов в Tekla Structures

Сообщение ZMK » 14 май 2012, 07:58

vla писал(а):
ZMK писал(а): У Вас тоже не меняется тип сварки?
Меняется без проблем.Только я пользуюсь другой утилитой. На скрине выше видно :)
утилитой у меня тоже меняет...
был бы длл распакован, можно было бы попытаться самим добавить что то подобное:
Вложения
сварка2.jpg
хотелка )

Аватара пользователя
vladimir_a
Сообщения: 699
Регистрация: 07 дек 2011, 21:22

Re: Обозначение сварных швов в Tekla Structures

Сообщение vladimir_a » 14 май 2012, 08:04

Обратите внимание на этот пост viewtopic.php?f=6&t=95&p=2146#p936
Люди как то меняют символ. Сам начинал пользоваться этим, но так и не понял как менять символ

Владимир Шнейдер
Сообщения: 291
Регистрация: 03 фев 2012, 17:29
Откуда: Днепропетровск

Re: Обозначение сварных швов в Tekla Structures

Сообщение Владимир Шнейдер » 14 май 2012, 09:15

vla писал(а):Обратите внимание на этот пост viewtopic.php?f=6&t=95&p=2146#p936
Люди как то меняют символ. Сам начинал пользоваться этим, но так и не понял как менять символ
там нельзя поменять символ, только раз и навсегда. дело в том, что Алексей не делает монтажную сварку - у них нормальные объекты, поэтому не заморачилавлся с этой кнопкой.
Советую -ставьте последнюю утилиту. все кнопки из утилиты сделаны в виде горячих клавиш - то есть просто нажимаете Ctrl-A или Alt-A - и рисуете, не надо переключаться в приложение и назад. это даже удобнее, чем кнопки на панели.

Аватара пользователя
Таран Д. А.
Администратор
Сообщения: 2877
Регистрация: 30 ноя 2011, 18:41
Откуда: г. Москва
Контактная информация:

Re: Обозначение сварных швов в Tekla Structures

Сообщение Таран Д. А. » 14 май 2012, 09:59

В последнем обновлении сварка не символ а просо линия. Поэтому стала клонироваться отлично.
Обновление есть в заголовке темы. Буду обновлять раздачу именно там.

Аватара пользователя
vladimir_a
Сообщения: 699
Регистрация: 07 дек 2011, 21:22

Re: Обозначение сварных швов в Tekla Structures

Сообщение vladimir_a » 09 авг 2012, 22:03

Таран Д. А. писал(а):В последнем обновлении сварка не символ а просо линия. Поэтому стала клонироваться отлично.
Обновление есть в заголовке темы. Буду обновлять раздачу именно там.
Ребята спасибо вам. Сварка нормально работает и клонируется отлично :)

Константин
Сообщения: 148
Регистрация: 14 авг 2012, 09:59
Откуда: Луганск, Ессентуки
Контактная информация:

Re: Обозначение сварных швов в Tekla Structures

Сообщение Константин » 15 авг 2012, 10:16

Доброго времени суток.
Если я правильно понял то для того чтобы сварка на чертежах проставлялась как реснички и крестики необходимо скачать файлы с начала ветки, установить их на комп с указанием места расположения папки с TEKLой и будет счастье? или я чето неправильно понял? вчера попробовал а сварка осталась как и была. Или еще надо где-то подстраивать?

Владимир Шнейдер
Сообщения: 291
Регистрация: 03 фев 2012, 17:29
Откуда: Днепропетровск

Re: Обозначение сварных швов в Tekla Structures

Сообщение Владимир Шнейдер » 15 авг 2012, 10:18

нет, неправильно поняли. Счастья не будет.
Программа лишь дает возможность наносить сварку на чертеж. Сварка прорисовывается вручную -- каждый сварочный шов - отдельно. По времени занимает процентов 20-30% от общего времени работы над проектом

Константин
Сообщения: 148
Регистрация: 14 авг 2012, 09:59
Откуда: Луганск, Ессентуки
Контактная информация:

Re: Обозначение сварных швов в Tekla Structures

Сообщение Константин » 15 авг 2012, 10:25

Сварочные швы прорисовывал руками до установки програмки. инструментом "создать сварочный шов к детали" TEKLA18
Или имеется ввиду что в режиме радактирования чертежей снова "обвариваются" все стыки той сваркой которой надо? или программа сама считывает из модели тип, катет и вид шва? Наносить шов надо какимто особым инструментом или "создание сварного шва по многоугольнику" подойдет? и шов создается только в рабочей плоскости?

Владимир Шнейдер
Сообщения: 291
Регистрация: 03 фев 2012, 17:29
Откуда: Днепропетровск

Re: Обозначение сварных швов в Tekla Structures

Сообщение Владимир Шнейдер » 15 авг 2012, 13:45

Константин писал(а):Сварочные швы прорисовывал руками до установки програмки. инструментом "создать сварочный шов к детали" TEKLA18
Или имеется ввиду что в режиме радактирования чертежей снова "обвариваются" все стыки той сваркой которой надо? или программа сама считывает из модели тип, катет и вид шва? Наносить шов надо какимто особым инструментом или "создание сварного шва по многоугольнику" подойдет? и шов создается только в рабочей плоскости?
именно в чертеже по новой все обрисовывается. связи со швом в модели никакой, так что можете его в модели не отрисовывать точно.
Кстати, не тормозит модель с большим числом сварок, нарисованных в модели? Мы попробовали и отказались сварку делать в модели, так как модель сильно замедлялась

pdimav
Сообщения: 243
Регистрация: 16 янв 2012, 19:07

Re: Обозначение сварных швов в Tekla Structures

Сообщение pdimav » 15 авг 2012, 14:14

Внесу немного критики про все эти "приблуды" по поводу сварки:
1. Ни разу не ставил этот макрос (примерно знал как он работает, т.к. несколько лет назад уже видел такое детище) и вот тут подумал, дайка скачаю...может появилось что то "новое". Но ничего нового не увидел. Принцип построения этой сварки остался тем же.
1.1. Если отказаться от проставления сварки в модели (хотя считаю этот метод неправильным), то на мой взгляд было бы логичнее создать свои типы линий с крестиками и ресничками (по аналогии как в Автокаде). Этот способ на голову выше предложенного.
2. Самый идеальный случай прорисовки сварки это: простановки сварки в модели! плюс задание ей свойств(характеристик) по ГОСТу для дальнейшего отображения их в Ведомости сварных швов.
2.1. Видовал один плагин, который автоматом отрисовывал сварку(реснички и крестики) на чертеже согласно сварке проставленной в модели. Этот метод считаю лучшим вариантом!
2.2. НО!..и не исключаю другого варианта (на мой взгляд более правильного): простановка сварных швов в модели с последующим выводом их на чертеже средствами Теклы (выноски) или доп. плагинами по ГОСТу. В данном случае хотелось бы видеть на выноске маркер катета и тип сварного шва по ГОСТу.
pdimav1979(не собака)yandex.ru

Константин
Сообщения: 148
Регистрация: 14 авг 2012, 09:59
Откуда: Луганск, Ессентуки
Контактная информация:

Re: Обозначение сварных швов в Tekla Structures

Сообщение Константин » 15 авг 2012, 15:21

эх, а я то думал....
в принципе я согласен с pdimav почему не сделать так чтобы обварил в модели как надо и в чертеже машина сама уже проставила обозначение сварки как надо.
а если проставлять на чертеже то как запускать? отдельно кнопку выводить?
у меня машина в принципе слабая поэтому прога по сравнению с автокадом работает медленее и я пока не чувствую разницы со сваркой или нет....

Аватара пользователя
Таран Д. А.
Администратор
Сообщения: 2877
Регистрация: 30 ноя 2011, 18:41
Откуда: г. Москва
Контактная информация:

Re: Обозначение сварных швов в Tekla Structures

Сообщение Таран Д. А. » 15 авг 2012, 17:47

pdimav писал(а):Внесу немного критики про все эти "приблуды" по поводу сварки:
1. Ни разу не ставил этот макрос (примерно знал как он работает, т.к. несколько лет назад уже видел такое детище) и вот тут подумал, дайка скачаю...может появилось что то "новое". Но ничего нового не увидел. Принцип построения этой сварки остался тем же.

1.1. Если отказаться от проставления сварки в модели (хотя считаю этот метод неправильным), то на мой взгляд было бы логичнее создать свои типы линий с крестиками и ресничками (по аналогии как в Автокаде). Этот способ на голову выше предложенного.

2. Самый идеальный случай прорисовки сварки это: простановки сварки в модели! плюс задание ей свойств(характеристик) по ГОСТу для дальнейшего отображения их в Ведомости сварных швов.

2.1. Видовал один плагин, который автоматом отрисовывал сварку(реснички и крестики) на чертеже согласно сварке проставленной в модели. Этот метод считаю лучшим вариантом!

2.2. НО!..и не исключаю другого варианта (на мой взгляд более правильного): простановка сварных швов в модели с последующим выводом их на чертеже средствами Теклы (выноски) или доп. плагинами по ГОСТу. В данном случае хотелось бы видеть на выноске маркер катета и тип сварного шва по ГОСТу.
1.Изменения есть но они не значительны, ибо задачу еще более упросить не получается. Если есть идеи как то пишите постараемся реализовать. Сделать одну красную кнопку "чертить все" не обещаем. Нужны более конкретные идеи.

1.1 А в чем будет разница? И как вы будете указывать сторону слева или справа от линии рисовать?

2. Доступ к системным сваркам ограничен на уровне программирования насмерть. Изменить там пока не представляется физически возможным. Будем ждать может буржуи переделают под Россию. (Думаю ждать придется ОЧЕНЬ долго).

2.1 Пробовали и тестировали. Есть 3 минуса которые убивают насмерть все плюсы.
a) Прорисовка сварки по катету это совсем другая системная задача чем обозначение сварки без указания линии по которой идет сварка. Это на пальцах не просто объяснить. Самое главное что сварка проставленная с помощи инструмента ”Создать сварной шов по ломанной линии” тормозит просто безбожно. При модели более 100 тонн не справляются даже самые мощные компьютеры. При указании сварки инструментом ”Сварной шов между деталями” тормозов нет, но такой инструмент работает совсем иначе и не подходит для этого метода.
б) прорисовка сварки твердотельно намного более трудозатрата.
в) утилита которая отрисовывает потом все это на чертеже имеет много своих недостатков с наложением ресничек от прозрачных деталей или других видимых объектов. Грубо говоря настраивается она из рук вон плохо и только 60% чертежей не требуют дальнейшей коррекции.

2.2 При таком подходе используется инструмент ”Создать сварной шов по ломанной линии”. Опять же возвращаемся к проблемам в пункте 2.1
Вывод. На данный момент проставлять ресички руками - единственные действенный метод

Владимир Шнейдер
Сообщения: 291
Регистрация: 03 фев 2012, 17:29
Откуда: Днепропетровск

Re: Обозначение сварных швов в Tekla Structures

Сообщение Владимир Шнейдер » 15 авг 2012, 22:18

Согласен с Димой. Мы пробовали сварку на модели моста. На верхнем поясе главных балок были гибкие анкера, которые приварили к балкам. Так просто скопировать балку с анкерами (я уже не говорю о чертежах и т.п.) - занимало полчаса на хорошем компьютере. Поэтому точная сварка в модели для объемных объектов - пока утопия.

Есть другой способ = отказаться от ресничек административно. Например, то, что я видел - в Израиле сварку вообще не показывают на чертежах. Даже выносками по Iso. Только отдельные швы. Все остальное считается приваренным по умолчанию, с катетом равным минимальной толщине (указывается в примечании к чертежу).

pdimav
Сообщения: 243
Регистрация: 16 янв 2012, 19:07

Re: Обозначение сварных швов в Tekla Structures

Сообщение pdimav » 16 авг 2012, 07:11

Дмитрий, Владимир...спасибо за разъяснения!
Значит мы идем по утопичному пути...и модели у нас под 1000т и более бывают...и очень тормозят (со сваркой в частности)!
Удачи!
Про "не показывать сварку на чертежах" тоже была такая идея, с соответствующим примечанием...но дальше разговоров дело не пошло!
pdimav1979(не собака)yandex.ru

Константин
Сообщения: 148
Регистрация: 14 авг 2012, 09:59
Откуда: Луганск, Ессентуки
Контактная информация:

Re: Обозначение сварных швов в Tekla Structures

Сообщение Константин » 16 авг 2012, 08:12

Ребят, так а как програмку то запускать?

Аватара пользователя
Таран Д. А.
Администратор
Сообщения: 2877
Регистрация: 30 ноя 2011, 18:41
Откуда: г. Москва
Контактная информация:

Re: Обозначение сварных швов в Tekla Structures

Сообщение Таран Д. А. » 16 авг 2012, 10:39

Константин писал(а):Ребят, так а как програмку то запускать?
Просто запусти :)

Константин
Сообщения: 148
Регистрация: 14 авг 2012, 09:59
Откуда: Луганск, Ессентуки
Контактная информация:

Re: Обозначение сварных швов в Tekla Structures

Сообщение Константин » 16 авг 2012, 11:09

запустил, она установилась запросив путь к Teklе, а вот уже в режиме редактирования чертежа как ее запукать чет не врублюсь. или:
"просто нажимаете Ctrl-A или Alt-A - и рисуете, не надо переключаться в приложение и назад. это даже удобнее, чем кнопки на панели."

Аватара пользователя
ZMK
Сообщения: 187
Регистрация: 06 дек 2011, 05:34

Re: Обозначение сварных швов в Tekla Structures

Сообщение ZMK » 16 авг 2012, 19:09

Константин писал(а):запустил, она установилась запросив путь к Teklе, а вот уже в режиме редактирования чертежа как ее запукать чет не врублюсь. или:
"просто нажимаете Ctrl-A или Alt-A - и рисуете, не надо переключаться в приложение и назад. это даже удобнее, чем кнопки на панели."
в макросах найди weldapp18(17) и запусти

Константин
Сообщения: 148
Регистрация: 14 авг 2012, 09:59
Откуда: Луганск, Ессентуки
Контактная информация:

Re: Обозначение сварных швов в Tekla Structures

Сообщение Константин » 17 авг 2012, 08:44

Спасибо

Константин
Сообщения: 148
Регистрация: 14 авг 2012, 09:59
Откуда: Луганск, Ессентуки
Контактная информация:

Re: Обозначение сварных швов в Tekla Structures

Сообщение Константин » 20 авг 2012, 08:31

Почти получилось. В макросах WeildApp18 почемуто не нашелся. Нашел его закопаным в одной из папок программы и вытащил ярлык на рабочий стол. При открытой модели запустил через ярлык. В режиме редактирования чертежа при выборе типа шва и катета TEKLA задает вопрос с предложением указать первую и вторую точки линии сварного шва. На этом все..... На чертеже пусто :( сначала подумал что масштаб не тот, поставил масштаб вида, безрезультатно. Попутно еще вопросы: програмка ставит только видимые швы или невидимые тоже? завершение отрисовки линии нажимать колесико или Enter?

Alex
Сообщения: 236
Регистрация: 01 дек 2011, 09:23
Контактная информация:

Re: Обозначение сварных швов в Tekla Structures

Сообщение Alex » 20 авг 2012, 08:52

Если установщик поставил программу и у вас нет макроса и ничего не чертится,
то мое предположение - у вас текла стоит не в С:\ , а в C:\Program Files.
Поищете WeldSymbols.sym и положите в нужную папку.

P/s завтра выложу обновленную версию, шов будет рисоваться по 3-м точкам, 3-я точка будет показывать направление шва.
Администратор Topengineer.ru 8 (495) 215-07-79 (офис) ; 8 (925) 755-9316 (сот.); Skype: perezhog
Разработка КМД | Разработка КМ | Обучение Tekla Structures

Константин
Сообщения: 148
Регистрация: 14 авг 2012, 09:59
Откуда: Луганск, Ессентуки
Контактная информация:

Re: Обозначение сварных швов в Tekla Structures

Сообщение Константин » 20 авг 2012, 11:40

собствеено говоря да, простите не придал этому значения. имеется ввиду в папку с макросами?

Аватара пользователя
Таран Д. А.
Администратор
Сообщения: 2877
Регистрация: 30 ноя 2011, 18:41
Откуда: г. Москва
Контактная информация:

Re: Обозначение сварных швов в Tekla Structures

Сообщение Таран Д. А. » 20 авг 2012, 11:47

Константин писал(а):собствеено говоря да, простите не придал этому значения. имеется ввиду в папку с макросами?
В папку ...Tekla Structures\17.0\environments\KMD_RUS_v2\symbols
Но когда у вас стоит текла не в корне у Вас будут проблемы с поиском этой папки. Там все усложняется папками пользователей и разной разрядностью

Константин
Сообщения: 148
Регистрация: 14 авг 2012, 09:59
Откуда: Луганск, Ессентуки
Контактная информация:

Re: Обозначение сварных швов в Tekla Structures

Сообщение Константин » 21 авг 2012, 08:13

Чето не нашел я эту папку. ладно, закончу уже так как есть первый свой проект. потом сяду покопаюсь с настройками чертежей и таблиц, заодно и с толщинами линий разберусь, сваркой и переставлю в корень теклу.....

Константин
Сообщения: 148
Регистрация: 14 авг 2012, 09:59
Откуда: Луганск, Ессентуки
Контактная информация:

Re: Обозначение сварных швов в Tekla Structures

Сообщение Константин » 28 авг 2012, 21:04

Переставил программу TEKLA в корень. Установил Weildapp. Макрос нашел в разделе создания чертежей. Запустил. Програмка вроде работает. В строке состояния просит указать первую точку шва потом вторую. Заканчивал и нажатием колесика и нажатием Enter только бестолку, сварку не показывает :( в итоге еще и ошибку выдала....
Вложения
See the end of this message for details on invoking.doc
Текст ошибки
(32 КБ) 2190 скачиваний
Сообщение системы.jpg

Константин
Сообщения: 148
Регистрация: 14 авг 2012, 09:59
Откуда: Луганск, Ессентуки
Контактная информация:

Re: Обозначение сварных швов в Tekla Structures

Сообщение Константин » 31 авг 2012, 09:01

Вчера поставил сварку с этого поста
Alex писал(а):Может кому пригодится сварка под 18.0

SNS.Tekla.Utility.dll замените в папке C:\Windows\Microsoft.NET\assembly\GAC_MSIL\SNS.Tekla.Utility\v4.0_1.1.1.1__84c72cdce9cf2710

P/s:Как это отразится на сварке 17.0 не проверил еще.
а она не работает.... :( тоесть макрос через меню запускается, окошко появляется, вродебы линия рисуется (просит показать первую и вторую точки шва) но вот само обозначение сварки не появляется :(
и че ей надо? может я не с тем бубном прыгаю вокруг?
сварка будет работать на любом чертеже или только на вновь созданом?

Alex
Сообщения: 236
Регистрация: 01 дек 2011, 09:23
Контактная информация:

Re: Обозначение сварных швов в Tekla Structures

Сообщение Alex » 31 авг 2012, 11:43

Если у вас запускается сама програмка, и вы можете указать первую и вторую точку но при этом ничего не рисуется, то причина одна.
Сварка " штришки и крестики" сделаны символами, так как символ клонируется хорошо.
Символы сварки хранятся в файле WeldSymbols.sym.
Соответственно к примеру у меня, этот файл хранится в Tekla Structures\17.0\environments\KMD_RUS_v2\symbols.
И в настройках среды стоит: set DXK_SYMBOLPATH=%XS_DIR%\environments\KMD_RUS_v2\symbols\
Проверьте откуда в настройках Теклау вас берутся символы и положите туда файл WeldSymbols.sym.
Администратор Topengineer.ru 8 (495) 215-07-79 (офис) ; 8 (925) 755-9316 (сот.); Skype: perezhog
Разработка КМД | Разработка КМ | Обучение Tekla Structures

Константин
Сообщения: 148
Регистрация: 14 авг 2012, 09:59
Откуда: Луганск, Ессентуки
Контактная информация:

Re: Обозначение сварных швов в Tekla Structures

Сообщение Константин » 03 сен 2012, 08:38

Спасибо большое. Все получилось. Счастье есть!!!!!! :))))))

VETROV
Сообщения: 12
Регистрация: 14 май 2012, 00:27

Re: Обозначение сварных швов в Tekla Structures

Сообщение VETROV » 05 сен 2012, 01:23

Всем привет хотел спросить у меня 17.0 текла кмд рус 1 у меня старого образца weld app еще давно кача сейчас скачал новый поставил в макросах пишет что вроде 17 открывается старая версия

Аватара пользователя
vladimir_a
Сообщения: 699
Регистрация: 07 дек 2011, 21:22

Re: Обозначение сварных швов в Tekla Structures

Сообщение vladimir_a » 05 сен 2012, 08:27

VETROV писал(а):Всем привет хотел спросить у меня 17.0 текла кмд рус 1 у меня старого образца weld app еще давно кача сейчас скачал новый поставил в макросах пишет что вроде 17 открывается старая версия
надпись вот такая должна быть
Вложения
weldapp.png

VETROV
Сообщения: 12
Регистрация: 14 май 2012, 00:27

Re: Обозначение сварных швов в Tekla Structures

Сообщение VETROV » 05 сен 2012, 09:06

НАШЕЛ ТАКУЮ НАДПИСЬ В ЧЕРТЕЖАХ НАЖИМАЮ ПИШЕТ ЧТО НА СКРИНЕ МОЖЕТ НЕ ТУДА УСТАНОВИЛ
Последний раз редактировалось VETROV 05 сен 2012, 09:35, всего редактировалось 1 раз.

Аватара пользователя
vladimir_a
Сообщения: 699
Регистрация: 07 дек 2011, 21:22

Re: Обозначение сварных швов в Tekla Structures

Сообщение vladimir_a » 05 сен 2012, 09:32

VETROV писал(а):А КУДА НАДО ИНСТАЛИТЬ ЧТО БЫ КОНКРЕТНО В МАКРОСАХ ПОЯВИЛАСЬ Я ЕЕ В ПАПКУ СРЕДЫ ПРОИНСТАЛИРОВАЛ В ПАПКЕ СРЕДЫ ОНА ЕСТЬ И ИЗ НЕЕ ЗАПУСКАЕТСЯ
МЫ ДЕЛАЛИ ТАК: УСТАНАВЛИВАЛИ В НОВУЮ ПАПКУ. А ОТТУДА УЖЕ КОПИРОВАЛИ В СООТВЕТСТВУЮЩИЕ ПАПКИ СРЕДЫ ;)
И В ПАПКУ COMMON ТОЖЕ КОПИРОВАЛИ

VETROV
Сообщения: 12
Регистрация: 14 май 2012, 00:27

Re: Обозначение сварных швов в Tekla Structures

Сообщение VETROV » 05 сен 2012, 09:43

Спасибо получилось живем :D

Alex
Сообщения: 236
Регистрация: 01 дек 2011, 09:23
Контактная информация:

Re: Обозначение сварных швов в Tekla Structures

Сообщение Alex » 14 сен 2012, 11:16

сварка по 3 точкам, третья точка это направление штрихов
Вложения
Сварка по трем точкам.zip
(156.62 КБ) 1083 скачивания
Администратор Topengineer.ru 8 (495) 215-07-79 (офис) ; 8 (925) 755-9316 (сот.); Skype: perezhog
Разработка КМД | Разработка КМ | Обучение Tekla Structures

Аватара пользователя
vladimir_a
Сообщения: 699
Регистрация: 07 дек 2011, 21:22

Re: Обозначение сварных швов в Tekla Structures

Сообщение vladimir_a » 14 сен 2012, 11:25

Alex писал(а):сварка по 3 точкам, третья точка это направление штрихов
Danke

maxcim856
Сообщения: 49
Регистрация: 07 мар 2012, 17:47

Re: Обозначение сварных швов в Tekla Structures

Сообщение maxcim856 » 16 сен 2012, 10:19

Подскажите, что делать с файлами в архиве "Сварка по трем точкам"?

Аватара пользователя
vladimir_a
Сообщения: 699
Регистрация: 07 дек 2011, 21:22

Re: Обозначение сварных швов в Tekla Structures

Сообщение vladimir_a » 16 сен 2012, 10:57

maxcim856 писал(а):Подскажите, что делать с файлами в архиве "Сварка по трем точкам"?
Запускай WeldApp.exe и работай ;)

Alex
Сообщения: 236
Регистрация: 01 дек 2011, 09:23
Контактная информация:

Re: Обозначение сварных швов в Tekla Structures

Сообщение Alex » 17 сен 2012, 08:24

В предыдущей версии был баг в отрисовки вертикальных швов.
Сейчас вроде все адекватно работает.
Вложения
Сварка 18.rar
(124.87 КБ) 1706 скачиваний
Сварка 17.rar
(124.86 КБ) 1778 скачиваний
Администратор Topengineer.ru 8 (495) 215-07-79 (офис) ; 8 (925) 755-9316 (сот.); Skype: perezhog
Разработка КМД | Разработка КМ | Обучение Tekla Structures

Аватара пользователя
Таран Д. А.
Администратор
Сообщения: 2877
Регистрация: 30 ноя 2011, 18:41
Откуда: г. Москва
Контактная информация:

Re: Обозначение сварных швов в Tekla Structures

Сообщение Таран Д. А. » 17 сен 2012, 11:45

Обновил раздачу в теме сообщения

pdimav
Сообщения: 243
Регистрация: 16 янв 2012, 19:07

Re: Обозначение сварных швов в Tekla Structures

Сообщение pdimav » 17 сен 2012, 13:12

..а можете под 15 скомпелить?
pdimav1979(не собака)yandex.ru

Аватара пользователя
Таран Д. А.
Администратор
Сообщения: 2877
Регистрация: 30 ноя 2011, 18:41
Откуда: г. Москва
Контактная информация:

Re: Обозначение сварных швов в Tekla Structures

Сообщение Таран Д. А. » 17 сен 2012, 13:15

pdimav писал(а):..а можете под 15 скомпелить?
В 15 версии нельзя делать программу плагин.
Так что скомпилить просто не получится.

pdimav
Сообщения: 243
Регистрация: 16 янв 2012, 19:07

Re: Обозначение сварных швов в Tekla Structures

Сообщение pdimav » 17 сен 2012, 13:44

Я бы был доволен если бы Вы скомпилировали как просто программу...используя библиотеки от 15 версии!
А я бы вызвал ее с помощью макроса..
pdimav1979(не собака)yandex.ru

Аватара пользователя
Таран Д. А.
Администратор
Сообщения: 2877
Регистрация: 30 ноя 2011, 18:41
Откуда: г. Москва
Контактная информация:

Re: Обозначение сварных швов в Tekla Structures

Сообщение Таран Д. А. » 17 сен 2012, 14:06

pdimav писал(а):Я бы был доволен если бы Вы скомпилировали как просто программу...используя библиотеки от 15 версии!
А я бы вызвал ее с помощью макроса..
До 17 версии даже невозможно получить от вида его масштаб .. Так что не получится опуститьдаже до 16 версии
Размеры засечек вычисляются как раз из него.. Так что просто не получится переделать. Надо менять всю логику.
Знаю что у ребят с Белгородского ЗМК была сварка ресничками под 16 версию.. Попросу может кто поделится.
У нас дже 16 версии теклы нет мы покупали сразу 17 (все на лицензии) так что у меня нет даже DLL от 16

pdimav
Сообщения: 243
Регистрация: 16 янв 2012, 19:07

Re: Обозначение сварных швов в Tekla Structures

Сообщение pdimav » 17 сен 2012, 14:26

Ясно! под 16 не нужно, спасибо. Ее у нас нет! Будем ждать 19 и покупать ее:)
pdimav1979(не собака)yandex.ru

Аватара пользователя
Таран Д. А.
Администратор
Сообщения: 2877
Регистрация: 30 ноя 2011, 18:41
Откуда: г. Москва
Контактная информация:

Re: Обозначение сварных швов в Tekla Structures

Сообщение Таран Д. А. » 20 сен 2012, 13:49

Новая версия утилиты сварки!
Обновил раздачу.
Теперь направление штрихов рисуется сразу правельное по трем точкам.

iStrix
Сообщения: 16
Регистрация: 23 авг 2012, 05:09

Re: Обозначение сварных швов в Tekla Structures

Сообщение iStrix » 28 сен 2012, 17:05

А кто как решает вопрос с простановкой условного обозначения сварных катетов, при виде сбоку? для себя нашел решение - создал символ и поворачиваю его... есть ли более рациональные способы? а вообще было бы чудесно если бы в утиле по сварке появилась возможность их проставлять :)
Вложения
один из миллиона).png
один из миллиона).png (10.38 КБ) 54545 просмотров

FerZ_174
Сообщения: 12
Регистрация: 26 окт 2012, 14:38

Re: Обозначение сварных швов в Tekla Structures

Сообщение FerZ_174 » 26 окт 2012, 14:45

Всем привет! При установке сварки процесс сам идет, алгоритм внутри работает, но сами "реснички", "крестики" не отображаются. В чем может быть дело?

Андрей Мисюра
Сообщения: 63
Регистрация: 07 апр 2012, 23:06

Re: Обозначение сварных швов в Tekla Structures

Сообщение Андрей Мисюра » 26 окт 2012, 15:41

Скопируй этот файл в папку Symbols.
Вложения
WeldSymbols.rar
(538 байт) 1077 скачиваний

FerZ_174
Сообщения: 12
Регистрация: 26 окт 2012, 14:38

Re: Обозначение сварных швов в Tekla Structures

Сообщение FerZ_174 » 29 окт 2012, 08:56

Андрей Мисюра, спасибо за файл.

Таран Д. А. - ребят спасибо за сварку!

Alex
Сообщения: 236
Регистрация: 01 дек 2011, 09:23
Контактная информация:

Re: Обозначение сварных швов в Tekla Structures

Сообщение Alex » 08 ноя 2012, 12:26

Сварка для тех кто перешел на 18.1
Вложения
18.1.zip
(164.8 КБ) 2191 скачивание
Администратор Topengineer.ru 8 (495) 215-07-79 (офис) ; 8 (925) 755-9316 (сот.); Skype: perezhog
Разработка КМД | Разработка КМ | Обучение Tekla Structures

Gennadiy081080
Сообщения: 5
Регистрация: 17 окт 2012, 14:31

Re: Обозначение сварных швов в Tekla Structures

Сообщение Gennadiy081080 » 14 ноя 2012, 06:19

Владимир Шнейдер писал(а):Согласен с Димой. Мы пробовали сварку на модели моста. На верхнем поясе главных балок были гибкие анкера, которые приварили к балкам. Так просто скопировать балку с анкерами (я уже не говорю о чертежах и т.п.) - занимало полчаса на хорошем компьютере. Поэтому точная сварка в модели для объемных объектов - пока утопия.

Есть другой способ = отказаться от ресничек административно. Например, то, что я видел - в Израиле сварку вообще не показывают на чертежах. Даже выносками по Iso. Только отдельные швы. Все остальное считается приваренным по умолчанию, с катетом равным минимальной толщине (указывается в примечании к чертежу).
На нашем предприятии я такую систему отношения к сварке и внедряю, а произошло это после того как на нашем заводе по чертежам КМД стороннего разработчика, где к сварке и было такое отношение о котором пишется выше, изготовили все конструкции без всяких проблем.

Владимир Шнейдер
Сообщения: 291
Регистрация: 03 фев 2012, 17:29
Откуда: Днепропетровск

Re: Обозначение сварных швов в Tekla Structures

Сообщение Владимир Шнейдер » 14 ноя 2012, 16:47

Gennadiy081080 писал(а):
Владимир Шнейдер писал(а):Согласен с Димой. Мы пробовали сварку на модели моста. На верхнем поясе главных балок были гибкие анкера, которые приварили к балкам. Так просто скопировать балку с анкерами (я уже не говорю о чертежах и т.п.) - занимало полчаса на хорошем компьютере. Поэтому точная сварка в модели для объемных объектов - пока утопия.

Есть другой способ = отказаться от ресничек административно. Например, то, что я видел - в Израиле сварку вообще не показывают на чертежах. Даже выносками по Iso. Только отдельные швы. Все остальное считается приваренным по умолчанию, с катетом равным минимальной толщине (указывается в примечании к чертежу).
На нашем предприятии я такую систему отношения к сварке и внедряю, а произошло это после того как на нашем заводе по чертежам КМД стороннего разработчика, где к сварке и было такое отношение о котором пишется выше, изготовили все конструкции без всяких проблем.
То есть вообще без указания сварки? Распишите, как все прошло - у нас идет такое жесткое неприятие, когда пытаемся что-то менять...

Gennadiy081080
Сообщения: 5
Регистрация: 17 окт 2012, 14:31

Re: Обозначение сварных швов в Tekla Structures

Сообщение Gennadiy081080 » 16 ноя 2012, 05:18

Владимир Шнейдер писал(а):
Gennadiy081080 писал(а):
Владимир Шнейдер писал(а):Согласен с Димой. Мы пробовали сварку на модели моста. На верхнем поясе главных балок были гибкие анкера, которые приварили к балкам. Так просто скопировать балку с анкерами (я уже не говорю о чертежах и т.п.) - занимало полчаса на хорошем компьютере. Поэтому точная сварка в модели для объемных объектов - пока утопия.

Есть другой способ = отказаться от ресничек административно. Например, то, что я видел - в Израиле сварку вообще не показывают на чертежах. Даже выносками по Iso. Только отдельные швы. Все остальное считается приваренным по умолчанию, с катетом равным минимальной толщине (указывается в примечании к чертежу).
На нашем предприятии я такую систему отношения к сварке и внедряю, а произошло это после того как на нашем заводе по чертежам КМД стороннего разработчика, где к сварке и было такое отношение о котором пишется выше, изготовили все конструкции без всяких проблем.
То есть вообще без указания сварки? Распишите, как все прошло - у нас идет такое жесткое неприятие, когда пытаемся что-то менять...
В рабочем порядке все двигается. У нас небольшое предприятие, примерно 200 тонн в месяц, 55 тонн конструкций без обозначения сварки в виде штрихов и крестиков уже смонтировано, нареканий нет. Неприятие изменений - это проблема крупных предприятий, когда не люди меняют предприятие а оно их. Просто здесь влияет чистая экономика, конструктор рисуя штрихи и крестики тратит на них примерно 20% времени, следовательно на предприятии где отказались от этого конструкторский отдел выдаст на 20 процентов больше документации, а иногда бывают очень сжатые сроки, так что думаю это оправданно.

Аватара пользователя
Таран Д. А.
Администратор
Сообщения: 2877
Регистрация: 30 ноя 2011, 18:41
Откуда: г. Москва
Контактная информация:

Re: Обозначение сварных швов в Tekla Structures

Сообщение Таран Д. А. » 26 ноя 2012, 16:00

Анонс новой функции УДАЛЕНИЕ ВСЕГО ШВА 1 КНОПКОЙ
Теперь если вы случайно провели шов не по той линии не надо много раз нажимать CTRL+Z, одним нажатием на значек урны удаляется весь шов любой длинны.
Новая сварка.jpg
Новая сварка.jpg (65.95 КБ) 52485 просмотров

VETROV
Сообщения: 12
Регистрация: 14 май 2012, 00:27

Re: Обозначение сварных швов в Tekla Structures

Сообщение VETROV » 26 дек 2012, 05:51

Скачал сварку для 18,1 Сделал все что написано в установке установил в среду КМД2
- WeldApp.bmp WldApp_big.bmp и WeldApp.cs копируем в папку .......\macros\drawings, в зависимости от среды проектирования.
- WeldSymbols.sym копируем в .....\symbols в зависимости от среды проектирования.
В макросах ее нет ее отдельно запускать надо и куда остальные файлы класть??? Можно поподробнее написать про установку???

Аватара пользователя
Таран Д. А.
Администратор
Сообщения: 2877
Регистрация: 30 ноя 2011, 18:41
Откуда: г. Москва
Контактная информация:

Re: Обозначение сварных швов в Tekla Structures

Сообщение Таран Д. А. » 26 дек 2012, 12:01

VETROV писал(а):Скачал сварку для 18,1 Сделал все что написано в установке установил в среду КМД2
- WeldApp.bmp WldApp_big.bmp и WeldApp.cs копируем в папку .......\macros\drawings, в зависимости от среды проектирования.
- WeldSymbols.sym копируем в .....\symbols в зависимости от среды проектирования.
В макросах ее нет ее отдельно запускать надо и куда остальные файлы класть??? Можно поподробнее написать про установку???
Это не макросы
432.png
432.png (5.55 КБ) 51167 просмотров

rka
Сообщения: 100
Регистрация: 11 янв 2012, 12:19
Откуда: Курган

Re: Обозначение сварных швов в Tekla Structures

Сообщение rka » 22 янв 2013, 21:25

Выложите пожалуйста WeldApp c удалением сварных швов.
Просьба добавить:
1. Создание совместно с указанием сварки вырисовывание дополнительных ресничек в обратную сторону на заданном расстоянии или считыванием расстояния с толщины указанной детали.
2. Создание сварных швов по ломанной линии.

Alex
Сообщения: 236
Регистрация: 01 дек 2011, 09:23
Контактная информация:

Re: Обозначение сварных швов в Tekla Structures

Сообщение Alex » 16 мар 2013, 12:32

Сварка Tekla Structures 19.0
Вложения
19.0.rar
(158.01 КБ) 2849 скачиваний
Администратор Topengineer.ru 8 (495) 215-07-79 (офис) ; 8 (925) 755-9316 (сот.); Skype: perezhog
Разработка КМД | Разработка КМ | Обучение Tekla Structures

Аватара пользователя
Таран Д. А.
Администратор
Сообщения: 2877
Регистрация: 30 ноя 2011, 18:41
Откуда: г. Москва
Контактная информация:

Re: Обозначение сварных швов в Tekla Structures

Сообщение Таран Д. А. » 18 мар 2013, 09:02

Alex писал(а):Сварка Tekla Structures 19.0
Добавил в раздачу

Владимир Шнейдер
Сообщения: 291
Регистрация: 03 фев 2012, 17:29
Откуда: Днепропетровск

Re: Обозначение сварных швов в Tekla Structures

Сообщение Владимир Шнейдер » 21 мар 2013, 18:15

А можно скомпилировать версию для 17-ой теклы с функцией удаления шва одной кнопкой?
И еще - большая просьба расписать горячие клавиши - какая комбинация за что отвечает, а то не могу подобрать

Андрей Мисюра
Сообщения: 63
Регистрация: 07 апр 2012, 23:06

Re: Обозначение сварных швов в Tekla Structures

Сообщение Андрей Мисюра » 21 мар 2013, 18:34

Владимир Шнейдер писал(а):А можно скомпилировать версию для 17-ой теклы с функцией удаления шва одной кнопкой?
И еще - большая просьба расписать горячие клавиши - какая комбинация за что отвечает, а то не могу подобрать
И если можно и под версию 18.1 скомпилировать.

Аватара пользователя
Таран Д. А.
Администратор
Сообщения: 2877
Регистрация: 30 ноя 2011, 18:41
Откуда: г. Москва
Контактная информация:

Re: Обозначение сварных швов в Tekla Structures

Сообщение Таран Д. А. » 22 мар 2013, 10:32

Андрей Мисюра писал(а):
Владимир Шнейдер писал(а):А можно скомпилировать версию для 17-ой теклы с функцией удаления шва одной кнопкой?
И еще - большая просьба расписать горячие клавиши - какая комбинация за что отвечает, а то не могу подобрать
И если можно и под версию 18.1 скомпилировать.
Запускай через макросы. Там версия не имеет значения

Ответить
phpbb3 styles

Вернуться в «Создание чертежей в Tekla Structures»

Кто сейчас на конференции

Сейчас этот форум просматривают: нет зарегистрированных пользователей и 1 гость