Соседние детали на чертежах общего вида Tekla Stuctures
- Таран Д. А.
- Администратор
- Сообщения: 2877
- Регистрация: 30 ноя 2011, 18:41
- Откуда: г. Москва
- Контактная информация:
Соседние детали на чертежах общего вида Tekla Stuctures
Отображение соседних деталей на чертежах общего вида TeklaStructures.
На чертежах сборок все работает. А как пользоваться этой функцией на чертежах общего вида?
Допустим: на плане балок хочу чтобы отображались колонны, но в спецификацию попали только балки.
(вставить фильтр в код таблице не стоит. Иначе колонны исчезнут на остальных чертежах)
Думаю можно с помощью этого инструмента но у меня так и не получилось.
Поделитесь опытом кто как решал проблему.
На чертежах сборок все работает. А как пользоваться этой функцией на чертежах общего вида?
Допустим: на плане балок хочу чтобы отображались колонны, но в спецификацию попали только балки.
(вставить фильтр в код таблице не стоит. Иначе колонны исчезнут на остальных чертежах)
Думаю можно с помощью этого инструмента но у меня так и не получилось.
Поделитесь опытом кто как решал проблему.
Администратор Topengineer.ru 8 (495) 215-07-79 (офис) ; 8 (925) 755-9318 (сот.); Skype wildomen ; http://vk.com/tekla_structures
Разработка КМД | Разработка КМ | Разработка КЖ | Обучение Tekla Structures | Купить Tekla Structures
Разработка КМД | Разработка КМ | Разработка КЖ | Обучение Tekla Structures | Купить Tekla Structures
-
A.Kudrevskiy
- Сообщения: 27
- Регистрация: 10 янв 2012, 07:29
Re: Соседние детали на чертежах общего вида Tekla Stuctures
Соседними деталями тут скорее всего не помочь, так как это детали, связанные с данной (сваркой или болтом), что накладывает большие ограничения.
Я решал такую задачу следующим способом:
-каждой сборке присваивается значение пользовательского атрибута в соответствии с необходимостью указывать ее в ведомости на той или иной монтажке (например "ось А").
-в пользовательском атрибуте чертежа перечисляются значения атрибутов тех марок, которые должны быть указаны в ведомости (например "ось А, ось Б, ось 5").
-ведомость ищет атрибут марки в атрибуте чертежа (find), если находит то выводит строку. Расширяем условие: если атрибут чертежа равен "ALL", то выводим все марки.
Минусы метода:
1. Нужно задавать атрибуты сборкам так, чтобы ни один не являлся частью другого (например нельзя так: одной "ось А", другой "ось А+3м")
2. Если модель сложная, то нужно внимательно задавать атрибуты сборкам, это несколько трудоемко.
Плюсы: Работает.
Есть пример реализации.
Я решал такую задачу следующим способом:
-каждой сборке присваивается значение пользовательского атрибута в соответствии с необходимостью указывать ее в ведомости на той или иной монтажке (например "ось А").
-в пользовательском атрибуте чертежа перечисляются значения атрибутов тех марок, которые должны быть указаны в ведомости (например "ось А, ось Б, ось 5").
-ведомость ищет атрибут марки в атрибуте чертежа (find), если находит то выводит строку. Расширяем условие: если атрибут чертежа равен "ALL", то выводим все марки.
Минусы метода:
1. Нужно задавать атрибуты сборкам так, чтобы ни один не являлся частью другого (например нельзя так: одной "ось А", другой "ось А+3м")
2. Если модель сложная, то нужно внимательно задавать атрибуты сборкам, это несколько трудоемко.
Плюсы: Работает.
Есть пример реализации.
Re: Соседние детали на чертежах общего вида Tekla Stuctures
Возможно я не совсем понял задачу но почему это не делается разрезом, или уж как вариант созданием еще одной компоновки с отредактированным шаблоном.
- Таран Д. А.
- Администратор
- Сообщения: 2877
- Регистрация: 30 ноя 2011, 18:41
- Откуда: г. Москва
- Контактная информация:
Re: Соседние детали на чертежах общего вида Tekla Stuctures
Заработало !!!
Получается очень удобно через соседние детали. Они в спецификацию не лезут т отображать их можно штрихпунктирном или другим цветом.

Получается очень удобно через соседние детали. Они в спецификацию не лезут т отображать их можно штрихпунктирном или другим цветом.

Администратор Topengineer.ru 8 (495) 215-07-79 (офис) ; 8 (925) 755-9318 (сот.); Skype wildomen ; http://vk.com/tekla_structures
Разработка КМД | Разработка КМ | Разработка КЖ | Обучение Tekla Structures | Купить Tekla Structures
Разработка КМД | Разработка КМ | Разработка КЖ | Обучение Tekla Structures | Купить Tekla Structures
Re: Соседние детали на чертежах общего вида Tekla Stuctures
Использовал подробные настройки уровня объекта? Возможно прийти к тому же результату
- Таран Д. А.
- Администратор
- Сообщения: 2877
- Регистрация: 30 ноя 2011, 18:41
- Откуда: г. Москва
- Контактная информация:
Re: Соседние детали на чертежах общего вида Tekla Stuctures



Администратор Topengineer.ru 8 (495) 215-07-79 (офис) ; 8 (925) 755-9318 (сот.); Skype wildomen ; http://vk.com/tekla_structures
Разработка КМД | Разработка КМ | Разработка КЖ | Обучение Tekla Structures | Купить Tekla Structures
Разработка КМД | Разработка КМ | Разработка КЖ | Обучение Tekla Structures | Купить Tekla Structures
-
Bagiration
- Сообщения: 52
- Регистрация: 05 фев 2012, 14:02
Re: Соседние детали на чертежах общего вида Tekla Stuctures
За эту идею отдельное большое спасибо!
-
Арсен А. Э.
- Сообщения: 85
- Регистрация: 26 июл 2012, 10:15
Re: Соседние детали на чертежах общего вида Tekla Stuctures
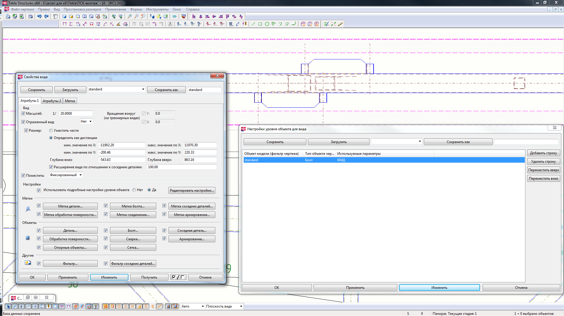
как показать болты на соседних деталях? в фильтре соседних деталей выбрал те детали которые нужны, но на них не отображаются болты, добавляю еще строчку в фильтре - болты, у меня появляются стороние объекты а болтов так и нет
- Таран Д. А.
- Администратор
- Сообщения: 2877
- Регистрация: 30 ноя 2011, 18:41
- Откуда: г. Москва
- Контактная информация:
Re: Соседние детали на чертежах общего вида Tekla Stuctures
Можно только через "редактировать настройки"
Администратор Topengineer.ru 8 (495) 215-07-79 (офис) ; 8 (925) 755-9318 (сот.); Skype wildomen ; http://vk.com/tekla_structures
Разработка КМД | Разработка КМ | Разработка КЖ | Обучение Tekla Structures | Купить Tekla Structures
Разработка КМД | Разработка КМ | Разработка КЖ | Обучение Tekla Structures | Купить Tekla Structures
-
Арсен А. Э.
- Сообщения: 85
- Регистрация: 26 июл 2012, 10:15
Re: Соседние детали на чертежах общего вида Tekla Stuctures
зашол в редактировать настройки, добавил строчку но все равно не появляются
- Таран Д. А.
- Администратор
- Сообщения: 2877
- Регистрация: 30 ноя 2011, 18:41
- Откуда: г. Москва
- Контактная информация:
Re: Соседние детали на чертежах общего вида Tekla Stuctures
Глубину вида измени. И увеличь вообще саму область вида (растяни)
Администратор Topengineer.ru 8 (495) 215-07-79 (офис) ; 8 (925) 755-9318 (сот.); Skype wildomen ; http://vk.com/tekla_structures
Разработка КМД | Разработка КМ | Разработка КЖ | Обучение Tekla Structures | Купить Tekla Structures
Разработка КМД | Разработка КМ | Разработка КЖ | Обучение Tekla Structures | Купить Tekla Structures
-
Арсен А. Э.
- Сообщения: 85
- Регистрация: 26 июл 2012, 10:15
Re: Соседние детали на чертежах общего вида Tekla Stuctures
все равно не отображается ((
- Таран Д. А.
- Администратор
- Сообщения: 2877
- Регистрация: 30 ноя 2011, 18:41
- Откуда: г. Москва
- Контактная информация:
Re: Соседние детали на чертежах общего вида Tekla Stuctures
Зайди в фильтры удали все
Администратор Topengineer.ru 8 (495) 215-07-79 (офис) ; 8 (925) 755-9318 (сот.); Skype wildomen ; http://vk.com/tekla_structures
Разработка КМД | Разработка КМ | Разработка КЖ | Обучение Tekla Structures | Купить Tekla Structures
Разработка КМД | Разработка КМ | Разработка КЖ | Обучение Tekla Structures | Купить Tekla Structures
-
Арсен А. Э.
- Сообщения: 85
- Регистрация: 26 июл 2012, 10:15
Re: Соседние детали на чертежах общего вида Tekla Stuctures
удаляю все фильтры, меняю глубину вида, растягиваю, но болты на соседних деталях не показываются
Re: Соседние детали на чертежах общего вида Tekla Stuctures
Как победить ситуацию? фильтрую болты (также как сборки), с вида сборки и болты пропадают, но в ведомости метизов болты остаются, сборки из ведомости сборок пропадают. Вид на чертеже один
И еще вопрос. можно как-то в фильтре в чертеже задать сборки для отображения промежутком? например, показать прогоны с П1-1 по П1-35, хотя прогонов на схеме больше
И еще вопрос. можно как-то в фильтре в чертеже задать сборки для отображения промежутком? например, показать прогоны с П1-1 по П1-35, хотя прогонов на схеме больше
- Таран Д. А.
- Администратор
- Сообщения: 2877
- Регистрация: 30 ноя 2011, 18:41
- Откуда: г. Москва
- Контактная информация:
Re: Соседние детали на чертежах общего вида Tekla Stuctures
В фильтре можно попробовать через порядковый номер с условием МЕНЬШЕ ну и цифру меньше чего напишиCuPo>I<a писал(а):Как победить ситуацию? фильтрую болты (также как сборки), с вида сборки и болты пропадают, но в ведомости метизов болты остаются, сборки из ведомости сборок пропадают. Вид на чертеже один
И еще вопрос. можно как-то в фильтре в чертеже задать сборки для отображения промежутком? например, показать прогоны с П1-1 по П1-35, хотя прогонов на схеме больше
Администратор Topengineer.ru 8 (495) 215-07-79 (офис) ; 8 (925) 755-9318 (сот.); Skype wildomen ; http://vk.com/tekla_structures
Разработка КМД | Разработка КМ | Разработка КЖ | Обучение Tekla Structures | Купить Tekla Structures
Разработка КМД | Разработка КМ | Разработка КЖ | Обучение Tekla Structures | Купить Tekla Structures
Re: Соседние детали на чертежах общего вида Tekla Stuctures
я мож туплю, но где в фильтре "меньше"? там есть "начинается", "заканчивается" и др.
- Таран Д. А.
- Администратор
- Сообщения: 2877
- Регистрация: 30 ноя 2011, 18:41
- Откуда: г. Москва
- Контактная информация:
Re: Соседние детали на чертежах общего вида Tekla Stuctures
Администратор Topengineer.ru 8 (495) 215-07-79 (офис) ; 8 (925) 755-9318 (сот.); Skype wildomen ; http://vk.com/tekla_structures
Разработка КМД | Разработка КМ | Разработка КЖ | Обучение Tekla Structures | Купить Tekla Structures
Разработка КМД | Разработка КМ | Разработка КЖ | Обучение Tekla Structures | Купить Tekla Structures
Re: Соседние детали на чертежах общего вида Tekla Stuctures
блин, я по ASSEMBLY.SERIAL_NUMBER фильтровать пытался, а для этого свойства нет больше/меньше и пр. 
косяк?
косяк?
Re: Соседние детали на чертежах общего вида Tekla Stuctures
можете пояснить ,что значит основные и второстипенные детали? Какие детали в соседних марках будут главными а какие вспомогательными?
Re: Соседние детали на чертежах общего вида Tekla Stuctures
У любой сборки есть главная ("основная") деталь, а все которые к ней закреплены заводской сваркой или заводскими болтами - второстепенные.
Скорее всего тут имеется это в виду.
«Есть только две бесконечные вещи: Вселенная и глупость. Хотя насчет Вселенной я не вполне уверен.» А. Эйнштейн
Re: Соседние детали на чертежах общего вида Tekla Stuctures
-да так и есть. Проверил все так и работает. Но еще не понятно с графой "СОСЕДНИЕ ДЕТАЛИ" - меняю ее переменный : (соединительные детали, соединенные детали ...) ничего не меняется , только "ДО КРАЙНИХ ТОЧЕК"
- можете подсказать что значат и в каких случаях применяются другие ? (соединительные детали, соединенные детали)
phpbb3 styles
Кто сейчас на конференции
Сейчас этот форум просматривают: нет зарегистрированных пользователей и 8 гостей

