Порядок монтажа Tekla Structures
Порядок монтажа Tekla Structures
всем привет!
у меня такая задача: проектирую длинный объект к примеру 40 осей (шаг 6м) - производство и монтажники определяються с порядком монтажа и он у них не с первой оси по 40. К примеру монтаж будет ити от середины и двумя захватками в стороны
-вопрос! -как можно сделать ведомость отправочных марок по осям? чтоб они видели какая марка где находиться и так же по очередно запускали в изготовления?
у меня такая задача: проектирую длинный объект к примеру 40 осей (шаг 6м) - производство и монтажники определяються с порядком монтажа и он у них не с первой оси по 40. К примеру монтаж будет ити от середины и двумя захватками в стороны
-вопрос! -как можно сделать ведомость отправочных марок по осям? чтоб они видели какая марка где находиться и так же по очередно запускали в изготовления?
- pavelkutas
- Сообщения: 276
- Регистрация: 16 янв 2013, 14:11
- Откуда: Санкт-Петербург
- Контактная информация:
Re: Порядок монтажа
интересует включение в маркировку номера оси или просто порядок выдачи марок?
Re: Порядок монтажа
М..... интересует чтоб в списке марок была графа с осями. Порядок осей и будет диктовать порядок сборки/изготовления и потом монтажа . Ну я так себе это вижу. Может есть и другие мыслиpavelkutas писал(а): ↑11 июл 2018, 10:00интересует включение в маркировку номера оси или просто порядок выдачи марок?
к примеру осей с 1 по 40 .а монтаж будет идти от оси 10 к 1 и потом от 11 к 20- как бы хотел сделать какой-то порядок в очердности
- Таран Д. А.
- Администратор
- Сообщения: 2877
- Регистрация: 30 ноя 2011, 18:41
- Откуда: г. Москва
- Контактная информация:
Re: Порядок монтажа
Порядок монтажа это раздел ППР не надо изобретать велосипед. В ППР если делать его в текле необходимо по очереди задавать каждой сборке порядковый номер ее монтажа причем вручную именно какая за какой идет а не примерно и по осям.Рак Роман писал(а): ↑11 июл 2018, 10:14М..... интересует чтоб в списке марок была графа с осями. Порядок осей и будет диктовать порядок сборки/изготовления и потом монтажа . Ну я так себе это вижу. Может есть и другие мыслиpavelkutas писал(а): ↑11 июл 2018, 10:00интересует включение в маркировку номера оси или просто порядок выдачи марок?
к примеру осей с 1 по 40 .а монтаж будет идти от оси 10 к 1 и потом от 11 к 20- как бы хотел сделать какой-то порядок в очердности
В вашем предложении не учтено что одна и та же сборка будет во многих осях и в во многих высотных отметках. Так что оси не помогут.
Думаю как нибудь надо будет провести вебинар по данной тематике.
Администратор Topengineer.ru 8 (495) 215-07-79 (офис) ; 8 (925) 755-9318 (сот.); Skype wildomen ; http://vk.com/tekla_structures
Разработка КМД | Разработка КМ | Разработка КЖ | Обучение Tekla Structures | Купить Tekla Structures
Разработка КМД | Разработка КМ | Разработка КЖ | Обучение Tekla Structures | Купить Tekla Structures
- pavelkutas
- Сообщения: 276
- Регистрация: 16 янв 2013, 14:11
- Откуда: Санкт-Петербург
- Контактная информация:
Re: Порядок монтажа
Порядок осей будет неизменным, порядок монтажа определят монтажники и ещё куча факторов - как им удобно будет.Порядок осей и будет диктовать порядок сборки/изготовления и потом монтажа
Я бы посоветовал разбить весь объект на захватки. В данном случае захватки будут привязаны к номеру оси. Номер оси вы прописываете сами. Варианты:
- сразу в префикс сборки;
- в пользовательский атрибут;
- в пользовательский атрибут, который влияет на нумерацию;
Если вы добавите номер оси в пользовательский атрибут, то нужно будет руками поправить все шаблоны и отчеты, чтобы маркировка была с номером оси. Это дополнительная работа, но она может быть оправдана, если у вас много одинаковой маркировки в модели, но необходимо разбить её дополнительно на группы (по осям в данном случае).
Таким образом мы добьемся разных марок, но номера деталей также не должны пересекаться. Потому все делаем в разной серии нумерации. Первая захватка, например начальный номер 1000, выдаем, смотрим, что всего деталей 1785, нумеруем следующую захватку с 2000. Если в первой захватке 1990 деталей, то нужно дать запас побольше, потому что в первой захватке возможны изменение, тогда вторую нужно начать с 3000 для удобства.
Самое главное сделать универсально. Т.е. вы дробите свой проект на уникальные захватки, номера и марки которых не пересекаются. А монтажники уже сами решают в какой последовательности им монтировать. Единственное, что вы делаете для их удобства, это определяете маркировку с привязкой по осям, чтобы они голову не ломали, какие марки монтировать в конкретной секции.
Ну и клонирование чертежей вам в помощь. Как-то так.
Re: Порядок монтажа
согласен что в ППР. Вопрос тогда : откуда человек который состовляет ППР будет знать марку марок на осях и отметках когда у него нет монтажных схем.Таран Д. А. писал(а): ↑11 июл 2018, 11:18Порядок монтажа это раздел ППР не надо изобретать велосипед. В ППР если делать его в текле необходимо по очереди задавать каждой сборке порядковый номер ее монтажа причем вручную именно какая за какой идет а не примерно и по осям.Рак Роман писал(а): ↑11 июл 2018, 10:14М..... интересует чтоб в списке марок была графа с осями. Порядок осей и будет диктовать порядок сборки/изготовления и потом монтажа . Ну я так себе это вижу. Может есть и другие мыслиpavelkutas писал(а): ↑11 июл 2018, 10:00интересует включение в маркировку номера оси или просто порядок выдачи марок?
к примеру осей с 1 по 40 .а монтаж будет идти от оси 10 к 1 и потом от 11 к 20- как бы хотел сделать какой-то порядок в очердности
В вашем предложении не учтено что одна и та же сборка будет во многих осях и в во многих высотных отметках. Так что оси не помогут.
Думаю как нибудь надо будет провести вебинар по данной тематике.![]()
-может это не правильно и я перепрыгиваю и велик изобретаю но вы представте сто ППР будет и он для монтажа -правельно, а очередь запуска тех или иных марок на производстве -кто будет им диктовать порядок? ППР?
Re: Порядок монтажа
не всегда получается все предвидеть. Сначала дают задания на разработку всего КМД , потом выясняют поставки оборудования и прочие причины и определяються с порядок монтажа. Ну и следовательно потом бегут к конструктору чтоб он именно те чертежи выдавал которые будут идти согласно порядка монтажа. - а как уже разделить на захват. Поэтому думал делать ведомость и чтоб в ней была информация об осях - а там уже в экселе уже раставить конечно в ручную.
- способы деления захватки все таки более трудоемки это был чертеж колонны -кол-во 10 штук и при разделения уже будет два чертежа ну и так же детали .( хотя может это и единственный выход для нормльного изготовления какой либо части конструкции )
- способы деления захватки все таки более трудоемки это был чертеж колонны -кол-во 10 штук и при разделения уже будет два чертежа ну и так же детали .( хотя может это и единственный выход для нормльного изготовления какой либо части конструкции )
- pavelkutas
- Сообщения: 276
- Регистрация: 16 янв 2013, 14:11
- Откуда: Санкт-Петербург
- Контактная информация:
Re: Порядок монтажа
Деление на захватки, дробление выдачи объема чертежей КМД (тоннажа) это стандартная практика. Особенно, если речь о большом тоннаже и нет времени сначала все сделать, оформить и сразу на весь объем выдать чертежи. Да, больше чертежей. Но мы исключаем ошибки, например неизменно точное кол-во выданных деталей и сборок. У вас всегда будет сценарий, когда вы сделаете выдачу определенного тоннажа, а в следующей выдаче будут присутствовать детали тех же номеров и даже сборки. Поэтому выданные чертежи будут помечены как измененные, на них будут менять кол-во деталей и номера сборок, в которых эти детали присутствуют. Способ, что я описал выше это не какое-то ноу-хау, это общепринятый подход.
Re: Порядок монтажа
да часто при большем объме нет времен все сделать , нужно делить для поэтапной выдачи-изготовления.
-можно еще эти захватки выделить "классом" или "стадией" ну и нумеровать как вы предлагаете. Так и ошибок и обновления чертежей будет меньше.
-Павел , а подскажите где задается в нумерации этот начальный номер ? ну чтоб от 1 от 100.
-и еще вот скажите как по опыту чертеж выглядит с позицией 1078 к примеру ( ну я в том плане что эти позиции с 4 цифрами - хорошо загружают чертеж...
-можно еще эти захватки выделить "классом" или "стадией" ну и нумеровать как вы предлагаете. Так и ошибок и обновления чертежей будет меньше.
-Павел , а подскажите где задается в нумерации этот начальный номер ? ну чтоб от 1 от 100.
-и еще вот скажите как по опыту чертеж выглядит с позицией 1078 к примеру ( ну я в том плане что эти позиции с 4 цифрами - хорошо загружают чертеж...
- pavelkutas
- Сообщения: 276
- Регистрация: 16 янв 2013, 14:11
- Откуда: Санкт-Петербург
- Контактная информация:
Re: Порядок монтажа
Внутри теклы группировать можно как угодно - цветом, стадией и т.д. (эта информация для вас). В конечном счете важно только то, как это нумеруется для завода, а не в модели. Номера разных захваток не должны пересекаться, также как и номера сборок - остальное не имеет значения.
Re: Порядок монтажа
А вариант с префиксом? - в таком случае детали тоже будут уникальные
- pavelkutas
- Сообщения: 276
- Регистрация: 16 янв 2013, 14:11
- Откуда: Санкт-Петербург
- Контактная информация:
Re: Порядок монтажа
вариант с префиксом тоже ок. Это как заказчик потребует. Иногда запрещают использовать что-то кроме цифр.
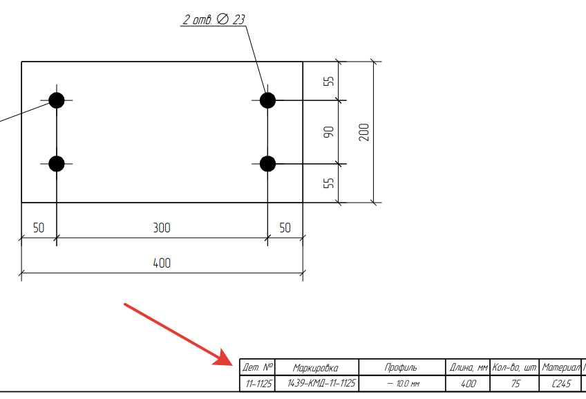
Выглядит прекрасно) Загружают не весь чертеж же, а только спецификации. Вот пример, 11 захватка, деталь 1125:
Re: Порядок монтажа
К слову о начальных номерах.. если менять только их (при этом не менять префиксы), можно столкнуться с пересечением серий нумерации: когда разные детали нумеруются одним номером.
«Есть только две бесконечные вещи: Вселенная и глупость. Хотя насчет Вселенной я не вполне уверен.» А. Эйнштейн
Re: Порядок монтажа
ну тут то понятно -выглядит классно, а вот на чертеже сборки?, не в спецификации ,а именно на самом чертеже, на сечении..pavelkutas писал(а): ↑11 июл 2018, 17:13вариант с префиксом тоже ок. Это как заказчик потребует. Иногда запрещают использовать что-то кроме цифр.
Выглядит прекрасно) Загружают не весь чертеж же, а только спецификации. Вот пример, 11 захватка, деталь 1125:
image_2018-07-11_17-11-43.png
-Павел , получается если задавать начальный номер то это получаеться при моделировании всегда нужно контролировать чтоб каждый элемент создовался с нужным ,заданным начальным номер. Или впринципе можно после окончания моделирования определенной захватки все выделить и назначить начальный номер
- pavelkutas
- Сообщения: 276
- Регистрация: 16 янв 2013, 14:11
- Откуда: Санкт-Петербург
- Контактная информация:
Re: Порядок монтажа
Не было проблем, чтобы не хватало места и т.д.а вот на чертеже сборки?
Как угодно. Если вы моделируете одну захватку, то после нажатия кнопки "применить", детали будут создаваться с нужными номерами. Но все равно перед созданием чертежей все нужно перепроверить, само собой.при моделировании всегда нужно контролировать чтоб каждый элемент создовался с нужным ,заданным начальным номер. Или впринципе можно после окончания моделирования определенной захватки все выделить и назначить начальный номер
Re: Порядок монтажа
есть две серии деталей а/1 и а/100 (префикс детали "а", начальный номер "1" и "100" соответственно).
При нумерации получилось так, что в серии а/1 у тебя 101 деталь. Имеем деталь а-101 из серии а/1 и деталь а-101 из серии а/100.
С точки зрения механизма нумерации это нормально и так и должно быть..
Но чертеж будет только на одну из этих деталей.
Естественно, Текла предупредит о пересечении серий.
«Есть только две бесконечные вещи: Вселенная и глупость. Хотя насчет Вселенной я не вполне уверен.» А. Эйнштейн
Re: Порядок монтажа
м..... а зачем в случае введения префекса еще и начальный номер?meart писал(а): ↑12 июл 2018, 09:06есть две серии деталей а/1 и а/100 (префикс детали "а", начальный номер "1" и "100" соответственно).
При нумерации получилось так, что в серии а/1 у тебя 101 деталь. Имеем деталь а-101 из серии а/1 и деталь а-101 из серии а/100.
С точки зрения механизма нумерации это нормально и так и должно быть..
Но чертеж будет только на одну из этих деталей.
Естественно, Текла предупредит о пересечении серий.![]()
я бы так сделал : или вводит начальный номер как было выше сказано или вводить префикс , к примеру на одну захватку "а" , на вторую "б" и при этом номер у всех начальный будет 1, токда будет нумерация идти как а-101, и б-101
phpbb3 styles
Кто сейчас на конференции
Сейчас этот форум просматривают: нет зарегистрированных пользователей и 6 гостей

