КЖ - пример моделирования и оформления в Tekla Structures
Re: КЖ - пример моделирования и оформления в Tekla Structure
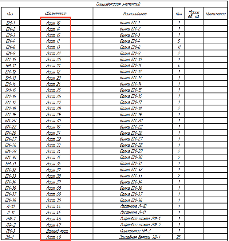
Классно! А ведомость расхода стали тоже в TS сделана?
Re: КЖ - пример моделирования и оформления в Tekla Structure
Так точно!RHSY писал(а):А ведомость расхода стали тоже в TS сделана?
Re: КЖ - пример моделирования и оформления в Tekla Structure
На форуме было много разговоров, что невозможно сделать ведомость расхода материалов как выполнено у вас (в столбик). Стандартная ведомость выполнена по строчно и не соответствует ГОСТ. Как вы добились этого? Хотя бы наводку можете сказать. Спасибо.
- Таран Д. А.
- Администратор
- Сообщения: 2877
- Регистрация: 30 ноя 2011, 18:41
- Откуда: г. Москва
- Контактная информация:
Re: КЖ - пример моделирования и оформления в Tekla Structure
Если знать заранее хотя материал арматуры путь и все 2-3 материала тогда можно сделать. А вот универсально для всех я не знаю как.RHSY писал(а):На форуме было много разговоров, что невозможно сделать ведомость расхода материалов как выполнено у вас (в столбик). Стандартная ведомость выполнена по строчно и не соответствует ГОСТ. Как вы добились этого? Хотя бы наводку можете сказать. Спасибо.
Не думаю что вертикальное или горизонтальное расположение спецификации является принципиальной вещью. На производство оно никак не влияет. Можете спросить в цеху. Им реально плевать.
Вывод: Стоит ли так заморачиваться?
От использования теклы плюсов намного больше
Администратор Topengineer.ru 8 (495) 215-07-79 (офис) ; 8 (925) 755-9318 (сот.); Skype wildomen ; http://vk.com/tekla_structures
Разработка КМД | Разработка КМ | Разработка КЖ | Обучение Tekla Structures | Купить Tekla Structures
Разработка КМД | Разработка КМ | Разработка КЖ | Обучение Tekla Structures | Купить Tekla Structures
Re: КЖ - пример моделирования и оформления в Tekla Structure
Это, Дим, ты говоришь про подобный путь решения, как в спецификации металлопроката. Здесь не так сделано. Если б здесь была АI, то тоже все было хорошо. И лишних телодвижений не надо было.Если знать заранее хотя материал арматуры путь и все 2-3 материала тогда можно сделать.
Колонками сделал. Это таблица не состоит из одной. Там где нет закладных, там из двух, с закладными - из четырех. Но, думаю, что нет предела совершенству. Это было первое КЖ, поэтому пока так, как есть. Поскольку, когда нет закладух, компановка не хромает, не надо ничего лишнего делать, все хорошо получается. А вот с закладными надо еще поработать!)Как вы добились этого? Хотя бы наводку можете сказать.
- Таран Д. А.
- Администратор
- Сообщения: 2877
- Регистрация: 30 ноя 2011, 18:41
- Откуда: г. Москва
- Контактная информация:
Re: КЖ - пример моделирования и оформления в Tekla Structure
На закладные мы подправили таблицу в среде вроде должно работать.Sega писал(а):Это, Дим, ты говоришь про подобный путь решения, как в спецификации металлопроката. Здесь не так сделано. Если б здесь была АI, то тоже все было хорошо. И лишних телодвижений не надо было.Если знать заранее хотя материал арматуры путь и все 2-3 материала тогда можно сделать.Колонками сделал. Это таблица не состоит из одной. Там где нет закладных, там из двух, с закладными - из четырех. Но, думаю, что нет предела совершенству. Это было первое КЖ, поэтому пока так, как есть. Поскольку, когда нет закладух, компановка не хромает, не надо ничего лишнего делать, все хорошо получается. А вот с закладными надо еще поработать!)Как вы добились этого? Хотя бы наводку можете сказать.
Вот до сих пор не понимаю почему текла для таблиц не использует блин просо SQL и HTML блин ну вот никаких же проблем не было бы.
Администратор Topengineer.ru 8 (495) 215-07-79 (офис) ; 8 (925) 755-9318 (сот.); Skype wildomen ; http://vk.com/tekla_structures
Разработка КМД | Разработка КМ | Разработка КЖ | Обучение Tekla Structures | Купить Tekla Structures
Разработка КМД | Разработка КМ | Разработка КЖ | Обучение Tekla Structures | Купить Tekla Structures
Re: КЖ - пример моделирования и оформления в Tekla Structure
Ведомость расхода?А то тут я еще для закладух свою табличку создавал, где они только на листе. Она и для каркасов в последствии нужна будет.На закладные мы подправили таблицу в среде вроде должно работать.
Re: КЖ - пример моделирования и оформления в Tekla Structure
Армирование было выполнено через группу арматурных стержней?
Как происходила увязка арматуры?
Как происходила увязка арматуры?
Re: КЖ - пример моделирования и оформления в Tekla Structure
Да, в основном через группы. Увязка чего с чем?Армирование было выполнено через группу арматурных стержней?
Как происходила увязка арматуры?
Re: КЖ - пример моделирования и оформления в Tekla Structure
По раскладке все равно получится пересечение арматуры плиты и выпусков под колонны. Или боковых П-образных стержней и арматуры плиты.Sega писал(а):Да, в основном через группы. Увязка чего с чем?Армирование было выполнено через группу арматурных стержней?
Как происходила увязка арматуры?
Это нужно контролировать визуально или можно вообще не обращать внимание?
Re: КЖ - пример моделирования и оформления в Tekla Structure
Тут уж на ваше усмотрение. П-образные мы контролировали, поскольку их много, они одинаковые и есть понимание, как они ставиться должны. То почему бы не сделать нормально. В местах же выпусков под колонну арматуры плиты можно подвинуть немного, поэтому это можно и не учитывать. Главное, чтоб количество било, а уж строители разберуться!))По раскладке все равно получится пересечение арматуры плиты и выпусков под колонны. Или боковых П-образных стержней и арматуры плиты.
Это нужно контролировать визуально или можно вообще не обращать внимание?
Re: КЖ - пример моделирования и оформления в Tekla Structure
Спасибо за пояснения. Я приблизительно так и представлял процесс.
Re: КЖ - пример моделирования и оформления в Tekla Structure
Уважаемый Sega! А сколько времени у вас ушло на весь проект и отдельно на чертежи. В особенности интересно количество времени на 6.pdf. Спасибо.
Re: КЖ - пример моделирования и оформления в Tekla Structure
Ушло полтора месяца на все. Отдельно чертежи выделить не могу по причине того, что сразу все делалось параллельно строительству и выдавалось постепенно. Делали четыре человека, но один занимался в основном допиливанием среды. Это был первый опыт в КЖ. Было много тупняков и местами бесполезной работы. Плюс много изменений по ходу пьесы. Лестница дня 3-4 - моделирование, лист опалубки и данный, шестой пдф, лист. Сейчас на такой проект понадобится гораздо меньше времени.RHSY писал(а):Уважаемый Sega! А сколько времени у вас ушло на весь проект и отдельно на чертежи. В особенности интересно количество времени на 6.pdf. Спасибо.
Re: КЖ - пример моделирования и оформления в Tekla Structure
А сколько всего листов (в пересчете на А1) вошло в комплект КЖ?
Re: КЖ - пример моделирования и оформления в Tekla Structure
Около 80RHSY писал(а):А сколько всего листов (в пересчете на А1) вошло в комплект КЖ?
Re: КЖ - пример моделирования и оформления в Tekla Structure
Неплохой показатель для первого проекта в КЖ. Как я понимаю, последующие проекты будут значительно быстрее. Удачи.
Re: КЖ - пример моделирования и оформления в Tekla Structure
Уверен, что да! Спасибо!))
Re: КЖ - пример моделирования и оформления в Tekla Structure
Sega, не могли бы выложить шаблон ведомости расхода стали, оч охото посмотреть)
Re: КЖ - пример моделирования и оформления в Tekla Structure
Я бы тоже присоединился к этой просьбе, потому что мои опыты с ведомостью расхода стали не увенчались успехом (даже по наводке автора). Спасибо.
Re: КЖ - пример моделирования и оформления в Tekla Structure
Здравствуйте.
В среде Топинженер раздел для кж отсутствует каталог форм арматурных стержней (В вашей среде отсутствует необходимый каталог. Нажмите кнопку "Организовать каталог", чтобы создать новый каталог ), создать его не получается. Подскажите пожалуйста как его создать или, что нужно сделать чтоб он заработал?
Заранее благодарю за ответ.
В среде Топинженер раздел для кж отсутствует каталог форм арматурных стержней (В вашей среде отсутствует необходимый каталог. Нажмите кнопку "Организовать каталог", чтобы создать новый каталог ), создать его не получается. Подскажите пожалуйста как его создать или, что нужно сделать чтоб он заработал?
Заранее благодарю за ответ.
- Таран Д. А.
- Администратор
- Сообщения: 2877
- Регистрация: 30 ноя 2011, 18:41
- Откуда: г. Москва
- Контактная информация:
Re: КЖ - пример моделирования и оформления в Tekla Structure
Добавлю.Виталий писал(а):Здравствуйте.
В среде Топинженер раздел для кж отсутствует каталог форм арматурных стержней (В вашей среде отсутствует необходимый каталог. Нажмите кнопку "Организовать каталог", чтобы создать новый каталог ), создать его не получается. Подскажите пожалуйста как его создать или, что нужно сделать чтоб он заработал?
Заранее благодарю за ответ.
Администратор Topengineer.ru 8 (495) 215-07-79 (офис) ; 8 (925) 755-9318 (сот.); Skype wildomen ; http://vk.com/tekla_structures
Разработка КМД | Разработка КМ | Разработка КЖ | Обучение Tekla Structures | Купить Tekla Structures
Разработка КМД | Разработка КМ | Разработка КЖ | Обучение Tekla Structures | Купить Tekla Structures
Re: КЖ - пример моделирования и оформления в Tekla Structure
Уважаемый Sega, как у вас получилось в спецификации внести ссылки на лист с чертежами элементов?
Это в Текле или позже в автокаде доделывалось?
Это в Текле или позже в автокаде доделывалось?
Re: КЖ - пример моделирования и оформления в Tekla Structure
У нас было так тогда:
"Лист "+GetValue("DRAWING.USERDEFINED.km_list")
Ну и плюс если надо еще чего-нить дополнительно дописываешь (данный лист или еще чего). Может ща этот параметр изменился в среде, не шарю. Тогда работали с тем, что было. Суть в том, что забрать номер листа отлитого элемента. Соответственно еще этот чертеж должен быть сделан, иначе ноль будет тут.
"Лист "+GetValue("DRAWING.USERDEFINED.km_list")
Ну и плюс если надо еще чего-нить дополнительно дописываешь (данный лист или еще чего). Может ща этот параметр изменился в среде, не шарю. Тогда работали с тем, что было. Суть в том, что забрать номер листа отлитого элемента. Соответственно еще этот чертеж должен быть сделан, иначе ноль будет тут.
Re: КЖ - пример моделирования и оформления в Tekla Structure
Если я правильно понимаю, то свойства "Лист "+GetValue("DRAWING.USERDEFINED.km_list") принадлежат конкретным чертежам.Sega писал(а):У нас было так тогда:
"Лист "+GetValue("DRAWING.USERDEFINED.km_list")
Ну и плюс если надо еще чего-нить дополнительно дописываешь (данный лист или еще чего). Может ща этот параметр изменился в среде, не шарю. Тогда работали с тем, что было. Суть в том, что забрать номер листа отлитого элемента. Соответственно еще этот чертеж должен быть сделан, иначе ноль будет тут.
И чертеж не может унаследовать свойства других чертежей!..только считать с деталей/сборок. Или я ошибаюсь?
Последний раз редактировалось pdimav 25 июн 2014, 10:11, всего редактировалось 1 раз.
pdimav1979(не собака)yandex.ru
Re: КЖ - пример моделирования и оформления в Tekla Structure
правильно=) и в зависимости от того, в какой строке находится поле значения ("Деталь" или "Сборка") значение параметра будет соответственно для чертежа детали или сборки.pdimav писал(а):Если я правильно понимаю, то свойства "Лист "+GetValue("DRAWING.USERDEFINED.km_list") принадлежат конкретным чертежам.Sega писал(а):У нас было так тогда:
"Лист "+GetValue("DRAWING.USERDEFINED.km_list")
Ну и плюс если надо еще чего-нить дополнительно дописываешь (данный лист или еще чего). Может ща этот параметр изменился в среде, не шарю. Тогда работали с тем, что было. Суть в том, что забрать номер листа отлитого элемента. Соответственно еще этот чертеж должен быть сделан, иначе ноль будет тут.
И чертеж не может унаследовать свойства других чертежей!..только считать с деталей/сборок. Или я ошибаюсь?
«Есть только две бесконечные вещи: Вселенная и глупость. Хотя насчет Вселенной я не вполне уверен.» А. Эйнштейн
Re: КЖ - пример моделирования и оформления в Tekla Structure
Здравствуйте.
Хочу создать пользовательский компонент (фиксатор для кж в форме трехпоясной фермы из арматуры), как это делается для кж? С металлом проблем не возникало с компонентами, а вот с кж никак не получается, хотя пользовательский компонент фиксатор типа "лягушка" для кж сделал с помощью компонента тип узел.
Хочу создать пользовательский компонент (фиксатор для кж в форме трехпоясной фермы из арматуры), как это делается для кж? С металлом проблем не возникало с компонентами, а вот с кж никак не получается, хотя пользовательский компонент фиксатор типа "лягушка" для кж сделал с помощью компонента тип узел.
Re: КЖ - пример моделирования и оформления в Tekla Structure
Здравствуйте форумчане.
Вопрос касательно фиксаторов для арматурных сеток железобетона.
Подскажите пожалуйста, если кто стыкался, как решаеть вопрос с фиксаторами в КЖ?
Вопрос касательно фиксаторов для арматурных сеток железобетона.
Подскажите пожалуйста, если кто стыкался, как решаеть вопрос с фиксаторами в КЖ?
Re: КЖ - пример моделирования и оформления в Tekla Structure
Как настроить отображение отлитого элемента на виде так, чтобы отображались соседние элементы (чтобы видно было куда гнутые стержни идут), но арматура соседних элементов не учитывалась в спецификации?
- Таран Д. А.
- Администратор
- Сообщения: 2877
- Регистрация: 30 ноя 2011, 18:41
- Откуда: г. Москва
- Контактная информация:
Re: КЖ - пример моделирования и оформления в Tekla Structure
Фильтрами выводв в спецификации. Но надо чтобы был какой то уникальные параметрYuzer писал(а):Как настроить отображение отлитого элемента на виде так, чтобы отображались соседние элементы (чтобы видно было куда гнутые стержни идут), но арматура соседних элементов не учитывалась в спецификации?
Администратор Topengineer.ru 8 (495) 215-07-79 (офис) ; 8 (925) 755-9318 (сот.); Skype wildomen ; http://vk.com/tekla_structures
Разработка КМД | Разработка КМ | Разработка КЖ | Обучение Tekla Structures | Купить Tekla Structures
Разработка КМД | Разработка КМ | Разработка КЖ | Обучение Tekla Structures | Купить Tekla Structures
Re: КЖ - пример моделирования и оформления в Tekla Structure
Перспектива не радует. Если фильтровать через классы, то визуально не проконтролируешь правильность установки арматуры.Таран Д. А. писал(а):Фильтрами выводв в спецификации. Но надо чтобы был какой то уникальные параметрYuzer писал(а):Как настроить отображение отлитого элемента на виде так, чтобы отображались соседние элементы (чтобы видно было куда гнутые стержни идут), но арматура соседних элементов не учитывалась в спецификации?
И кроме этого бетон полезет в спецификацию, а это нужно уже фильтр в шаблоне думать...
Интуитивно подозреваю, что решение есть. Будем думать.
Умные люди посоветовали префиксы для арматуры использовать.
Осталось решить вопрос с объемом бетона.
Re: КЖ - пример моделирования и оформления в Tekla Structure
В свойствах вида есть и соседняя деталь и соседнее армирование. Соседние детали и армирование не попадают в спецификацию. Или я чего то не понял?
- teandrey89
- Сообщения: 120
- Регистрация: 11 июл 2012, 01:18
- Откуда: Saint Petersburg
Re: КЖ - пример моделирования и оформления в Tekla Structure
Sega подскажите как сделать основную арматуру в погонных метрах???Sega писал(а):Уверен, что да! Спасибо!))
Re: КЖ - пример моделирования и оформления в Tekla Structure
Здесь больше вопрос с нумерацией и вариантами моделирования п.м.
Я пока добился только через префиксы (и метки соответствующие). Но есть умнее люди...
Я пока добился только через префиксы (и метки соответствующие). Но есть умнее люди...
Re: КЖ - пример моделирования и оформления в Tekla Structure
Префикс у нее другой, отличный от префикса у дополнительной. В спецификации условие для нее, чтоб суммировалась вся. Ну и коэффициент на нахлест еще.teandrey89 писал(а):Sega подскажите как сделать основную арматуру в погонных метрах???
Re: КЖ - пример моделирования и оформления в Tekla Structure
И в чем вопрос то?Yuzer писал(а):Здесь больше вопрос с нумерацией и вариантами моделирования п.м.
И что они говорят?Yuzer писал(а): Но есть умнее люди...
Re: КЖ - пример моделирования и оформления в Tekla Structure
Проблема в создании сквозной нумерации для арматуры в п.м. Я заранее не знаю сколько у меня будет участков с п.м., поэтому не знаю с какой позиции начинать нумерацию мерных стержней. Да и участки одинакового диаметра в п.м. будут иметь разные позиции. Это тоже небольшая проблемка (для меня). В спецификации немного дико смотрится: поз. 1 диам. 16 L=350п.м., поз. 2 диам. 16 L=120п.м. и т.д.Sega писал(а):И в чем вопрос то?Yuzer писал(а):Здесь больше вопрос с нумерацией и вариантами моделирования п.м.И что они говорят?Yuzer писал(а): Но есть умнее люди...
Кстати, погонажем арматуру делаете компонентом?
Re: КЖ - пример моделирования и оформления в Tekla Structure
Не понял, про участки, одна плита, взяли для нее, что фоновая будет с позицией 1, вся и все. Зачем разделять?Yuzer писал(а):Проблема в создании сквозной нумерации для арматуры в п.м. Я заранее не знаю сколько у меня будет участков с п.м., поэтому не знаю с какой позиции начинать нумерацию мерных стержней. Да и участки одинакового диаметра в п.м. будут иметь разные позиции. Это тоже небольшая проблемка (для меня). В спецификации немного дико смотрится: поз. 1 диам. 16 L=350п.м., поз. 2 диам. 16 L=120п.м. и т.д.Sega писал(а):И в чем вопрос то?Yuzer писал(а):Здесь больше вопрос с нумерацией и вариантами моделирования п.м.И что они говорят?Yuzer писал(а): Но есть умнее люди...
Кстати, погонажем арматуру делаете компонентом?
Да, компонентом, дырки пилит, кривости обходит как надо, кайф!)
Re: КЖ - пример моделирования и оформления в Tekla Structure
Я правильно понял: всем участкам с п.м. и одинаковым диаметром ставишь поз.1 и она вся будет иметь одну позицию???Sega писал(а): Не понял, про участки, одна плита, взяли для нее, что фоновая будет с позицией 1, вся и все. Зачем разделять?
Да, компонентом, дырки пилит, кривости обходит как надо, кайф!)
Не будет нумерации 1-1 или подобного?
Re: КЖ - пример моделирования и оформления в Tekla Structure
Какая разница какая позиция будет у всех участков, если все это предполагается пустить как фоновую погонажем?Сделайте другой префикс для нее, фильтр запилите в спецификации, позицию "1" текстом напишите, только в путь работает. Для дополнительной с "2" нумерацию начните. Префикс для нее свой сделайте.Yuzer писал(а):Я правильно понял: всем участкам с п.м. и одинаковым диаметром ставишь поз.1 и она вся будет иметь одну позицию???![]()
Не будет нумерации 1-1 или подобного?
Re: КЖ - пример моделирования и оформления в Tekla Structure
Разве что текстом писать поз. 1 и префиксы.Sega писал(а):Какая разница какая позиция будет у всех участков, если все это предполагается пустить как фоновую погонажем?Сделайте другой префикс для нее, фильтр запилите в спецификации, позицию "1" текстом напишите, только в путь работает. Для дополнительной с "2" нумерацию начните. Префикс для нее свой сделайте.Yuzer писал(а):Я правильно понял: всем участкам с п.м. и одинаковым диаметром ставишь поз.1 и она вся будет иметь одну позицию???![]()
Не будет нумерации 1-1 или подобного?
Мне придется по факту во многих местах делать запрос, чтобы понять где арматура в п.м., а где мерные стержни.
Re: КЖ - пример моделирования и оформления в Tekla Structure
Вы не компонентом фоновую раскидывете?
Re: КЖ - пример моделирования и оформления в Tekla Structure
Нет. У меня не было моделях возможности кинуть арматуру компонентом. Промка/подземка.
Re: КЖ - пример моделирования и оформления в Tekla Structure
АА, мы тут плиту обсуждали, где этой фоновой завались. В мелких элементах мы фоновую не использовали. В промке есть необходимость вообще в фоновой?
Re: КЖ - пример моделирования и оформления в Tekla Structure
Вопрос был про позиции и погонные метры
.
А вообще есть - промка разная бывает.
А вообще есть - промка разная бывает.
Re: КЖ - пример моделирования и оформления в Tekla Structure
Делаю шаблон для нескольких отлитых элементов: шаблон разделяет отлитые элементы и сборки, что входят в него, но арматуру по отлитым элементам вывести не получается. Можно получить общий перечень арматуры в конце шаблона.
Можно ли разделить арматуру по отлитым элементам или это нереально?
Можно ли разделить арматуру по отлитым элементам или это нереально?
Re: КЖ - пример моделирования и оформления в Tekla Structure
Все. Разделил.
- teandrey89
- Сообщения: 120
- Регистрация: 11 июл 2012, 01:18
- Откуда: Saint Petersburg
Re: КЖ - пример моделирования и оформления в Tekla Structure
Прикрепи пример (скрин чего добивался) плиз.Yuzer писал(а):Все. Разделил.
- teandrey89
- Сообщения: 120
- Регистрация: 11 июл 2012, 01:18
- Откуда: Saint Petersburg
Re: КЖ - пример моделирования и оформления в Tekla Structure
Сега а можно на скрине показать последовательность редактирования шаблона спецификации, и пример формулы...Sega писал(а):Какая разница какая позиция будет у всех участков, если все это предполагается пустить как фоновую погонажем?Сделайте другой префикс для нее, фильтр запилите в спецификации, позицию "1" текстом напишите, только в путь работает. Для дополнительной с "2" нумерацию начните. Префикс для нее свой сделайте.Yuzer писал(а):Я правильно понял: всем участкам с п.м. и одинаковым диаметром ставишь поз.1 и она вся будет иметь одну позицию???![]()
Не будет нумерации 1-1 или подобного?
Что - то не получается погонную арматуру сделать.
Re: КЖ - пример моделирования и оформления в Tekla Structure
Я б с радостью, но сейчас в командировке в Индии и тут хватает своей работы. Спрашивайте более конкретно, помогу.teandrey89 писал(а):Сега а можно на скрине показать последовательность редактирования шаблона спецификации, и пример формулы...
Что - то не получается погонную арматуру сделать.
Там вроде ничего сложного. Погонная арматура имеет отличный префикс от дополнительной арматуры. И для нее есть отдельная строчка, которая суммируется и добавляется нахлест.
-
Wayne Rooney
- Сообщения: 21
- Регистрация: 31 авг 2014, 10:45
Re: КЖ - пример моделирования и оформления в Tekla Structure
Sega, вы добавили новую строчку с типом "АРМАТУРА", длину выделили в отдельную ячейку, назначив ей свойство - суммировать. А как вы добились того, что бы в фоновом компоненте все стержни разной длины складывались в одну строчку? Я назначил одинаковый префикс в компоненте, но он мне все равно разные по длине стержни на разные строчки ставит...Sega писал(а):Я б с радостью, но сейчас в командировке в Индии и тут хватает своей работы. Спрашивайте более конкретно, помогу.
Там вроде ничего сложного. Погонная арматура имеет отличный префикс от дополнительной арматуры. И для нее есть отдельная строчка, которая суммируется и добавляется нахлест.
Re: КЖ - пример моделирования и оформления в Tekla Structure
Того проекта под рукой нет, да, для длин отдельная ячейка, и да, она суммируется, плюс домножается на нахлест. У вас в этой строке нет случаем какого-либа поля с возрастанием или убыванием? Позиция "1" у меня стоит текстом.Wayne Rooney писал(а):Sega, вы добавили новую строчку с типом "АРМАТУРА", длину выделили в отдельную ячейку, назначив ей свойство - суммировать. А как вы добились того, что бы в фоновом компоненте все стержни разной длины складывались в одну строчку? Я назначил одинаковый префикс в компоненте, но он мне все равно разные по длине стержни на разные строчки ставит...
- Таран Д. А.
- Администратор
- Сообщения: 2877
- Регистрация: 30 ноя 2011, 18:41
- Откуда: г. Москва
- Контактная информация:
Re: КЖ - пример моделирования и оформления в Tekla Structure
Администратор Topengineer.ru 8 (495) 215-07-79 (офис) ; 8 (925) 755-9318 (сот.); Skype wildomen ; http://vk.com/tekla_structures
Разработка КМД | Разработка КМ | Разработка КЖ | Обучение Tekla Structures | Купить Tekla Structures
Разработка КМД | Разработка КМ | Разработка КЖ | Обучение Tekla Structures | Купить Tekla Structures
Re: КЖ - пример моделирования и оформления в Tekla Structure
Не совсем понял, Дим, что ты хотел этим сказать?
- Таран Д. А.
- Администратор
- Сообщения: 2877
- Регистрация: 30 ноя 2011, 18:41
- Откуда: г. Москва
- Контактная информация:
Re: КЖ - пример моделирования и оформления в Tekla Structure
Ветка с примерами моделирования КЖ.Zezza писал(а):Не совсем понял, Дим, что ты хотел этим сказать?
Просто пример (даже не мой)
Картинка понравилась
Администратор Topengineer.ru 8 (495) 215-07-79 (офис) ; 8 (925) 755-9318 (сот.); Skype wildomen ; http://vk.com/tekla_structures
Разработка КМД | Разработка КМ | Разработка КЖ | Обучение Tekla Structures | Купить Tekla Structures
Разработка КМД | Разработка КМ | Разработка КЖ | Обучение Tekla Structures | Купить Tekla Structures
- teandrey89
- Сообщения: 120
- Регистрация: 11 июл 2012, 01:18
- Откуда: Saint Petersburg
Re: КЖ - пример моделирования и оформления в Tekla Structure
А чертежи есть, как я понимаю это фундаменты монолитные.
Хочется на чертежи взглянуть...
Кстати косячки есть в модели...) Но это я уже придираюсь.
Хочется на чертежи взглянуть...
Кстати косячки есть в модели...) Но это я уже придираюсь.
- Таран Д. А.
- Администратор
- Сообщения: 2877
- Регистрация: 30 ноя 2011, 18:41
- Откуда: г. Москва
- Контактная информация:
Re: КЖ - пример моделирования и оформления в Tekla Structure
Большинство моделей с бетоном делается именно так.
Это не металл там точность в 1 мм нереальная для исполнения.
Это не металл там точность в 1 мм нереальная для исполнения.
Администратор Topengineer.ru 8 (495) 215-07-79 (офис) ; 8 (925) 755-9318 (сот.); Skype wildomen ; http://vk.com/tekla_structures
Разработка КМД | Разработка КМ | Разработка КЖ | Обучение Tekla Structures | Купить Tekla Structures
Разработка КМД | Разработка КМ | Разработка КЖ | Обучение Tekla Structures | Купить Tekla Structures
- teandrey89
- Сообщения: 120
- Регистрация: 11 июл 2012, 01:18
- Откуда: Saint Petersburg
Re: КЖ - пример моделирования и оформления в Tekla Structure
Нет дим, если используется 32 или 40 арматура и определённый защитный слой, то какая арматура сверху а какая снизу это очень важно!Таран Д. А. писал(а):Большинство моделей с бетоном делается именно так.
Это не металл там точность в 1 мм нереальная для исполнения.
Кстати сейчас на чертежах из ТЕКЛЫ это все так классно прорисовывается что вопросов вообще не возникает!
- Таран Д. А.
- Администратор
- Сообщения: 2877
- Регистрация: 30 ноя 2011, 18:41
- Откуда: г. Москва
- Контактная информация:
Re: КЖ - пример моделирования и оформления в Tekla Structure
Да. Я в курсе. Сам так делаю.
Администратор Topengineer.ru 8 (495) 215-07-79 (офис) ; 8 (925) 755-9318 (сот.); Skype wildomen ; http://vk.com/tekla_structures
Разработка КМД | Разработка КМ | Разработка КЖ | Обучение Tekla Structures | Купить Tekla Structures
Разработка КМД | Разработка КМ | Разработка КЖ | Обучение Tekla Structures | Купить Tekla Structures
- teandrey89
- Сообщения: 120
- Регистрация: 11 июл 2012, 01:18
- Откуда: Saint Petersburg
Re: КЖ - пример моделирования и оформления в Tekla Structure
При создании схемы общего вида в КЖ, в спецификацию попадает все что есть на схеме.
Допустим мне нужно сделать схему цокольных панелей соответственно и в спецификации у меня должны быть только цокольные панели.
Но так же на чертеже должны присутствовать габариты колонн и ростверков - чтоб было понятно что где и как.
Фильтром я могу оставить только цокольные панели, а остальное все скрыть, чтоб в спецификации были только ЦП.
Можно ли сделать так чтоб на чертеже были цокольные панели, колонны и ростверки а в спецификации отображались только ЦП?
Допустим мне нужно сделать схему цокольных панелей соответственно и в спецификации у меня должны быть только цокольные панели.
Но так же на чертеже должны присутствовать габариты колонн и ростверков - чтоб было понятно что где и как.
Фильтром я могу оставить только цокольные панели, а остальное все скрыть, чтоб в спецификации были только ЦП.
Можно ли сделать так чтоб на чертеже были цокольные панели, колонны и ростверки а в спецификации отображались только ЦП?
Re: КЖ - пример моделирования и оформления в Tekla Structure
Можешь скрыть их фильтрами, они будут как соседние детали. По идее они не должны идти в спецификацию. Но чтоб совсем наверняка, можешь сделать в спецификации фильтр чисто для своих цоколей.
- teandrey89
- Сообщения: 120
- Регистрация: 11 июл 2012, 01:18
- Откуда: Saint Petersburg
Re: КЖ - пример моделирования и оформления в Tekla Structure
А как сделать фильтр в спецификации? Изменить ее в редакторе и сохранить под другим названием и сделать отдельную компановку чертежа?Zezza писал(а):Можешь скрыть их фильтрами, они будут как соседние детали. По идее они не должны идти в спецификацию. Но чтоб совсем наверняка, можешь сделать в спецификации фильтр чисто для своих цоколей.
Re: КЖ - пример моделирования и оформления в Tekla Structure
Да, это так сложно?teandrey89 писал(а):А как сделать фильтр в спецификации? Изменить ее в редакторе и сохранить под другим названием и сделать отдельную компановку чертежа?
- teandrey89
- Сообщения: 120
- Регистрация: 11 июл 2012, 01:18
- Откуда: Saint Petersburg
Re: КЖ - пример моделирования и оформления в Tekla Structure
Лень двигатель прогресса думал можно как то попроще сделать...Zezza писал(а):Да, это так сложно?teandrey89 писал(а):А как сделать фильтр в спецификации? Изменить ее в редакторе и сохранить под другим названием и сделать отдельную компановку чертежа?
Re: КЖ - пример моделирования и оформления в Tekla Structure
Через соседние детали проще вариант, как мне кажется, уже его пробовал?
- teandrey89
- Сообщения: 120
- Регистрация: 11 июл 2012, 01:18
- Откуда: Saint Petersburg
Re: КЖ - пример моделирования и оформления в Tekla Structure
Нет не пробывал, объясни пожалуйста!!!Zezza писал(а):Через соседние детали проще вариант, как мне кажется, уже его пробовал?
Re: КЖ - пример моделирования и оформления в Tekla Structure
Все что отфильтровано "Фильтром", попадает в соседние детали. Соседние детали можно отображать на чертеже, но они не попадают в спецификации.
- teandrey89
- Сообщения: 120
- Регистрация: 11 июл 2012, 01:18
- Откуда: Saint Petersburg
Re: КЖ - пример моделирования и оформления в Tekla Structure
Спасибо, не знал!!!DrBianko писал(а):Все что отфильтровано "Фильтром", попадает в соседние детали. Соседние детали можно отображать на чертеже, но они не попадают в спецификации.
Re: КЖ - пример моделирования и оформления в Tekla Structure
Если многоуровневая сборка вставлена как узел в отлитый элемент, как вывести эту сборку в спецификацию?
Пока в спецификацию выводит только сборки (закладные) и сборки, из которой состоит многоуровневая сборка.
Пока в спецификацию выводит только сборки (закладные) и сборки, из которой состоит многоуровневая сборка.
Re: КЖ - пример моделирования и оформления в Tekla Structure
Есть атрибут HIERARCHY_LEVEL. Подскажите, как правильно им пользоваться.
- teandrey89
- Сообщения: 120
- Регистрация: 11 июл 2012, 01:18
- Откуда: Saint Petersburg
Re: КЖ - пример моделирования и оформления в Tekla Structure
[quote="Yuzer"]Если многоуровневая сборка вставлена как узел в отлитый элемент, как вывести эту сборку в спецификацию?
Пока в спецификацию выводит только сборки (закладные) и сборки, из которой состоит многоуровневая сборка.
Самый первый уровень многоуровневой сборки довавить как удел к отлитому элементу, но наверно его Вам будет трудновато выделить и многоуровневой...
Пока в спецификацию выводит только сборки (закладные) и сборки, из которой состоит многоуровневая сборка.
Самый первый уровень многоуровневой сборки довавить как удел к отлитому элементу, но наверно его Вам будет трудновато выделить и многоуровневой...
Re: КЖ - пример моделирования и оформления в Tekla Structure
Я уже по строкам через HIERARCHY_LEVEL повыводил сборки на разных уровнях, а "общую сборку" вывести не могу.
- teandrey89
- Сообщения: 120
- Регистрация: 11 июл 2012, 01:18
- Откуда: Saint Petersburg
Re: КЖ - пример моделирования и оформления в Tekla Structure
А что за такая сложная сборка? Можешь модель в архиве скинуть... чтобы посмотреть...Yuzer писал(а):Я уже по строкам через HIERARCHY_LEVEL повыводил сборки на разных уровнях, а "общую сборку" вывести не могу.
Re: КЖ - пример моделирования и оформления в Tekla Structure
Ж.Б. колонна.
Каркас и дополнительные закладные.
Каркас и дополнительные закладные.
- teandrey89
- Сообщения: 120
- Регистрация: 11 июл 2012, 01:18
- Откуда: Saint Petersburg
Re: КЖ - пример моделирования и оформления в Tekla Structure
Как делаю я,Yuzer писал(а):Ж.Б. колонна.
Каркас и дополнительные закладные.
1. Колонна - отлитый элемент
2. Армирование (стержни сетки)
3. Создаю закладную, свариваю ее, загоняю в компонент "ДЕТАЛЬ" под нужной мне маркой и на саму марккирую под нужной маркой.
(Грубо говоря в компоненте у меня сборка - закладная деталь)
4. Далее добавляю этот компонент т.е. свою закладную "ДОБАВИТЬ В КАЧЕСТВЕ УЗЛА" и кликаю по колонне.
Все в спецификации имею нужную мне закладную деталь, ссылки в спецификации на нее формируются автоматом.
Если все детали по серии то нужно у деталей "имя" прописывать и в графе обозначения прописать чтобы имя выводилось.
И будет как указано у вас на картинке.
Re: КЖ - пример моделирования и оформления в Tekla Structure
Закладные ,сделанные компонентом, нормально добавляются и нормально выводятся в спецификациях.
У меня проблема с выводом многоуровневой сборки в спецификацию. Сборки, которые в нее входят, выводятся без проблем, но мне нужно, чтобы имя в спецификации было именно многоуровневой сборки.
У меня проблема с выводом многоуровневой сборки в спецификацию. Сборки, которые в нее входят, выводятся без проблем, но мне нужно, чтобы имя в спецификации было именно многоуровневой сборки.
- teandrey89
- Сообщения: 120
- Регистрация: 11 июл 2012, 01:18
- Откуда: Saint Petersburg
Re: КЖ - пример моделирования и оформления в Tekla Structure
Многоуровневая сборка это компонент в компоненте, а внутри этого компонента еще компонент??? Матрёшка?Yuzer писал(а):Закладные ,сделанные компонентом, нормально добавляются и нормально выводятся в спецификациях.
У меня проблема с выводом многоуровневой сборки в спецификацию. Сборки, которые в нее входят, выводятся без проблем, но мне нужно, чтобы имя в спецификации было именно многоуровневой сборки.
Re: КЖ - пример моделирования и оформления в Tekla Structure
Многоуровневая сборка - это сборки в сборке. Да - матрешка.
Сделана не компонентами, а сборками.
Но у меня эта матрешка еще входит в отлитый элемент.
Решил добавить в спецификацию пустую строку и написать текстом данные.
Сделана не компонентами, а сборками.
Но у меня эта матрешка еще входит в отлитый элемент.
Решил добавить в спецификацию пустую строку и написать текстом данные.
- teandrey89
- Сообщения: 120
- Регистрация: 11 июл 2012, 01:18
- Откуда: Saint Petersburg
Re: КЖ - пример моделирования и оформления в Tekla Structure
А можешь поподробнее на примере описать как сделать сборку в сборке.Yuzer писал(а):Многоуровневая сборка - это сборки в сборке. Да - матрешка.
Сделана не компонентами, а сборками.
Но у меня эта матрешка еще входит в отлитый элемент.
Решил добавить в спецификацию пустую строку и написать текстом данные.
Re: КЖ - пример моделирования и оформления в Tekla Structure
Вариант 1. Переключатель - выбрать сборки/ПКМ/добавить в качестве узла.
Вариант 2. Переключатель - выбрать сборки/выделить все сборки/ПКМ/переделать в сборку.
Выбирать подсборки через shift+скрол.
Вариант 2. Переключатель - выбрать сборки/выделить все сборки/ПКМ/переделать в сборку.
Выбирать подсборки через shift+скрол.
- teandrey89
- Сообщения: 120
- Регистрация: 11 июл 2012, 01:18
- Откуда: Saint Petersburg
Re: КЖ - пример моделирования и оформления в Tekla Structure
До нынешнего времени обходился без этого спасибо буду знать!Yuzer писал(а):Вариант 1. Переключатель - выбрать сборки/ПКМ/добавить в качестве узла.
Вариант 2. Переключатель - выбрать сборки/выделить все сборки/ПКМ/переделать в сборку.
Выбирать подсборки через shift+скрол.
Re: КЖ - пример моделирования и оформления в Tekla Structure
Штука хорошая, но требует внимания и порядка.
-
anatolymazur
- Сообщения: 18
- Регистрация: 10 окт 2014, 12:36
Re: КЖ - пример моделирования и оформления в Tekla Structure
Люди, подскажите пожалста где можно взять текловскую ведомость расхода стали, чтобы как здесь все было втолбик, а то не получается хоть убей столбиками сделать, приходится в строчной, а это не есть хорошо
Re: КЖ - пример моделирования и оформления в Tekla Structure
Добрый день! При моделировании фундаментной плиты в ней необходимо предусмотреть пространственные поддерживающие каркасы. Вопрос возник как это сделать, создать собственный компонент? Создал деталью, создал деталью, но перемещать свободно не могу почему то.
Re: КЖ - пример моделирования и оформления в Tekla Structure
Обратили внимание, что если делать каркасы из кругляка (балка), то чертеж может открываться до 20 минут.
Поэтому остро встал вопрос в правильном моделировании этих каркасов.
Если делать их сетками (mesh), то потом проблематично вывести на отдельный лист и сделать КЖИ.
Поэтому остро встал вопрос в правильном моделировании этих каркасов.
Если делать их сетками (mesh), то потом проблематично вывести на отдельный лист и сделать КЖИ.
Re: КЖ - пример моделирования и оформления в Tekla Structure
Нужно на балках сделать маркировку для ориентации. Маркировка должна быть по правой стороне балки.
Как лучше ее сделать, чтобы на чертеже можно было отобразить?
На крайняк - вырезать антителом...
Как лучше ее сделать, чтобы на чертеже можно было отобразить?
На крайняк - вырезать антителом...
- Таран Д. А.
- Администратор
- Сообщения: 2877
- Регистрация: 30 ноя 2011, 18:41
- Откуда: г. Москва
- Контактная информация:
Re: КЖ - пример моделирования и оформления в Tekla Structure
Можно антителом только глубину меньше миллиметра чтобы не влияло на нумерацию.
Администратор Topengineer.ru 8 (495) 215-07-79 (офис) ; 8 (925) 755-9318 (сот.); Skype wildomen ; http://vk.com/tekla_structures
Разработка КМД | Разработка КМ | Разработка КЖ | Обучение Tekla Structures | Купить Tekla Structures
Разработка КМД | Разработка КМ | Разработка КЖ | Обучение Tekla Structures | Купить Tekla Structures
Re: КЖ - пример моделирования и оформления в Tekla Structure
Сделал миллиметровое углубление.
- Таран Д. А.
- Администратор
- Сообщения: 2877
- Регистрация: 30 ноя 2011, 18:41
- Откуда: г. Москва
- Контактная информация:
Re: КЖ - пример моделирования и оформления в Tekla Structure
Новый инструмент в велдапе позволяет делать такие выноски.
Скачать тут
http://topengineer.ru/programms/weldapp
Ведомость расхода стали тоже бесплатная
Скачать тут
http://topengineer.ru/programms/weldapp
Ведомость расхода стали тоже бесплатная
Администратор Topengineer.ru 8 (495) 215-07-79 (офис) ; 8 (925) 755-9318 (сот.); Skype wildomen ; http://vk.com/tekla_structures
Разработка КМД | Разработка КМ | Разработка КЖ | Обучение Tekla Structures | Купить Tekla Structures
Разработка КМД | Разработка КМ | Разработка КЖ | Обучение Tekla Structures | Купить Tekla Structures
-
Bagiration
- Сообщения: 52
- Регистрация: 05 фев 2012, 14:02
Re: КЖ - пример моделирования и оформления в Tekla Structure
Приветствую, уважаемые инженеры.
Начал осваивать ЖБ в текле, соответственно и вопросы возникают.
Вот каков вопрос:
В случае когда предметом чертежа должна служить плита, лично у меня возникает вопрос о представлении чертежа верхнего и нижнего армирования. Как сделать автоматические метки, чтобы они "понимали" верхнее и нижнее армирование? Если такое невозможно (что скорее всего), то как Вы наиболее элегантно выходите из положения?
С уважением...
Начал осваивать ЖБ в текле, соответственно и вопросы возникают.
Вот каков вопрос:
В случае когда предметом чертежа должна служить плита, лично у меня возникает вопрос о представлении чертежа верхнего и нижнего армирования. Как сделать автоматические метки, чтобы они "понимали" верхнее и нижнее армирование? Если такое невозможно (что скорее всего), то как Вы наиболее элегантно выходите из положения?
С уважением...
Как сделать обычную шпильку?
Как сделать обычную шпильку? Стержнем по двум точкам крюк не загибается куда надо, что делать по шести?
Re: Как сделать обычную шпильку?
Эм... А как загибается стержень по двум точкам???alstey писал(а):Как сделать обычную шпильку? Стержнем по двум точкам крюк не загибается куда надо, что делать по шести?
Re: КЖ - пример моделирования и оформления в Tekla Structure
Ну можно же поставить простой прямолинейный стержень по двум точкам и добавить крючки на концах?Yuzer писал(а):Эм... А как загибается стержень по двум точкам???
Re: КЖ - пример моделирования и оформления в Tekla Structure
Так и делается.
Re: КЖ - пример моделирования и оформления в Tekla Structure
А как крюк развернуть в другой плоскости?Yuzer писал(а):Так и делается.
Re: КЖ - пример моделирования и оформления в Tekla Structure
Рабочую плоскость поменять.
Re: КЖ - пример моделирования и оформления в Tekla Structure
Как-то странно они загибаются. Не могу понять почему загибаются по углом 45 к рабочей плоскости.Yuzer писал(а):Рабочую плоскость поменять.
phpbb3 styles
Кто сейчас на конференции
Сейчас этот форум просматривают: нет зарегистрированных пользователей и 6 гостей

