Сварка ставится на чертеже не полностью
Сварка ставится на чертеже не полностью
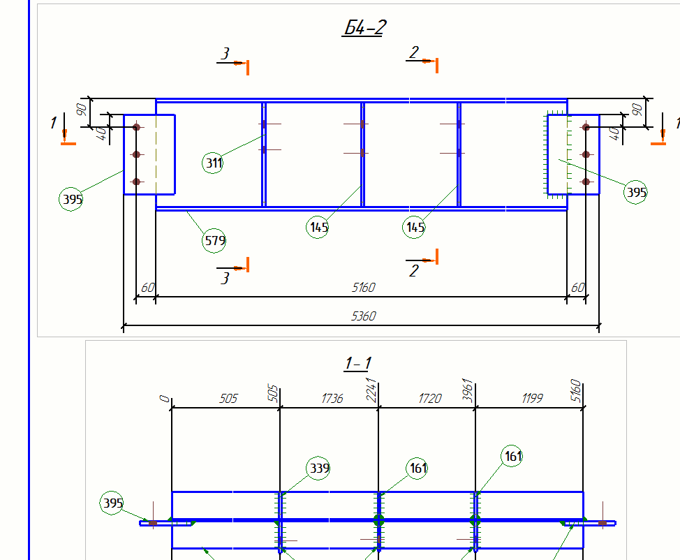
Добрый день! Сталкнулся с проблемой в работе плагина автоматической расстановки сварки. На чертеже сборки почемуто не все швы проставляются после того когда нажимаю на зеленый треугольник, хотя в моделе они все нарисованы твердотельно. Есть еще такой момент что швы на одном виде могут отображаться (катетом ) а на другом нет. Для иллюстарции прикрепляю скрин чертежа балки и скрин ее швов в моделе. В чем может быть проблема?
- Таран Д. А.
- Администратор
- Сообщения: 2877
- Регистрация: 30 ноя 2011, 18:41
- Откуда: г. Москва
- Контактная информация:
Re: Сварка ставится на чертеже не полностью
Такое бывает когда вид получен разрезом и он проходит через эти детали.
Как бы так выразиться... Детали должны не резаться видос при глубине назад 0. То есть сама линия реза не должна проходить через деталь.
Сделай рез немного дальше от соборки и все будет норм.
Как бы так выразиться... Детали должны не резаться видос при глубине назад 0. То есть сама линия реза не должна проходить через деталь.
Сделай рез немного дальше от соборки и все будет норм.
Администратор Topengineer.ru 8 (495) 215-07-79 (офис) ; 8 (925) 755-9318 (сот.); Skype wildomen ; http://vk.com/tekla_structures
Разработка КМД | Разработка КМ | Разработка КЖ | Обучение Tekla Structures | Купить Tekla Structures
Разработка КМД | Разработка КМ | Разработка КЖ | Обучение Tekla Structures | Купить Tekla Structures
phpbb3 styles
Кто сейчас на конференции
Сейчас этот форум просматривают: нет зарегистрированных пользователей и 14 гостей

