Моделирование железобетона в Tekla Structures
- Таран Д. А.
- Администратор
- Сообщения: 2877
- Регистрация: 30 ноя 2011, 18:41
- Откуда: г. Москва
- Контактная информация:
Моделирование железобетона в Tekla Structures
В данном разделе Вы можете задавать любые вопросы по моделированию железобетона в Tekla Structures.
Специалисты сайта http://TopEngineer.ru/ постараются ответить на все Ваши вопросы.
Рекомендуем подробно описывать свою проблему и подкреплять вопрос изображением.
Специалисты сайта http://TopEngineer.ru/ постараются ответить на все Ваши вопросы.
Рекомендуем подробно описывать свою проблему и подкреплять вопрос изображением.
Администратор Topengineer.ru 8 (495) 215-07-79 (офис) ; 8 (925) 755-9318 (сот.); Skype wildomen ; http://vk.com/tekla_structures
Разработка КМД | Разработка КМ | Разработка КЖ | Обучение Tekla Structures | Купить Tekla Structures
Разработка КМД | Разработка КМ | Разработка КЖ | Обучение Tekla Structures | Купить Tekla Structures
Re: Моделирование железобетона в Tekla Structures
Кто нить сделал хоть один проект монолитного ж/б с полной деталировкой?
Re: Моделирование железобетона в Tekla Structures
модели не приходилось встречать, однако есть видеодемки с подробной реализацией ж/б
Re: Моделирование железобетона в Tekla Structures
Как, по вашему мнению, правильнее всего замоделировать монолитную плиту поверх профнастила? Есть вариант кроме вырезания ребристой формы полигоном?
Re: Моделирование железобетона в Tekla Structures
Создав готовый профиль
- Таран Д. А.
- Администратор
- Сообщения: 2877
- Регистрация: 30 ноя 2011, 18:41
- Откуда: г. Москва
- Контактная информация:
Re: Моделирование железобетона в Tekla Structures
Как вариант можно сделать бетон из профиля того же настила но с гораздо большей толщиной а потом верх настила отрезать. Получится что он как настил снизу, но гладкий сверху.
Администратор Topengineer.ru 8 (495) 215-07-79 (офис) ; 8 (925) 755-9318 (сот.); Skype wildomen ; http://vk.com/tekla_structures
Разработка КМД | Разработка КМ | Разработка КЖ | Обучение Tekla Structures | Купить Tekla Structures
Разработка КМД | Разработка КМ | Разработка КЖ | Обучение Tekla Structures | Купить Tekla Structures
Re: Моделирование железобетона в Tekla Structures
Тогда придется создавать профиль для каждого вида настила и в итоге плита будет разбита на куски шириной в 1 лист.Айдар писал(а):Создав готовый профиль
Профили настила не параметрические, а фиксированные. По крайней мере, в русской среде. Так что толщину не изменить, к тому же Текла не сможет построить фигуру, которая имеет конфликты сама с собой, насколько я знаю.Таран Д. А. писал(а):Как вариант можно сделать бетон из профиля того же настила но с гораздо большей толщиной а потом верх настила отрезать. Получится что он как настил снизу, но гладкий сверху.
В идеале хотелось бы видеть компонент типа "выбираешь профиль настила, толщину бетонной плиты и строишь по точкам". Но как такую радость сделать я пока не знаю.
- Таран Д. А.
- Администратор
- Сообщения: 2877
- Регистрация: 30 ноя 2011, 18:41
- Откуда: г. Москва
- Контактная информация:
Re: Моделирование железобетона в Tekla Structures
Сделай параметрический настил. Это дело 15 минут. И параметрический бетонный блок + 2 минуты.
Администратор Topengineer.ru 8 (495) 215-07-79 (офис) ; 8 (925) 755-9318 (сот.); Skype wildomen ; http://vk.com/tekla_structures
Разработка КМД | Разработка КМ | Разработка КЖ | Обучение Tekla Structures | Купить Tekla Structures
Разработка КМД | Разработка КМ | Разработка КЖ | Обучение Tekla Structures | Купить Tekla Structures
Re: Моделирование железобетона в Tekla Structures
Еще раз, может я что не понимаю. Как мне поможет параметрический настил? Текла не может строить элементы, имеющие коллизии сами с собой, так, как это делается в Автокаде командой offset.Таран Д. А. писал(а):Сделай параметрический настил. Это дело 15 минут. И параметрический бетонный блок + 2 минуты.
- Таран Д. А.
- Администратор
- Сообщения: 2877
- Регистрация: 30 ноя 2011, 18:41
- Откуда: г. Москва
- Контактная информация:
Re: Моделирование железобетона в Tekla Structures
Делается 

Администратор Topengineer.ru 8 (495) 215-07-79 (офис) ; 8 (925) 755-9318 (сот.); Skype wildomen ; http://vk.com/tekla_structures
Разработка КМД | Разработка КМ | Разработка КЖ | Обучение Tekla Structures | Купить Tekla Structures
Разработка КМД | Разработка КМ | Разработка КЖ | Обучение Tekla Structures | Купить Tekla Structures
Re: Моделирование железобетона в Tekla Structures
. . .
Последний раз редактировалось ENGINEER 02 янв 2013, 05:32, всего редактировалось 2 раза.
Re: Моделирование железобетона в Tekla Structures
Подскажите пожалуйста, есть ли функция создания проемов в ж.б. стенах и перекрытиях? Как например в Revit? Если нет, то как это можно реализовать? Спасибо
-
- Сообщения: 52
- Регистрация: 05 фев 2012, 14:02
Re: Моделирование железобетона в Tekla Structures
Доброе утро. Очень просто. Я это делаю вырезом многоугольником, хотя не исключаю, что есть и иные подходы...
Re: Моделирование железобетона в Tekla Structures
40 компонент еще есть
Re: Моделирование железобетона в Tekla Structures
Спасибо, теперь хоть знаю что есть "компоненты". Буду их осваивать
Re: Моделирование железобетона в Tekla Structures
Jobber писал(а):Спасибо, теперь хоть знаю что есть "компоненты". Буду их осваивать

Re: Моделирование железобетона в Tekla Structures
Еще 32-м компонентом можно вырезатьJobber писал(а):Подскажите пожалуйста, есть ли функция создания проемов в ж.б. стенах и перекрытиях? Как например в Revit? Если нет, то как это можно реализовать? Спасибо

-
- Сообщения: 1
- Регистрация: 08 июл 2012, 18:01
Re: Моделирование железобетона в Tekla Structures
Здравствуйте, не подскажите в Tekla армировать отдельные жб балки плоскими каркасами можно?
- Таран Д. А.
- Администратор
- Сообщения: 2877
- Регистрация: 30 ноя 2011, 18:41
- Откуда: г. Москва
- Контактная информация:
Re: Моделирование железобетона в Tekla Structures
Текла – строительная программа. Одно из основных ее предназначений это работа с ЖБ. Разумеется армировать можно.bams142006 писал(а):Здравствуйте, не подскажите в Tekla армировать отдельные жб балки плоскими каркасами можно?
Администратор Topengineer.ru 8 (495) 215-07-79 (офис) ; 8 (925) 755-9318 (сот.); Skype wildomen ; http://vk.com/tekla_structures
Разработка КМД | Разработка КМ | Разработка КЖ | Обучение Tekla Structures | Купить Tekla Structures
Разработка КМД | Разработка КМ | Разработка КЖ | Обучение Tekla Structures | Купить Tekla Structures
Re: Моделирование железобетона в Tekla Structures
армировать отдельными стержнями просто и понятно, а как пространственные каркасы и закладные делать ?
можно ли както создавать сборки из арматурных стержней? у меня ничего кроме гнутых сеток не получается
можно ли както создавать сборки из арматурных стержней? у меня ничего кроме гнутых сеток не получается
Re: Моделирование железобетона в Tekla Structures
Здравствуйте! Подскажите, каким образом можно сделать вот такие фундаменты в Текле? Нужно сделать монолит и армирование. Единственный способ, который я на данный момент знаю - набирать каждый выступ (ступеньку или стенку) отдельный элементом, но мне кажется, что это как-то громоздко и неудобно. Надеюсь, что есть какие-то более оптимальные способы решения данной задачи.
P.S. Набирал в Автокаде. Если нужно, могу скинуть файл.
P.S. Набирал в Автокаде. Если нужно, могу скинуть файл.
- Таран Д. А.
- Администратор
- Сообщения: 2877
- Регистрация: 30 ноя 2011, 18:41
- Откуда: г. Москва
- Контактная информация:
Re: Моделирование железобетона в Tekla Structures
Можно взять кубики и объединить. Это не проблема.
Можно антителом. Арматура хорошо парпметризируется.
а так в автокаде сможешь
? http://topengineer.ru/sample/3dmodel/pr ... nie-zdaniy
Автокад умрет сразу.
Можно антителом. Арматура хорошо парпметризируется.
а так в автокаде сможешь

Автокад умрет сразу.

Администратор Topengineer.ru 8 (495) 215-07-79 (офис) ; 8 (925) 755-9318 (сот.); Skype wildomen ; http://vk.com/tekla_structures
Разработка КМД | Разработка КМ | Разработка КЖ | Обучение Tekla Structures | Купить Tekla Structures
Разработка КМД | Разработка КМ | Разработка КЖ | Обучение Tekla Structures | Купить Tekla Structures
Re: Моделирование железобетона в Tekla Structures
это вот так? (3.PNG)Тогда можно ли избавиться от линий между частями фундамента?(4.PNG) Может быть можно как-то объединить геометрию, чтобы обведенных красным линий не было? И еще. Если сделать таким образом, то получается, что в спецификации считается объем каждого отдельного участка фундамента, а не их сумма. Как с этим быть?Можно взять кубики и объединить. Это не проблема.
скажу прямо: очень впечатлило!А так сможешь?
Re: Моделирование железобетона в Tekla Structures
Друзья, здравствуйте!
Подскажите, как сделать сваи в текле?
И связать их верхние выпуска с фундаментной плитой?
Подскажите, как сделать сваи в текле?
И связать их верхние выпуска с фундаментной плитой?
Re: Моделирование железобетона в Tekla Structures
Bunt, здравствуйте! Я думаю можно попробовать сделать так, как в приложенном файле. А по поводу того, как связать - я бы просто сделал выпуски в тело фундамента.
(http://files.mail.ru/F9LTCA - ссылка на файл)
(http://files.mail.ru/F9LTCA - ссылка на файл)
Re: Моделирование железобетона в Tekla Structures
Дружище, evgeny!
Свая просто обалденная, но мне нужна свая такого типа:
Свая просто обалденная, но мне нужна свая такого типа:
Re: Моделирование железобетона в Tekla Structures
В общем, как-то так (картинки 1-6) Если нужно показать, как армировать - пишите, покажу.нужна свая такого типа
P.S. Коллеги, подскажите кто знает, как мне решить проблему с подсчетом объема конструкции в спецификации? (см. выше)
Re: Моделирование железобетона в Tekla Structures
evgeny! Ух ты, спасибо вам.
Если можете конечно лучше покажите, как за армировать её, выпуска арматуры 400мм.
Если можете конечно лучше покажите, как за армировать её, выпуска арматуры 400мм.
Re: Моделирование железобетона в Tekla Structures
В общем, вот ниже ссылка на видео (сделал на скорую руку). За качество прошу сильно не пинать. Весит 117 Мб. Если важен трафик, то могу сделать видео покомпактнее (вырезать все лишнее), но это только завтра, может быть вечером.
http://files.mail.ru/9YK2D7
http://files.mail.ru/9YK2D7
Re: Моделирование железобетона в Tekla Structures
В текле можно моделировать монолитные ж/б элементы с кривизной 2-3 порядка, или вручную отстраивать, разбивая поверхность на треугольники-четырехугольники ?
- Таран Д. А.
- Администратор
- Сообщения: 2877
- Регистрация: 30 ноя 2011, 18:41
- Откуда: г. Москва
- Контактная информация:
Re: Моделирование железобетона в Tekla Structures
Смотря какие именно. Если это часть шара или эллипса то да. Если просто криволинейная поверхность то все немного сложнее.Павел Н. писал(а):В текле можно моделировать монолитные ж/б элементы с кривизной 2-3 порядка, или вручную отстраивать, разбивая поверхность на треугольники-четырехугольники ?
Администратор Topengineer.ru 8 (495) 215-07-79 (офис) ; 8 (925) 755-9318 (сот.); Skype wildomen ; http://vk.com/tekla_structures
Разработка КМД | Разработка КМ | Разработка КЖ | Обучение Tekla Structures | Купить Tekla Structures
Разработка КМД | Разработка КМ | Разработка КЖ | Обучение Tekla Structures | Купить Tekla Structures
Re: Моделирование железобетона в Tekla Structures
Вопрос скорее касается армирования криволинейных поверхностей. Оболочку цилиндрической формы заармировать можно, а вот если оболочка будет сферической? Например купол реактора...Таран Д. А. писал(а):Смотря какие именно. Если это часть шара или эллипса то да. Если просто криволинейная поверхность то все немного сложнее.Павел Н. писал(а):В текле можно моделировать монолитные ж/б элементы с кривизной 2-3 порядка, или вручную отстраивать, разбивая поверхность на треугольники-четырехугольники ?
Re: Моделирование железобетона в Tekla Structures
Добрый день! Скажите, как можно сделать плоские и пространственные каркасы (чтобы они корректно отображались на чертежах и спецификациях) и как можно показывать зоны распределения арматуры?
- Таран Д. А.
- Администратор
- Сообщения: 2877
- Регистрация: 30 ноя 2011, 18:41
- Откуда: г. Москва
- Контактная информация:
Re: Моделирование железобетона в Tekla Structures
Скинь пример того что должно получиться на чертеже. Не все ведомости с монолиткой можно автоматизировать. Язык программирования в текле болон хитрый и имеет множество ограничений.evgeny писал(а):Добрый день! Скажите, как можно сделать плоские и пространственные каркасы (чтобы они корректно отображались на чертежах и спецификациях) и как можно показывать зоны распределения арматуры?
Надо смотреть что именно тебе надо.
Администратор Topengineer.ru 8 (495) 215-07-79 (офис) ; 8 (925) 755-9318 (сот.); Skype wildomen ; http://vk.com/tekla_structures
Разработка КМД | Разработка КМ | Разработка КЖ | Обучение Tekla Structures | Купить Tekla Structures
Разработка КМД | Разработка КМ | Разработка КЖ | Обучение Tekla Structures | Купить Tekla Structures
Re: Моделирование железобетона в Tekla Structures
Скинь пример того что должно получиться на чертеже.
- teandrey89
- Сообщения: 120
- Регистрация: 11 июл 2012, 01:18
- Откуда: Saint Petersburg
Re: Моделирование железобетона в Tekla Structures
Ребят для наглядности может кто-нибуть чертёжик готовый армирования в текле показать!!!
- teandrey89
- Сообщения: 120
- Регистрация: 11 июл 2012, 01:18
- Откуда: Saint Petersburg
Re: Моделирование железобетона в Tekla Structures
Ребят как поколдовать с компоновкой таблиц на листе и с самим содержанием таблиц? Это я так понимаю уже нужно в макетах таблиц расшаривать? На картинке я в атокаде их местами поменял...


- Таран Д. А.
- Администратор
- Сообщения: 2877
- Регистрация: 30 ноя 2011, 18:41
- Откуда: г. Москва
- Контактная информация:
Re: Моделирование железобетона в Tekla Structures
Менять надо компоновки. Только таблицы и компоновку у тебя будут называться иначе.teandrey89 писал(а):Ребят как поколдовать с компоновкой таблиц на листе и с самим содержанием таблиц? Это я так понимаю уже нужно в макетах таблиц расшаривать? На картинке я в атокаде их местами поменял...
Находи то что тебе нужно и магнить к нужному углу нужной таблицы.

Администратор Topengineer.ru 8 (495) 215-07-79 (офис) ; 8 (925) 755-9318 (сот.); Skype wildomen ; http://vk.com/tekla_structures
Разработка КМД | Разработка КМ | Разработка КЖ | Обучение Tekla Structures | Купить Tekla Structures
Разработка КМД | Разработка КМ | Разработка КЖ | Обучение Tekla Structures | Купить Tekla Structures
- teandrey89
- Сообщения: 120
- Регистрация: 11 июл 2012, 01:18
- Откуда: Saint Petersburg
Re: Моделирование железобетона в Tekla Structures
Менять надо компоновки. Только таблицы и компоновку у тебя будут называться иначе.Таран Д. А. писал(а):teandrey89 писал(а):Ребят как поколдовать с компоновкой таблиц на листе и с самим содержанием таблиц? Это я так понимаю уже нужно в макетах таблиц расшаривать? На картинке я в атокаде их местами поменял...
Находи то что тебе нужно и магнить к нужному углу нужной таблицы.
Спасибо Дим, буду пробовать, картинки круть в автокаде получаются, монолитчики визжали от увиденного))))
- Таран Д. А.
- Администратор
- Сообщения: 2877
- Регистрация: 30 ноя 2011, 18:41
- Откуда: г. Москва
- Контактная информация:
Re: Моделирование железобетона в Tekla Structures
Нет! Автокад это смерть. Надо делать все в текле. Любую ведомость можно настроить и сненрить даже по очень сложным алгоритмам.teandrey89 писал(а):Менять надо компоновки. Только таблицы и компоновку у тебя будут называться иначе.Таран Д. А. писал(а):teandrey89 писал(а):Ребят как поколдовать с компоновкой таблиц на листе и с самим содержанием таблиц? Это я так понимаю уже нужно в макетах таблиц расшаривать? На картинке я в атокаде их местами поменял...
Находи то что тебе нужно и магнить к нужному углу нужной таблицы.
Спасибо Дим, буду пробовать, картинки круть в автокаде получаются, монолитчики визжали от увиденного))))
Все это настраивается.
Администратор Topengineer.ru 8 (495) 215-07-79 (офис) ; 8 (925) 755-9318 (сот.); Skype wildomen ; http://vk.com/tekla_structures
Разработка КМД | Разработка КМ | Разработка КЖ | Обучение Tekla Structures | Купить Tekla Structures
Разработка КМД | Разработка КМ | Разработка КЖ | Обучение Tekla Structures | Купить Tekla Structures
- teandrey89
- Сообщения: 120
- Регистрация: 11 июл 2012, 01:18
- Откуда: Saint Petersburg
Re: Моделирование железобетона в Tekla Structures
О даже в кмд рус получается. Спасибо за подсказку.
Еще вопрос, как сделаьь спецификацию чтоб бетон одной строкой прописывался? Я так понимаю в шаблоне нужно формулу суммы объемов конструкций входящих в в состав отливки прописатьи все гуд будет, ну еще и настроиьь ее...
Еще вопрос, как сделаьь спецификацию чтоб бетон одной строкой прописывался? Я так понимаю в шаблоне нужно формулу суммы объемов конструкций входящих в в состав отливки прописатьи все гуд будет, ну еще и настроиьь ее...
Re: Моделирование железобетона в Tekla Structures
Добрый день,
А как сделать замоделировать фундаментные болты?
Читал где-то тут на форуме что можно арматурой, то тогда вопрос а как тогда учесть гайки и шайбы?
А как сделать замоделировать фундаментные болты?
Читал где-то тут на форуме что можно арматурой, то тогда вопрос а как тогда учесть гайки и шайбы?
Re: Моделирование железобетона в Tekla Structures
Сейчас оформляем чертежи для экспертизы Пулково3. Проектируют турки, предоставили чертежи в текле, чтобы не мучили их запросами на те или иные узлы. У них анкерные болты и гайки замоделированы в виде колонн (на некоторых в виде балок) с круглым профилем. И в тех же местах установлены болты (без отображения болта и гайки).Denis писал(а):Добрый день,
А как сделать замоделировать фундаментные болты?
Читал где-то тут на форуме что можно арматурой, то тогда вопрос а как тогда учесть гайки и шайбы?
Последний раз редактировалось chowa 01 фев 2013, 16:59, всего редактировалось 1 раз.
- Таран Д. А.
- Администратор
- Сообщения: 2877
- Регистрация: 30 ноя 2011, 18:41
- Откуда: г. Москва
- Контактная информация:
Re: Моделирование железобетона в Tekla Structures
Было бы неплохо скрины работ.chowa писал(а):Сейчас оформляем чертежи для экспертизы Пулково3. Проектируют турки, предоставили чертежи в текле, чтобы не мучили их запросами на те или иные узлы. У них анкерные болты и гайки замоделированы в виде колонн (на некоторых в виде балок) с круглым профилем. И в тех же местах установлены болты (без отображения болта и гайки).Denis писал(а):Добрый день,
А как сделать замоделировать фундаментные болты?
Читал где-то тут на форуме что можно арматурой, то тогда вопрос а как тогда учесть гайки и шайбы?
Администратор Topengineer.ru 8 (495) 215-07-79 (офис) ; 8 (925) 755-9318 (сот.); Skype wildomen ; http://vk.com/tekla_structures
Разработка КМД | Разработка КМ | Разработка КЖ | Обучение Tekla Structures | Купить Tekla Structures
Разработка КМД | Разработка КМ | Разработка КЖ | Обучение Tekla Structures | Купить Tekla Structures
- teandrey89
- Сообщения: 120
- Регистрация: 11 июл 2012, 01:18
- Откуда: Saint Petersburg
Re: Моделирование железобетона в Tekla Structures
chowa писал(а):Сейчас оформляем чертежи для экспертизы Пулково3. Проектируют турки, предоставили чертежи в текле, чтобы не мучили их запросами на те или иные узлы. У них анкерные болты и гайки замоделированы в виде колонн (на некоторых в виде балок) с круглым профилем. И в тех же местах установлены болты (без отображения болта и гайки).Denis писал(а):Добрый день,
А как сделать замоделировать фундаментные болты?
Читал где-то тут на форуме что можно арматурой, то тогда вопрос а как тогда учесть гайки и шайбы?
Они металл Вам передают или монолит? Турки металл там вроде как бы не проектируют) Что вы оформляете КМ или КЖ?
Болты условно для картинки красивой сделаны... На чертежах скорее всего название прописывается.... если КЖ в текле....
Re: Моделирование железобетона в Tekla Structures
Мы делаем ар, кж и км. В текле дали только км, с недооформленными листами.teandrey89 писал(а):chowa писал(а):Сейчас оформляем чертежи для экспертизы Пулково3. Проектируют турки, предоставили чертежи в текле, чтобы не мучили их запросами на те или иные узлы. У них анкерные болты и гайки замоделированы в виде колонн (на некоторых в виде балок) с круглым профилем. И в тех же местах установлены болты (без отображения болта и гайки).Denis писал(а):Добрый день,
А как сделать замоделировать фундаментные болты?
Читал где-то тут на форуме что можно арматурой, то тогда вопрос а как тогда учесть гайки и шайбы?
Они металл Вам передают или монолит? Турки металл там вроде как бы не проектируют) Что вы оформляете КМ или КЖ?
Болты условно для картинки красивой сделаны... На чертежах скорее всего название прописывается.... если КЖ в текле....
Выноски болтов делают посредством тех, которых не видно (в пластине в тех же местах, но без отображения).
Не знаю, кто делал тот или иной раздел (судя по данным материалам, несколько фирм участвовало), но у нас генпроектировщик - турки.
- teandrey89
- Сообщения: 120
- Регистрация: 11 июл 2012, 01:18
- Откуда: Saint Petersburg
Re: Моделирование железобетона в Tekla Structures
Читал где-то тут на форуме что можно арматурой, то тогда вопрос а как тогда учесть гайки и шайбы?[/quote]
Сейчас оформляем чертежи для экспертизы Пулково3. Проектируют турки, предоставили чертежи в текле, чтобы не мучили их запросами на те или иные узлы. У них анкерные болты и гайки замоделированы в виде колонн (на некоторых в виде балок) с круглым профилем. И в тех же местах установлены болты (без отображения болта и гайки).[/quote]
Они металл Вам передают или монолит? Турки металл там вроде как бы не проектируют) Что вы оформляете КМ или КЖ?
Болты условно для картинки красивой сделаны... На чертежах скорее всего название прописывается.... если КЖ в текле....[/quote]
Мы делаем ар, кж и км. В текле дали только км, с недооформленными листами.
Выноски болтов делают посредством тех, которых не видно (в пластине в тех же местах, но без отображения).
Не знаю, кто делал тот или иной раздел (судя по данным материалам, несколько фирм участвовало), но у нас генпроектировщик - турки.[/quote]
RensCon да? А там как всегда все наоборот сначала Р потом П?
Сейчас оформляем чертежи для экспертизы Пулково3. Проектируют турки, предоставили чертежи в текле, чтобы не мучили их запросами на те или иные узлы. У них анкерные болты и гайки замоделированы в виде колонн (на некоторых в виде балок) с круглым профилем. И в тех же местах установлены болты (без отображения болта и гайки).[/quote]
Они металл Вам передают или монолит? Турки металл там вроде как бы не проектируют) Что вы оформляете КМ или КЖ?
Болты условно для картинки красивой сделаны... На чертежах скорее всего название прописывается.... если КЖ в текле....[/quote]
Мы делаем ар, кж и км. В текле дали только км, с недооформленными листами.
Выноски болтов делают посредством тех, которых не видно (в пластине в тех же местах, но без отображения).
Не знаю, кто делал тот или иной раздел (судя по данным материалам, несколько фирм участвовало), но у нас генпроектировщик - турки.[/quote]
RensCon да? А там как всегда все наоборот сначала Р потом П?
Re: Моделирование железобетона в Tekla Structures
Не знаю историю с самого начала. Но они уже дважды удачно проходили экспертизу, насколько я понял второй раз проходили из-за значительных изменений в проекте. В итоге построили третье, которое во многом не соответствуют последней экспертизе. Вот теперь будут подавать третий раз.teandrey89 писал(а):RensCon да? А там как всегда все наоборот сначала Р потом П?
RensCon? Такого в штампах не встречал. Генпроектировщик - sfmm.
- teandrey89
- Сообщения: 120
- Регистрация: 11 июл 2012, 01:18
- Откуда: Saint Petersburg
Re: Моделирование железобетона в Tekla Structures
А вы в текле оформляете или в Cade? Если в текле можно скринчики посмотреть... (интересно)))
Re: Моделирование железобетона в Tekla Structures
Оформляем в каде. У нас теклу никто не знает) Я раньше работал в advance, но тут подробнее посмотрел теклу. Теперь буду её изучать)teandrey89 писал(а):А вы в текле оформляете или в Cade? Если в текле можно скринчики посмотреть... (интересно)))
Re: Моделирование железобетона в Tekla Structures
К теме про анкера, решил создать стандартный компонент, и расчленить чтобы посмотреть как создан анкерный болт, почему то выходит ошибка в материалах? хотя материал задан
Re: Моделирование железобетона в Tekla Structures
скорее всего проблема с буквой "С", несоответствие материала в детали и каталоге. попробуй поменять "С" кириллицы на латиницу.
Re: Моделирование железобетона в Tekla Structures
Спасибо, да и в самом деле была в этом проблема. в стандартном компоненте все моделируется элементом балка.
А как можно создать свой профиль, на основе стандартного?
А как можно создать свой профиль, на основе стандартного?
- Таран Д. А.
- Администратор
- Сообщения: 2877
- Регистрация: 30 ноя 2011, 18:41
- Откуда: г. Москва
- Контактная информация:
Re: Моделирование железобетона в Tekla Structures
Это уже подробно обсуждали в другой ветке.Denis писал(а):Спасибо, да и в самом деле была в этом проблема. в стандартном компоненте все моделируется элементом балка.
А как можно создать свой профиль, на основе стандартного?

Поиск подскажет

Администратор Topengineer.ru 8 (495) 215-07-79 (офис) ; 8 (925) 755-9318 (сот.); Skype wildomen ; http://vk.com/tekla_structures
Разработка КМД | Разработка КМ | Разработка КЖ | Обучение Tekla Structures | Купить Tekla Structures
Разработка КМД | Разработка КМ | Разработка КЖ | Обучение Tekla Structures | Купить Tekla Structures
Re: Моделирование железобетона в Tekla Structures
а как поменять материал арматуры скажем сделать чтобы было по ГОСТ . А500С, А500, А400, А240? (среда КМД_РУС)
- Таран Д. А.
- Администратор
- Сообщения: 2877
- Регистрация: 30 ноя 2011, 18:41
- Откуда: г. Москва
- Контактная информация:
Re: Моделирование железобетона в Tekla Structures
Пришлось менять в текстовике.
В 3 версии среды будут и таблички и арматуры для КЖ.
В 3 версии среды будут и таблички и арматуры для КЖ.
Администратор Topengineer.ru 8 (495) 215-07-79 (офис) ; 8 (925) 755-9318 (сот.); Skype wildomen ; http://vk.com/tekla_structures
Разработка КМД | Разработка КМ | Разработка КЖ | Обучение Tekla Structures | Купить Tekla Structures
Разработка КМД | Разработка КМ | Разработка КЖ | Обучение Tekla Structures | Купить Tekla Structures
- teandrey89
- Сообщения: 120
- Регистрация: 11 июл 2012, 01:18
- Откуда: Saint Petersburg
Re: Моделирование железобетона в Tekla Structures
В общем 3ю вы будете и под ж/б подбивать, да?Таран Д. А. писал(а):Пришлось менять в текстовике.
В 3 версии среды будут и таблички и арматуры для КЖ.
- Таран Д. А.
- Администратор
- Сообщения: 2877
- Регистрация: 30 ноя 2011, 18:41
- Откуда: г. Москва
- Контактная информация:
Re: Моделирование железобетона в Tekla Structures
да
Администратор Topengineer.ru 8 (495) 215-07-79 (офис) ; 8 (925) 755-9318 (сот.); Skype wildomen ; http://vk.com/tekla_structures
Разработка КМД | Разработка КМ | Разработка КЖ | Обучение Tekla Structures | Купить Tekla Structures
Разработка КМД | Разработка КМ | Разработка КЖ | Обучение Tekla Structures | Купить Tekla Structures
Re: Моделирование железобетона в Tekla Structures
Когда ждать 3-ю версию
- Таран Д. А.
- Администратор
- Сообщения: 2877
- Регистрация: 30 ноя 2011, 18:41
- Откуда: г. Москва
- Контактная информация:
Re: Моделирование железобетона в Tekla Structures
Пока сложно скзать.
Администратор Topengineer.ru 8 (495) 215-07-79 (офис) ; 8 (925) 755-9318 (сот.); Skype wildomen ; http://vk.com/tekla_structures
Разработка КМД | Разработка КМ | Разработка КЖ | Обучение Tekla Structures | Купить Tekla Structures
Разработка КМД | Разработка КМ | Разработка КЖ | Обучение Tekla Structures | Купить Tekla Structures
Re: Моделирование железобетона в Tekla Structures
скажите в вашей среде можно заниматься ЖБ или она сугубо для металла?
- Таран Д. А.
- Администратор
- Сообщения: 2877
- Регистрация: 30 ноя 2011, 18:41
- Откуда: г. Москва
- Контактная информация:
Re: Моделирование железобетона в Tekla Structures


Drente писал(а):скажите в вашей среде можно заниматься ЖБ или она сугубо для металла?
Администратор Topengineer.ru 8 (495) 215-07-79 (офис) ; 8 (925) 755-9318 (сот.); Skype wildomen ; http://vk.com/tekla_structures
Разработка КМД | Разработка КМ | Разработка КЖ | Обучение Tekla Structures | Купить Tekla Structures
Разработка КМД | Разработка КМ | Разработка КЖ | Обучение Tekla Structures | Купить Tekla Structures
Re: Моделирование железобетона в Tekla Structures
Тогда возникает вопрос....я новичек не судите строго за вопросы....я усиленно читаю разного рода литературу по данной программе.....Текла использует сборный ЖБ или же есть возможность монолита?если да то тогда как решаются узлы сопряжения?в ручную или же есть все такие в программе узлы ЖБ?и еще если можно мануальчик какой нибудь полезный посоветуйте о ЖБ
- Таран Д. А.
- Администратор
- Сообщения: 2877
- Регистрация: 30 ноя 2011, 18:41
- Откуда: г. Москва
- Контактная информация:
Re: Моделирование железобетона в Tekla Structures
Узды делаются одинаково что для металла что для бетона. Редактор компанентов один и тот же.Drente писал(а):Тогда возникает вопрос....я новичек не судите строго за вопросы....я усиленно читаю разного рода литературу по данной программе.....Текла использует сборный ЖБ или же есть возможность монолита?если да то тогда как решаются узлы сопряжения?в ручную или же есть все такие в программе узлы ЖБ?и еще если можно мануальчик какой нибудь полезный посоветуйте о ЖБ
Администратор Topengineer.ru 8 (495) 215-07-79 (офис) ; 8 (925) 755-9318 (сот.); Skype wildomen ; http://vk.com/tekla_structures
Разработка КМД | Разработка КМ | Разработка КЖ | Обучение Tekla Structures | Купить Tekla Structures
Разработка КМД | Разработка КМ | Разработка КЖ | Обучение Tekla Structures | Купить Tekla Structures
Re: Моделирование железобетона в Tekla Structures
Подскажите пожалуйста!!!!
1)Можно ли в армировании плиты предусматривать поперечную арматуру??и поддерживающие каркасы(гнутые)?и как это сделать??
2)Как в плите задать доп ряд арматуры???например есть фоновая а мне надо на определенном участке задать доп. ряды...
3)Можно ли выполнять опалубочные чертежи???и отдельно плоские каркасы?
4)При выведении отлитого элемента размеры на армирование проставляются только внизу, слева проставляется лишь габаритный размер....как сделать так чтобы размеры проставлялись на всех видах и сечения и снизу и справа?
5)Как проставить заголовки отлитых элементов,разрезов,сечений,видов?
1)Можно ли в армировании плиты предусматривать поперечную арматуру??и поддерживающие каркасы(гнутые)?и как это сделать??
2)Как в плите задать доп ряд арматуры???например есть фоновая а мне надо на определенном участке задать доп. ряды...
3)Можно ли выполнять опалубочные чертежи???и отдельно плоские каркасы?
4)При выведении отлитого элемента размеры на армирование проставляются только внизу, слева проставляется лишь габаритный размер....как сделать так чтобы размеры проставлялись на всех видах и сечения и снизу и справа?
5)Как проставить заголовки отлитых элементов,разрезов,сечений,видов?
- Таран Д. А.
- Администратор
- Сообщения: 2877
- Регистрация: 30 ноя 2011, 18:41
- Откуда: г. Москва
- Контактная информация:
Re: Моделирование железобетона в Tekla Structures
1) Можно. Тут надо просто уметь пользоваться инструментами моделирования бетона. Их не так много и они простые.Drente писал(а):Подскажите пожалуйста!!!!
1)Можно ли в армировании плиты предусматривать поперечную арматуру??и поддерживающие каркасы(гнутые)?и как это сделать??
2)Как в плите задать доп ряд арматуры???например есть фоновая а мне надо на определенном участке задать доп. ряды...
3)Можно ли выполнять опалубочные чертежи???и отдельно плоские каркасы?
4)При выведении отлитого элемента размеры на армирование проставляются только внизу, слева проставляется лишь габаритный размер....как сделать так чтобы размеры проставлялись на всех видах и сечения и снизу и справа?
5)Как проставить заголовки отлитых элементов,разрезов,сечений,видов?
2) Много разных методов. выбирайте удобный вам.
3) Да
4) Размер перетянуть можно куда угодно. От какой точки обозначать дело хозяйское.
6) В настройках обозначения вида. Там можно выносить разные переменные или делать свои программные шаблоны на любой вкус.
Администратор Topengineer.ru 8 (495) 215-07-79 (офис) ; 8 (925) 755-9318 (сот.); Skype wildomen ; http://vk.com/tekla_structures
Разработка КМД | Разработка КМ | Разработка КЖ | Обучение Tekla Structures | Купить Tekla Structures
Разработка КМД | Разработка КМ | Разработка КЖ | Обучение Tekla Structures | Купить Tekla Structures
Re: Моделирование железобетона в Tekla Structures
"Re: Моделирование железобетона в Tekla Structures
Denis » 03 мар 2013, 11:46
а как поменять материал арматуры скажем сделать чтобы было по ГОСТ . А500С, А500, А400, А240? (среда КМД_РУС)
ВЛОЖЕНИЯ
4.jpeg (285.93 КБ) Просмотров: 680
Denis
Сообщения: 33
Зарегистрирован: 09 июл 2012, 16:22
Re: Моделирование железобетона в Tekla Structures
Таран Д. А. » 04 мар 2013, 17:09
Пришлось менять в текстовике.
В 3 версии среды будут и таблички и арматуры для КЖ."
Вообщем пока данную проблему решил тем что поменял взял текстовик из среды "Russia" и заменил его в среде "КМД_РУС" проблема сорта арматуры решилась само собой. однако как сделать в случае с сеткой проблема в том что она и в среде "russia" неадекватно отображается. А если исходник перебивать под новый сортамент сетка перестает работатть(т.е. отобрается упрощенно прямоугольником)
Denis » 03 мар 2013, 11:46
а как поменять материал арматуры скажем сделать чтобы было по ГОСТ . А500С, А500, А400, А240? (среда КМД_РУС)
ВЛОЖЕНИЯ
4.jpeg (285.93 КБ) Просмотров: 680
Denis
Сообщения: 33
Зарегистрирован: 09 июл 2012, 16:22
Re: Моделирование железобетона в Tekla Structures
Таран Д. А. » 04 мар 2013, 17:09
Пришлось менять в текстовике.
В 3 версии среды будут и таблички и арматуры для КЖ."
Вообщем пока данную проблему решил тем что поменял взял текстовик из среды "Russia" и заменил его в среде "КМД_РУС" проблема сорта арматуры решилась само собой. однако как сделать в случае с сеткой проблема в том что она и в среде "russia" неадекватно отображается. А если исходник перебивать под новый сортамент сетка перестает работатть(т.е. отобрается упрощенно прямоугольником)
Re: Моделирование железобетона в Tekla Structures
подскажите пожалуйста как можно объединить стержни в плоские каркасы???чтобы на чертежах они тоже отображались как каркасы..и в спецификации все это было по правильному как сборная единица...
Re: Моделирование железобетона в Tekla Structures
Поддерживаю вопрос о каркасах. Может кто-нибудь пример выложит?
Re: Моделирование железобетона в Tekla Structures
Есть идеи как создать плиту сложной формы?
- Таран Д. А.
- Администратор
- Сообщения: 2877
- Регистрация: 30 ноя 2011, 18:41
- Откуда: г. Москва
- Контактная информация:
Re: Моделирование железобетона в Tekla Structures
Такую деталь можно вырезать антителом из толстой пластины ну либо объединить в одну деталь несколько.
Вариантов масса.
Вариантов масса.
Администратор Topengineer.ru 8 (495) 215-07-79 (офис) ; 8 (925) 755-9318 (сот.); Skype wildomen ; http://vk.com/tekla_structures
Разработка КМД | Разработка КМ | Разработка КЖ | Обучение Tekla Structures | Купить Tekla Structures
Разработка КМД | Разработка КМ | Разработка КЖ | Обучение Tekla Structures | Купить Tekla Structures
Re: Моделирование железобетона в Tekla Structures
Всем привет.
Подскажите какими параметрами можно настроить нумерацию отлитых элементов. Выдержка из справки: "Бетонные детали нумеруются в соответствии с настройками нумерации отлитых элементов. Например, если префикс отлитого элемента -С, а начальный номер -1, бетонные детали будут иметь префикс детали Concrete_C-1. " Где можно этот "Concrete_" отключить?
Заранее спасибо.
Подскажите какими параметрами можно настроить нумерацию отлитых элементов. Выдержка из справки: "Бетонные детали нумеруются в соответствии с настройками нумерации отлитых элементов. Например, если префикс отлитого элемента -С, а начальный номер -1, бетонные детали будут иметь префикс детали Concrete_C-1. " Где можно этот "Concrete_" отключить?
Заранее спасибо.
- Таран Д. А.
- Администратор
- Сообщения: 2877
- Регистрация: 30 ноя 2011, 18:41
- Откуда: г. Москва
- Контактная информация:
Re: Моделирование железобетона в Tekla Structures
Я убираю сразу в отчете или таблицеAlexS писал(а):Всем привет.
Подскажите какими параметрами можно настроить нумерацию отлитых элементов. Выдержка из справки: "Бетонные детали нумеруются в соответствии с настройками нумерации отлитых элементов. Например, если префикс отлитого элемента -С, а начальный номер -1, бетонные детали будут иметь префикс детали Concrete_C-1. " Где можно этот "Concrete_" отключить?
Заранее спасибо.
Администратор Topengineer.ru 8 (495) 215-07-79 (офис) ; 8 (925) 755-9318 (сот.); Skype wildomen ; http://vk.com/tekla_structures
Разработка КМД | Разработка КМ | Разработка КЖ | Обучение Tekla Structures | Купить Tekla Structures
Разработка КМД | Разработка КМ | Разработка КЖ | Обучение Tekla Structures | Купить Tekla Structures
Re: Моделирование железобетона в Tekla Structures
А как это можно реализовать в таблице? А метки на чертеже - тоже шаблоном?
- Таран Д. А.
- Администратор
- Сообщения: 2877
- Регистрация: 30 ноя 2011, 18:41
- Откуда: г. Москва
- Контактная информация:
Re: Моделирование железобетона в Tekla Structures
AlexS писал(а):А как это можно реализовать в таблице? А метки на чертеже - тоже шаблоном?
Код: Выделить всё
mid(GetValue("PART_POS"),8)
Таким образом получится отрезать начальную часть переменной.
Администратор Topengineer.ru 8 (495) 215-07-79 (офис) ; 8 (925) 755-9318 (сот.); Skype wildomen ; http://vk.com/tekla_structures
Разработка КМД | Разработка КМ | Разработка КЖ | Обучение Tekla Structures | Купить Tekla Structures
Разработка КМД | Разработка КМ | Разработка КЖ | Обучение Tekla Structures | Купить Tekla Structures
Re: Моделирование железобетона в Tekla Structures
Спасибо!
Сделал так:
if mid(GetValue("PART_POS"),0,5)=="Бетон" then mid(GetValue("PART_POS"),6)else GetValue("PART_POS") endif
Сделал так:
if mid(GetValue("PART_POS"),0,5)=="Бетон" then mid(GetValue("PART_POS"),6)else GetValue("PART_POS") endif
Re: Моделирование железобетона в Tekla Structures
Подскажите где можно найти "все" переменные по RebarMesh. Интересует вес продольных и поперечных стержней, или надо вычислять? Если последнее, то пока даже не представляю как это сделать.
Re: Моделирование железобетона в Tekla Structures
Добрый день.
Проектирую давно, но за TEKLA сел только сейчас. Делаю ж.б. подколонник столбчатого фундамента. Использую элемент 83 - армирование колонны прямоугольного сечения. Пытаюсь сделать хомуты и шпильки с одинаковым шагом. Если выделенный красным размер сделать 0, то шаг совпадает, в остальных случаях нет. Может кто знает в чем дело?
Проектирую давно, но за TEKLA сел только сейчас. Делаю ж.б. подколонник столбчатого фундамента. Использую элемент 83 - армирование колонны прямоугольного сечения. Пытаюсь сделать хомуты и шпильки с одинаковым шагом. Если выделенный красным размер сделать 0, то шаг совпадает, в остальных случаях нет. Может кто знает в чем дело?
Re: Моделирование железобетона в Tekla Structures
Добрый вечер! Подскажите, пожалуйста, как создать шар или сферу?
Re: Моделирование железобетона в Tekla Structures
балка профилем SPHERE
Re: Моделирование железобетона в Tekla Structures
Спасибо! Спасибо большое!
Re: Моделирование железобетона в Tekla Structures
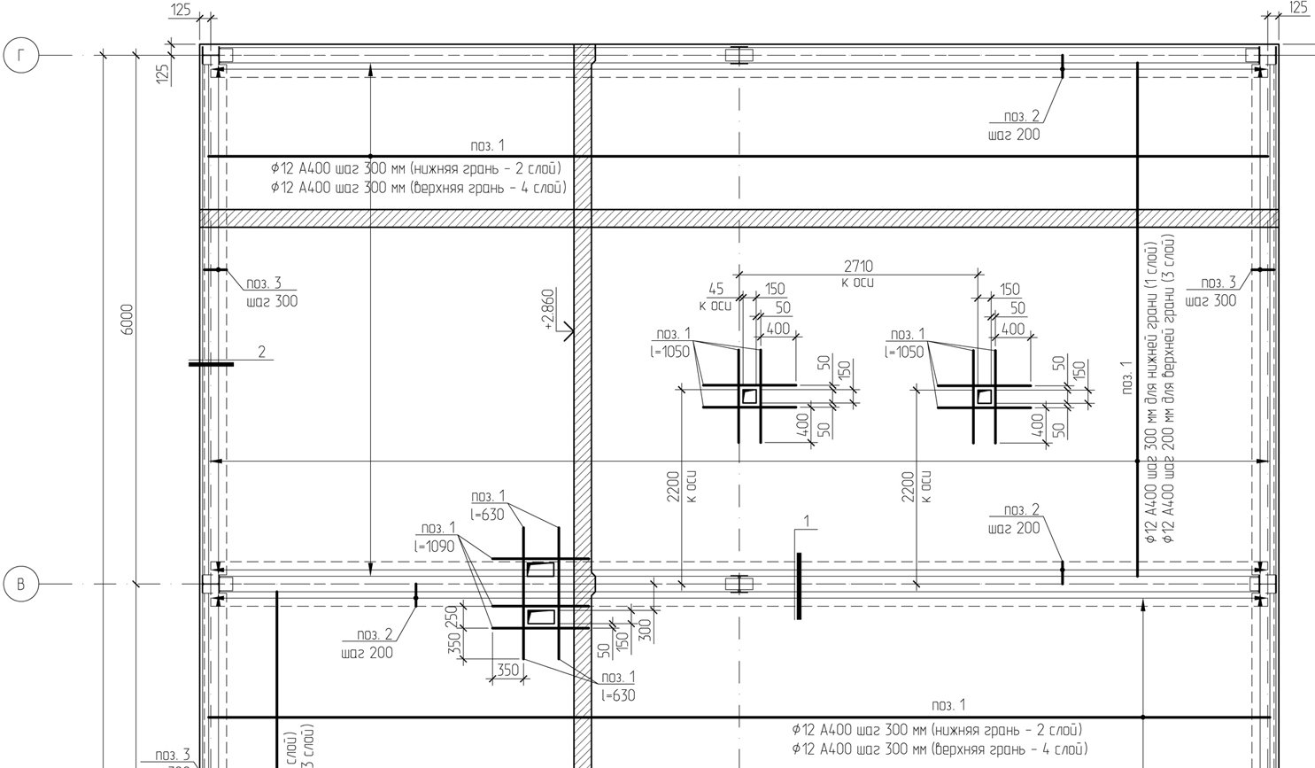
День добрый,подскажите как и с помощью каких инструментов можно сделать такую штуку
Re: Моделирование железобетона в Tekla Structures
Добрый день, есть такие кто делал монолитное ребристое перекрытие? Хочу попросить совета вот по какому вопросу:
при моделировании балок и плит стоит их объединять командой "прикрепить к детали"
- если "да", то как армировать
- если "нет", то для получения чертежа выбирать "чертеж общего вида"?
Спасибо.
при моделировании балок и плит стоит их объединять командой "прикрепить к детали"
- если "да", то как армировать
- если "нет", то для получения чертежа выбирать "чертеж общего вида"?
Спасибо.
Re: Моделирование железобетона в Tekla Structures
После прорезания арматурного стержня хаотично изменяются системы координат полученных стержней.Система координат стержня влияет на физическое расположение стержня(в параметре от плоскости,в качестве плоскости считается рабочая плоскость стержня образованная системой координат стержня ).Кто нибудь сталкивался с данной проблемой?TS19.1.Чаще всего такой случай происходит с гнутым стержнем.Посоветуйте пути решения?(возможно программная реализация).Вариант устанавливать параметр от плоскости в 0 не подходит.
Re: Моделирование железобетона в Tekla Structures
Что-то похожее у меня было при использовании компонента 93 (краевая арматура), армировал монолитную плиту, на некоторых гранях стержень упорно разворачивало на 90градусов, решения лучшего не нашел как тупо скопировать.
У в свою очередь тоже вопрос. Кто как моделировал закладные деталь и как получал чертеж отлитого элемента с этой деталью?
У в свою очередь тоже вопрос. Кто как моделировал закладные деталь и как получал чертеж отлитого элемента с этой деталью?
Re: Моделирование железобетона в Tekla Structures
Здравствуйте.
Как добиться, чтобы вид сверху на чертеже соответствовал реальному виду сверху фундамента? По факту вид сверху на чертеже соответствует виду сбоку фундамента.
Задание верха рабочей поверхности формы не дает результатов. Попытка изменить систему координат через изменение рабочей плоскости то же не дает результатов.
Как добиться, чтобы вид сверху на чертеже соответствовал реальному виду сверху фундамента? По факту вид сверху на чертеже соответствует виду сбоку фундамента.
Задание верха рабочей поверхности формы не дает результатов. Попытка изменить систему координат через изменение рабочей плоскости то же не дает результатов.
- vladimir_a
- Сообщения: 699
- Регистрация: 07 дек 2011, 21:22
Re: Моделирование железобетона в Tekla Structures
вид с торца не помогает?Yuzer писал(а):Здравствуйте.
Как добиться, чтобы вид сверху на чертеже соответствовал реальному виду сверху фундамента? По факту вид сверху на чертеже соответствует виду сбоку фундамента.
Задание верха рабочей поверхности формы не дает результатов. Попытка изменить систему координат через изменение рабочей плоскости то же не дает результатов.
Re: Моделирование железобетона в Tekla Structures
Сделал отдельным видом.vladimir_a писал(а):[вид с торца не помогает?
Вопрос к знатокам: как правильно моделировать сварные арматурные каркасы?
Вариант 1: сделать кругляками со свойствами арматуры.
Вариант 2: сделать инструментом сетка.
Вариант 3: создать компонент из отдельных стержней (не знаю правда как это будет работать в плане маркировки сборок...).
Вся проблема в том, что арматуру между собой нельзя сварить, а соответственно - нельзя сделать сборку.
Re: Моделирование железобетона в Tekla Structures
По 1 варианту думаю, что можно, но как потом эти стержни (кругляки) в ведомость расхода стали добавить?Yuzer писал(а):Сделал отдельным видом.vladimir_a писал(а):[вид с торца не помогает?
Вопрос к знатокам: как правильно моделировать сварные арматурные каркасы?
Вариант 1: сделать кругляками со свойствами арматуры.
Вариант 2: сделать инструментом сетка.
Вариант 3: создать компонент из отдельных стержней (не знаю правда как это будет работать в плане маркировки сборок...).
Вся проблема в том, что арматуру между собой нельзя сварить, а соответственно - нельзя сделать сборку.
Re: Моделирование железобетона в Tekla Structures
Доброго времени суток. Я только начал разбиратся в Текле. У меня вопрос, как мне отобразить арматурные стержни чтобы они в модели показывались в теле ( а сейчас они у меня в линиях) , и еще одно, может есть у кого нибудь шаблон модели со всеми нормальными настройками, если не жалко то поделитесь. Спасибо
- Таран Д. А.
- Администратор
- Сообщения: 2877
- Регистрация: 30 ноя 2011, 18:41
- Откуда: г. Москва
- Контактная информация:
Re: Моделирование железобетона в Tekla Structures
Линиями потому что у тебя нет каталога арматуры.Lutik_3 писал(а):Доброго времени суток. Я только начал разбиратся в Текле. У меня вопрос, как мне отобразить арматурные стержни чтобы они в модели показывались в теле ( а сейчас они у меня в линиях) , и еще одно, может есть у кого нибудь шаблон модели со всеми нормальными настройками, если не жалко то поделитесь. Спасибо
По настройкам там слишком много всего надо менять.
Вообще для этого у нас и есть среда Topengineer/ от стандартной мы отказались сразу.
Мы свою среду уже как 6 лет делаем и то дорабатываем и еще работы очень много впереди. Слишком много всего надо настроить сразу.
Администратор Topengineer.ru 8 (495) 215-07-79 (офис) ; 8 (925) 755-9318 (сот.); Skype wildomen ; http://vk.com/tekla_structures
Разработка КМД | Разработка КМ | Разработка КЖ | Обучение Tekla Structures | Купить Tekla Structures
Разработка КМД | Разработка КМ | Разработка КЖ | Обучение Tekla Structures | Купить Tekla Structures
Re: Моделирование железобетона в Tekla Structures
Может у вас есть ссылка на видео где показано шаги по настройкам, хотя бы базовые настройки, с чего начать!? И где я могу найти этот каталог арматуры?
Re: Моделирование железобетона в Tekla Structures
Если честно, вся необходимая информация для того, чтобы начать работать есть в справке (F1).Lutik_3 писал(а):Может у вас есть ссылка на видео где показано шаги по настройкам, хотя бы базовые настройки, с чего начать!? И где я могу найти этот каталог арматуры?
Разделов "моделирование", "детализация" и "создание чертежей" для начала вполне достаточно. Если всё-таки останутся вопросы - на этом форуме, скорее всего, можно найти ответы.
P.S. если же вам не подходит такой вариант, то можно пройти обучение у Топинженер и/или купить среду.
P.P.S. ИМХО: без прохождения обучения или хотя бы малейшего понимания что вообще происходит в программе среда вам не сильно поможет...

«Есть только две бесконечные вещи: Вселенная и глупость. Хотя насчет Вселенной я не вполне уверен.» А. Эйнштейн
- Таран Д. А.
- Администратор
- Сообщения: 2877
- Регистрация: 30 ноя 2011, 18:41
- Откуда: г. Москва
- Контактная информация:
Re: Моделирование железобетона в Tekla Structures
Для настойки необходимо будет потратить времени не меньше чем мы (6 лет) ну и знать редактор и все его тонкости обязательно. Коллега правильно подметил без обучения точно никак. Новичкам там не справиться точно.
Администратор Topengineer.ru 8 (495) 215-07-79 (офис) ; 8 (925) 755-9318 (сот.); Skype wildomen ; http://vk.com/tekla_structures
Разработка КМД | Разработка КМ | Разработка КЖ | Обучение Tekla Structures | Купить Tekla Structures
Разработка КМД | Разработка КМ | Разработка КЖ | Обучение Tekla Structures | Купить Tekla Structures
Re: Моделирование железобетона в Tekla Structures
Спасибо. Будем изучать)))
Re: Моделирование железобетона в Tekla Structures
Здравствуйте.
Есть ли в программе готовые компоненты - поддерживающие элементы (фиксаторы) типа "лягушек"?
Или какой способ их создание наиболее оптимальный?
КЖ в Текле делаю впервые.
Заранее благодарю за ответ.
Есть ли в программе готовые компоненты - поддерживающие элементы (фиксаторы) типа "лягушек"?
Или какой способ их создание наиболее оптимальный?
КЖ в Текле делаю впервые.
Заранее благодарю за ответ.
Re: Моделирование железобетона в Tekla Structures
Можно сделать свой компонент типа "Деталь" для лягушек и потом применять его в других проектах.Виталий писал(а):Здравствуйте.
Есть ли в программе готовые компоненты - поддерживающие элементы (фиксаторы) типа "лягушек"?
Или какой способ их создание наиболее оптимальный?
КЖ в Текле делаю впервые.
Заранее благодарю за ответ.
Re: Моделирование железобетона в Tekla Structures
Я правильно понял, готового компонента нет?RHSY писал(а):Можно сделать свой компонент типа "Деталь" для лягушек и потом применять его в других проектах.Виталий писал(а):Здравствуйте.
Есть ли в программе готовые компоненты - поддерживающие элементы (фиксаторы) типа "лягушек"?
Или какой способ их создание наиболее оптимальный?
КЖ в Текле делаю впервые.
Заранее благодарю за ответ.
Re: Моделирование железобетона в Tekla Structures
Здравствуйте.
Как в компоненте 83 изменить длину крюка хомутов?
Заранее благодарю за ответ.
Как в компоненте 83 изменить длину крюка хомутов?
Заранее благодарю за ответ.
phpbb3 styles
Кто сейчас на конференции
Сейчас этот форум просматривают: нет зарегистрированных пользователей и 1 гость