Чертежи архитектуры в Tekla Structures
- Таран Д. А.
- Администратор
- Сообщения: 2877
- Регистрация: 30 ноя 2011, 18:41
- Откуда: г. Москва
- Контактная информация:
Чертежи архитектуры в Tekla Structures
Чертежи архитектуры в Tekla Structures
Администратор Topengineer.ru 8 (495) 215-07-79 (офис) ; 8 (925) 755-9318 (сот.); Skype wildomen ; http://vk.com/tekla_structures
Разработка КМД | Разработка КМ | Разработка КЖ | Обучение Tekla Structures | Купить Tekla Structures
Разработка КМД | Разработка КМ | Разработка КЖ | Обучение Tekla Structures | Купить Tekla Structures
Re: Чертежи архитектуры в Tekla Structures
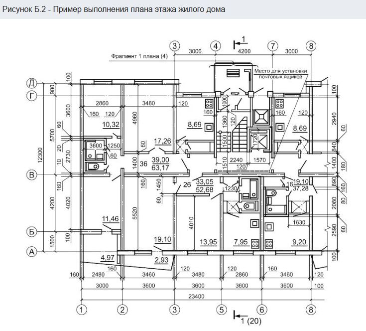
ну....если интересно, то двери не так обозначают
Re: Чертежи архитектуры в Tekla Structures
Если речь идет о примерах с ГОСТа, тогда спасибо, я в курсе.
- Таран Д. А.
- Администратор
- Сообщения: 2877
- Регистрация: 30 ноя 2011, 18:41
- Откуда: г. Москва
- Контактная информация:
Re: Чертежи архитектуры в Tekla Structures
Все норм. Читаем ГОСТ
Вообще как изобразить дверь проблем нет, хоть в форме зайчика.
Администратор Topengineer.ru 8 (495) 215-07-79 (офис) ; 8 (925) 755-9318 (сот.); Skype wildomen ; http://vk.com/tekla_structures
Разработка КМД | Разработка КМ | Разработка КЖ | Обучение Tekla Structures | Купить Tekla Structures
Разработка КМД | Разработка КМ | Разработка КЖ | Обучение Tekla Structures | Купить Tekla Structures
Re: Чертежи архитектуры в Tekla Structures
так и живем...одна контора - одному нормально, другому нет 
- Таран Д. А.
- Администратор
- Сообщения: 2877
- Регистрация: 30 ноя 2011, 18:41
- Откуда: г. Москва
- Контактная информация:
Re: Чертежи архитектуры в Tekla Structures
Согласен.CuPo>I<a писал(а):так и живем...одна контора - одному нормально, другому нет
Администратор Topengineer.ru 8 (495) 215-07-79 (офис) ; 8 (925) 755-9318 (сот.); Skype wildomen ; http://vk.com/tekla_structures
Разработка КМД | Разработка КМ | Разработка КЖ | Обучение Tekla Structures | Купить Tekla Structures
Разработка КМД | Разработка КМ | Разработка КЖ | Обучение Tekla Structures | Купить Tekla Structures
- Таран Д. А.
- Администратор
- Сообщения: 2877
- Регистрация: 30 ноя 2011, 18:41
- Откуда: г. Москва
- Контактная информация:
Re: Чертежи архитектуры в Tekla Structures
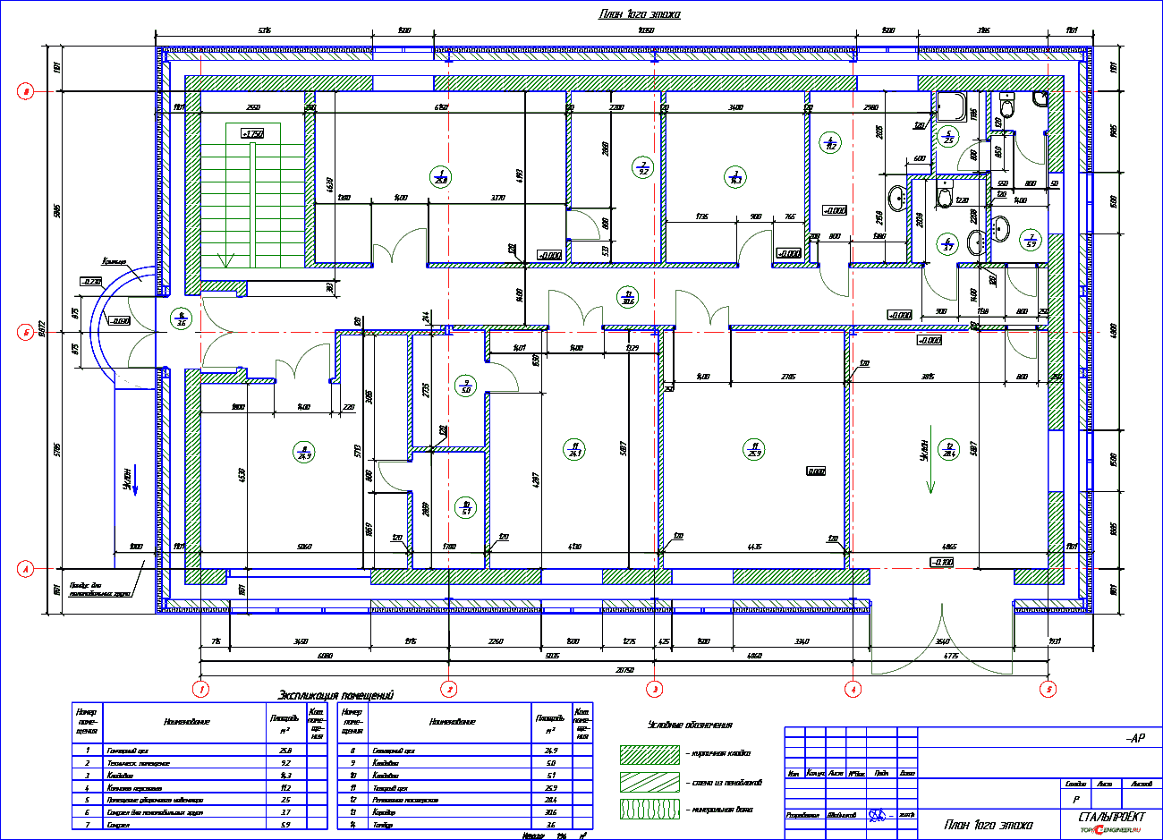
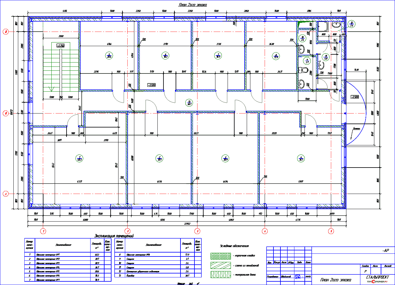
Еще пример
Администратор Topengineer.ru 8 (495) 215-07-79 (офис) ; 8 (925) 755-9318 (сот.); Skype wildomen ; http://vk.com/tekla_structures
Разработка КМД | Разработка КМ | Разработка КЖ | Обучение Tekla Structures | Купить Tekla Structures
Разработка КМД | Разработка КМ | Разработка КЖ | Обучение Tekla Structures | Купить Tekla Structures
Re: Чертежи архитектуры в Tekla Structures
Это архитектура или ТХ в итоге?
Если ТХ - где спецификация на оборудование? Зачем размеры и обозначения архитектурные даны?
Если архитектура - где привязки внутренних стен и перегородок, маркировки окон, дверей, крылец, пожарных лестниц, уклон пандуса, отметка крыльца?! Неправильно показаны лестницы, размерные цепочки и оси на все вокруг налетают (видимо пихали, чтобы поместилось на лист). Нет техтребований...ну и еще много всяких "где?" и "почему?".
Зачем такие сырые картинки выкладывать? С топинженеровским авторитетом люди же будут думать, что это предел возможностей теклы...
Если ТХ - где спецификация на оборудование? Зачем размеры и обозначения архитектурные даны?
Если архитектура - где привязки внутренних стен и перегородок, маркировки окон, дверей, крылец, пожарных лестниц, уклон пандуса, отметка крыльца?! Неправильно показаны лестницы, размерные цепочки и оси на все вокруг налетают (видимо пихали, чтобы поместилось на лист). Нет техтребований...ну и еще много всяких "где?" и "почему?".
Зачем такие сырые картинки выкладывать? С топинженеровским авторитетом люди же будут думать, что это предел возможностей теклы...
- Таран Д. А.
- Администратор
- Сообщения: 2877
- Регистрация: 30 ноя 2011, 18:41
- Откуда: г. Москва
- Контактная информация:
Re: Чертежи архитектуры в Tekla Structures
Выложи свои. Не вопрос.
Администратор Topengineer.ru 8 (495) 215-07-79 (офис) ; 8 (925) 755-9318 (сот.); Skype wildomen ; http://vk.com/tekla_structures
Разработка КМД | Разработка КМ | Разработка КЖ | Обучение Tekla Structures | Купить Tekla Structures
Разработка КМД | Разработка КМ | Разработка КЖ | Обучение Tekla Structures | Купить Tekla Structures
Re: Чертежи архитектуры в Tekla Structures
мдя...речь вобще-то не об этом.
phpbb3 styles
Кто сейчас на конференции
Сейчас этот форум просматривают: нет зарегистрированных пользователей и 14 гостей

