Создание ребристых панелей перекрытия в Tekla Structures
-
vvvitalikkk
- Сообщения: 5
- Регистрация: 12 окт 2014, 13:04
Создание ребристых панелей перекрытия в Tekla Structures
Добрый день!
Подскажите пожалуйста, есть ли некий простой способ создания ребристых панелей перекрытия в текле, 3x6 м и 1.5x6м? В каталоге профилей и компонентов не нашел.
Спасибо!
Подскажите пожалуйста, есть ли некий простой способ создания ребристых панелей перекрытия в текле, 3x6 м и 1.5x6м? В каталоге профилей и компонентов не нашел.
Спасибо!
- Таран Д. А.
- Администратор
- Сообщения: 2877
- Регистрация: 30 ноя 2011, 18:41
- Откуда: г. Москва
- Контактная информация:
Re: Создание ребристых панелей перекрытия в Tekla Structures
Ну ты хоть скрин профиля то скинь. Ты метешь ввиду полфнастил?vvvitalikkk писал(а):Добрый день!
Подскажите пожалуйста, есть ли некий простой способ создания ребристых панелей перекрытия в текле, 3x6 м и 1.5x6м? В каталоге профилей и компонентов не нашел.
Спасибо!
Вообще вариантов несколько.
Администратор Topengineer.ru 8 (495) 215-07-79 (офис) ; 8 (925) 755-9318 (сот.); Skype wildomen ; http://vk.com/tekla_structures
Разработка КМД | Разработка КМ | Разработка КЖ | Обучение Tekla Structures | Купить Tekla Structures
Разработка КМД | Разработка КМ | Разработка КЖ | Обучение Tekla Structures | Купить Tekla Structures
-
vvvitalikkk
- Сообщения: 5
- Регистрация: 12 окт 2014, 13:04
Re: Создание ребристых панелей перекрытия в Tekla Structures
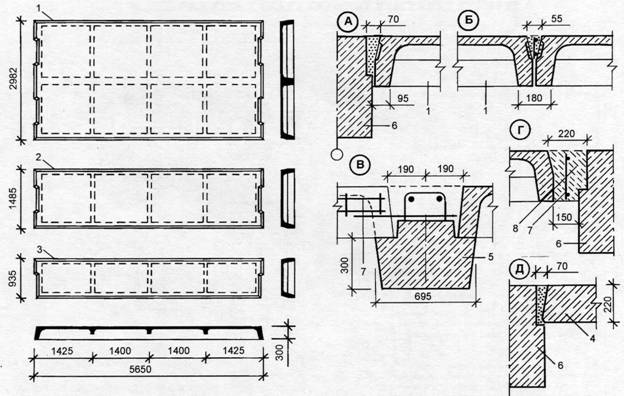
Прошу прощения, ссылка ниже, это не профнастил, это сборная железобетонная панель.
- Таран Д. А.
- Администратор
- Сообщения: 2877
- Регистрация: 30 ноя 2011, 18:41
- Откуда: г. Москва
- Контактная информация:
Re: Создание ребристых панелей перекрытия в Tekla Structures
Сделай из примитивов потом объедини.
Профиль не надо никакой.
Профиль не надо никакой.
Администратор Topengineer.ru 8 (495) 215-07-79 (офис) ; 8 (925) 755-9318 (сот.); Skype wildomen ; http://vk.com/tekla_structures
Разработка КМД | Разработка КМ | Разработка КЖ | Обучение Tekla Structures | Купить Tekla Structures
Разработка КМД | Разработка КМ | Разработка КЖ | Обучение Tekla Structures | Купить Tekla Structures
Re: Создание ребристых панелей перекрытия в Tekla Structures
Я делал не из отдельных примитивов.
Сделал основной профиль. Остальное - добавил.
Сделал основной профиль. Остальное - добавил.
-
vvvitalikkk
- Сообщения: 5
- Регистрация: 12 окт 2014, 13:04
Re: Создание ребристых панелей перекрытия в Tekla Structures
Понятно, спасибо эа советы.
-
vvvitalikkk
- Сообщения: 5
- Регистрация: 12 окт 2014, 13:04
Re: Создание ребристых панелей перекрытия в Tekla Structures
А какой именно профиль позволяет частично создать данный елемент, я что-то у себя не видел ничего похожего. Можно скрин из каталога профилей? или ето самодельный профиль?Yuzer писал(а):Я делал не из отдельных примитивов.
Сделал основной профиль. Остальное - добавил.
Re: Создание ребристых панелей перекрытия в Tekla Structures
Профиль делал самостоятельно.vvvitalikkk писал(а):А какой именно профиль позволяет частично создать данный елемент, я что-то у себя не видел ничего похожего. Можно скрин из каталога профилей? или ето самодельный профиль?Yuzer писал(а):Я делал не из отдельных примитивов.
Сделал основной профиль. Остальное - добавил.
Благо в текле есть много способов запилить нужный профиль.
-
vvvitalikkk
- Сообщения: 5
- Регистрация: 12 окт 2014, 13:04
Re: Создание ребристых панелей перекрытия в Tekla Structures
Ясно, спасибо ))
phpbb3 styles
Кто сейчас на конференции
Сейчас этот форум просматривают: нет зарегистрированных пользователей и 16 гостей

