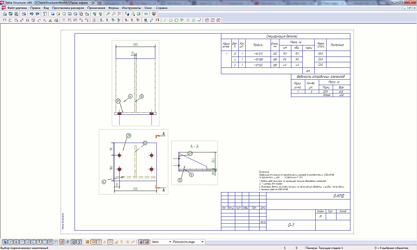
Чертеж сборки в Tekla Structures
Чертеж сборки в Tekla Structures
Как сделать так чтобы сборка не переворачивалась "верх ногами" при создании чертежей?
-
dimitriy_popov
- Сообщения: 103
- Регистрация: 15 дек 2011, 10:02
- Откуда: Тула
Re: Чертеж сборки
справка - "Определение ориентации деталей в видах чертежей"
Re: Чертеж сборки
Как исправить что создается пустой чертеж сборки?
- Таран Д. А.
- Администратор
- Сообщения: 2877
- Регистрация: 30 ноя 2011, 18:41
- Откуда: г. Москва
- Контактная информация:
Re: Чертеж сборки в Tekla Structures
Создалось все правильно. Начертательную геометрию никто не отменял.Denis писал(а):Как сделать так чтобы сборка не переворачивалась "верх ногами" при создании чертежей?
Администратор Topengineer.ru 8 (495) 215-07-79 (офис) ; 8 (925) 755-9318 (сот.); Skype wildomen ; http://vk.com/tekla_structures
Разработка КМД | Разработка КМ | Разработка КЖ | Обучение Tekla Structures | Купить Tekla Structures
Разработка КМД | Разработка КМ | Разработка КЖ | Обучение Tekla Structures | Купить Tekla Structures
- Таран Д. А.
- Администратор
- Сообщения: 2877
- Регистрация: 30 ноя 2011, 18:41
- Откуда: г. Москва
- Контактная информация:
Re: Чертеж сборки
Чертежи&Отчеты - Настройка чертежа-чертеж сборки-видDenis писал(а):Как исправить что создается пустой чертеж сборки?
Администратор Topengineer.ru 8 (495) 215-07-79 (офис) ; 8 (925) 755-9318 (сот.); Skype wildomen ; http://vk.com/tekla_structures
Разработка КМД | Разработка КМ | Разработка КЖ | Обучение Tekla Structures | Купить Tekla Structures
Разработка КМД | Разработка КМ | Разработка КЖ | Обучение Tekla Structures | Купить Tekla Structures
Re: Чертеж сборки в Tekla Structures
Уважаемые форумчане, подскажите что можно сделать.
Это касается и сборочного и комплексного чертежей. Я заранее сделал чертежи деталей и теперь хочу вставить в сборочный чертеж либо через "копировать" или через "связать" из диалогового окна СПИСОК ЧЕРТЕЖЕЙ. Данные детали содержатся не только в этой сборке. При том и другом варианте вставки чертежи деталей вставляются, НО в спецификацию сборочного чертежа лезут и другие сборки, хотя их тут быть не должно. Что можно сделать? Заранее спасибо за помощь!
Это касается и сборочного и комплексного чертежей. Я заранее сделал чертежи деталей и теперь хочу вставить в сборочный чертеж либо через "копировать" или через "связать" из диалогового окна СПИСОК ЧЕРТЕЖЕЙ. Данные детали содержатся не только в этой сборке. При том и другом варианте вставки чертежи деталей вставляются, НО в спецификацию сборочного чертежа лезут и другие сборки, хотя их тут быть не должно. Что можно сделать? Заранее спасибо за помощь!
Re: Чертеж сборки в Tekla Structures
шаблон надо править
в переменных для чертежа есть атрибут DRAWING.DR_PART_POS
надо чтобы номер марки ASSEMBLY_POS равнялся этому атрибуту, тогда выводить строку для марки, иначе не выводить
в переменных для чертежа есть атрибут DRAWING.DR_PART_POS
надо чтобы номер марки ASSEMBLY_POS равнялся этому атрибуту, тогда выводить строку для марки, иначе не выводить
phpbb3 styles
Кто сейчас на конференции
Сейчас этот форум просматривают: нет зарегистрированных пользователей и 6 гостей

