Практический семинар Tekla Structures 2017

КЖ - пример моделирования и оформления в Tekla Structures


Sega
Сообщения: 25
Регистрация: 23 янв 2014, 08:18

Re: КЖ - пример моделирования и оформления в Tekla Structure

Сообщение Sega » 24 янв 2014, 08:03

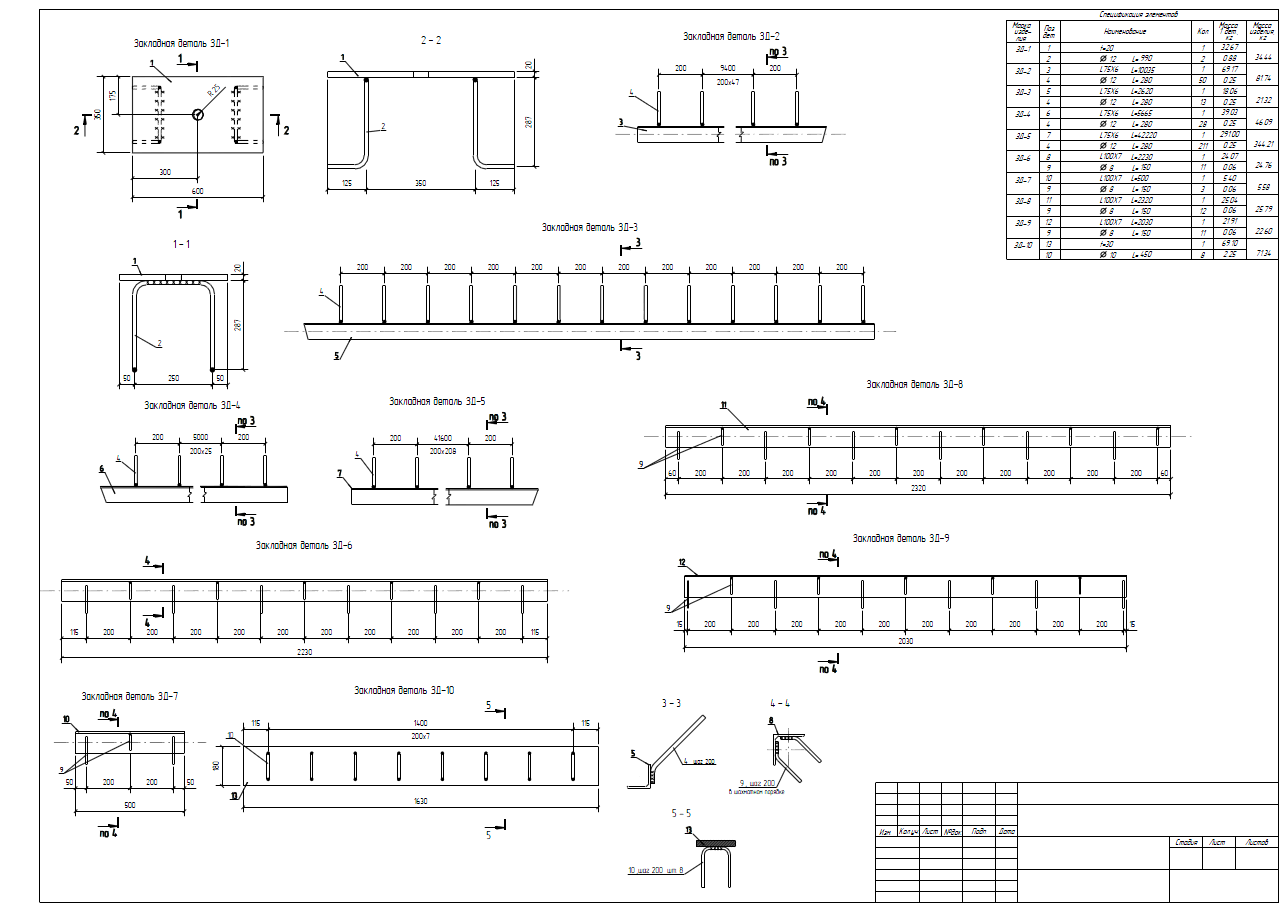
1.png
1.pdf
(138.23 КБ) 2289 скачиваний
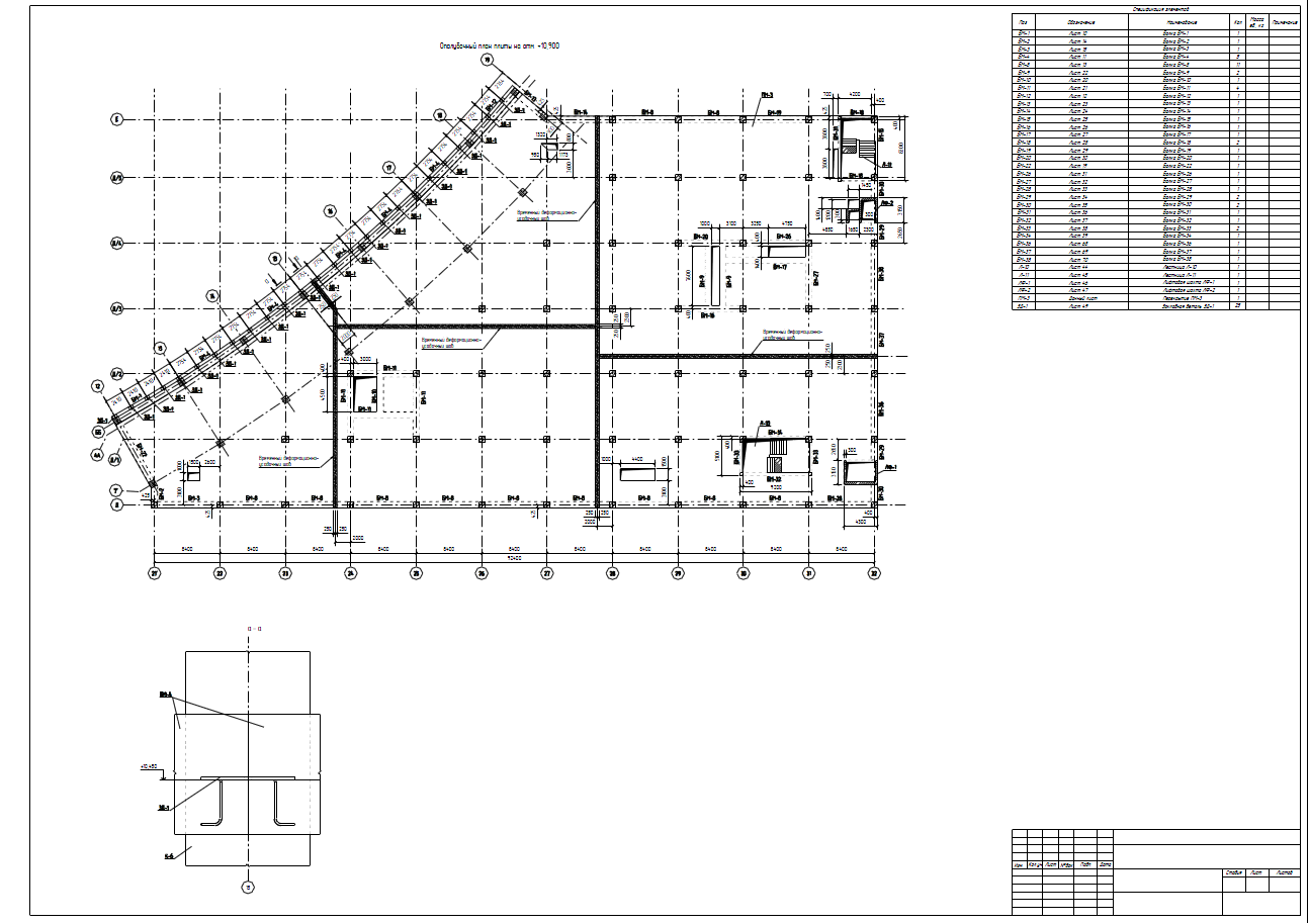
2.png
2.pdf
(762.03 КБ) 1537 скачиваний
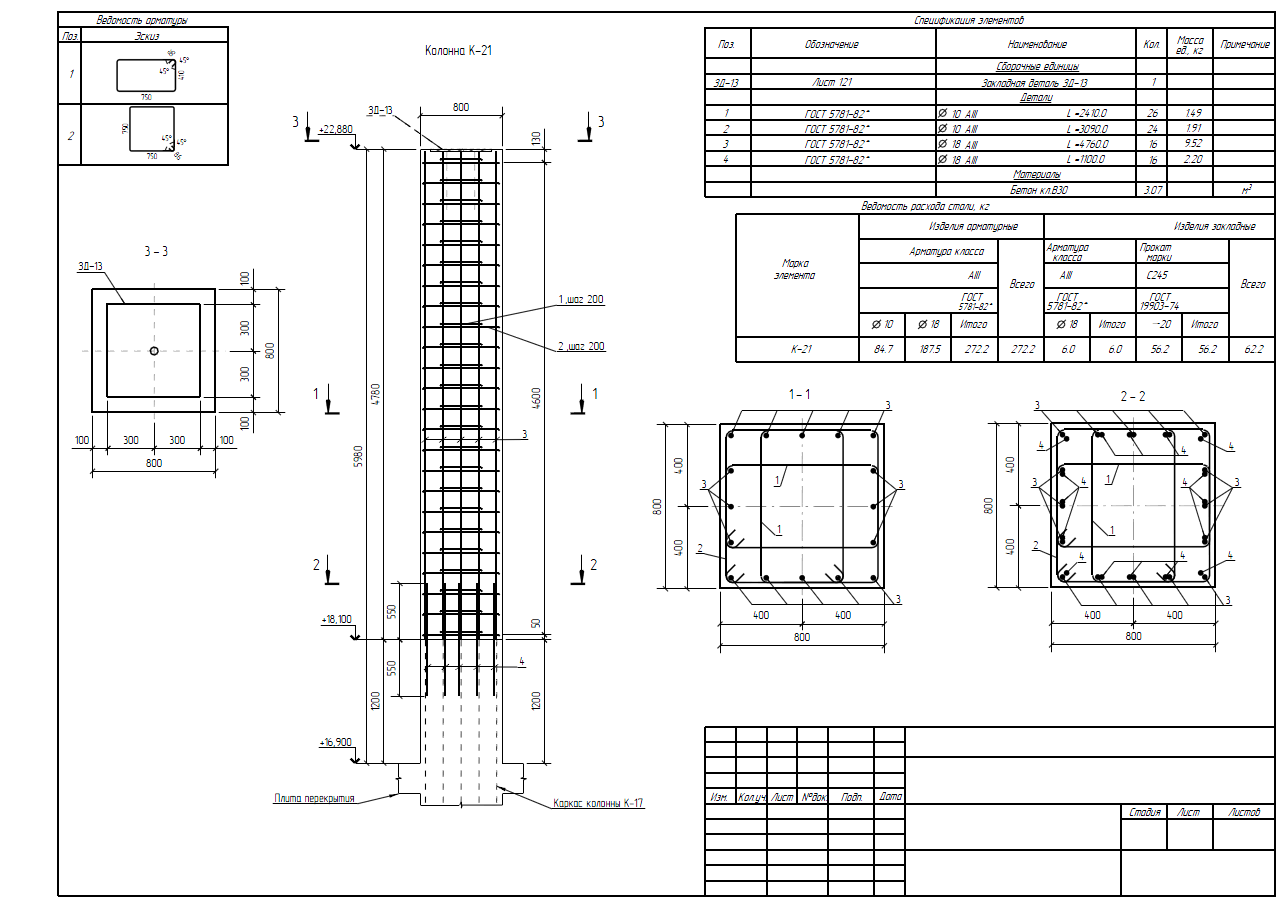
3.png
3.pdf
(68.29 КБ) 1386 скачиваний
4.png
4.pdf
(100.79 КБ) 1496 скачиваний
5.png
5.pdf
(81.08 КБ) 10201 скачивание

Sega
Сообщения: 25
Регистрация: 23 янв 2014, 08:18

Re: КЖ - пример моделирования и оформления в Tekla Structure

Сообщение Sega » 24 янв 2014, 08:04

6.png
6.pdf
(285.95 КБ) 1582 скачивания

RHSY
Сообщения: 175
Регистрация: 23 июл 2013, 09:42

Re: КЖ - пример моделирования и оформления в Tekla Structure

Сообщение RHSY » 24 янв 2014, 08:14

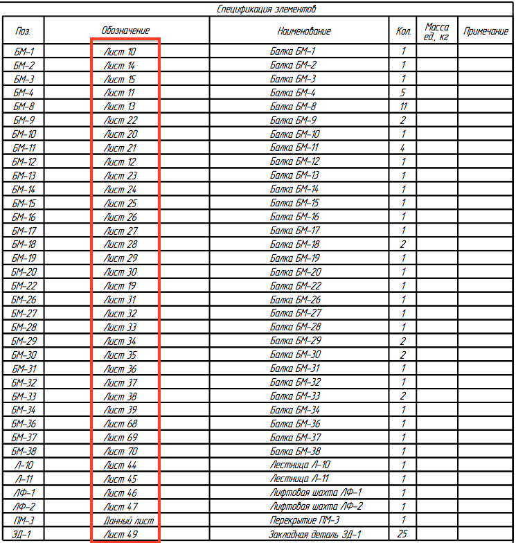
Классно! А ведомость расхода стали тоже в TS сделана?

Sega
Сообщения: 25
Регистрация: 23 янв 2014, 08:18

Re: КЖ - пример моделирования и оформления в Tekla Structure

Сообщение Sega » 24 янв 2014, 08:18

RHSY писал(а):А ведомость расхода стали тоже в TS сделана?
Так точно!

RHSY
Сообщения: 175
Регистрация: 23 июл 2013, 09:42

Re: КЖ - пример моделирования и оформления в Tekla Structure

Сообщение RHSY » 24 янв 2014, 08:28

На форуме было много разговоров, что невозможно сделать ведомость расхода материалов как выполнено у вас (в столбик). Стандартная ведомость выполнена по строчно и не соответствует ГОСТ. Как вы добились этого? Хотя бы наводку можете сказать. Спасибо.

Аватара пользователя
Таран Д. А.
Администратор
Сообщения: 2877
Регистрация: 30 ноя 2011, 18:41
Откуда: г. Москва
Контактная информация:

Re: КЖ - пример моделирования и оформления в Tekla Structure

Сообщение Таран Д. А. » 24 янв 2014, 09:30

RHSY писал(а):На форуме было много разговоров, что невозможно сделать ведомость расхода материалов как выполнено у вас (в столбик). Стандартная ведомость выполнена по строчно и не соответствует ГОСТ. Как вы добились этого? Хотя бы наводку можете сказать. Спасибо.
Если знать заранее хотя материал арматуры путь и все 2-3 материала тогда можно сделать. А вот универсально для всех я не знаю как.
Не думаю что вертикальное или горизонтальное расположение спецификации является принципиальной вещью. На производство оно никак не влияет. Можете спросить в цеху. Им реально плевать.
Вывод: Стоит ли так заморачиваться?

От использования теклы плюсов намного больше :geek:

Sega
Сообщения: 25
Регистрация: 23 янв 2014, 08:18

Re: КЖ - пример моделирования и оформления в Tekla Structure

Сообщение Sega » 24 янв 2014, 10:18

Если знать заранее хотя материал арматуры путь и все 2-3 материала тогда можно сделать.
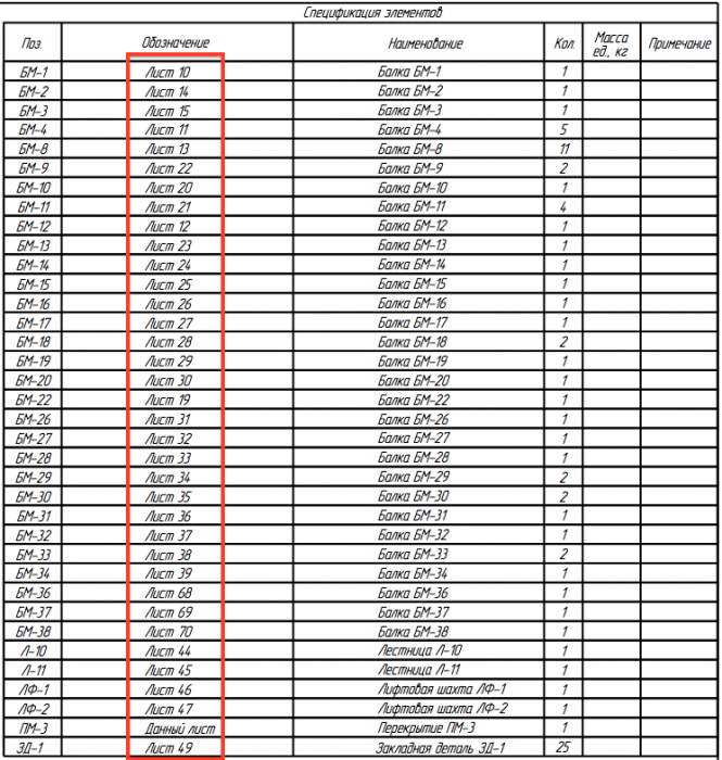
Это, Дим, ты говоришь про подобный путь решения, как в спецификации металлопроката. Здесь не так сделано. Если б здесь была АI, то тоже все было хорошо. И лишних телодвижений не надо было.
Как вы добились этого? Хотя бы наводку можете сказать.
Колонками сделал. Это таблица не состоит из одной. Там где нет закладных, там из двух, с закладными - из четырех. Но, думаю, что нет предела совершенству. Это было первое КЖ, поэтому пока так, как есть. Поскольку, когда нет закладух, компановка не хромает, не надо ничего лишнего делать, все хорошо получается. А вот с закладными надо еще поработать!)

Аватара пользователя
Таран Д. А.
Администратор
Сообщения: 2877
Регистрация: 30 ноя 2011, 18:41
Откуда: г. Москва
Контактная информация:

Re: КЖ - пример моделирования и оформления в Tekla Structure

Сообщение Таран Д. А. » 24 янв 2014, 10:23

Sega писал(а):
Если знать заранее хотя материал арматуры путь и все 2-3 материала тогда можно сделать.
Это, Дим, ты говоришь про подобный путь решения, как в спецификации металлопроката. Здесь не так сделано. Если б здесь была АI, то тоже все было хорошо. И лишних телодвижений не надо было.
Как вы добились этого? Хотя бы наводку можете сказать.
Колонками сделал. Это таблица не состоит из одной. Там где нет закладных, там из двух, с закладными - из четырех. Но, думаю, что нет предела совершенству. Это было первое КЖ, поэтому пока так, как есть. Поскольку, когда нет закладух, компановка не хромает, не надо ничего лишнего делать, все хорошо получается. А вот с закладными надо еще поработать!)
На закладные мы подправили таблицу в среде вроде должно работать.
Вот до сих пор не понимаю почему текла для таблиц не использует блин просо SQL и HTML блин ну вот никаких же проблем не было бы.

Sega
Сообщения: 25
Регистрация: 23 янв 2014, 08:18

Re: КЖ - пример моделирования и оформления в Tekla Structure

Сообщение Sega » 24 янв 2014, 11:30

На закладные мы подправили таблицу в среде вроде должно работать.
Ведомость расхода?А то тут я еще для закладух свою табличку создавал, где они только на листе. Она и для каркасов в последствии нужна будет.

Yuzer
Сообщения: 200
Регистрация: 26 май 2012, 12:39
Откуда: Україна Харків

Re: КЖ - пример моделирования и оформления в Tekla Structure

Сообщение Yuzer » 26 янв 2014, 10:58

Армирование было выполнено через группу арматурных стержней?
Как происходила увязка арматуры?

Sega
Сообщения: 25
Регистрация: 23 янв 2014, 08:18

Re: КЖ - пример моделирования и оформления в Tekla Structure

Сообщение Sega » 27 янв 2014, 06:08

Армирование было выполнено через группу арматурных стержней?
Как происходила увязка арматуры?
Да, в основном через группы. Увязка чего с чем?

Yuzer
Сообщения: 200
Регистрация: 26 май 2012, 12:39
Откуда: Україна Харків

Re: КЖ - пример моделирования и оформления в Tekla Structure

Сообщение Yuzer » 27 янв 2014, 07:27

Sega писал(а):
Армирование было выполнено через группу арматурных стержней?
Как происходила увязка арматуры?
Да, в основном через группы. Увязка чего с чем?
По раскладке все равно получится пересечение арматуры плиты и выпусков под колонны. Или боковых П-образных стержней и арматуры плиты.
Это нужно контролировать визуально или можно вообще не обращать внимание?

Sega
Сообщения: 25
Регистрация: 23 янв 2014, 08:18

Re: КЖ - пример моделирования и оформления в Tekla Structure

Сообщение Sega » 27 янв 2014, 12:39

По раскладке все равно получится пересечение арматуры плиты и выпусков под колонны. Или боковых П-образных стержней и арматуры плиты.
Это нужно контролировать визуально или можно вообще не обращать внимание?
Тут уж на ваше усмотрение. П-образные мы контролировали, поскольку их много, они одинаковые и есть понимание, как они ставиться должны. То почему бы не сделать нормально. В местах же выпусков под колонну арматуры плиты можно подвинуть немного, поэтому это можно и не учитывать. Главное, чтоб количество било, а уж строители разберуться!))

Yuzer
Сообщения: 200
Регистрация: 26 май 2012, 12:39
Откуда: Україна Харків

Re: КЖ - пример моделирования и оформления в Tekla Structure

Сообщение Yuzer » 27 янв 2014, 19:30

Спасибо за пояснения. Я приблизительно так и представлял процесс.

RHSY
Сообщения: 175
Регистрация: 23 июл 2013, 09:42

Re: КЖ - пример моделирования и оформления в Tekla Structure

Сообщение RHSY » 31 янв 2014, 10:51

Уважаемый Sega! А сколько времени у вас ушло на весь проект и отдельно на чертежи. В особенности интересно количество времени на 6.pdf. Спасибо.

Sega
Сообщения: 25
Регистрация: 23 янв 2014, 08:18

Re: КЖ - пример моделирования и оформления в Tekla Structure

Сообщение Sega » 03 фев 2014, 07:18

RHSY писал(а):Уважаемый Sega! А сколько времени у вас ушло на весь проект и отдельно на чертежи. В особенности интересно количество времени на 6.pdf. Спасибо.
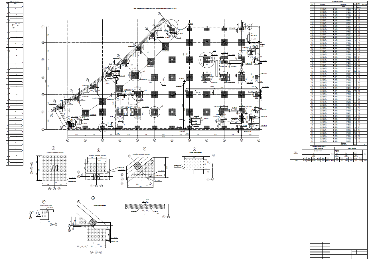
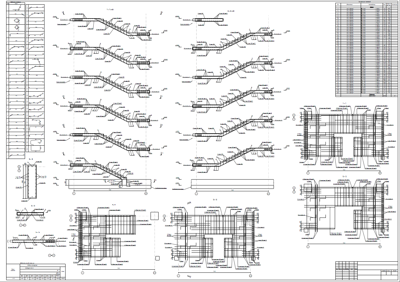
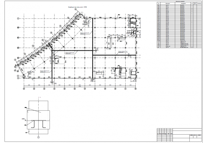
Ушло полтора месяца на все. Отдельно чертежи выделить не могу по причине того, что сразу все делалось параллельно строительству и выдавалось постепенно. Делали четыре человека, но один занимался в основном допиливанием среды. Это был первый опыт в КЖ. Было много тупняков и местами бесполезной работы. Плюс много изменений по ходу пьесы. Лестница дня 3-4 - моделирование, лист опалубки и данный, шестой пдф, лист. Сейчас на такой проект понадобится гораздо меньше времени.

RHSY
Сообщения: 175
Регистрация: 23 июл 2013, 09:42

Re: КЖ - пример моделирования и оформления в Tekla Structure

Сообщение RHSY » 05 фев 2014, 09:26

А сколько всего листов (в пересчете на А1) вошло в комплект КЖ?

Sega
Сообщения: 25
Регистрация: 23 янв 2014, 08:18

Re: КЖ - пример моделирования и оформления в Tekla Structure

Сообщение Sega » 05 фев 2014, 12:02

RHSY писал(а):А сколько всего листов (в пересчете на А1) вошло в комплект КЖ?
Около 80

RHSY
Сообщения: 175
Регистрация: 23 июл 2013, 09:42

Re: КЖ - пример моделирования и оформления в Tekla Structure

Сообщение RHSY » 05 фев 2014, 12:37

Неплохой показатель для первого проекта в КЖ. Как я понимаю, последующие проекты будут значительно быстрее. Удачи.

Sega
Сообщения: 25
Регистрация: 23 янв 2014, 08:18

Re: КЖ - пример моделирования и оформления в Tekla Structure

Сообщение Sega » 05 фев 2014, 13:00

Уверен, что да! Спасибо!))

Airo
Сообщения: 4
Регистрация: 12 сен 2013, 05:36

Re: КЖ - пример моделирования и оформления в Tekla Structure

Сообщение Airo » 25 фев 2014, 07:01

Sega, не могли бы выложить шаблон ведомости расхода стали, оч охото посмотреть)

RHSY
Сообщения: 175
Регистрация: 23 июл 2013, 09:42

Re: КЖ - пример моделирования и оформления в Tekla Structure

Сообщение RHSY » 25 фев 2014, 11:29

Я бы тоже присоединился к этой просьбе, потому что мои опыты с ведомостью расхода стали не увенчались успехом (даже по наводке автора). Спасибо.

Виталий
Сообщения: 54
Регистрация: 19 мар 2013, 17:47

Re: КЖ - пример моделирования и оформления в Tekla Structure

Сообщение Виталий » 19 июн 2014, 10:35

Здравствуйте.
В среде Топинженер раздел для кж отсутствует каталог форм арматурных стержней (В вашей среде отсутствует необходимый каталог. Нажмите кнопку "Организовать каталог", чтобы создать новый каталог ), создать его не получается. Подскажите пожалуйста как его создать или, что нужно сделать чтоб он заработал?

Заранее благодарю за ответ.

Аватара пользователя
Таран Д. А.
Администратор
Сообщения: 2877
Регистрация: 30 ноя 2011, 18:41
Откуда: г. Москва
Контактная информация:

Re: КЖ - пример моделирования и оформления в Tekla Structure

Сообщение Таран Д. А. » 20 июн 2014, 09:59

Виталий писал(а):Здравствуйте.
В среде Топинженер раздел для кж отсутствует каталог форм арматурных стержней (В вашей среде отсутствует необходимый каталог. Нажмите кнопку "Организовать каталог", чтобы создать новый каталог ), создать его не получается. Подскажите пожалуйста как его создать или, что нужно сделать чтоб он заработал?

Заранее благодарю за ответ.
Добавлю.

sa_boyko
Сообщения: 5
Регистрация: 03 окт 2013, 14:57

Re: КЖ - пример моделирования и оформления в Tekla Structure

Сообщение sa_boyko » 20 июн 2014, 14:21

Уважаемый Sega, как у вас получилось в спецификации внести ссылки на лист с чертежами элементов?
Это в Текле или позже в автокаде доделывалось?
Вложения
Screen Shot 2014-06-20 at 10.44.17.png
Screen Shot 2014-06-20 at 10.51.11 copy.png

Sega
Сообщения: 25
Регистрация: 23 янв 2014, 08:18

Re: КЖ - пример моделирования и оформления в Tekla Structure

Сообщение Sega » 23 июн 2014, 08:17

У нас было так тогда:
"Лист "+GetValue("DRAWING.USERDEFINED.km_list")
Ну и плюс если надо еще чего-нить дополнительно дописываешь (данный лист или еще чего). Может ща этот параметр изменился в среде, не шарю. Тогда работали с тем, что было. Суть в том, что забрать номер листа отлитого элемента. Соответственно еще этот чертеж должен быть сделан, иначе ноль будет тут.

pdimav
Сообщения: 243
Регистрация: 16 янв 2012, 19:07

Re: КЖ - пример моделирования и оформления в Tekla Structure

Сообщение pdimav » 25 июн 2014, 09:02

Sega писал(а):У нас было так тогда:
"Лист "+GetValue("DRAWING.USERDEFINED.km_list")
Ну и плюс если надо еще чего-нить дополнительно дописываешь (данный лист или еще чего). Может ща этот параметр изменился в среде, не шарю. Тогда работали с тем, что было. Суть в том, что забрать номер листа отлитого элемента. Соответственно еще этот чертеж должен быть сделан, иначе ноль будет тут.
Если я правильно понимаю, то свойства "Лист "+GetValue("DRAWING.USERDEFINED.km_list") принадлежат конкретным чертежам.
И чертеж не может унаследовать свойства других чертежей!..только считать с деталей/сборок. Или я ошибаюсь?
Последний раз редактировалось pdimav 25 июн 2014, 10:11, всего редактировалось 1 раз.
pdimav1979(не собака)yandex.ru

meart
Сообщения: 494
Регистрация: 04 мар 2013, 18:09

Re: КЖ - пример моделирования и оформления в Tekla Structure

Сообщение meart » 25 июн 2014, 09:58

pdimav писал(а):
Sega писал(а):У нас было так тогда:
"Лист "+GetValue("DRAWING.USERDEFINED.km_list")
Ну и плюс если надо еще чего-нить дополнительно дописываешь (данный лист или еще чего). Может ща этот параметр изменился в среде, не шарю. Тогда работали с тем, что было. Суть в том, что забрать номер листа отлитого элемента. Соответственно еще этот чертеж должен быть сделан, иначе ноль будет тут.
Если я правильно понимаю, то свойства "Лист "+GetValue("DRAWING.USERDEFINED.km_list") принадлежат конкретным чертежам.
И чертеж не может унаследовать свойства других чертежей!..только считать с деталей/сборок. Или я ошибаюсь?
правильно=) и в зависимости от того, в какой строке находится поле значения ("Деталь" или "Сборка") значение параметра будет соответственно для чертежа детали или сборки.
«Есть только две бесконечные вещи: Вселенная и глупость. Хотя насчет Вселенной я не вполне уверен.» А. Эйнштейн

Виталий
Сообщения: 54
Регистрация: 19 мар 2013, 17:47

Re: КЖ - пример моделирования и оформления в Tekla Structure

Сообщение Виталий » 29 июн 2014, 17:17

Здравствуйте.

Хочу создать пользовательский компонент (фиксатор для кж в форме трехпоясной фермы из арматуры), как это делается для кж? С металлом проблем не возникало с компонентами, а вот с кж никак не получается, хотя пользовательский компонент фиксатор типа "лягушка" для кж сделал с помощью компонента тип узел.

Виталий
Сообщения: 54
Регистрация: 19 мар 2013, 17:47

Re: КЖ - пример моделирования и оформления в Tekla Structure

Сообщение Виталий » 01 июл 2014, 11:11

Здравствуйте форумчане.
Вопрос касательно фиксаторов для арматурных сеток железобетона.
Подскажите пожалуйста, если кто стыкался, как решаеть вопрос с фиксаторами в КЖ?

Yuzer
Сообщения: 200
Регистрация: 26 май 2012, 12:39
Откуда: Україна Харків

Re: КЖ - пример моделирования и оформления в Tekla Structure

Сообщение Yuzer » 07 июл 2014, 10:58

Как настроить отображение отлитого элемента на виде так, чтобы отображались соседние элементы (чтобы видно было куда гнутые стержни идут), но арматура соседних элементов не учитывалась в спецификации?

Аватара пользователя
Таран Д. А.
Администратор
Сообщения: 2877
Регистрация: 30 ноя 2011, 18:41
Откуда: г. Москва
Контактная информация:

Re: КЖ - пример моделирования и оформления в Tekla Structure

Сообщение Таран Д. А. » 07 июл 2014, 11:08

Yuzer писал(а):Как настроить отображение отлитого элемента на виде так, чтобы отображались соседние элементы (чтобы видно было куда гнутые стержни идут), но арматура соседних элементов не учитывалась в спецификации?
Фильтрами выводв в спецификации. Но надо чтобы был какой то уникальные параметр

Yuzer
Сообщения: 200
Регистрация: 26 май 2012, 12:39
Откуда: Україна Харків

Re: КЖ - пример моделирования и оформления в Tekla Structure

Сообщение Yuzer » 07 июл 2014, 11:15

Таран Д. А. писал(а):
Yuzer писал(а):Как настроить отображение отлитого элемента на виде так, чтобы отображались соседние элементы (чтобы видно было куда гнутые стержни идут), но арматура соседних элементов не учитывалась в спецификации?
Фильтрами выводв в спецификации. Но надо чтобы был какой то уникальные параметр
Перспектива не радует. Если фильтровать через классы, то визуально не проконтролируешь правильность установки арматуры.
И кроме этого бетон полезет в спецификацию, а это нужно уже фильтр в шаблоне думать...
Интуитивно подозреваю, что решение есть. Будем думать.

Умные люди посоветовали префиксы для арматуры использовать.
Осталось решить вопрос с объемом бетона.

maxcim856
Сообщения: 49
Регистрация: 07 мар 2012, 17:47

Re: КЖ - пример моделирования и оформления в Tekla Structure

Сообщение maxcim856 » 07 июл 2014, 15:43

В свойствах вида есть и соседняя деталь и соседнее армирование. Соседние детали и армирование не попадают в спецификацию. Или я чего то не понял?

Аватара пользователя
teandrey89
Сообщения: 120
Регистрация: 11 июл 2012, 01:18
Откуда: Saint Petersburg

Re: КЖ - пример моделирования и оформления в Tekla Structure

Сообщение teandrey89 » 30 июл 2014, 16:19

Sega писал(а):Уверен, что да! Спасибо!))
Sega подскажите как сделать основную арматуру в погонных метрах???
Вложения
2014-07-30_171339.png

Yuzer
Сообщения: 200
Регистрация: 26 май 2012, 12:39
Откуда: Україна Харків

Re: КЖ - пример моделирования и оформления в Tekla Structure

Сообщение Yuzer » 31 июл 2014, 08:43

Здесь больше вопрос с нумерацией и вариантами моделирования п.м.
Я пока добился только через префиксы (и метки соответствующие). Но есть умнее люди...

Sega
Сообщения: 25
Регистрация: 23 янв 2014, 08:18

Re: КЖ - пример моделирования и оформления в Tekla Structure

Сообщение Sega » 31 июл 2014, 08:56

teandrey89 писал(а):Sega подскажите как сделать основную арматуру в погонных метрах???
Префикс у нее другой, отличный от префикса у дополнительной. В спецификации условие для нее, чтоб суммировалась вся. Ну и коэффициент на нахлест еще.

Sega
Сообщения: 25
Регистрация: 23 янв 2014, 08:18

Re: КЖ - пример моделирования и оформления в Tekla Structure

Сообщение Sega » 31 июл 2014, 08:58

Yuzer писал(а):Здесь больше вопрос с нумерацией и вариантами моделирования п.м.
И в чем вопрос то?
Yuzer писал(а): Но есть умнее люди...
И что они говорят?

Yuzer
Сообщения: 200
Регистрация: 26 май 2012, 12:39
Откуда: Україна Харків

Re: КЖ - пример моделирования и оформления в Tekla Structure

Сообщение Yuzer » 31 июл 2014, 09:19

Sega писал(а):
Yuzer писал(а):Здесь больше вопрос с нумерацией и вариантами моделирования п.м.
И в чем вопрос то?
Yuzer писал(а): Но есть умнее люди...
И что они говорят?
Проблема в создании сквозной нумерации для арматуры в п.м. Я заранее не знаю сколько у меня будет участков с п.м., поэтому не знаю с какой позиции начинать нумерацию мерных стержней. Да и участки одинакового диаметра в п.м. будут иметь разные позиции. Это тоже небольшая проблемка (для меня). В спецификации немного дико смотрится: поз. 1 диам. 16 L=350п.м., поз. 2 диам. 16 L=120п.м. и т.д.
Кстати, погонажем арматуру делаете компонентом?

Sega
Сообщения: 25
Регистрация: 23 янв 2014, 08:18

Re: КЖ - пример моделирования и оформления в Tekla Structure

Сообщение Sega » 31 июл 2014, 12:46

Yuzer писал(а):
Sega писал(а):
Yuzer писал(а):Здесь больше вопрос с нумерацией и вариантами моделирования п.м.
И в чем вопрос то?
Yuzer писал(а): Но есть умнее люди...
И что они говорят?
Проблема в создании сквозной нумерации для арматуры в п.м. Я заранее не знаю сколько у меня будет участков с п.м., поэтому не знаю с какой позиции начинать нумерацию мерных стержней. Да и участки одинакового диаметра в п.м. будут иметь разные позиции. Это тоже небольшая проблемка (для меня). В спецификации немного дико смотрится: поз. 1 диам. 16 L=350п.м., поз. 2 диам. 16 L=120п.м. и т.д.
Кстати, погонажем арматуру делаете компонентом?
Не понял, про участки, одна плита, взяли для нее, что фоновая будет с позицией 1, вся и все. Зачем разделять?
Да, компонентом, дырки пилит, кривости обходит как надо, кайф!)

Yuzer
Сообщения: 200
Регистрация: 26 май 2012, 12:39
Откуда: Україна Харків

Re: КЖ - пример моделирования и оформления в Tekla Structure

Сообщение Yuzer » 31 июл 2014, 14:10

Sega писал(а): Не понял, про участки, одна плита, взяли для нее, что фоновая будет с позицией 1, вся и все. Зачем разделять?
Да, компонентом, дырки пилит, кривости обходит как надо, кайф!)
Я правильно понял: всем участкам с п.м. и одинаковым диаметром ставишь поз.1 и она вся будет иметь одну позицию??? :o
Не будет нумерации 1-1 или подобного?

Sega
Сообщения: 25
Регистрация: 23 янв 2014, 08:18

Re: КЖ - пример моделирования и оформления в Tekla Structure

Сообщение Sega » 31 июл 2014, 15:52

Yuzer писал(а):Я правильно понял: всем участкам с п.м. и одинаковым диаметром ставишь поз.1 и она вся будет иметь одну позицию??? :o
Не будет нумерации 1-1 или подобного?
Какая разница какая позиция будет у всех участков, если все это предполагается пустить как фоновую погонажем?Сделайте другой префикс для нее, фильтр запилите в спецификации, позицию "1" текстом напишите, только в путь работает. Для дополнительной с "2" нумерацию начните. Префикс для нее свой сделайте.

Yuzer
Сообщения: 200
Регистрация: 26 май 2012, 12:39
Откуда: Україна Харків

Re: КЖ - пример моделирования и оформления в Tekla Structure

Сообщение Yuzer » 01 авг 2014, 08:42

Sega писал(а):
Yuzer писал(а):Я правильно понял: всем участкам с п.м. и одинаковым диаметром ставишь поз.1 и она вся будет иметь одну позицию??? :o
Не будет нумерации 1-1 или подобного?
Какая разница какая позиция будет у всех участков, если все это предполагается пустить как фоновую погонажем?Сделайте другой префикс для нее, фильтр запилите в спецификации, позицию "1" текстом напишите, только в путь работает. Для дополнительной с "2" нумерацию начните. Префикс для нее свой сделайте.
Разве что текстом писать поз. 1 и префиксы.
Мне придется по факту во многих местах делать запрос, чтобы понять где арматура в п.м., а где мерные стержни.

Sega
Сообщения: 25
Регистрация: 23 янв 2014, 08:18

Re: КЖ - пример моделирования и оформления в Tekla Structure

Сообщение Sega » 01 авг 2014, 09:27

Вы не компонентом фоновую раскидывете?

Yuzer
Сообщения: 200
Регистрация: 26 май 2012, 12:39
Откуда: Україна Харків

Re: КЖ - пример моделирования и оформления в Tekla Structure

Сообщение Yuzer » 01 авг 2014, 09:38

Нет. У меня не было моделях возможности кинуть арматуру компонентом. Промка/подземка.

Sega
Сообщения: 25
Регистрация: 23 янв 2014, 08:18

Re: КЖ - пример моделирования и оформления в Tekla Structure

Сообщение Sega » 01 авг 2014, 10:09

АА, мы тут плиту обсуждали, где этой фоновой завались. В мелких элементах мы фоновую не использовали. В промке есть необходимость вообще в фоновой?

Yuzer
Сообщения: 200
Регистрация: 26 май 2012, 12:39
Откуда: Україна Харків

Re: КЖ - пример моделирования и оформления в Tekla Structure

Сообщение Yuzer » 01 авг 2014, 13:02

Вопрос был про позиции и погонные метры ;) .
А вообще есть - промка разная бывает.

Yuzer
Сообщения: 200
Регистрация: 26 май 2012, 12:39
Откуда: Україна Харків

Re: КЖ - пример моделирования и оформления в Tekla Structure

Сообщение Yuzer » 12 авг 2014, 09:22

Делаю шаблон для нескольких отлитых элементов: шаблон разделяет отлитые элементы и сборки, что входят в него, но арматуру по отлитым элементам вывести не получается. Можно получить общий перечень арматуры в конце шаблона.
Можно ли разделить арматуру по отлитым элементам или это нереально?

Yuzer
Сообщения: 200
Регистрация: 26 май 2012, 12:39
Откуда: Україна Харків

Re: КЖ - пример моделирования и оформления в Tekla Structure

Сообщение Yuzer » 12 авг 2014, 12:01

Все. Разделил.

Аватара пользователя
teandrey89
Сообщения: 120
Регистрация: 11 июл 2012, 01:18
Откуда: Saint Petersburg

Re: КЖ - пример моделирования и оформления в Tekla Structure

Сообщение teandrey89 » 10 сен 2014, 14:16

Yuzer писал(а):Все. Разделил.
Прикрепи пример (скрин чего добивался) плиз.

Аватара пользователя
teandrey89
Сообщения: 120
Регистрация: 11 июл 2012, 01:18
Откуда: Saint Petersburg

Re: КЖ - пример моделирования и оформления в Tekla Structure

Сообщение teandrey89 » 10 сен 2014, 14:18

Sega писал(а):
Yuzer писал(а):Я правильно понял: всем участкам с п.м. и одинаковым диаметром ставишь поз.1 и она вся будет иметь одну позицию??? :o
Не будет нумерации 1-1 или подобного?
Какая разница какая позиция будет у всех участков, если все это предполагается пустить как фоновую погонажем?Сделайте другой префикс для нее, фильтр запилите в спецификации, позицию "1" текстом напишите, только в путь работает. Для дополнительной с "2" нумерацию начните. Префикс для нее свой сделайте.
Сега а можно на скрине показать последовательность редактирования шаблона спецификации, и пример формулы...
Что - то не получается погонную арматуру сделать. :(

Sega
Сообщения: 25
Регистрация: 23 янв 2014, 08:18

Re: КЖ - пример моделирования и оформления в Tekla Structure

Сообщение Sega » 11 сен 2014, 10:35

teandrey89 писал(а):Сега а можно на скрине показать последовательность редактирования шаблона спецификации, и пример формулы...
Что - то не получается погонную арматуру сделать.
Я б с радостью, но сейчас в командировке в Индии и тут хватает своей работы. Спрашивайте более конкретно, помогу.
Там вроде ничего сложного. Погонная арматура имеет отличный префикс от дополнительной арматуры. И для нее есть отдельная строчка, которая суммируется и добавляется нахлест.

Wayne Rooney
Сообщения: 21
Регистрация: 31 авг 2014, 10:45

Re: КЖ - пример моделирования и оформления в Tekla Structure

Сообщение Wayne Rooney » 13 сен 2014, 18:41

Sega писал(а):Я б с радостью, но сейчас в командировке в Индии и тут хватает своей работы. Спрашивайте более конкретно, помогу.
Там вроде ничего сложного. Погонная арматура имеет отличный префикс от дополнительной арматуры. И для нее есть отдельная строчка, которая суммируется и добавляется нахлест.
Sega, вы добавили новую строчку с типом "АРМАТУРА", длину выделили в отдельную ячейку, назначив ей свойство - суммировать. А как вы добились того, что бы в фоновом компоненте все стержни разной длины складывались в одну строчку? Я назначил одинаковый префикс в компоненте, но он мне все равно разные по длине стержни на разные строчки ставит...

Sega
Сообщения: 25
Регистрация: 23 янв 2014, 08:18

Re: КЖ - пример моделирования и оформления в Tekla Structure

Сообщение Sega » 16 сен 2014, 10:20

Wayne Rooney писал(а):Sega, вы добавили новую строчку с типом "АРМАТУРА", длину выделили в отдельную ячейку, назначив ей свойство - суммировать. А как вы добились того, что бы в фоновом компоненте все стержни разной длины складывались в одну строчку? Я назначил одинаковый префикс в компоненте, но он мне все равно разные по длине стержни на разные строчки ставит...
Того проекта под рукой нет, да, для длин отдельная ячейка, и да, она суммируется, плюс домножается на нахлест. У вас в этой строке нет случаем какого-либа поля с возрастанием или убыванием? Позиция "1" у меня стоит текстом.

Аватара пользователя
Таран Д. А.
Администратор
Сообщения: 2877
Регистрация: 30 ноя 2011, 18:41
Откуда: г. Москва
Контактная информация:

Re: КЖ - пример моделирования и оформления в Tekla Structure

Сообщение Таран Д. А. » 02 окт 2014, 12:11

:)
Вложения
10497112_10203986861449052_331875246218226488_o.jpg
905832_10203986851888813_9152318637011694191_o.jpg
10257939_10203986841168545_7244697565532159649_o.jpg

Zezza
Сообщения: 152
Регистрация: 27 мар 2013, 07:36

Re: КЖ - пример моделирования и оформления в Tekla Structure

Сообщение Zezza » 02 окт 2014, 12:29

Не совсем понял, Дим, что ты хотел этим сказать?

Аватара пользователя
Таран Д. А.
Администратор
Сообщения: 2877
Регистрация: 30 ноя 2011, 18:41
Откуда: г. Москва
Контактная информация:

Re: КЖ - пример моделирования и оформления в Tekla Structure

Сообщение Таран Д. А. » 02 окт 2014, 13:11

Zezza писал(а):Не совсем понял, Дим, что ты хотел этим сказать?
Ветка с примерами моделирования КЖ.
Просто пример (даже не мой)
Картинка понравилась

Аватара пользователя
teandrey89
Сообщения: 120
Регистрация: 11 июл 2012, 01:18
Откуда: Saint Petersburg

Re: КЖ - пример моделирования и оформления в Tekla Structure

Сообщение teandrey89 » 02 окт 2014, 17:00

А чертежи есть, как я понимаю это фундаменты монолитные.
Хочется на чертежи взглянуть...
Кстати косячки есть в модели...) Но это я уже придираюсь. ;)
Вложения
2014-10-02_175636.jpg

Аватара пользователя
Таран Д. А.
Администратор
Сообщения: 2877
Регистрация: 30 ноя 2011, 18:41
Откуда: г. Москва
Контактная информация:

Re: КЖ - пример моделирования и оформления в Tekla Structure

Сообщение Таран Д. А. » 02 окт 2014, 17:06

Большинство моделей с бетоном делается именно так.
Это не металл там точность в 1 мм нереальная для исполнения.

Аватара пользователя
teandrey89
Сообщения: 120
Регистрация: 11 июл 2012, 01:18
Откуда: Saint Petersburg

Re: КЖ - пример моделирования и оформления в Tekla Structure

Сообщение teandrey89 » 02 окт 2014, 17:12

Таран Д. А. писал(а):Большинство моделей с бетоном делается именно так.
Это не металл там точность в 1 мм нереальная для исполнения.
Нет дим, если используется 32 или 40 арматура и определённый защитный слой, то какая арматура сверху а какая снизу это очень важно!
Кстати сейчас на чертежах из ТЕКЛЫ это все так классно прорисовывается что вопросов вообще не возникает!
Вложения
Армирование.jpg
Армирование монолита в ТЕКЛЕ

Аватара пользователя
Таран Д. А.
Администратор
Сообщения: 2877
Регистрация: 30 ноя 2011, 18:41
Откуда: г. Москва
Контактная информация:

Re: КЖ - пример моделирования и оформления в Tekla Structure

Сообщение Таран Д. А. » 02 окт 2014, 17:41

Да. Я в курсе. Сам так делаю.

Аватара пользователя
teandrey89
Сообщения: 120
Регистрация: 11 июл 2012, 01:18
Откуда: Saint Petersburg

Re: КЖ - пример моделирования и оформления в Tekla Structure

Сообщение teandrey89 » 03 окт 2014, 13:43

При создании схемы общего вида в КЖ, в спецификацию попадает все что есть на схеме.
Допустим мне нужно сделать схему цокольных панелей соответственно и в спецификации у меня должны быть только цокольные панели.
Но так же на чертеже должны присутствовать габариты колонн и ростверков - чтоб было понятно что где и как.
Фильтром я могу оставить только цокольные панели, а остальное все скрыть, чтоб в спецификации были только ЦП.
Можно ли сделать так чтоб на чертеже были цокольные панели, колонны и ростверки а в спецификации отображались только ЦП? :oops:

Zezza
Сообщения: 152
Регистрация: 27 мар 2013, 07:36

Re: КЖ - пример моделирования и оформления в Tekla Structure

Сообщение Zezza » 03 окт 2014, 14:00

Можешь скрыть их фильтрами, они будут как соседние детали. По идее они не должны идти в спецификацию. Но чтоб совсем наверняка, можешь сделать в спецификации фильтр чисто для своих цоколей.

Аватара пользователя
teandrey89
Сообщения: 120
Регистрация: 11 июл 2012, 01:18
Откуда: Saint Petersburg

Re: КЖ - пример моделирования и оформления в Tekla Structure

Сообщение teandrey89 » 03 окт 2014, 14:09

Zezza писал(а):Можешь скрыть их фильтрами, они будут как соседние детали. По идее они не должны идти в спецификацию. Но чтоб совсем наверняка, можешь сделать в спецификации фильтр чисто для своих цоколей.
А как сделать фильтр в спецификации? Изменить ее в редакторе и сохранить под другим названием и сделать отдельную компановку чертежа? :?:

Zezza
Сообщения: 152
Регистрация: 27 мар 2013, 07:36

Re: КЖ - пример моделирования и оформления в Tekla Structure

Сообщение Zezza » 03 окт 2014, 18:36

teandrey89 писал(а):А как сделать фильтр в спецификации? Изменить ее в редакторе и сохранить под другим названием и сделать отдельную компановку чертежа?
Да, это так сложно?

Аватара пользователя
teandrey89
Сообщения: 120
Регистрация: 11 июл 2012, 01:18
Откуда: Saint Petersburg

Re: КЖ - пример моделирования и оформления в Tekla Structure

Сообщение teandrey89 » 04 окт 2014, 08:51

Zezza писал(а):
teandrey89 писал(а):А как сделать фильтр в спецификации? Изменить ее в редакторе и сохранить под другим названием и сделать отдельную компановку чертежа?
Да, это так сложно?
Лень двигатель прогресса думал можно как то попроще сделать...

Zezza
Сообщения: 152
Регистрация: 27 мар 2013, 07:36

Re: КЖ - пример моделирования и оформления в Tekla Structure

Сообщение Zezza » 04 окт 2014, 14:07

Через соседние детали проще вариант, как мне кажется, уже его пробовал?

Аватара пользователя
teandrey89
Сообщения: 120
Регистрация: 11 июл 2012, 01:18
Откуда: Saint Petersburg

Re: КЖ - пример моделирования и оформления в Tekla Structure

Сообщение teandrey89 » 06 окт 2014, 09:19

Zezza писал(а):Через соседние детали проще вариант, как мне кажется, уже его пробовал?
Нет не пробывал, объясни пожалуйста!!! :o

Аватара пользователя
DrBianko
Сообщения: 385
Регистрация: 07 янв 2012, 21:50
Откуда: Украина, г. Кривой Рог

Re: КЖ - пример моделирования и оформления в Tekla Structure

Сообщение DrBianko » 06 окт 2014, 09:33

Все что отфильтровано "Фильтром", попадает в соседние детали. Соседние детали можно отображать на чертеже, но они не попадают в спецификации.

Аватара пользователя
teandrey89
Сообщения: 120
Регистрация: 11 июл 2012, 01:18
Откуда: Saint Petersburg

Re: КЖ - пример моделирования и оформления в Tekla Structure

Сообщение teandrey89 » 06 окт 2014, 09:48

DrBianko писал(а):Все что отфильтровано "Фильтром", попадает в соседние детали. Соседние детали можно отображать на чертеже, но они не попадают в спецификации.
Спасибо, не знал!!! :D

Yuzer
Сообщения: 200
Регистрация: 26 май 2012, 12:39
Откуда: Україна Харків

Re: КЖ - пример моделирования и оформления в Tekla Structure

Сообщение Yuzer » 06 окт 2014, 10:26

Если многоуровневая сборка вставлена как узел в отлитый элемент, как вывести эту сборку в спецификацию?
Пока в спецификацию выводит только сборки (закладные) и сборки, из которой состоит многоуровневая сборка.
2014-10-03_164119.jpg
2014-10-03_164119.jpg (76.9 КБ) 27767 просмотров
2014-10-03_164244.jpg

Yuzer
Сообщения: 200
Регистрация: 26 май 2012, 12:39
Откуда: Україна Харків

Re: КЖ - пример моделирования и оформления в Tekla Structure

Сообщение Yuzer » 06 окт 2014, 10:42

Есть атрибут HIERARCHY_LEVEL. Подскажите, как правильно им пользоваться.

Аватара пользователя
teandrey89
Сообщения: 120
Регистрация: 11 июл 2012, 01:18
Откуда: Saint Petersburg

Re: КЖ - пример моделирования и оформления в Tekla Structure

Сообщение teandrey89 » 06 окт 2014, 14:01

[quote="Yuzer"]Если многоуровневая сборка вставлена как узел в отлитый элемент, как вывести эту сборку в спецификацию?
Пока в спецификацию выводит только сборки (закладные) и сборки, из которой состоит многоуровневая сборка.


Самый первый уровень многоуровневой сборки довавить как удел к отлитому элементу, но наверно его Вам будет трудновато выделить и многоуровневой...

Yuzer
Сообщения: 200
Регистрация: 26 май 2012, 12:39
Откуда: Україна Харків

Re: КЖ - пример моделирования и оформления в Tekla Structure

Сообщение Yuzer » 06 окт 2014, 14:29

Я уже по строкам через HIERARCHY_LEVEL повыводил сборки на разных уровнях, а "общую сборку" вывести не могу.

Аватара пользователя
teandrey89
Сообщения: 120
Регистрация: 11 июл 2012, 01:18
Откуда: Saint Petersburg

Re: КЖ - пример моделирования и оформления в Tekla Structure

Сообщение teandrey89 » 06 окт 2014, 16:31

Yuzer писал(а):Я уже по строкам через HIERARCHY_LEVEL повыводил сборки на разных уровнях, а "общую сборку" вывести не могу.
А что за такая сложная сборка? Можешь модель в архиве скинуть... чтобы посмотреть... :!:

Yuzer
Сообщения: 200
Регистрация: 26 май 2012, 12:39
Откуда: Україна Харків

Re: КЖ - пример моделирования и оформления в Tekla Structure

Сообщение Yuzer » 06 окт 2014, 16:43

Ж.Б. колонна.
Каркас и дополнительные закладные.
Вложения
2014-10-06_163951.jpg

Аватара пользователя
teandrey89
Сообщения: 120
Регистрация: 11 июл 2012, 01:18
Откуда: Saint Petersburg

Re: КЖ - пример моделирования и оформления в Tekla Structure

Сообщение teandrey89 » 06 окт 2014, 17:27

Yuzer писал(а):Ж.Б. колонна.
Каркас и дополнительные закладные.
Как делаю я,
1. Колонна - отлитый элемент
2. Армирование (стержни сетки)
3. Создаю закладную, свариваю ее, загоняю в компонент "ДЕТАЛЬ" под нужной мне маркой и на саму марккирую под нужной маркой.
(Грубо говоря в компоненте у меня сборка - закладная деталь)
4. Далее добавляю этот компонент т.е. свою закладную "ДОБАВИТЬ В КАЧЕСТВЕ УЗЛА" и кликаю по колонне.
Все в спецификации имею нужную мне закладную деталь, ссылки в спецификации на нее формируются автоматом.
Если все детали по серии то нужно у деталей "имя" прописывать и в графе обозначения прописать чтобы имя выводилось.
И будет как указано у вас на картинке.
:!:
Вложения
Армирование в ТЕКЛА _ Reinforcement in TEKLA.jpg
Армирование в ТЕКЛА _ Reinforcement in TEKLA.jpg

Yuzer
Сообщения: 200
Регистрация: 26 май 2012, 12:39
Откуда: Україна Харків

Re: КЖ - пример моделирования и оформления в Tekla Structure

Сообщение Yuzer » 06 окт 2014, 20:56

Закладные ,сделанные компонентом, нормально добавляются и нормально выводятся в спецификациях.
У меня проблема с выводом многоуровневой сборки в спецификацию. Сборки, которые в нее входят, выводятся без проблем, но мне нужно, чтобы имя в спецификации было именно многоуровневой сборки.

Аватара пользователя
teandrey89
Сообщения: 120
Регистрация: 11 июл 2012, 01:18
Откуда: Saint Petersburg

Re: КЖ - пример моделирования и оформления в Tekla Structure

Сообщение teandrey89 » 07 окт 2014, 09:48

Yuzer писал(а):Закладные ,сделанные компонентом, нормально добавляются и нормально выводятся в спецификациях.
У меня проблема с выводом многоуровневой сборки в спецификацию. Сборки, которые в нее входят, выводятся без проблем, но мне нужно, чтобы имя в спецификации было именно многоуровневой сборки.
Многоуровневая сборка это компонент в компоненте, а внутри этого компонента еще компонент??? Матрёшка?

Yuzer
Сообщения: 200
Регистрация: 26 май 2012, 12:39
Откуда: Україна Харків

Re: КЖ - пример моделирования и оформления в Tekla Structure

Сообщение Yuzer » 07 окт 2014, 10:15

Многоуровневая сборка - это сборки в сборке. Да - матрешка.
Сделана не компонентами, а сборками.
Но у меня эта матрешка еще входит в отлитый элемент.
Решил добавить в спецификацию пустую строку и написать текстом данные.

Аватара пользователя
teandrey89
Сообщения: 120
Регистрация: 11 июл 2012, 01:18
Откуда: Saint Petersburg

Re: КЖ - пример моделирования и оформления в Tekla Structure

Сообщение teandrey89 » 07 окт 2014, 14:23

Yuzer писал(а):Многоуровневая сборка - это сборки в сборке. Да - матрешка.
Сделана не компонентами, а сборками.
Но у меня эта матрешка еще входит в отлитый элемент.
Решил добавить в спецификацию пустую строку и написать текстом данные.
А можешь поподробнее на примере описать как сделать сборку в сборке. :?:

Yuzer
Сообщения: 200
Регистрация: 26 май 2012, 12:39
Откуда: Україна Харків

Re: КЖ - пример моделирования и оформления в Tekla Structure

Сообщение Yuzer » 07 окт 2014, 15:02

Вариант 1. Переключатель - выбрать сборки/ПКМ/добавить в качестве узла.
Вариант 2. Переключатель - выбрать сборки/выделить все сборки/ПКМ/переделать в сборку.

Выбирать подсборки через shift+скрол.

Аватара пользователя
teandrey89
Сообщения: 120
Регистрация: 11 июл 2012, 01:18
Откуда: Saint Petersburg

Re: КЖ - пример моделирования и оформления в Tekla Structure

Сообщение teandrey89 » 07 окт 2014, 15:20

Yuzer писал(а):Вариант 1. Переключатель - выбрать сборки/ПКМ/добавить в качестве узла.
Вариант 2. Переключатель - выбрать сборки/выделить все сборки/ПКМ/переделать в сборку.

Выбирать подсборки через shift+скрол.
До нынешнего времени обходился без этого спасибо буду знать! :!:

Yuzer
Сообщения: 200
Регистрация: 26 май 2012, 12:39
Откуда: Україна Харків

Re: КЖ - пример моделирования и оформления в Tekla Structure

Сообщение Yuzer » 07 окт 2014, 16:26

Штука хорошая, но требует внимания и порядка.

anatolymazur
Сообщения: 18
Регистрация: 10 окт 2014, 12:36

Re: КЖ - пример моделирования и оформления в Tekla Structure

Сообщение anatolymazur » 10 окт 2014, 12:47

Люди, подскажите пожалста где можно взять текловскую ведомость расхода стали, чтобы как здесь все было втолбик, а то не получается хоть убей столбиками сделать, приходится в строчной, а это не есть хорошо

McSIM
Сообщения: 1
Регистрация: 23 окт 2014, 09:14

Re: КЖ - пример моделирования и оформления в Tekla Structure

Сообщение McSIM » 23 окт 2014, 09:21

Добрый день! При моделировании фундаментной плиты в ней необходимо предусмотреть пространственные поддерживающие каркасы. Вопрос возник как это сделать, создать собственный компонент? Создал деталью, создал деталью, но перемещать свободно не могу почему то.

Yuzer
Сообщения: 200
Регистрация: 26 май 2012, 12:39
Откуда: Україна Харків

Re: КЖ - пример моделирования и оформления в Tekla Structure

Сообщение Yuzer » 23 окт 2014, 10:02

Обратили внимание, что если делать каркасы из кругляка (балка), то чертеж может открываться до 20 минут.
Поэтому остро встал вопрос в правильном моделировании этих каркасов.
Если делать их сетками (mesh), то потом проблематично вывести на отдельный лист и сделать КЖИ.

Yuzer
Сообщения: 200
Регистрация: 26 май 2012, 12:39
Откуда: Україна Харків

Re: КЖ - пример моделирования и оформления в Tekla Structure

Сообщение Yuzer » 19 ноя 2014, 16:52

Нужно на балках сделать маркировку для ориентации. Маркировка должна быть по правой стороне балки.
Как лучше ее сделать, чтобы на чертеже можно было отобразить?
На крайняк - вырезать антителом...

Аватара пользователя
Таран Д. А.
Администратор
Сообщения: 2877
Регистрация: 30 ноя 2011, 18:41
Откуда: г. Москва
Контактная информация:

Re: КЖ - пример моделирования и оформления в Tekla Structure

Сообщение Таран Д. А. » 19 ноя 2014, 17:29

Можно антителом только глубину меньше миллиметра чтобы не влияло на нумерацию.

Yuzer
Сообщения: 200
Регистрация: 26 май 2012, 12:39
Откуда: Україна Харків

Re: КЖ - пример моделирования и оформления в Tekla Structure

Сообщение Yuzer » 19 ноя 2014, 17:43

Сделал миллиметровое углубление.

Аватара пользователя
Таран Д. А.
Администратор
Сообщения: 2877
Регистрация: 30 ноя 2011, 18:41
Откуда: г. Москва
Контактная информация:

Re: КЖ - пример моделирования и оформления в Tekla Structure

Сообщение Таран Д. А. » 02 дек 2014, 11:29

Новый инструмент в велдапе позволяет делать такие выноски.
Скачать тут
http://topengineer.ru/programms/weldapp
Ведомость расхода стали тоже бесплатная
KG.png
Вложения
new_2.png

Bagiration
Сообщения: 52
Регистрация: 05 фев 2012, 14:02

Re: КЖ - пример моделирования и оформления в Tekla Structure

Сообщение Bagiration » 07 дек 2014, 14:47

Приветствую, уважаемые инженеры.
Начал осваивать ЖБ в текле, соответственно и вопросы возникают.
Вот каков вопрос:
В случае когда предметом чертежа должна служить плита, лично у меня возникает вопрос о представлении чертежа верхнего и нижнего армирования. Как сделать автоматические метки, чтобы они "понимали" верхнее и нижнее армирование? Если такое невозможно (что скорее всего), то как Вы наиболее элегантно выходите из положения?
С уважением...

alstey
Сообщения: 1074
Регистрация: 18 май 2013, 11:30

Как сделать обычную шпильку?

Сообщение alstey » 07 дек 2014, 20:05

Как сделать обычную шпильку? Стержнем по двум точкам крюк не загибается куда надо, что делать по шести?
Вложения
2014-12-07_190222.png

Yuzer
Сообщения: 200
Регистрация: 26 май 2012, 12:39
Откуда: Україна Харків

Re: Как сделать обычную шпильку?

Сообщение Yuzer » 08 дек 2014, 10:54

alstey писал(а):Как сделать обычную шпильку? Стержнем по двум точкам крюк не загибается куда надо, что делать по шести?
Эм... А как загибается стержень по двум точкам???

alstey
Сообщения: 1074
Регистрация: 18 май 2013, 11:30

Re: КЖ - пример моделирования и оформления в Tekla Structure

Сообщение alstey » 08 дек 2014, 11:21

Yuzer писал(а):Эм... А как загибается стержень по двум точкам???
Ну можно же поставить простой прямолинейный стержень по двум точкам и добавить крючки на концах?
Вложения
2014-12-08_102040.png

Yuzer
Сообщения: 200
Регистрация: 26 май 2012, 12:39
Откуда: Україна Харків

Re: КЖ - пример моделирования и оформления в Tekla Structure

Сообщение Yuzer » 08 дек 2014, 11:36

Так и делается.

alstey
Сообщения: 1074
Регистрация: 18 май 2013, 11:30

Re: КЖ - пример моделирования и оформления в Tekla Structure

Сообщение alstey » 08 дек 2014, 12:02

Yuzer писал(а):Так и делается.
А как крюк развернуть в другой плоскости?

Yuzer
Сообщения: 200
Регистрация: 26 май 2012, 12:39
Откуда: Україна Харків

Re: КЖ - пример моделирования и оформления в Tekla Structure

Сообщение Yuzer » 08 дек 2014, 12:12

Рабочую плоскость поменять.

alstey
Сообщения: 1074
Регистрация: 18 май 2013, 11:30

Re: КЖ - пример моделирования и оформления в Tekla Structure

Сообщение alstey » 09 дек 2014, 10:38

Yuzer писал(а):Рабочую плоскость поменять.
Как-то странно они загибаются. Не могу понять почему загибаются по углом 45 к рабочей плоскости.
Вложения
2014-12-09_093722.png

Ответить
phpbb3 styles

Вернуться в «3D моделирование в Tekla Structures»

Кто сейчас на конференции

Сейчас этот форум просматривают: нет зарегистрированных пользователей и 1 гость