Подскажите, пожалуйста,
почему с помощью команды "Ленточный фундамент"
я не могу нарисовать замкнутый контур.
Ленточный фундамент в Tekla Structures
- Таран Д. А.
- Администратор
- Сообщения: 2877
- Регистрация: 30 ноя 2011, 18:41
- Откуда: г. Москва
- Контактная информация:
Re: Ленточный фундамент в Tekla Structures
Не пытайся нарисовать его одним элементом.
А если здание монолит ты тоже его будешь полностью одним куском делать?
Каждый отлитый элемент отдельно.
Если надо то можно и объединить
А если здание монолит ты тоже его будешь полностью одним куском делать?
Каждый отлитый элемент отдельно.
Если надо то можно и объединить
Администратор Topengineer.ru 8 (495) 215-07-79 (офис) ; 8 (925) 755-9318 (сот.); Skype wildomen ; http://vk.com/tekla_structures
Разработка КМД | Разработка КМ | Разработка КЖ | Обучение Tekla Structures | Купить Tekla Structures
Разработка КМД | Разработка КМ | Разработка КЖ | Обучение Tekla Structures | Купить Tekla Structures
Re: Ленточный фундамент в Tekla Structures
Ленточный фундамент можно делать хоть колоннами (а потом повернуть их). Это не принципиально.
Как назовешь элемент - так и пойдет в спецификацию.
Как назовешь элемент - так и пойдет в спецификацию.
- Таран Д. А.
- Администратор
- Сообщения: 2877
- Регистрация: 30 ноя 2011, 18:41
- Откуда: г. Москва
- Контактная информация:
Re: Ленточный фундамент в Tekla Structures
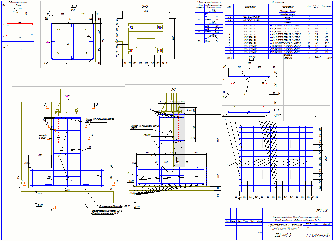
Пример чертежа с расположением отлитых элементов http://topengineer.ru/images/drawing/kg ... le_042.pdf
Администратор Topengineer.ru 8 (495) 215-07-79 (офис) ; 8 (925) 755-9318 (сот.); Skype wildomen ; http://vk.com/tekla_structures
Разработка КМД | Разработка КМ | Разработка КЖ | Обучение Tekla Structures | Купить Tekla Structures
Разработка КМД | Разработка КМ | Разработка КЖ | Обучение Tekla Structures | Купить Tekla Structures
Re: Ленточный фундамент в Tekla Structures
Спасибо за ответ.
Я все понял
Я все понял
phpbb3 styles
Кто сейчас на конференции
Сейчас этот форум просматривают: нет зарегистрированных пользователей и 16 гостей

