Нумерация позиций арматуры в Tekla Structures
Нумерация позиций арматуры в Tekla Structures
Всем привет подскажите, как изменить нумерацию позиций сейчас начинается с 150 например, а я хочу сделать чтобы начиналась с позиции 1 ...
А также как изменить количество листов на листе (см. скрин) сейчас пишет что 2.
А также как изменить количество листов на листе (см. скрин) сейчас пишет что 2.
- Таран Д. А.
- Администратор
- Сообщения: 2877
- Регистрация: 30 ноя 2011, 18:41
- Откуда: г. Москва
- Контактная информация:
Re: Нумерация позиций арматуры
Почему именно с 1?ckolobok писал(а):Всем привет подскажите, как изменить нумерацию позиций сейчас начинается с 150 например, а я хочу сделать чтобы начиналась с позиции 1 ...
А также как изменить количество листов на листе (см. скрин) сейчас пишет что 2.
Нумерация идет по всей модели сквозная.
То есть может быть арматура 75 и рядом 867 это нормально.
Иначе разные арматуры имели бы одинаковые номера в разных частях модели.
Администратор Topengineer.ru 8 (495) 215-07-79 (офис) ; 8 (925) 755-9318 (сот.); Skype wildomen ; http://vk.com/tekla_structures
Разработка КМД | Разработка КМ | Разработка КЖ | Обучение Tekla Structures | Купить Tekla Structures
Разработка КМД | Разработка КМ | Разработка КЖ | Обучение Tekla Structures | Купить Tekla Structures
Re: Нумерация позиций арматуры
Все проблема в том, что в модели имеется лишь 12 позиций, и хотелось бы чтобы они все нумеровались от 1 до 12, а то сейчас такое- см скрин.
На первую не смотрите там я пытался вручную поменять, но лишь добился что пишется позиция и номер семейства...
На первую не смотрите там я пытался вручную поменять, но лишь добился что пишется позиция и номер семейства...
Re: Нумерация позиций арматуры
Неужели никто не делал так чтобы позиции начинались с 1?
- vladimir_a
- Сообщения: 699
- Регистрация: 07 дек 2011, 21:22
Re: Нумерация позиций арматуры
у тебя модель большая покажи. здесь сквозная нумерация. начальный номер 1. можно через префиксы деталей-задаешь разные буквы.ckolobok писал(а):Неужели никто не делал так чтобы позиции начинались с 1?
Re: Нумерация позиций арматуры
Модель вот такая (см.скрин2). Просто не пойму, как было сделано вот в этом примере (см скрин1), что нумерация позиций начинается с 1...vladimir_a писал(а):у тебя модель большая покажи. здесь сквозная нумерация. начальный номер 1. можно через префиксы деталей-задаешь разные буквы.ckolobok писал(а):Неужели никто не делал так чтобы позиции начинались с 1?
И еще вопрос как можно изменить надпись на скрине 2- например Бетон_Б-17 на Балка_Б-17 или на Б-17? Что то я с этими номерами вообще запутался в жб...
Re: Нумерация позиций арматуры
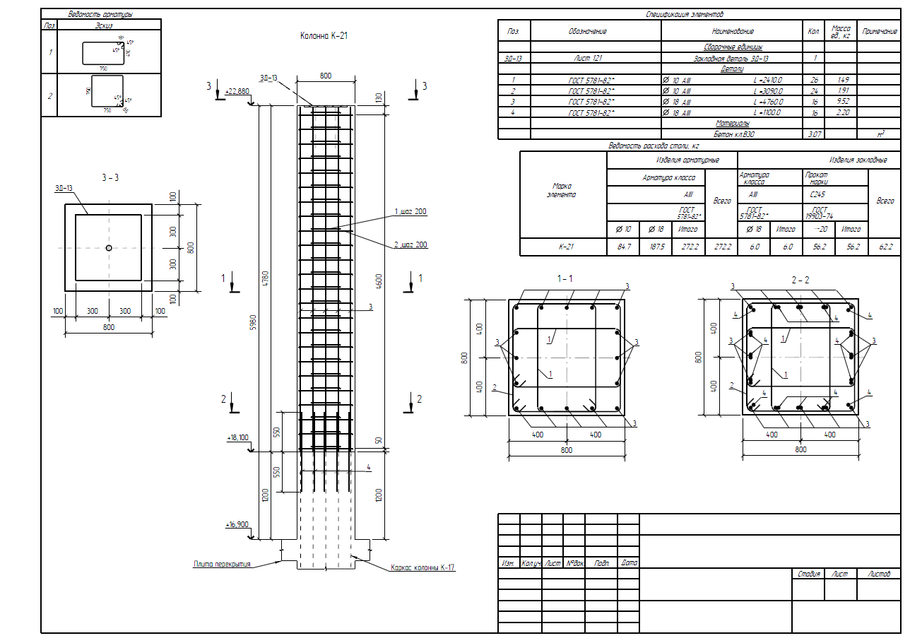
Смотрю примерчик мой в массы пошел!)) Мы делали отдельный префикс для арматуры каждого элемента. Т.е. вот есть колонна К-21, вот и ставили такой префикс для арматуры данной колонны. Потому как не согласен с мнением Димы, что нумерация арматуры должна быть сквозная по более-менее крупному объекту. Это ж не стальные детали, пришла арматура на стройку и режь как хочешь.ckolobok писал(а): Просто не пойму, как было сделано вот в этом примере (см скрин1), что нумерация позиций начинается с 1...
Re: Нумерация позиций арматуры в Tekla Structures
Ага пошел, хорошее оформление)) Я так понимаю можно сделать так (при этом пронумеровать все арматурные стержни? -см.скрин, т.е. там где позиция арматуры поставить serial number вместо rebar pos?Sega писал(а):Смотрю примерчик мой в массы пошел!)) Мы делали отдельный префикс для арматуры каждого элемента. Т.е. вот есть колонна К-21, вот и ставили такой префикс для арматуры данной колонны. Потому как не согласен с мнением Димы, что нумерация арматуры должна быть сквозная по более-менее крупному объекту. Это ж не стальные детали, пришла арматура на стройку и режь как хочешь.
Re: Нумерация позиций арматуры в Tekla Structures
У меня стоит rebar pos, но я менял еще в расширенных параметрах содержимое номера положения арматуры. Но, видимо, так как вы предлагаете тоже можно.ckolobok писал(а): Я так понимаю можно сделать так (при этом пронумеровать все арматурные стержни? -см.скрин, т.е. там где позиция арматуры поставить serial number вместо rebar pos?
Re: Нумерация позиций арматуры в Tekla Structures
А не подскажите где это точно меняется, куда можно зайти?)Sega писал(а):У меня стоит rebar pos, но я менял еще в расширенных параметрах содержимое номера положения арматуры. Но, видимо, так как вы предлагаете тоже можно.
А также как можно убрать надпись "бетон", а то она мне не нравиться?)
- vladimir_a
- Сообщения: 699
- Регистрация: 07 дек 2011, 21:22
Re: Нумерация позиций арматуры в Tekla Structures
свойства детали покажиckolobok писал(а):А не подскажите где это точно меняется, куда можно зайти?)Sega писал(а):У меня стоит rebar pos, но я менял еще в расширенных параметрах содержимое номера положения арматуры. Но, видимо, так как вы предлагаете тоже можно.
А также как можно убрать надпись "бетон", а то она мне не нравиться?)
Re: Нумерация позиций арматуры в Tekla Structures
Прикрепляю скрин свойста детали...vladimir_a писал(а):свойства детали покажи
Sega писал(а): У меня стоит rebar pos, но я менял еще в расширенных параметрах содержимое номера положения арматуры. Но, видимо, так как вы предлагаете тоже можно.
А что там нужно поменять?, а то как я поменял не очень хорошо получается, надпись на чертежах (позиция арматуры) остается Б1-5, а как ее просто поставить 5 нельзя... что есть не хорошо))
или может кто подскажет, как на чертежах позицию поставить без Б1 (сейчас Б1-5)?
C этим разобрался!
А вот с подписью деталий как в скрине пока вопрос...
Что-то вопросов больше с оформлением черз с самим армированием, жесть...))) В ревите может и быстрее бы получилось, хотя он мне как-то не очень понравился....
Re: Нумерация позиций арматуры в Tekla Structures
По своему опыту сужу, вопросы с оформлением снимаются за один пилотный проект, дальше просто песня!)Вы попробуйте в ревите сделать что-нибудь в КЖ до конца со всеми спецификациями, тогда можно будет говорить о скорости. Был на двг пример как-то КЖ в ревите, дак в сравнении с теклой это небо и земля. Причем и автор того проекта это признает!)ckolobok писал(а): Что-то вопросов больше с оформлением чем с самим армированием, жесть...))) В ревите может и быстрее бы получилось, хотя он мне как-то не очень понравился....
Re: Нумерация позиций арматуры в Tekla Structures
С этим я уже соглашусь, чем дальше настраиваю, тем становиться все проще и понятнее и ничего и сложного, хотя вопросов конечно еще хватает...)Sega писал(а):По своему опыту сужу, вопросы с оформлением снимаются за один пилотный проект, дальше просто песня!)Вы попробуйте в ревите сделать что-нибудь в КЖ до конца со всеми спецификациями, тогда можно будет говорить о скорости. Был на двг пример как-то КЖ в ревите, дак в сравнении с теклой это небо и земля. Причем и автор того проекта это признает!)
Вот никак не могу понять, как можно убрать надпись "бетон", а то она мне не нравиться?)
- vladimir_a
- Сообщения: 699
- Регистрация: 07 дек 2011, 21:22
Re: Нумерация позиций арматуры в Tekla Structures
Там видать программноckolobok писал(а):
Вот никак не могу понять, как можно убрать надпись "бетон", а то она мне не нравиться?)
Re: Нумерация позиций арматуры в Tekla Structures
а не пробовали поискать в расширенных параметрах переменые со словом prefix?ckolobok писал(а):...как можно убрать надпись "бетон"...
- Таран Д. А.
- Администратор
- Сообщения: 2877
- Регистрация: 30 ноя 2011, 18:41
- Откуда: г. Москва
- Контактная информация:
Re: Нумерация позиций арматуры в Tekla Structures
Я просто отрезаю MIDCuPo>I<a писал(а):а не пробовали поискать в расширенных параметрах переменые со словом prefix?ckolobok писал(а):...как можно убрать надпись "бетон"...
Администратор Topengineer.ru 8 (495) 215-07-79 (офис) ; 8 (925) 755-9318 (сот.); Skype wildomen ; http://vk.com/tekla_structures
Разработка КМД | Разработка КМ | Разработка КЖ | Обучение Tekla Structures | Купить Tekla Structures
Разработка КМД | Разработка КМ | Разработка КЖ | Обучение Tekla Structures | Купить Tekla Structures
Re: Нумерация позиций арматуры в Tekla Structures
Дим, проще через расширенные сделать один раз, потом этот мид не таскать дальше.Таран Д. А. писал(а):Я просто отрезаю MID
Re: Нумерация позиций арматуры в Tekla Structures
А как там нужно написать, а то у меня толком не получилось убрать... Я его просто скрыл и дописал текстом...Sega писал(а):Дим, проще через расширенные сделать один раз, потом этот мид не таскать дальше.Таран Д. А. писал(а):Я просто отрезаю MID
А также еще один вопрос, как обьеденить 2 элемента, чтобы в спецификации был один лишь общий обьем бетона, а не состоящий из двух и более?
Re: Нумерация позиций арматуры в Tekla Structures
На панеле детализации, там где обрезка и подгонка, команда прикрепить к детали (зелененькая).ckolobok писал(а): А также еще один вопрос, как обьеденить 2 элемента, чтобы в спецификации был один лишь общий обьем бетона, а не состоящий из двух и более?
Re: Нумерация позиций арматуры в Tekla Structures
Ага, нашел, спасибо большое!!! А как можно эту кнопку вынести на панель?Zezza писал(а):На панеле детализации, там где обрезка и подгонка, команда прикрепить к детали (зелененькая).ckolobok писал(а): А также еще один вопрос, как обьеденить 2 элемента, чтобы в спецификации был один лишь общий обьем бетона, а не состоящий из двух и более?
Re: Нумерация позиций арматуры в Tekla Structures
Так они уже там
Re: Нумерация позиций арматуры в Tekla Structures
У меня там такого и нету) Да в принципе и интересно как можно некоторые кнопки вынести на панель.Zezza писал(а):Так они уже там
Re: Нумерация позиций арматуры в Tekla Structures
Инструменты-->Настроить
Слева панели, справа команды, стрелочками туда-сюда, что хотите, то творите
Слева панели, справа команды, стрелочками туда-сюда, что хотите, то творите
Re: Нумерация позиций арматуры в Tekla Structures
Это я конечно видел, но не нашел там "прикрепить деталь"... потому и спросил...Zezza писал(а):Инструменты-->Настроить
Слева панели, справа команды, стрелочками туда-сюда, что хотите, то творите
Re: Нумерация позиций арматуры в Tekla Structures
Фиг знает, у меня все там есть. Поиском на раз находится.
- pavelkutas
- Сообщения: 276
- Регистрация: 16 янв 2013, 14:11
- Откуда: Санкт-Петербург
- Контактная информация:
Алгоритм нумерации позиций арматуры
Задача: создание отдельных чертежей на разные отлитые элементы. У каждого элемента спецификация своя, начинается с позиции 1. Добиваюсь этого заданием префикса для всех арматурных стержней конкретного отлитого элемента.
Результат: см. вложения - нумерация в порядке возрастания, ок. Но не по классам. Не по диаметрам. В идеале нужно сделать вывод позиций арматуры в спецификации на чертеже от большего диаметра к меньшему + группировка по классам.
Вопросы: как можно настроить сам принцип нумерации, чтобы программа присваивала номера арматурным стержням, начиная с большего диаметра? Или хотя бы по классам? От А500 к А240 сверху вниз? Каким образом в программе происходит нумерация арматурных стержней? Сам алгоритм? С какого стержня начинается нумерация?
и самый главный вопрос - поз. 5, 7, 11 это группа арматурных стержней. Кол-во в спецификации отображает верно, а длину только одного стержня. Реально настроить вывод в стиле, например "L=500... 700 через 100 мм"?
Результат: см. вложения - нумерация в порядке возрастания, ок. Но не по классам. Не по диаметрам. В идеале нужно сделать вывод позиций арматуры в спецификации на чертеже от большего диаметра к меньшему + группировка по классам.
Вопросы: как можно настроить сам принцип нумерации, чтобы программа присваивала номера арматурным стержням, начиная с большего диаметра? Или хотя бы по классам? От А500 к А240 сверху вниз? Каким образом в программе происходит нумерация арматурных стержней? Сам алгоритм? С какого стержня начинается нумерация?
и самый главный вопрос - поз. 5, 7, 11 это группа арматурных стержней. Кол-во в спецификации отображает верно, а длину только одного стержня. Реально настроить вывод в стиле, например "L=500... 700 через 100 мм"?
Re: Нумерация позиций арматуры в Tekla Structures
Добрый день. Может кто-нибудь написать подробную инструкцию, как нумерацию арматуры в объекте делать не сквозной? Т.е. для каждого монолитного элемента нумерация начинается с 1 без всяких префиксов. Пробовал и менять в шаблоне где позиция арматуры serial number вместо rebar pos, так же в файле объекта objects.inp атрибут REBAR_SEQ_NO менял строчку с attribute("PRODUCT_DESCR", "j_Product_description", string, "%s", no, none, "0.0", "0.0") на attribute("PRODUCT_DESCR", "j_Product_description", string, "%s", yes, none, "0.0", "0.0") и правил это в Диагностике и изменении определений атрибутов и делал нумерацию через приложение RebarSeqNumbering, но ничего не помогло.
Прошу советов у знающих людей
Прошу советов у знающих людей
- pavelkutas
- Сообщения: 276
- Регистрация: 16 янв 2013, 14:11
- Откуда: Санкт-Петербург
- Контактная информация:
Re: Нумерация позиций арматуры в Tekla Structures
Я уже отошёл от КЖ, но что на счёт этого переключателя в среде? Пробовали?
Re: Нумерация позиций арматуры в Tekla Structures
Не пробовал, не находил такую панель параметров. В каком она меню? Похоже на среду от Топинженера
- pavelkutas
- Сообщения: 276
- Регистрация: 16 янв 2013, 14:11
- Откуда: Санкт-Петербург
- Контактная информация:
Re: Нумерация позиций арматуры в Tekla Structures
Да, среда топинженер
Re: Нумерация позиций арматуры в Tekla Structures
У обычных людей это выглядит так)
daiman444 нашел решение, очень помог этим, вот ссылка на его решение viewtopic.php?f=6&t=3736&p=20869#p20869
daiman444 нашел решение, очень помог этим, вот ссылка на его решение viewtopic.php?f=6&t=3736&p=20869#p20869
phpbb3 styles
Кто сейчас на конференции
Сейчас этот форум просматривают: нет зарегистрированных пользователей и 2 гостя

