Проектирование архитектуры в Tekla Struktures
- Таран Д. А.
- Администратор
- Сообщения: 2877
- Регистрация: 30 ноя 2011, 18:41
- Откуда: г. Москва
- Контактная информация:
Проектирование архитектуры в Tekla Struktures
Проектирование АР КМ КМД КЖ в Tekla Struktures
Администратор Topengineer.ru 8 (495) 215-07-79 (офис) ; 8 (925) 755-9318 (сот.); Skype wildomen ; http://vk.com/tekla_structures
Разработка КМД | Разработка КМ | Разработка КЖ | Обучение Tekla Structures | Купить Tekla Structures
Разработка КМД | Разработка КМ | Разработка КЖ | Обучение Tekla Structures | Купить Tekla Structures
Re: Проектирование архитектуры в Tekla Struktures
Боюсь, что архитекторов на TS не посадить, слишком сложно для них эта программа, да и привыкли они уже к архикаду + 3D Max
- Таран Д. А.
- Администратор
- Сообщения: 2877
- Регистрация: 30 ноя 2011, 18:41
- Откуда: г. Москва
- Контактная информация:
Re: Проектирование архитектуры в Tekla Struktures
Архитектура это не рендер а комплект чертежей. Сам рендер можно делать где угодно. Это баловство.RHSY писал(а):Боюсь, что архитекторов на TS не посадить, слишком сложно для них эта программа, да и привыкли они уже к архикаду + 3D Max
Мы уже переходим. У нас все получится.

Возможно будет и локализация под архитектуру. Думаю пока над этим.
Администратор Topengineer.ru 8 (495) 215-07-79 (офис) ; 8 (925) 755-9318 (сот.); Skype wildomen ; http://vk.com/tekla_structures
Разработка КМД | Разработка КМ | Разработка КЖ | Обучение Tekla Structures | Купить Tekla Structures
Разработка КМД | Разработка КМ | Разработка КЖ | Обучение Tekla Structures | Купить Tekla Structures
Re: Проектирование архитектуры в Tekla Struktures
В последнее время найти толкового архитектора - большая проблема. В основном все озабочены формой и цветом. В отделах сидят "картиночники", не способные выполнить рабочку. Поэтому задачи свои они за частую воспринимают иначе, а планы за них порою конструктора дорабатывают. Так что я сомневаюсь, конечно можно выполнять архитектуру в TS, но подвязать на это архитекторов...
Re: Проектирование архитектуры в Tekla Struktures
При всем уважении, Дим, мне кажется, что архитектуру в Текле делать - большая задница. В Ревите все накидывается намного быстрее. Стены и полы многослойные вообще песня, окна, там дверки разные. С площадями все эти геморры вообще отлично решено. Плюс криволинейка всякая там оч удобно решается, особенно на стадии замысла.
- Таран Д. А.
- Администратор
- Сообщения: 2877
- Регистрация: 30 ноя 2011, 18:41
- Откуда: г. Москва
- Контактная информация:
Re: Проектирование архитектуры в Tekla Struktures
Архикад кстати очень похож на теклу.Zezza писал(а):При всем уважении, Дим, мне кажется, что архитектуру в Текле делать - большая задница. В Ревите все накидывается намного быстрее. Стены и полы многослойные вообще песня, окна, там дверки разные. С площадями все эти геморры вообще отлично решено. Плюс криволинейка всякая там оч удобно решается, особенно на стадии замысла.
Вообще смысл делать в одной программе есть. Иначе приходится контролировать слишком много изменений в разных файлах и в разных программах.
Стеклопакеты сделали компанентами работают на ура 1 компанент любые окна и двери+ открывание стеклопакетов в любых направдениях.
Двери тоже 1 компанент. Нет смысла каждую. дверь делать отдельно.
Зато КЖ делать потом просто сказка. Металл тоже по любому в здании есть, + еще куча разделов. Ну и сама архитектура выглядит симпатично.
Тут вопрос не в сложности внедрения в а очевидной необходимости в переходе на проект в одном файле от начала и до конца. Все конструкторское бюро в одну софтину и будет норм. Бесшовные технологии!
Администратор Topengineer.ru 8 (495) 215-07-79 (офис) ; 8 (925) 755-9318 (сот.); Skype wildomen ; http://vk.com/tekla_structures
Разработка КМД | Разработка КМ | Разработка КЖ | Обучение Tekla Structures | Купить Tekla Structures
Разработка КМД | Разработка КМ | Разработка КЖ | Обучение Tekla Structures | Купить Tekla Structures
- Таран Д. А.
- Администратор
- Сообщения: 2877
- Регистрация: 30 ноя 2011, 18:41
- Откуда: г. Москва
- Контактная информация:
Re: Проектирование архитектуры в Tekla Struktures
Администратор Topengineer.ru 8 (495) 215-07-79 (офис) ; 8 (925) 755-9318 (сот.); Skype wildomen ; http://vk.com/tekla_structures
Разработка КМД | Разработка КМ | Разработка КЖ | Обучение Tekla Structures | Купить Tekla Structures
Разработка КМД | Разработка КМ | Разработка КЖ | Обучение Tekla Structures | Купить Tekla Structures
Re: Проектирование архитектуры в Tekla Struktures
Отличная идея! Надо стремиться проектировать разделы (ГП, АР, КМ, КЖ, ТХ, ВК, ЭО) в одной модели TS, сложное оборудование от поставщиков можно вставлять 3D-опорными моделями и со временем, и их смоделить в TS. Грамотно разбивать все на стадии... то получится настоящий BIM.
- Таран Д. А.
- Администратор
- Сообщения: 2877
- Регистрация: 30 ноя 2011, 18:41
- Откуда: г. Москва
- Контактная информация:
Re: Проектирование архитектуры в Tekla Struktures
Так и делаемPac3c писал(а):Отличная идея! Надо стремиться проектировать разделы (ГП, АР, КМ, КЖ, ТХ, ВК, ЭО) в одной модели TS, сложное оборудование от поставщиков можно вставлять 3D-опорными моделями и со временем, и их смоделить в TS. Грамотно разбивать все на стадии... то получится настоящий BIM.

Администратор Topengineer.ru 8 (495) 215-07-79 (офис) ; 8 (925) 755-9318 (сот.); Skype wildomen ; http://vk.com/tekla_structures
Разработка КМД | Разработка КМ | Разработка КЖ | Обучение Tekla Structures | Купить Tekla Structures
Разработка КМД | Разработка КМ | Разработка КЖ | Обучение Tekla Structures | Купить Tekla Structures
- Таран Д. А.
- Администратор
- Сообщения: 2877
- Регистрация: 30 ноя 2011, 18:41
- Откуда: г. Москва
- Контактная информация:
Re: Проектирование архитектуры в Tekla Struktures
Добавил новые скрины. Модель еще не окончена.
Администратор Topengineer.ru 8 (495) 215-07-79 (офис) ; 8 (925) 755-9318 (сот.); Skype wildomen ; http://vk.com/tekla_structures
Разработка КМД | Разработка КМ | Разработка КЖ | Обучение Tekla Structures | Купить Tekla Structures
Разработка КМД | Разработка КМ | Разработка КЖ | Обучение Tekla Structures | Купить Tekla Structures
Re: Проектирование архитектуры в Tekla Struktures
Архитектуру в текле делать - мягко говоря не удобно. И во многом бессмысленно. В этом смысле акадовские решения и референс модель в теклу - на мой взгляд будет удобнее.
Именно из за умения акада работать с блоками, и на лету делать параметрические решения, плюс большое колличество скриптов сильно облегчающих жизнь. Да и экспорт в тот же 3д макс грамотнее из автокада, не говоря уже про ревит.
Макс меши из текловской модели понимает крайне корявым образом к сожалению
Хех, собственно у вас на первом скрине и видно, что так и было сделано.
Именно из за умения акада работать с блоками, и на лету делать параметрические решения, плюс большое колличество скриптов сильно облегчающих жизнь. Да и экспорт в тот же 3д макс грамотнее из автокада, не говоря уже про ревит.
Макс меши из текловской модели понимает крайне корявым образом к сожалению

Хех, собственно у вас на первом скрине и видно, что так и было сделано.
свои разработки складирую тут: http://cadsupport.ru
- Таран Д. А.
- Администратор
- Сообщения: 2877
- Регистрация: 30 ноя 2011, 18:41
- Откуда: г. Москва
- Контактная информация:
Re: Проектирование архитектуры в Tekla Struktures
Я не говорил делать надо только архитектуру. Наоборот делать надо все разделы а архитектуру автоматом получится (надо только кое что предусмотреть)MikhailK писал(а):Архитектуру в текле делать - мягко говоря не удобно. И во многом бессмысленно. В этом смысле акадовские решения и референс модель в теклу - на мой взгляд будет удобнее.
Именно из за умения акада работать с блоками, и на лету делать параметрические решения, плюс большое колличество скриптов сильно облегчающих жизнь. Да и экспорт в тот же 3д макс грамотнее из автокада, не говоря уже про ревит.
Макс меши из текловской модели понимает крайне корявым образом к сожалению
Хех, собственно у вас на первом скрине и видно, что так и было сделано.
В данном проекте было столько изменений нам прошлось пере выпустить архитектуру. Изначально были чертежи но они были крайне не точны.
Просто вы детали все на стадии а мы делаем все одной стадией. Собственно архитектура и КЖ у нас делается одними и теми же инженерами вплоть до армирования.
Разрабатывается рабочка причем она опять же только для количества. Так как сам проект тоже готов.
Рендер это не важно. Баловством не занимаемся.
Администратор Topengineer.ru 8 (495) 215-07-79 (офис) ; 8 (925) 755-9318 (сот.); Skype wildomen ; http://vk.com/tekla_structures
Разработка КМД | Разработка КМ | Разработка КЖ | Обучение Tekla Structures | Купить Tekla Structures
Разработка КМД | Разработка КМ | Разработка КЖ | Обучение Tekla Structures | Купить Tekla Structures
- Таран Д. А.
- Администратор
- Сообщения: 2877
- Регистрация: 30 ноя 2011, 18:41
- Откуда: г. Москва
- Контактная информация:
Re: Проектирование архитектуры в Tekla Struktures
Таран Д. А. писал(а):Я не говорил делать надо только архитектуру. Наоборот делать надо все разделы а архитектуру автоматом получится (надо только кое что предусмотреть)MikhailK писал(а):Архитектуру в текле делать - мягко говоря не удобно. И во многом бессмысленно. В этом смысле акадовские решения и референс модель в теклу - на мой взгляд будет удобнее.
Именно из за умения акада работать с блоками, и на лету делать параметрические решения, плюс большое колличество скриптов сильно облегчающих жизнь. Да и экспорт в тот же 3д макс грамотнее из автокада, не говоря уже про ревит.
Макс меши из текловской модели понимает крайне корявым образом к сожалению
Хех, собственно у вас на первом скрине и видно, что так и было сделано.
В данном проекте было столько изменений нам прошлось пере выпустить архитектуру. Изначально были чертежи но они были крайне не точны.
Просто вы детали все на стадии а мы делаем все одной стадией. Собственно архитектура и КЖ у нас делается одними и теми же инженерами вплоть до армирования.
Разрабатывается рабочка причем она опять же только для количества. Так как сам проект тоже готов.
Рендер это не важно. Баловством не занимаемся. Нам нужны чертежи и спецификации.
Администратор Topengineer.ru 8 (495) 215-07-79 (офис) ; 8 (925) 755-9318 (сот.); Skype wildomen ; http://vk.com/tekla_structures
Разработка КМД | Разработка КМ | Разработка КЖ | Обучение Tekla Structures | Купить Tekla Structures
Разработка КМД | Разработка КМ | Разработка КЖ | Обучение Tekla Structures | Купить Tekla Structures
Re: Проектирование архитектуры в Tekla Struktures
Мы значит немного разные вещи понимаем под словом архитектура. Для меня - это искусство. Творческий поиск идеального решения среди множества параметров. Цвет, свет, материалы, ритм, пластика, антропометрия которые должны идеально сочетаться и отвечать всем поставленным в техническом задании требованиям. А уже потом идет конструкция в идеале конструкция есть естественное продолжение архитектурной задумки. Не в идеале... ну в общем все знаем как это бывает.Я не говорил делать надо только архитектуру. Наоборот делать надо все разделы а архитектуру автоматом получится (надо только кое что предусмотреть)
В данном проекте было столько изменений нам прошлось пере выпустить архитектуру. Изначально были чертежи но они были крайне не точны.
Просто вы детали все на стадии а мы делаем все одной стадией. Собственно архитектура и КЖ у нас делается одними и теми же инженерами вплоть до армирования.
Разрабатывается рабочка причем она опять же только для количества. Так как сам проект тоже готов.
Рендер это не важно. Баловством не занимаемся.
Текла это шикарный инструмент для конструктора. Она позволяет воплотить любую художественную и инженерную задумку и это факт. Но заниматься в ней творческим поиском за рамками узлов и деталей иначе как мазохизмом я назвать не могу.
По референсу из художественного решения сделать идеальную конструкцию - да!
Заниматься художественным поиском, нет. Есть много других более приспособленных для этих задач пакетов. Которые позволяют работать со всеми указанными выше параметрами для создания действительно неотразимого художественного образа. И визуализация как раньше отмывка это результат этого поиска. Называть это баловством - не красиво. Это не баловство, это результат огромной интегральной работы. Ну или баловство, смотря что в результате, просто красивая картинка, или заготовка для BIM модели.
Плюс современные комплексы позволяют использовать при создании виртуальной модели физически корректные модели светильников соответствующие реальной номенклатуре изделий всех крупнейших производителей. Т.е. получать не просто визуализацию но и проект по освещению.
Но это мое виденье. Тот идеал к которому хочется стремиться.
свои разработки складирую тут: http://cadsupport.ru
- Таран Д. А.
- Администратор
- Сообщения: 2877
- Регистрация: 30 ноя 2011, 18:41
- Откуда: г. Москва
- Контактная информация:
Re: Проектирование архитектуры в Tekla Struktures
По факту я лично за всю свою жизнь видел максимум это указанный рал на архитектуре. И то он потом меняется по 100 раз так как материал подбирают в процессе.
Проектирование - это получение необходимого комплекта документации в том числе архитектурный проект.
Ну а подбор цветов и т.д. если интересно заняться искусством то доделываете это в чем угодно я делаю в Lumion 4.
Модели сделаны в текла. Раскрасить их и нанести пейзаж это дело 10 минут. А вот согласовать с заказчиком другое дело - тут надо несколько вариантов, да и они потом поменяются 100 раз.
Это наименьшая проблема из всех. Опять же я повторюсь мы доделаем все разделы в одной программе. Архитектура отдельно не делается, проектируется сразу готовое здание целиком все разделы (одностадийное проектирование).
А особо заморочены на внешности проектов не так много. Жилье бизнес класса- да наверно и все. Остальных слишком мало чтобы об этом говорить. Да и бизнес сегмент жилья тоже достаточно узкая штука. В строительстве в основном архитектура это рутиная документация.
Мы воспринимаем ее только как часть проекта боле.
Проектирование - это получение необходимого комплекта документации в том числе архитектурный проект.
Ну а подбор цветов и т.д. если интересно заняться искусством то доделываете это в чем угодно я делаю в Lumion 4.
Модели сделаны в текла. Раскрасить их и нанести пейзаж это дело 10 минут. А вот согласовать с заказчиком другое дело - тут надо несколько вариантов, да и они потом поменяются 100 раз.
Это наименьшая проблема из всех. Опять же я повторюсь мы доделаем все разделы в одной программе. Архитектура отдельно не делается, проектируется сразу готовое здание целиком все разделы (одностадийное проектирование).
А особо заморочены на внешности проектов не так много. Жилье бизнес класса- да наверно и все. Остальных слишком мало чтобы об этом говорить. Да и бизнес сегмент жилья тоже достаточно узкая штука. В строительстве в основном архитектура это рутиная документация.
Мы воспринимаем ее только как часть проекта боле.
Администратор Topengineer.ru 8 (495) 215-07-79 (офис) ; 8 (925) 755-9318 (сот.); Skype wildomen ; http://vk.com/tekla_structures
Разработка КМД | Разработка КМ | Разработка КЖ | Обучение Tekla Structures | Купить Tekla Structures
Разработка КМД | Разработка КМ | Разработка КЖ | Обучение Tekla Structures | Купить Tekla Structures
Re: Проектирование архитектуры в Tekla Struktures
Посмотришь на первый скриншот в первом сообщении, и видно эту самую стадийность. То, что проект претерпевает на разных стадиях изменения, зачастую кардинальные, не отменяет стадийности.Архитектура отдельно не делается, проектируется сразу готовое здание целиком все разделы (одностадийное проектирование).
Не перескочить с концепта сразу в проект.
То, что рабочая и проектная документация выходит из одного источника - это хорошо. Но это не называется одностадийным проектированием.
Тут кстати отчетливо видно, что инженеры совершают ту же ошибку в отношении архитектуры, что и их предшественники в отношении современных методов проектирования.
Человек, который в силу привычки уже не в состоянии освоить новые методы, зачастую скатывается к банальному отрицанию их необходимости. Непонимание архитектуры приводит к отрицанию её как дисциплины. Не понимание дизайна приводит к отрицанию дизайна. Преуменьшению роли этих дисциплин.
Следствия этого мы наблюдаем в нашей повседневности повсюду. По сути именно этот подход убил отечественную архитектуру в 60-80е годы.
Верный ли это подход? Время показывает, что нет. Окружающая действительность оказывает на человека колоссальное влияние. Недопонимание этого влияния, его отрицание, преуменьшение его роли это ошибка.
Отношение к этим разделам как к чему-то несущественному, обрекает нас на то чтобы и дальше плестись в фарватере европейских тенденций.
свои разработки складирую тут: http://cadsupport.ru
Re: Проектирование архитектуры в Tekla Struktures
И в догонку, вот концепт скалодрома вписанный в помещение. Моделирование, дизайн, визуализация делалась в течении одного дня (12 часов с перебором разных вариантов).
Смоделировать, что-то подобное с нуля в самой Текле задача не тривиальная. И явно не на один день.
А вот сделать сам каркас по опорной модели - просто и приятно.
Смоделировать, что-то подобное с нуля в самой Текле задача не тривиальная. И явно не на один день.
А вот сделать сам каркас по опорной модели - просто и приятно.
свои разработки складирую тут: http://cadsupport.ru
- teandrey89
- Сообщения: 120
- Регистрация: 11 июл 2012, 01:18
- Откуда: Saint Petersburg
Re: Проектирование архитектуры в Tekla Struktures
В каком форматке лучше делать экспорт из теклы в Lumion 4.
На картинках ниже экспорт был через 3d DWG...
Чесно не очень классно передалось. Наружные грани сэндвичей не отрисовались...
А так програмка супер! Быстро и наглядно все получается!!!
На картинках ниже экспорт был через 3d DWG...
Чесно не очень классно передалось. Наружные грани сэндвичей не отрисовались...
А так програмка супер! Быстро и наглядно все получается!!!
- Таран Д. А.
- Администратор
- Сообщения: 2877
- Регистрация: 30 ноя 2011, 18:41
- Откуда: г. Москва
- Контактная информация:
Re: Проектирование архитектуры в Tekla Struktures
Администратор Topengineer.ru 8 (495) 215-07-79 (офис) ; 8 (925) 755-9318 (сот.); Skype wildomen ; http://vk.com/tekla_structures
Разработка КМД | Разработка КМ | Разработка КЖ | Обучение Tekla Structures | Купить Tekla Structures
Разработка КМД | Разработка КМ | Разработка КЖ | Обучение Tekla Structures | Купить Tekla Structures
- Таран Д. А.
- Администратор
- Сообщения: 2877
- Регистрация: 30 ноя 2011, 18:41
- Откуда: г. Москва
- Контактная информация:
Re: Проектирование архитектуры в Tekla Struktures
Администратор Topengineer.ru 8 (495) 215-07-79 (офис) ; 8 (925) 755-9318 (сот.); Skype wildomen ; http://vk.com/tekla_structures
Разработка КМД | Разработка КМ | Разработка КЖ | Обучение Tekla Structures | Купить Tekla Structures
Разработка КМД | Разработка КМ | Разработка КЖ | Обучение Tekla Structures | Купить Tekla Structures
- Таран Д. А.
- Администратор
- Сообщения: 2877
- Регистрация: 30 ноя 2011, 18:41
- Откуда: г. Москва
- Контактная информация:
Re: Проектирование архитектуры в Tekla Struktures
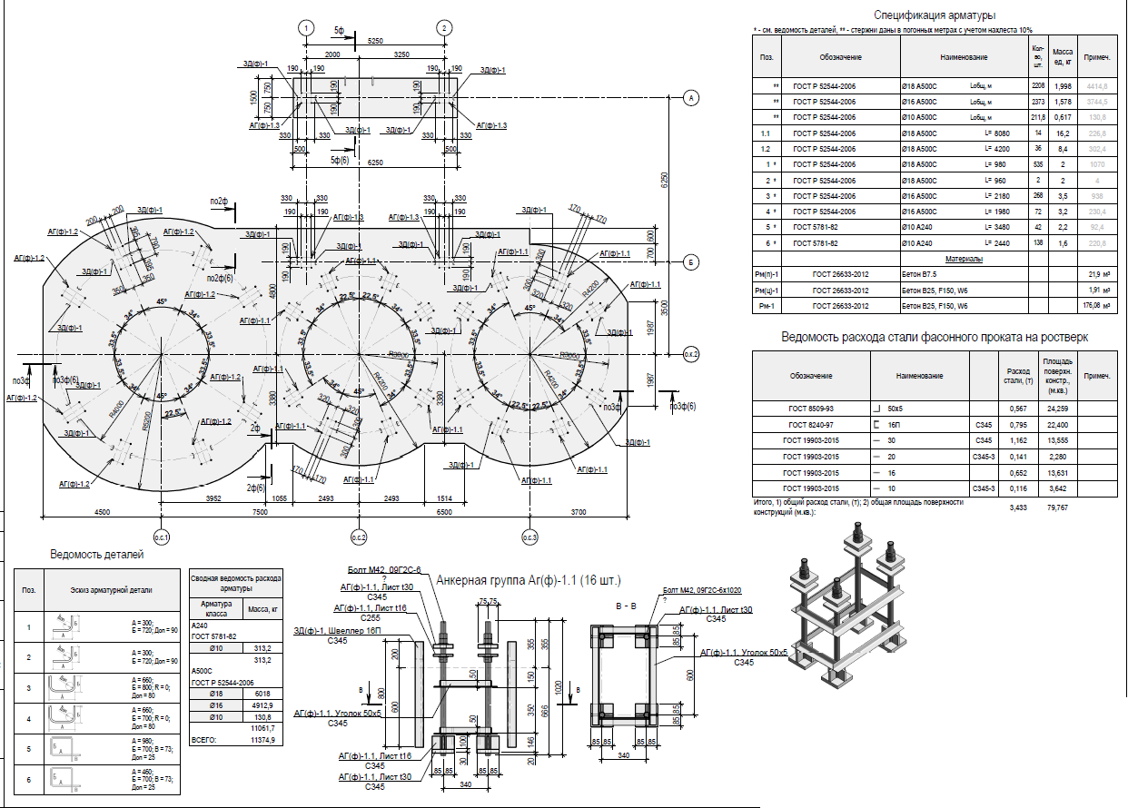
Пример
Администратор Topengineer.ru 8 (495) 215-07-79 (офис) ; 8 (925) 755-9318 (сот.); Skype wildomen ; http://vk.com/tekla_structures
Разработка КМД | Разработка КМ | Разработка КЖ | Обучение Tekla Structures | Купить Tekla Structures
Разработка КМД | Разработка КМ | Разработка КЖ | Обучение Tekla Structures | Купить Tekla Structures
- Таран Д. А.
- Администратор
- Сообщения: 2877
- Регистрация: 30 ноя 2011, 18:41
- Откуда: г. Москва
- Контактная информация:
Re: Проектирование архитектуры в Tekla Struktures
Заготовка для АР. Далее дело техники.
Администратор Topengineer.ru 8 (495) 215-07-79 (офис) ; 8 (925) 755-9318 (сот.); Skype wildomen ; http://vk.com/tekla_structures
Разработка КМД | Разработка КМ | Разработка КЖ | Обучение Tekla Structures | Купить Tekla Structures
Разработка КМД | Разработка КМ | Разработка КЖ | Обучение Tekla Structures | Купить Tekla Structures
Re: Проектирование архитектуры в Tekla Struktures
Площади чем считать-проставлять?
- Таран Д. А.
- Администратор
- Сообщения: 2877
- Регистрация: 30 ноя 2011, 18:41
- Откуда: г. Москва
- Контактная информация:
Re: Проектирование архитектуры в Tekla Struktures
Просто обрисуй нужные комнаты тонкой плитой. Дай ей отдельный префикс потом выведи переменную площадь тени отбрасываемая на плоскосьб ОХ и поставь метку в центр автоматом.Zezza писал(а):Площади чем считать-проставлять?
И автоматом все подпишет
Если в эту плиту будешь и номер комнаты давать то вообще гуд.
И стороны подписывать автоматом и площадь.
Администратор Topengineer.ru 8 (495) 215-07-79 (офис) ; 8 (925) 755-9318 (сот.); Skype wildomen ; http://vk.com/tekla_structures
Разработка КМД | Разработка КМ | Разработка КЖ | Обучение Tekla Structures | Купить Tekla Structures
Разработка КМД | Разработка КМ | Разработка КЖ | Обучение Tekla Structures | Купить Tekla Structures
- Таран Д. А.
- Администратор
- Сообщения: 2877
- Регистрация: 30 ноя 2011, 18:41
- Откуда: г. Москва
- Контактная информация:
Re: Проектирование архитектуры в Tekla Struktures
Еще примеры
Администратор Topengineer.ru 8 (495) 215-07-79 (офис) ; 8 (925) 755-9318 (сот.); Skype wildomen ; http://vk.com/tekla_structures
Разработка КМД | Разработка КМ | Разработка КЖ | Обучение Tekla Structures | Купить Tekla Structures
Разработка КМД | Разработка КМ | Разработка КЖ | Обучение Tekla Structures | Купить Tekla Structures
Re: Проектирование архитектуры в Tekla Struktures
Скажите пожалуйста, какими типами объектов моделируется АР в текле?
- Таран Д. А.
- Администратор
- Сообщения: 2877
- Регистрация: 30 ноя 2011, 18:41
- Откуда: г. Москва
- Контактная информация:
Re: Проектирование архитектуры в Tekla Struktures
Сталь моделируется сталью остальное бетоном. По сути материалы можно создать любые но для теклы типа материала именно 2 сталь и все остальное.
Администратор Topengineer.ru 8 (495) 215-07-79 (офис) ; 8 (925) 755-9318 (сот.); Skype wildomen ; http://vk.com/tekla_structures
Разработка КМД | Разработка КМ | Разработка КЖ | Обучение Tekla Structures | Купить Tekla Structures
Разработка КМД | Разработка КМ | Разработка КЖ | Обучение Tekla Structures | Купить Tekla Structures
-
- Сообщения: 7
- Регистрация: 29 мар 2018, 20:32
Re: Проектирование архитектуры в Tekla Struktures
Ребята! Пользователь M . тут правильно говорит. Архитектурное проектирование это очень индивидуальная работа, требующая знаний в области как отечественной, так и зарубежной архитектуры. Скорее всего на знания об архитектуре накладываются знания о строительных конструкциях (материале, соединениях, армировании), а не наоборот. Отсюда вытекают требования к программе, которая может выполнить подобные задачи. Я не знаю ни одного системного компонента Tekla, который можно было перенастроить под свои задачи. Вам придется расчленить компонент и начать создавать свой пользовательский компонент на основе системного. Это трата времени. Причем огромная, так как системный компонент многоуровневый и сложный. Целесообразно иметь базу, которая уже настраивается, как например в Revit. Вам не придется заново настраивать семейства соединения несущих конструкций, так как на его основе вы можете получить огромное количество других семейств соединений несущих конструкций. И вы не потратите лишнего времени. Также в Revit вы получите доступ одновременно как к модели, так и к чертежам, что нельзя в Tekla. Более того в Revit двухсторонняя связь между видом и моделью. В Tekla односторонняя связь между чертежом и моделью, то есть если меняешь модель, то изделие в чертеже изменится, но если изменишь изделие на чертеже, то модель не поменяется.
Re: Проектирование архитектуры в Tekla Struktures
Какой то странный опус "не о чем"... Давайте все в ревит
- pavelkutas
- Сообщения: 276
- Регистрация: 16 янв 2013, 14:11
- Откуда: Санкт-Петербург
- Контактная информация:
Re: Проектирование архитектуры в Tekla Struktures
Не хотел ничего писать, но если отмалчиваться, то это еще одно очко в пользу ревита. Так что простите за эмоции...
Я своими мыслями и доводами никого не хотел задеть или обидеть. Но просто тема ревита немного уже напрягает. Ребята, ревит - это архитектурный софт, в котором можно сделать ОВ и ВК, электрику в одной модели. И это действительно круто и удобно. Для этих задач он очень хорош и нет конкурентов. Текла - это конструкторский софт, который хорош для КМ, КМД, КЖ, КЖИ стадии П и Р. И данная тема на форуме про то, что текла при желании, умеет в архитектуру. Тут никто не хейтит ревит или архикад - нам это безразлично, мы просто юзаем теклу и топим за нее, находим все новые применения. Но меня всегда парит момент, когда люди, не разобравшись в текле, заходят на форум и начинается... "Я не разобрался, я не знаю ни одного норм компонента, а вот в ревите, а вот семейства...". Ну мы же не лезем на форум ревита и не пишем там, ребята, а вот есть текла... Я это к чему? Все это формирует общественное мнение. Форумы читают студенты, руководители компаний иногда мониторят. Зачем вы вводите людей в заблуждение? Ну если ревит такая топовая прога, почему никто в ней массово не делает стадию Р? Почему допиливают руками в автокаде? Почему сидят в текле, алплане? Почему тримбл не обанкротился? Ревит и так звучит из каждого утюга, но чето как-то рабочку вы не делаете... Ах да, на простые домики делаете. А вот уже что посложнее вы не делаете, потому что трудозатраты высокие. Стадионы, мосты, аэропорты, сложная геометрия, сложное армирование, нестандартные узлы - это все мимо.
Ребята, если кто-то чего-то не знает, не разобрался в вопросе, не пишите тогда, не вводите людей в заблуждение.
Я тоже поверхностно разобрался с ревитом, я не истина в последней инстанции, если я не прав, переубедите меня. Мое мнение - ревит для рабочки очень слабое решение. Особенно для человека, который пару лет проработал в текле.
А работа инженера конструктора это не индивидуальная работа? Нам не нужно подбирать оптимальные конструктивные решения, менять их по несколько раз, заниматься творческой работой, поиском ответа на вопрос, оптимизацией, разработкой сложных не типовых узлов. Нам не нужно учитывать реалии рынка, есть ли в конкретном регионе конкретный сортамент, материал, который мы заложим в наше решение или завод, который будет иметь необходимое технологическое обеспечение, оборудование, навыки. Мы не паримся, смогут ли строители это построить, ведь строители "сами разберутся". Мы не созваниваемся со строителями, не ведем авторский надзор, не вносим правки в проект, когда просто за один день нужно придумать конструкцию для строповки нестандартной фермы или сложную опалубку. Мы ничего этого не делаем, мы просто берем серию, разработанную 50 лет назад в советском союзе и ссылаемся на нее, профит. Архитектура - вот что действительно индивидуально.georgiy_1989 писал(а): ↑09 фев 2019, 01:19Архитектурное проектирование это очень индивидуальная работа, требующая знаний в области как отечественной, так и зарубежной архитектуры.
А я знаю штук 30, которыми регулярно пользуюсь. Да, целесообразно иметь базу, поэтому у каждого из нас есть пользовательские компоненты под рукой. Так что все относительно. И да, мне не приходится настраивать стандартные компоненты, потому что есть преднастройки, которые можно переносить из проекта в проект или добавить в папку фирмы. Все эти инструменты существуют уже больше 10 лет!georgiy_1989 писал(а): ↑09 фев 2019, 01:19Я не знаю ни одного системного компонента Tekla, который можно было перенастроить под свои задачи. Вам придется расчленить компонент и начать создавать свой пользовательский компонент на основе системного. Это трата времени. Причем огромная, так как системный компонент многоуровневый и сложный. Целесообразно иметь базу, которая уже настраивается, как например в Revit. Вам не придется заново настраивать семейства соединения несущих конструкций, так как на его основе вы можете получить огромное количество других семейств соединений несущих конструкций. И вы не потратите лишнего времени.
Да, потому что это идеология BIM. И идеология текла, которая заключается в том, что у нас сквозная нумерация на всю модель и невозможно сделать нескольких деталей с одним и тем же номером. Поэтому, при изменении детали, нужно проводить нумерацию. Это сделано для отслеживания изменений. Если мы выдали чертежи, а потом что-то меняется в модели, то мы сразу увидим какие чертежи изменились, вот для чего все это сделано. Для реальных рабочих задач на стадии Р. Какой мне смысл редактировать объекты модели на чертеже, если после нумерации они могут поменять свой номер или вообще стать не актуальными и чертеж удалится, потому что нет такой марки/детали больше? Это просто культура моделирования. По той же причине нельзя залезать в спецификацию и что-то там руками просто дописать, наложить, приложить и т.д. Вся инфа считывается из модели, на чертеже мы не редактируем, не шаманим, мы получаем все автоматически, ради этого же мы и работаем в софте... на компьютере... Чтобы не считать руками, не чертить руками. Да, КМ было бы в некоторых сценариях удобно чертить в чертежах сразу. Но это мелочь, это дело привычки, это не минус, не ограничение и не баг.georgiy_1989 писал(а): ↑09 фев 2019, 01:19Также в Revit вы получите доступ одновременно как к модели, так и к чертежам, что нельзя в Tekla. Более того в Revit двухсторонняя связь между видом и моделью. В Tekla односторонняя связь между чертежом и моделью, то есть если меняешь модель, то изделие в чертеже изменится, но если изменишь изделие на чертеже, то модель не поменяется.
Я своими мыслями и доводами никого не хотел задеть или обидеть. Но просто тема ревита немного уже напрягает. Ребята, ревит - это архитектурный софт, в котором можно сделать ОВ и ВК, электрику в одной модели. И это действительно круто и удобно. Для этих задач он очень хорош и нет конкурентов. Текла - это конструкторский софт, который хорош для КМ, КМД, КЖ, КЖИ стадии П и Р. И данная тема на форуме про то, что текла при желании, умеет в архитектуру. Тут никто не хейтит ревит или архикад - нам это безразлично, мы просто юзаем теклу и топим за нее, находим все новые применения. Но меня всегда парит момент, когда люди, не разобравшись в текле, заходят на форум и начинается... "Я не разобрался, я не знаю ни одного норм компонента, а вот в ревите, а вот семейства...". Ну мы же не лезем на форум ревита и не пишем там, ребята, а вот есть текла... Я это к чему? Все это формирует общественное мнение. Форумы читают студенты, руководители компаний иногда мониторят. Зачем вы вводите людей в заблуждение? Ну если ревит такая топовая прога, почему никто в ней массово не делает стадию Р? Почему допиливают руками в автокаде? Почему сидят в текле, алплане? Почему тримбл не обанкротился? Ревит и так звучит из каждого утюга, но чето как-то рабочку вы не делаете... Ах да, на простые домики делаете. А вот уже что посложнее вы не делаете, потому что трудозатраты высокие. Стадионы, мосты, аэропорты, сложная геометрия, сложное армирование, нестандартные узлы - это все мимо.
Ребята, если кто-то чего-то не знает, не разобрался в вопросе, не пишите тогда, не вводите людей в заблуждение.
Я тоже поверхностно разобрался с ревитом, я не истина в последней инстанции, если я не прав, переубедите меня. Мое мнение - ревит для рабочки очень слабое решение. Особенно для человека, который пару лет проработал в текле.
-
- Сообщения: 7
- Регистрация: 29 мар 2018, 20:32
Re: Проектирование архитектуры в Tekla Struktures
Не ожидал, что столько мне накатаете. Тут я говорил о системных компонентах. Это те компоненты, которые находятся справа в приложениях и компонентах Tekla Structures. Которые нельзя править при помощи языка C#, так как они под защитой разработчика. Очень хочется, чтобы эти компоненты(системы Tekla Structures, скажем пластина Gusset или др. ) можно было править прямо в коде. Чтобы была снята защита. Вы только сможете уже готовый результат системного компонента , который получен в модели расчленить на отдельные части: пластины, болты, уголки и пр. Собрать вы его не сможете. Необходимо, чтобы системный компонент со всеми закладочками и свитками и картинками можно было править, как если бы вы создавали пользовательский компонент(тут разработчик предоставляет право создания визуального интерфейса для правки какого-либо узла или детали). Системный компонент в отличии от пользовательского сложный и имеет на порядок больше вкладок и настроек, чем пользовательский. Так как системный компонент написан под программу Tekla Structures. А пользовательский компонент-это ход конем разработчика для ограничения проектировщиков конструкторов от чрезмерных разработок. Тем самым разработчики Trimble накладывают ограничения на системных инженеров, чтобы вести разработку Tekla Structures в нужном для себя направлении.pavelkutas писал(а): ↑13 фев 2019, 18:07Не хотел ничего писать, но если отмалчиваться, то это еще одно очко в пользу ревита. Так что простите за эмоции...
А работа инженера конструктора это не индивидуальная работа? Нам не нужно подбирать оптимальные конструктивные решения, менять их по несколько раз, заниматься творческой работой, поиском ответа на вопрос, оптимизацией, разработкой сложных не типовых узлов. Нам не нужно учитывать реалии рынка, есть ли в конкретном регионе конкретный сортамент, материал, который мы заложим в наше решение или завод, который будет иметь необходимое технологическое обеспечение, оборудование, навыки. Мы не паримся, смогут ли строители это построить, ведь строители "сами разберутся". Мы не созваниваемся со строителями, не ведем авторский надзор, не вносим правки в проект, когда просто за один день нужно придумать конструкцию для строповки нестандартной фермы или сложную опалубку. Мы ничего этого не делаем, мы просто берем серию, разработанную 50 лет назад в советском союзе и ссылаемся на нее, профит. Архитектура - вот что действительно индивидуально.georgiy_1989 писал(а): ↑09 фев 2019, 01:19Архитектурное проектирование это очень индивидуальная работа, требующая знаний в области как отечественной, так и зарубежной архитектуры.
А я знаю штук 30, которыми регулярно пользуюсь. Да, целесообразно иметь базу, поэтому у каждого из нас есть пользовательские компоненты под рукой. Так что все относительно. И да, мне не приходится настраивать стандартные компоненты, потому что есть преднастройки, которые можно переносить из проекта в проект или добавить в папку фирмы. Все эти инструменты существуют уже больше 10 лет!georgiy_1989 писал(а): ↑09 фев 2019, 01:19Я не знаю ни одного системного компонента Tekla, который можно было перенастроить под свои задачи. Вам придется расчленить компонент и начать создавать свой пользовательский компонент на основе системного. Это трата времени. Причем огромная, так как системный компонент многоуровневый и сложный. Целесообразно иметь базу, которая уже настраивается, как например в Revit. Вам не придется заново настраивать семейства соединения несущих конструкций, так как на его основе вы можете получить огромное количество других семейств соединений несущих конструкций. И вы не потратите лишнего времени.
Да, потому что это идеология BIM. И идеология текла, которая заключается в том, что у нас сквозная нумерация на всю модель и невозможно сделать нескольких деталей с одним и тем же номером. Поэтому, при изменении детали, нужно проводить нумерацию. Это сделано для отслеживания изменений. Если мы выдали чертежи, а потом что-то меняется в модели, то мы сразу увидим какие чертежи изменились, вот для чего все это сделано. Для реальных рабочих задач на стадии Р. Какой мне смысл редактировать объекты модели на чертеже, если после нумерации они могут поменять свой номер или вообще стать не актуальными и чертеж удалится, потому что нет такой марки/детали больше? Это просто культура моделирования. По той же причине нельзя залезать в спецификацию и что-то там руками просто дописать, наложить, приложить и т.д. Вся инфа считывается из модели, на чертеже мы не редактируем, не шаманим, мы получаем все автоматически, ради этого же мы и работаем в софте... на компьютере... Чтобы не считать руками, не чертить руками. Да, КМ было бы в некоторых сценариях удобно чертить в чертежах сразу. Но это мелочь, это дело привычки, это не минус, не ограничение и не баг.georgiy_1989 писал(а): ↑09 фев 2019, 01:19Также в Revit вы получите доступ одновременно как к модели, так и к чертежам, что нельзя в Tekla. Более того в Revit двухсторонняя связь между видом и моделью. В Tekla односторонняя связь между чертежом и моделью, то есть если меняешь модель, то изделие в чертеже изменится, но если изменишь изделие на чертеже, то модель не поменяется.
Я своими мыслями и доводами никого не хотел задеть или обидеть. Но просто тема ревита немного уже напрягает. Ребята, ревит - это архитектурный софт, в котором можно сделать ОВ и ВК, электрику в одной модели. И это действительно круто и удобно. Для этих задач он очень хорош и нет конкурентов. Текла - это конструкторский софт, который хорош для КМ, КМД, КЖ, КЖИ стадии П и Р. И данная тема на форуме про то, что текла при желании, умеет в архитектуру. Тут никто не хейтит ревит или архикад - нам это безразлично, мы просто юзаем теклу и топим за нее, находим все новые применения. Но меня всегда парит момент, когда люди, не разобравшись в текле, заходят на форум и начинается... "Я не разобрался, я не знаю ни одного норм компонента, а вот в ревите, а вот семейства...". Ну мы же не лезем на форум ревита и не пишем там, ребята, а вот есть текла... Я это к чему? Все это формирует общественное мнение. Форумы читают студенты, руководители компаний иногда мониторят. Зачем вы вводите людей в заблуждение? Ну если ревит такая топовая прога, почему никто в ней массово не делает стадию Р? Почему допиливают руками в автокаде? Почему сидят в текле, алплане? Почему тримбл не обанкротился? Ревит и так звучит из каждого утюга, но чето как-то рабочку вы не делаете... Ах да, на простые домики делаете. А вот уже что посложнее вы не делаете, потому что трудозатраты высокие. Стадионы, мосты, аэропорты, сложная геометрия, сложное армирование, нестандартные узлы - это все мимо.
Ребята, если кто-то чего-то не знает, не разобрался в вопросе, не пишите тогда, не вводите людей в заблуждение.
Я тоже поверхностно разобрался с ревитом, я не истина в последней инстанции, если я не прав, переубедите меня. Мое мнение - ревит для рабочки очень слабое решение. Особенно для человека, который пару лет проработал в текле.
В Revit таких ограничений не существует, так как Revit изначально предоставлял полный доступ к созданию семейств в категории соединения несущих конструкций. Другими словами. Это те же самые семейства, только категория изменена на другое название. И системе семейства этой категории (СНК) есть кое-какие правки в доступе к параметрам и пр. Но по факту Autodesk мучается с этими соединениями уже больше 4 лет. И в итоге есть кое-какие результаты в году 2020-м. Когда соединения сами могут быть распространены на все балки и колонны, связи и прочее. Остальное. В плане чертежей у Revit ничего не поменялось.
Но повинуясь разуму! Что это все нам дало? Сооружение или здание стало от это строится быстрее или "простой работяга" стал работать от этого с радостью или стал от этого творчески мыслить? Я понимаю, что тут меня читают молодые пользователи, которым нужно безтряпочное и ясное мнение, чтобы пойти на правильный путь развития архитектурно-строительной отрасли. А вот скажу я вам! Не знаю! Не знаю куда все идет! По факту и ревиту и текле надо "пинча под зад" дать, чтобы быстрей двигались. Потому что видишь в них. только одни недостатки. Это не то...., там не то..... Revit не хватает документооборота Tekla. А Teklе не хватает двухстороннего отслеживания изменений на платформе Revit (тут я не говорю о том, что Revit может что-то отслеживать). Мой вам совет ребятки! Изучайте две эти программки. Тяжело. Да. Знаю. Но ясно одно. Revit никогда не станет Tekla. А Tekla никогда не догонит Revit. За 5-6 лет ничего не поменялось и думаю, что и не поменяется и в ближайшие 5 лет. Вот вам свободное моделирование (результат-любая форма) в Revit-Вот вам быстрота в деталировке Tekla!
Re: Проектирование архитектуры в Tekla Struktures
Павел, я с тобой согласен полностью, но Ревит в руках опытного конструктора много чего может в плане КМ, КЖ . Сразу скажу - мопед не мой, я так в Ревите еще не могу. Обрати внимание как ревитчик выкрутился со швами на разрезе 16-16.pavelkutas писал(а): ↑13 фев 2019, 18:07Ребята, ревит - это архитектурный софт, в котором можно сделать ОВ и ВК, электрику в одной модели. И это действительно круто и удобно. Для этих задач он очень хорош и нет конкурентов. Текла - это конструкторский софт, который хорош для КМ, КМД, КЖ, КЖИ стадии П и Р. И данная тема на форуме про то, что текла при желании, умеет в архитектуру. Тут никто не хейтит ревит или архикад - нам это безразлично, мы просто юзаем теклу и топим за нее, находим все новые применения. Но меня всегда парит момент, когда люди, не разобравшись в текле, заходят на форум и начинается... "Я не разобрался, я не знаю ни одного норм компонента, а вот в ревите, а вот семейства...". Ну мы же не лезем на форум ревита и не пишем там, ребята, а вот есть текла... Я это к чему? Все это формирует общественное мнение. Форумы читают студенты, руководители компаний иногда мониторят. Зачем вы вводите людей в заблуждение? Ну если ревит такая топовая прога, почему никто в ней массово не делает стадию Р? Почему допиливают руками в автокаде? Почему сидят в текле, алплане? Почему тримбл не обанкротился? Ревит и так звучит из каждого утюга, но чето как-то рабочку вы не делаете... Ах да, на простые домики делаете. А вот уже что посложнее вы не делаете, потому что трудозатраты высокие. Стадионы, мосты, аэропорты, сложная геометрия, сложное армирование, нестандартные узлы - это все мимо.
Ребята, если кто-то чего-то не знает, не разобрался в вопросе, не пишите тогда, не вводите людей в заблуждение.
Я тоже поверхностно разобрался с ревитом, я не истина в последней инстанции, если я не прав, переубедите меня. Мое мнение - ревит для рабочки очень слабое решение. Особенно для человека, который пару лет проработал в текле.
- pavelkutas
- Сообщения: 276
- Регистрация: 16 янв 2013, 14:11
- Откуда: Санкт-Петербург
- Контактная информация:
Re: Проектирование архитектуры в Tekla Struktures
Хороший пример, спасибо. Про нормоконтроль можно поспорить, но я не сторонник жестких правил, я за скорость, потому что время=деньги. Я бы с ним зарубился, кто быстрее сделает)
Да проехали уже... Я когда свои мысли давно описал, у меня от чего-то пригорело, а сейчас уже отпустило. Ревит позволяет много чего делать и всегда с оговорками. Оговорка это время, потраченное на настройку программы, обучение, плагины и так далее. Для меня очень сложно представить рабочий процесс в компании, когда все держится на уникальных знаниях конкретных людей. Я отношусь к проектированию как бизнесу, как к услуге. Проектные компании оказывают УСЛУГИ. На мой взгляд неправильно, выстраивать бизнес-процессы на уникальных знаниях и людях, которых при необходимости сложно заменить. Я много провел курсов по текле и могу с уверенностью сказать, что любому человеку одного месяца достаточно, чтобы с нуля начать делать полноценный КМ в Текле. А Ревит в моих глазах это программа с высоким порогом вхождения. Это мое личное мнение, я никому ничего не навязываю.
Иногда смотрю разные видео по Ревиту на ютубе. Смотрю как ведомость арматуры делают картинками, смотрю как маркируют арматуру, ЖБ-элементы, элементы деревянного каркаса вручную... Придумывают разные костыли, чтобы делать это более оптимизировано. Эти люди не думают про автоматизацию, она им не нужна. Пользователи Теклы никогда не поймут пользователей Ревита. Видимо, у нас у всех разные задачи. Для меня автоматизация работы, это основа всего и когда ее нет, я не вижу смысла рассматривать такое решение.
phpbb3 styles
Кто сейчас на конференции
Сейчас этот форум просматривают: нет зарегистрированных пользователей и 1 гость