Вопросы и замечания по КМД
- Таран Д. А.
- Администратор
- Сообщения: 2877
- Регистрация: 30 ноя 2011, 18:41
- Откуда: г. Москва
- Контактная информация:
Re: Вопросы и замечания по КМД
У меня работает.
Администратор Topengineer.ru 8 (495) 215-07-79 (офис) ; 8 (925) 755-9318 (сот.); Skype wildomen ; http://vk.com/tekla_structures
Разработка КМД | Разработка КМ | Разработка КЖ | Обучение Tekla Structures | Купить Tekla Structures
Разработка КМД | Разработка КМ | Разработка КЖ | Обучение Tekla Structures | Купить Tekla Structures
Re: Вопросы и замечания по КМД
Форматка пропадает при вставке таблицы "Список чертежей" из Топинженера. Пропадает после перезагрузки чертежа. Если таблицу взорвать, то форматка появляется опять.
- Таран Д. А.
- Администратор
- Сообщения: 2877
- Регистрация: 30 ноя 2011, 18:41
- Откуда: г. Москва
- Контактная информация:
Re: Вопросы и замечания по КМД
Честно пытаюсь понять что написано и не получается. Братан, опиши более подробно вопрос.
Администратор Topengineer.ru 8 (495) 215-07-79 (офис) ; 8 (925) 755-9318 (сот.); Skype wildomen ; http://vk.com/tekla_structures
Разработка КМД | Разработка КМ | Разработка КЖ | Обучение Tekla Structures | Купить Tekla Structures
Разработка КМД | Разработка КМ | Разработка КЖ | Обучение Tekla Structures | Купить Tekla Structures
Re: Вопросы и замечания по КМД
1. Вставляю в чертеж таблицу "Список чертежей"; 2. Вставилась; 3. После переоткрытия чертежа - только таблица, форматки нет; Вот такая лажа...Таран Д. А. писал(а): ↑28 фев 2017, 17:14Честно пытаюсь понять что написано и не получается. Братан, опиши более подробно вопрос.
- Таран Д. А.
- Администратор
- Сообщения: 2877
- Регистрация: 30 ноя 2011, 18:41
- Откуда: г. Москва
- Контактная информация:
Re: Вопросы и замечания по КМД
Странненько. Может это в 2016 такое. В старой точно все работало. Завтра все проверю, будем лечить.
Администратор Topengineer.ru 8 (495) 215-07-79 (офис) ; 8 (925) 755-9318 (сот.); Skype wildomen ; http://vk.com/tekla_structures
Разработка КМД | Разработка КМ | Разработка КЖ | Обучение Tekla Structures | Купить Tekla Structures
Разработка КМД | Разработка КМ | Разработка КЖ | Обучение Tekla Structures | Купить Tekla Structures
Re: Вопросы и замечания по КМД
На сколько успел заметить, это касается только этой таблицы, другие вставляются без проблем. В 21-й версии все было ОК.Таран Д. А. писал(а): ↑01 мар 2017, 01:05Странненько. Может это в 2016 такое. В старой точно все работало. Завтра все проверю, будем лечить.
-
Sh.Alexandr
- Сообщения: 5
- Регистрация: 17 апр 2017, 14:08
Re: Вопросы и замечания по КМД
Добрый день! Вы с таким сталкивались, задвоенные позиции, это как-нибудь лечится?
Re: Вопросы и замечания по КМД
Возможно вы пользовались инструментом конвертации прокатных балок в сварные?Sh.Alexandr писал(а): ↑17 апр 2017, 14:34Добрый день! Вы с таким сталкивались, задвоенные позиции, это как-нибудь лечится?
Там была ошибка от которой могло такое произойти, мы её уже исправили в последних обновлениях.
-
Sh.Alexandr
- Сообщения: 5
- Регистрация: 17 апр 2017, 14:08
Re: Вопросы и замечания по КМД
не пользовался
-
Sh.Alexandr
- Сообщения: 5
- Регистрация: 17 апр 2017, 14:08
Re: Вопросы и замечания по КМД
вот эти фасонки 675, 676 созданы с помощью плагинов, хотя ребро 721 тоже из плагинов оно нормально отображается. Дет. 690 чертил инструментом "контурная пластина"
-
Sh.Alexandr
- Сообщения: 5
- Регистрация: 17 апр 2017, 14:08
Re: Вопросы и замечания по КМД
Добрый день.
Есть ли правила размещения заводских стыковых соединений мк, ограничения по их количеству на одной отправочной марке 
- Таран Д. А.
- Администратор
- Сообщения: 2877
- Регистрация: 30 ноя 2011, 18:41
- Откуда: г. Москва
- Контактная информация:
Re: Вопросы и замечания по КМД
Уточни вопрос. А лучше опиши проблему.Sh.Alexandr писал(а): ↑24 апр 2017, 09:01Добрый день.Есть ли правила размещения заводских стыковых соединений мк, ограничения по их количеству на одной отправочной марке
![]()
Администратор Topengineer.ru 8 (495) 215-07-79 (офис) ; 8 (925) 755-9318 (сот.); Skype wildomen ; http://vk.com/tekla_structures
Разработка КМД | Разработка КМ | Разработка КЖ | Обучение Tekla Structures | Купить Tekla Structures
Разработка КМД | Разработка КМ | Разработка КЖ | Обучение Tekla Structures | Купить Tekla Structures
-
Sh.Alexandr
- Сообщения: 5
- Регистрация: 17 апр 2017, 14:08
Re: Вопросы и замечания по КМД
Ну допустим, колонна 8 метров, есть два куска по 3м и один 2м, два заводских стыка на отправочной марке, допускается ли? есть ли ограничения по количеству стыков, правила их размещения относительно фасонок?
Re: Вопросы и замечания по КМД
делал пластину инструментом "балка"
- Вложения
-
75 Лист из Сборка M-13.pdf- (24.97 КБ) 986 скачиваний
-
khadeyev
- Сообщения: 41
- Регистрация: 22 июл 2013, 17:50
- Откуда: Россия, г.Новоуральск Свердловская область
Re: Вопросы и замечания по КМД
Здравствуйте.
Наткнулся на следующий момент. В основном чертежи сборки уходят к заказчику задолго до готовности всего комплекта и закупка металла осуществляется по выборкам металла на сборочном чертеже.
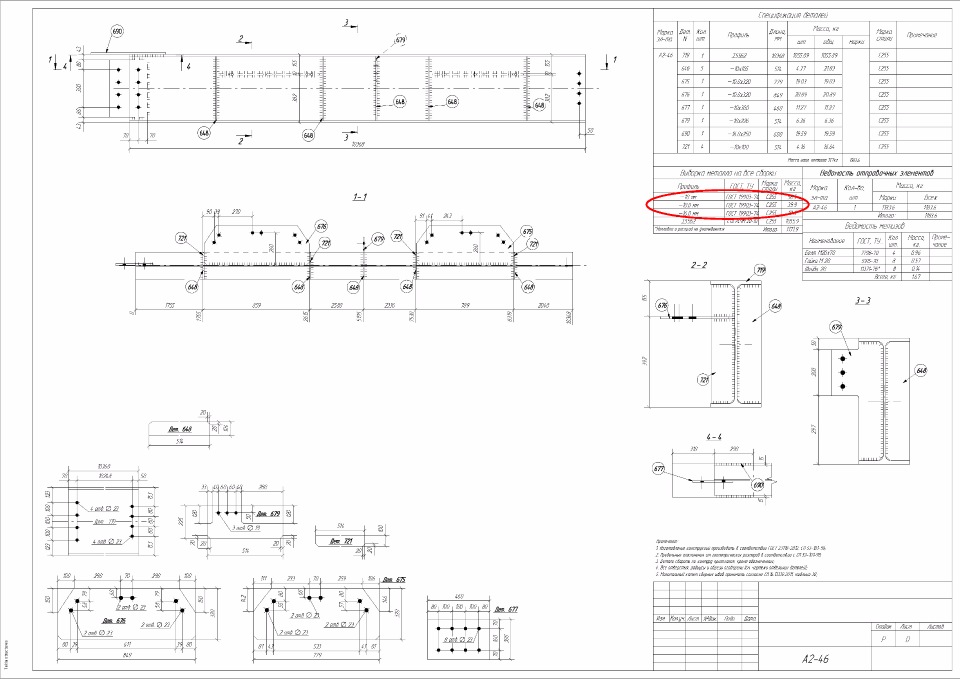
Проблема следующая: При фрезерованных или строганых пластинах профиль задан в модели как лист -27. фрезерован до листа -25.
В "Спецификации деталей" и "выборке" на сборочном чертеже попадает лист толщиной 25мм, вместо 27мм.
на деталировочном чертеже лист 27. В ТСС так же лист 27.
Соответственно выборка с сборочного чертежа попадает в снабжение и привозится лист 25.
Исправьте пожалуйста, или я ошибаюсь и на сборочном чертеже должны быть габариты готовой заготовки указываться, но в "Выборке металла" должен стоять лист который нужно использовать до обработки
Наткнулся на следующий момент. В основном чертежи сборки уходят к заказчику задолго до готовности всего комплекта и закупка металла осуществляется по выборкам металла на сборочном чертеже.
Проблема следующая: При фрезерованных или строганых пластинах профиль задан в модели как лист -27. фрезерован до листа -25.
В "Спецификации деталей" и "выборке" на сборочном чертеже попадает лист толщиной 25мм, вместо 27мм.
на деталировочном чертеже лист 27. В ТСС так же лист 27.
Соответственно выборка с сборочного чертежа попадает в снабжение и привозится лист 25.
Исправьте пожалуйста, или я ошибаюсь и на сборочном чертеже должны быть габариты готовой заготовки указываться, но в "Выборке металла" должен стоять лист который нужно использовать до обработки
Re: Вопросы и замечания по КМД
Ошибка в каталоге болтов.
Болт М16х50_7798-70 имеет диаметр 20мм.
Проверял в среде для версий 21.1 и 2016i.
Прошу исправить.
Болт М16х50_7798-70 имеет диаметр 20мм.
Проверял в среде для версий 21.1 и 2016i.
Прошу исправить.
Re: Вопросы и замечания по КМД
Попробую еще раз обратить внимание на проблему.
В последнем обновлении все осталось по прежнему.
В последнем обновлении все осталось по прежнему.
Ведомости не бьют. Подскажите почему
Левая из Велдаппа правая автоматическая со среды топик, компановка КМД/сборка+метизы
- Вложения
-
КДМ_Монтажка.pdf- (139.11 КБ) 798 скачиваний
Re: Вопросы и замечания по КМД
Присоединяюсь к вопросу.
phpbb3 styles
Кто сейчас на конференции
Сейчас этот форум просматривают: нет зарегистрированных пользователей и 1 гость

