Пример модели здания химической промышленности выполненной topengineer.ru
Пример модели здания химической промышленности выполненной topengineer.ru
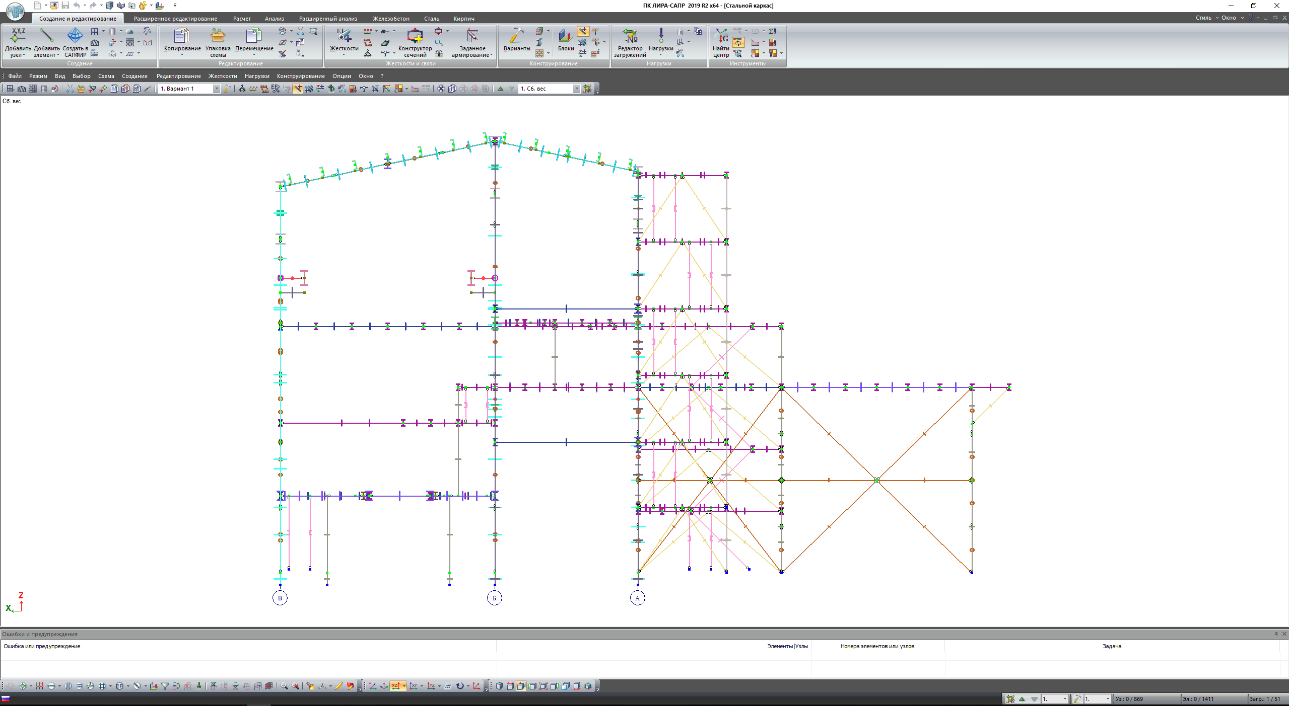
Схема представляет собой металлический каркас, общими габаритами основного каркаса 24*15м. Здание имеет с двух сторон пристройки. Совместная работа пристроек со зданием обеспечивается использованием общих колонн. При работе над объектом требовалось подобрать и проверить сечения на действие статических и динамических нагрузок. Динамические нагрузки от действия оборудования определялись ручным методом, пульсационное ветровое и сейсмические (ПЗ и МРЗ) воздействия моделировались модулями ПК ЛИРА-САПР. В дальнейшем проводилась проверка элементов МК на удовлетворение критериев 1 и 2 групп ПС.
phpbb3 styles
Кто сейчас на конференции
Сейчас этот форум просматривают: нет зарегистрированных пользователей и 5 гостей

