- моделирование в текле;
- создание чертежа, расстановка видов на чертеже, полная компоновка;
- экспорт в dwg, простановка размеров, спецификации, основная надпись и т.д., связи с эксель.
Довольно не технологично, согласен, но все равно значительный прирост в производительности из-за сложных нестандартных конструкций - не нужно ломать голову над видами и разрезами в проекционных связях. И все объемы уже есть.
Мой вопрос к более опытным спецам. Ниже я приведу пример, а вы подскажите мне пожалуйста, на сколько реально такой комплект чертежей формировать внутри теклы, без экспорта в двг.
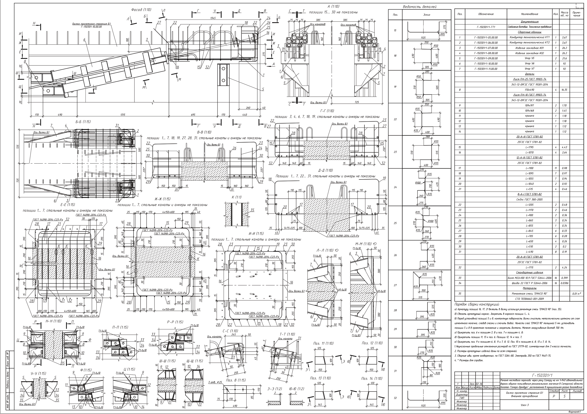
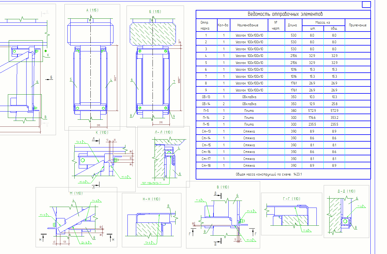
Вот есть балка. На эту балку два альбома чертежей рабочки, сама балка и внешнее армирование балки: Наш стандартный комплект чертежей, как и у всех, делится на основные и прилагаемые: Если с комплектом прилагаемых документов все понятно, по сути, это просто чертежи сборок и отлитых элементов, то вот с основным комплектом я не знаю как быть. Например вот такой чертеж узла: И вся сложность в том, что на таких чертежах в спецификации идет перечисление как сборочных единиц, так и отдельных деталей, чертежи которых приведены на этом же чертеже. На сколько реально сделать такой чертеж внутри теклы? Меня интересует не сколько нормоконтроль, сколько такие сложные спецификации.
Очень часто текла выручает, когда срочно нужно выдать решение строителям, делаю быстро чертежи не по нормоконтролю внутри теклы и отдаю, а потом уже доводим до ума: Можно, конечно дойти до абсурда и вставлять экселевские таблицы в теклу, но это бессмыслица будет: Так много объектов уже смоделировано в текле, но ни одного чертежа через теклу не выпущено. И это так тупо

