Масса детали в Tekla Structures
-
Sergiy_ste
- Сообщения: 17
- Регистрация: 11 апр 2013, 13:07
Масса детали в Tekla Structures
Подскажите, пожалуйста, как в текле менять способ вычисления массы детали (масса с учетом отверстий, вырезов и т.п., и без). ?
Re: Масса детали
для различной массы используются разные свойства деталей, например: WEIGHT (вес), WEIGHT_GROSS (вес брутто), WEIGHT_NET (вес нетто)
«Есть только две бесконечные вещи: Вселенная и глупость. Хотя насчет Вселенной я не вполне уверен.» А. Эйнштейн
-
Sergiy_ste
- Сообщения: 17
- Регистрация: 11 апр 2013, 13:07
Re: Масса детали
А как именно менять свойства вес нетто, вес брутто для детали?
Re: Масса детали
что вам конкретно нужно сделать?
«Есть только две бесконечные вещи: Вселенная и глупость. Хотя насчет Вселенной я не вполне уверен.» А. Эйнштейн
-
Sergiy_ste
- Сообщения: 17
- Регистрация: 11 апр 2013, 13:07
Re: Масса детали
Есть деталь со скосом, Текла дает ее вес с учетом этого скоса. Как сделать, чтобы получить вес детали без учета скоса (вес заготовки)?
Re: Масса детали в Tekla Structures
Подскажите, пожалуйста, почему у профиля из трубы веса WEIGHT, WEIGHT_GROSS, после подрезки под углом по линии, остаются одинаковыми?
- Таран Д. А.
- Администратор
- Сообщения: 2877
- Регистрация: 30 ноя 2011, 18:41
- Откуда: г. Москва
- Контактная информация:
Re: Масса детали в Tekla Structures
А почему оно должно срезаться? И на сколько? И где будет габаритный размер?hgf писал(а):Подскажите, пожалуйста, почему у профиля из трубы веса WEIGHT, WEIGHT_GROSS, после подрезки под углом по линии, остаются одинаковыми?
Лучше опиши что именно хочешь получить и мы подумаем как это сделать так наверное будет проще:)
Администратор Topengineer.ru 8 (495) 215-07-79 (офис) ; 8 (925) 755-9318 (сот.); Skype wildomen ; http://vk.com/tekla_structures
Разработка КМД | Разработка КМ | Разработка КЖ | Обучение Tekla Structures | Купить Tekla Structures
Разработка КМД | Разработка КМ | Разработка КЖ | Обучение Tekla Structures | Купить Tekla Structures
Re: Масса детали в Tekla Structures
На примере раскосов фермы.
Требуется знать точный вес конструкций не для спецификации.
Требуется знать точный вес конструкций не для спецификации.
- Таран Д. А.
- Администратор
- Сообщения: 2877
- Регистрация: 30 ноя 2011, 18:41
- Откуда: г. Москва
- Контактная информация:
Re: Масса детали в Tekla Structures
Ну вы распечатайте чертежи с одним весом в потом создайте отчет только перед этим переключите настройки бртто и нетто в свойствах проекта.hgf писал(а):На примере раскосов фермы.
Требуется знать точный вес конструкций не для спецификации.
Администратор Topengineer.ru 8 (495) 215-07-79 (офис) ; 8 (925) 755-9318 (сот.); Skype wildomen ; http://vk.com/tekla_structures
Разработка КМД | Разработка КМ | Разработка КЖ | Обучение Tekla Structures | Купить Tekla Structures
Разработка КМД | Разработка КМ | Разработка КЖ | Обучение Tekla Structures | Купить Tekla Structures
Re: Масса детали в Tekla Structures
Переключатель не поможет если вес брутто, нетто одинаковые.
Переключатель я так понял только в среде Topengineer?
Переключатель я так понял только в среде Topengineer?
- Вложения
-
вес.pdf- (210.6 КБ) 5635 скачиваний
Re: Масса детали в Tekla Structures
возможно у вас разница между нетто и брутто пропадает при округлении..hgf писал(а):Переключатель не поможет если вес брутто, нетто одинаковые.
Переключатель я так понял только в среде Topengineer?
«Есть только две бесконечные вещи: Вселенная и глупость. Хотя насчет Вселенной я не вполне уверен.» А. Эйнштейн
Re: Масса детали в Tekla Structures
Подскажите где нужно изменить, чтобы в отчете "запросить деталь" увеличить округление после запятой?
- vladimir_a
- Сообщения: 699
- Регистрация: 07 дек 2011, 21:22
Re: Масса детали в Tekla Structures
в справке поиск "запросить". потом находишь эти шаблоны и правишь ихhgf писал(а):Подскажите где нужно изменить, чтобы в отчете "запросить деталь" увеличить округление после запятой?
Re: Масса детали в Tekla Structures
Спасибо всем разобрался!
Re: Масса детали в Tekla Structures
Всем привет! Работаю в 18 версии , обнаружил следующее . в отчетах вес профиля без вырезов, отверстий, болтов и т.д вес нетто и брутто разный (нетто меньше примерно на 5%) , странно но происходит это только с двутаврами (HEA,HEB,IPE работа за границу), с чем это связано.БЛАГОДАРЮ
- Таран Д. А.
- Администратор
- Сообщения: 2877
- Регистрация: 30 ноя 2011, 18:41
- Откуда: г. Москва
- Контактная информация:
Re: Масса детали в Tekla Structures
У тебя стандартная среда стоит. Там вообще косяков много. С массами там не так все просто. В стандартной среде вообще нет ни слова ни о наплавке ни о раскрое. Как предполагается на ней работать я не понимаю.ZOV писал(а):Всем привет! Работаю в 18 версии , обнаружил следующее . в отчетах вес профиля без вырезов, отверстий, болтов и т.д вес нетто и брутто разный (нетто меньше примерно на 5%) , странно но происходит это только с двутаврами (HEA,HEB,IPE работа за границу), с чем это связано.БЛАГОДАРЮ
Администратор Topengineer.ru 8 (495) 215-07-79 (офис) ; 8 (925) 755-9318 (сот.); Skype wildomen ; http://vk.com/tekla_structures
Разработка КМД | Разработка КМ | Разработка КЖ | Обучение Tekla Structures | Купить Tekla Structures
Разработка КМД | Разработка КМ | Разработка КЖ | Обучение Tekla Structures | Купить Tekla Structures
- Danila_ZLT
- Сообщения: 603
- Регистрация: 02 окт 2012, 12:14
- Откуда: Златоуст
- Контактная информация:
Re: Масса детали в Tekla Structures
А это тогда что???Таран Д. А. писал(а):У тебя стандартная среда стоит. Там вообще косяков много. С массами там не так все просто. В стандартной среде вообще нет ни слова ни о наплавке ни о раскрое. Как предполагается на ней работать я не понимаю.ZOV писал(а):Всем привет! Работаю в 18 версии , обнаружил следующее . в отчетах вес профиля без вырезов, отверстий, болтов и т.д вес нетто и брутто разный (нетто меньше примерно на 5%) , странно но происходит это только с двутаврами (HEA,HEB,IPE работа за границу), с чем это связано.БЛАГОДАРЮ
Автоматизируем хаос... Недорого...
- Таран Д. А.
- Администратор
- Сообщения: 2877
- Регистрация: 30 ноя 2011, 18:41
- Откуда: г. Москва
- Контактная информация:
Re: Масса детали в Tekla Structures
И как оно влияет на расчет масс в спецификациях и отчетах?Danila_ZLT писал(а):А это тогда что???Таран Д. А. писал(а):У тебя стандартная среда стоит. Там вообще косяков много. С массами там не так все просто. В стандартной среде вообще нет ни слова ни о наплавке ни о раскрое. Как предполагается на ней работать я не понимаю.ZOV писал(а):Всем привет! Работаю в 18 версии , обнаружил следующее . в отчетах вес профиля без вырезов, отверстий, болтов и т.д вес нетто и брутто разный (нетто меньше примерно на 5%) , странно но происходит это только с двутаврами (HEA,HEB,IPE работа за границу), с чем это связано.БЛАГОДАРЮ
Тут просто определяются переменные. самое интересное далее. Они должны учитываться всеми отчетами.
Администратор Topengineer.ru 8 (495) 215-07-79 (офис) ; 8 (925) 755-9318 (сот.); Skype wildomen ; http://vk.com/tekla_structures
Разработка КМД | Разработка КМ | Разработка КЖ | Обучение Tekla Structures | Купить Tekla Structures
Разработка КМД | Разработка КМ | Разработка КЖ | Обучение Tekla Structures | Купить Tekla Structures
- Danila_ZLT
- Сообщения: 603
- Регистрация: 02 окт 2012, 12:14
- Откуда: Златоуст
- Контактная информация:
Re: Масса детали в Tekla Structures
ОооТаран Д. А. писал(а): И как оно влияет на расчет масс в спецификациях и отчетах?
Тут просто определяются переменные. самое интересное далее. Они должны учитываться всеми отчетами.
Код: Выделить всё
if GetValue("PROJECT.USERDEFINED.naplavka") != 0 then GetValue("PROJECT.USERDEFINED.naplavka") else 1 endifКод: Выделить всё
round(Sum("общ_вес")*(GetFieldFormula("var6")/100),0.1)Код: Выделить всё
if (Count("var3")!=0 && GetFieldFormula("var8") ==0) then
"Масса напл. металла: " + GetFieldFormula("var6")+"%"+" = "+GetFieldFormula("var7")+" кг"
else
""
endifАвтоматизируем хаос... Недорого...
- Таран Д. А.
- Администратор
- Сообщения: 2877
- Регистрация: 30 ноя 2011, 18:41
- Откуда: г. Москва
- Контактная информация:
Re: Масса детали в Tekla Structures
Наплавке считается и для прогонов ???Danila_ZLT писал(а):ОооТаран Д. А. писал(а): И как оно влияет на расчет масс в спецификациях и отчетах?
Тут просто определяются переменные. самое интересное далее. Они должны учитываться всеми отчетами.... только сейчас заметил, это в 20й среде появилось. Переменные в отчетах и спецификациях вроде учитываются.
Код: Выделить всё
if GetValue("PROJECT.USERDEFINED.naplavka") != 0 then GetValue("PROJECT.USERDEFINED.naplavka") else 1 endifКод: Выделить всё
round(Sum("общ_вес")*(GetFieldFormula("var6")/100),0.1)До совершенства конечно еще далеко, но...Код: Выделить всё
if (Count("var3")!=0 && GetFieldFormula("var8") ==0) then "Масса напл. металла: " + GetFieldFormula("var6")+"%"+" = "+GetFieldFormula("var7")+" кг" else "" endif
Там только 1 деталь как на нее наплавку то давать?
У нас еще учитывается масса деталей до фрезеровки и строгания.
Тут никак. Да и в стандартной среде нет шпилек анкеров спморезов и прочего.
Администратор Topengineer.ru 8 (495) 215-07-79 (офис) ; 8 (925) 755-9318 (сот.); Skype wildomen ; http://vk.com/tekla_structures
Разработка КМД | Разработка КМ | Разработка КЖ | Обучение Tekla Structures | Купить Tekla Structures
Разработка КМД | Разработка КМ | Разработка КЖ | Обучение Tekla Structures | Купить Tekla Structures
-
mbetin2005
- Сообщения: 52
- Регистрация: 24 дек 2013, 20:33
Re: Масса детали в Tekla Structures
Нарисовал площадку и решил посмотреть сколько весит.
Вес нетто в 2 с лишним раза больше чем вес брутто. Как такое может быть? Нетто врёт.
Re: Масса детали в Tekla Structures
Добрый день.
Хочу вернуться к теме.
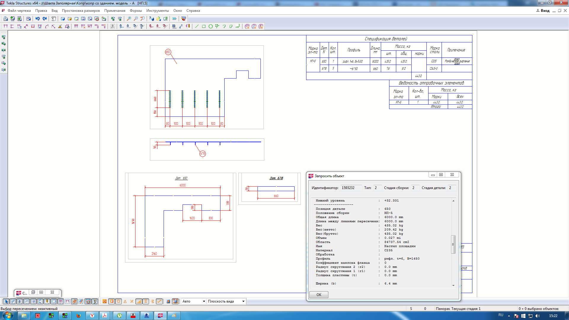
В модели создан настил сложной формы из рифленого листа. Настил создан с помощью инструмента "Балка", вырезы создавались вырезанием многоугольником. В спецификациях на сборке масса детали считается БРУТТО, т.е. без вырезов, хотя в свойствах проекта указанно NETTO.
Подскажите как решить проблему, реальный вес детали в 2 раза меньше, чем в спецификации.
Хочу вернуться к теме.
В модели создан настил сложной формы из рифленого листа. Настил создан с помощью инструмента "Балка", вырезы создавались вырезанием многоугольником. В спецификациях на сборке масса детали считается БРУТТО, т.е. без вырезов, хотя в свойствах проекта указанно NETTO.
Подскажите как решить проблему, реальный вес детали в 2 раза меньше, чем в спецификации.
Re: Масса детали в Tekla Structures
Проверю и исправлю в ближайшие дни.
Re: Масса детали в Tekla Structures
Подскажите. У меня версия 2017. В спецификациях, выборка металла и отправочных элементов, значения масс очень отличаются. Я заметил что европейские профили в русской версии ведут себя неадекватно... Как с этим бороться?
- pavelkutas
- Сообщения: 276
- Регистрация: 16 янв 2013, 14:11
- Откуда: Санкт-Петербург
- Контактная информация:
Re: Масса детали в Tekla Structures
Выложите модель посмотреть. Без модели можно сказать только общие слова. Проверяйте шаблоны, формулы. Сделайте пользовательский запрос массы по каждому профилю и сравните с тем, что выдает спецификация на чертеже.
Re: Масса детали в Tekla Structures
этот шаблон выборки только для чертежей сборок. для общего вида его нужно немного изменить
Re: Масса детали в Tekla Structures
Добрый день, вопрос актуален, есть ли решение?bert30 писал(а): ↑03 фев 2016, 15:24Добрый день.
Хочу вернуться к теме.
В модели создан настил сложной формы из рифленого листа. Настил создан с помощью инструмента "Балка", вырезы создавались вырезанием многоугольником. В спецификациях на сборке масса детали считается БРУТТО, т.е. без вырезов, хотя в свойствах проекта указанно NETTO.
Подскажите как решить проблему, реальный вес детали в 2 раза меньше, чем в спецификации.
phpbb3 styles
Кто сейчас на конференции
Сейчас этот форум просматривают: нет зарегистрированных пользователей и 7 гостей

