Чертежи железобетонных конструкций в Tekla Structures
Чертежи железобетонных конструкций в Tekla Structures
Уважаемые форумчане!
Есть такая проблема: в чертежах железобетонных конструкций иногда не хотят ставиться позиционные выноски отдельных арматурных стержней (не всех, какие-то ставятся, какие-то нет). Может быть такое, что позиции деталей одинаковы, но для части из них позиции отображаются, для части - нет. Если кто-то знает в чём может быть дело, прошу помочь советом!
И есть ещё один вопрос не по теме создания чертежей.
Как сделать так, чтобы переназначенные горячие сочетания клавиш (Tools->Customize) запомнились на всё "время жизни программы на компе", а не только на один сеанс. Некоторые из них запоминаются, а некоторые нет - приходится при каждой новой загрузке Tekla заново переназначать. По идее эта информация должна храниться в каком-то файле (как в AutoCad"овском acad.pgp), только вот я не знаю в каком. HELP!!!
Есть такая проблема: в чертежах железобетонных конструкций иногда не хотят ставиться позиционные выноски отдельных арматурных стержней (не всех, какие-то ставятся, какие-то нет). Может быть такое, что позиции деталей одинаковы, но для части из них позиции отображаются, для части - нет. Если кто-то знает в чём может быть дело, прошу помочь советом!
И есть ещё один вопрос не по теме создания чертежей.
Как сделать так, чтобы переназначенные горячие сочетания клавиш (Tools->Customize) запомнились на всё "время жизни программы на компе", а не только на один сеанс. Некоторые из них запоминаются, а некоторые нет - приходится при каждой новой загрузке Tekla заново переназначать. По идее эта информация должна храниться в каком-то файле (как в AutoCad"овском acad.pgp), только вот я не знаю в каком. HELP!!!
- Таран Д. А.
- Администратор
- Сообщения: 2877
- Регистрация: 30 ноя 2011, 18:41
- Откуда: г. Москва
- Контактная информация:
Re: Чертежи железобетонных конструкций в Tekla Structures
Скинь скрин посмотрим.enzo писал(а):Уважаемые форумчане!
Есть такая проблема: в чертежах железобетонных конструкций иногда не хотят ставиться позиционные выноски отдельных арматурных стержней (не всех, какие-то ставятся, какие-то нет). Может быть такое, что позиции деталей одинаковы, но для части из них позиции отображаются, для части - нет. Если кто-то знает в чём может быть дело, прошу помочь советом!
И есть ещё один вопрос не по теме создания чертежей.
Как сделать так, чтобы переназначенные горячие сочетания клавиш (Tools->Customize) запомнились на всё "время жизни программы на компе", а не только на один сеанс. Некоторые из них запоминаются, а некоторые нет - приходится при каждой новой загрузке Tekla заново переназначать. По идее эта информация должна храниться в каком-то файле (как в AutoCad"овском acad.pgp), только вот я не знаю в каком. HELP!!!
Администратор Topengineer.ru 8 (495) 215-07-79 (офис) ; 8 (925) 755-9318 (сот.); Skype wildomen ; http://vk.com/tekla_structures
Разработка КМД | Разработка КМ | Разработка КЖ | Обучение Tekla Structures | Купить Tekla Structures
Разработка КМД | Разработка КМ | Разработка КЖ | Обучение Tekla Structures | Купить Tekla Structures
Re: Чертежи железобетонных конструкций в Tekla Structures
Бывает такое, что вместо меток арматурных деталей появляются какие-то точки (похожие на "ручки" меток деталей). Если эти точки появились в результате [выделения нескольких стержней -> добавить метку], то [кликнув правой кнопкой на одной из них -> объединить] метки (в виде этих точек) объединяются и появляются на экране уже нормальными выносками, точнее одной, объединённой выноской. (Как назло сейчас нигде не могу найти и зафиксировать эту ситуацию скриншотом).
- Таран Д. А.
- Администратор
- Сообщения: 2877
- Регистрация: 30 ноя 2011, 18:41
- Откуда: г. Москва
- Контактная информация:
Re: Чертежи железобетонных конструкций в Tekla Structures
В настройках выносок переключи распределенный на всегда.
Администратор Topengineer.ru 8 (495) 215-07-79 (офис) ; 8 (925) 755-9318 (сот.); Skype wildomen ; http://vk.com/tekla_structures
Разработка КМД | Разработка КМ | Разработка КЖ | Обучение Tekla Structures | Купить Tekla Structures
Разработка КМД | Разработка КМ | Разработка КЖ | Обучение Tekla Structures | Купить Tekla Structures
Re: Чертежи железобетонных конструкций в Tekla Structures
Эта настройка и так установлена в положение "Всегда", причём в настройках с разным приоритетом (как в настройках отдельного вида, так и в общих настройках чертежа). Тут, мне кажется, дело не в этом.
Всё равно огромное спасибо за отзывчивость. Кстати, а как то можно решить вопрос с горячими комбинациями клавиш который я описывал выше?
Всё равно огромное спасибо за отзывчивость. Кстати, а как то можно решить вопрос с горячими комбинациями клавиш который я описывал выше?
Re: Чертежи железобетонных конструкций в Tekla Structures
Уважаемые коллеги! Делает ли кто нибудь КЖИ в Tekla Structures? Если да, то хотелось бы увидеть чертежи (без доработки в Autocad). Заранее спасибо.
- Таран Д. А.
- Администратор
- Сообщения: 2877
- Регистрация: 30 ноя 2011, 18:41
- Откуда: г. Москва
- Контактная информация:
Re: Чертежи железобетонных конструкций в Tekla Structures
Постараюсь выложить. Как только бужт свободное время.. С ним как раз проблемы.RHSY писал(а):Уважаемые коллеги! Делает ли кто нибудь КЖИ в Tekla Structures? Если да, то хотелось бы увидеть чертежи (без доработки в Autocad). Заранее спасибо.
Администратор Topengineer.ru 8 (495) 215-07-79 (офис) ; 8 (925) 755-9318 (сот.); Skype wildomen ; http://vk.com/tekla_structures
Разработка КМД | Разработка КМ | Разработка КЖ | Обучение Tekla Structures | Купить Tekla Structures
Разработка КМД | Разработка КМ | Разработка КЖ | Обучение Tekla Structures | Купить Tekla Structures
Re: Чертежи железобетонных конструкций в Tekla Structures
Дмитрий, спасибо за ответ. Ждем чертежи. А на словах могли бы пояснить идею создания четрежей типа КЖИ? Очень нужно...
- Таран Д. А.
- Администратор
- Сообщения: 2877
- Регистрация: 30 ноя 2011, 18:41
- Откуда: г. Москва
- Контактная информация:
Re: Чертежи железобетонных конструкций в Tekla Structures
Администратор Topengineer.ru 8 (495) 215-07-79 (офис) ; 8 (925) 755-9318 (сот.); Skype wildomen ; http://vk.com/tekla_structures
Разработка КМД | Разработка КМ | Разработка КЖ | Обучение Tekla Structures | Купить Tekla Structures
Разработка КМД | Разработка КМ | Разработка КЖ | Обучение Tekla Structures | Купить Tekla Structures
Re: Чертежи железобетонных конструкций в Tekla Structures
Неплохой пример использования TS для жб конструкций. А можно еще примеры по монолитному жб? Делаете ли вы КЖИ для закладных, в особенности если в них задействованы арматурные стержни и пластины, арматурные каркасы?
Re: Чертежи железобетонных конструкций в Tekla Structures
Еще один момент... Есть ли вариант выполнения "Ведомости расхода стали" по ГОСТу? Спасибо.
- Таран Д. А.
- Администратор
- Сообщения: 2877
- Регистрация: 30 ноя 2011, 18:41
- Откуда: г. Москва
- Контактная информация:
Re: Чертежи железобетонных конструкций в Tekla Structures
В смысле не в столбик? Это не такая простая задача для теклы. Постараюсь сделать но не факт. Вообще это не приоритетная задача пока есть проблему куда более серьезные.RHSY писал(а):Еще один момент... Есть ли вариант выполнения "Ведомости расхода стали" по ГОСТу? Спасибо.
Администратор Topengineer.ru 8 (495) 215-07-79 (офис) ; 8 (925) 755-9318 (сот.); Skype wildomen ; http://vk.com/tekla_structures
Разработка КМД | Разработка КМ | Разработка КЖ | Обучение Tekla Structures | Купить Tekla Structures
Разработка КМД | Разработка КМ | Разработка КЖ | Обучение Tekla Structures | Купить Tekla Structures
Re: Чертежи железобетонных конструкций в Tekla Structures
Всем привет.
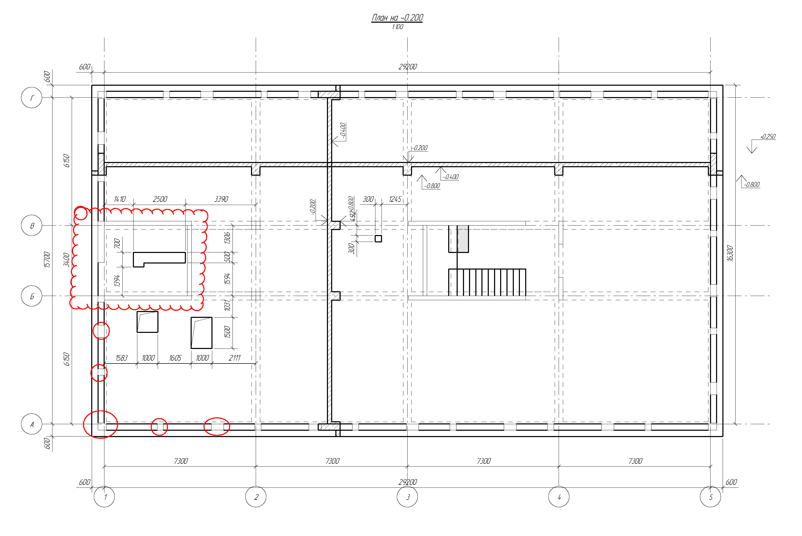
Кто-нибудь может подсказать, как сделать так, чтобы колонны и стены на опалубке плиты не перекрывали линии плиты.
Линии плиты толстые, а колонны и стены я принудительно делаю тоньше в свойствах элемента, но получается так, что линии элементов, расположенных выше полностью перекрывают нижние элементы. На картинке я обвел некоторые колонны, очень не кравсиво выглядит такой чертеж =(
Кто-нибудь может подсказать, как сделать так, чтобы колонны и стены на опалубке плиты не перекрывали линии плиты.
Линии плиты толстые, а колонны и стены я принудительно делаю тоньше в свойствах элемента, но получается так, что линии элементов, расположенных выше полностью перекрывают нижние элементы. На картинке я обвел некоторые колонны, очень не кравсиво выглядит такой чертеж =(
Re: Чертежи железобетонных конструкций в Tekla Structures
А почему не сделать в одну толщину эти линии?
Re: Чертежи железобетонных конструкций в Tekla Structures
Необходимо для опалубки плиты толстыми показывать саму плиту и тонкими то, что не относится к плите (стены, колонны)RHSY писал(а):А почему не сделать в одну толщину эти линии?
На плане вертикальных элементов наоборот колонны и стены толстые, а плита тонкими.
Re: Чертежи железобетонных конструкций в Tekla Structures
Вопрос: как сделать чертеж нестандартной аматурной сетки? Нужно получить чертеж КЖИ.
Сетка сделана через детализацию/армирование/арматурная сетка.
Сетка сделана через детализацию/армирование/арматурная сетка.
Re: Чертежи железобетонных конструкций в Tekla Structures
Всем привет!
Мучаюсь с поддерживающим каркасом для армирования плиты.
Создаю арматурную сетку перпендикулярно плите (Рис.1), сетка появляется в спецификации на листе (Рис.2)
Можно ли сделать к нему отдельную спецификацию? (Рис.3)
В идеале, конечно, добиться резлультата, как на Рис.4.
Пока удалось сделать чертеж сетки через макрос (Рис.5), в принципе сносно, за исключением выносок(((( как их настроить, не знаю.
Теперь надо как-то внести данные из сетки в спецификацию, есть идеи как использовать параметры сетки (Рис.6)?
Или использование арматурной сетки-тупиковый вариант решения вопросов каркасов?
Какие соображения на этот счет?
Мучаюсь с поддерживающим каркасом для армирования плиты.
Создаю арматурную сетку перпендикулярно плите (Рис.1), сетка появляется в спецификации на листе (Рис.2)
Можно ли сделать к нему отдельную спецификацию? (Рис.3)
В идеале, конечно, добиться резлультата, как на Рис.4.
Пока удалось сделать чертеж сетки через макрос (Рис.5), в принципе сносно, за исключением выносок(((( как их настроить, не знаю.
Теперь надо как-то внести данные из сетки в спецификацию, есть идеи как использовать параметры сетки (Рис.6)?
Или использование арматурной сетки-тупиковый вариант решения вопросов каркасов?
Какие соображения на этот счет?
Re: Чертежи железобетонных конструкций в Tekla Structures
еше одна ветка форума про КЖИ и тоже без ответа.
прошу тех кто делал КЖИ - покажите готовый лист.
прошу тех кто делал КЖИ - покажите готовый лист.
Re: Чертежи железобетонных конструкций в Tekla Structures
Здравствуйте! есть чертеж арматурной сетки... вопрос! как внести арматуру сетки в вдомость расхода стали?
Re: Чертежи железобетонных конструкций в Tekla Structures
В WeldApp есть ведомость расхода стали, которая считает и вес сеток.
Re: Чертежи железобетонных конструкций в Tekla Structures
я понял! а так, в самой Текле, нельзя?
Re: Чертежи железобетонных конструкций в Tekla Structures
Почему нельзя? Думаю можно, найти подходящие переменные, и вычислить массу продольных и поперечных стержней сетки.
-
Константин
- Сообщения: 148
- Регистрация: 14 авг 2012, 09:59
- Откуда: Луганск, Ессентуки
- Контактная информация:
Re: Чертежи железобетонных конструкций в Tekla Structures
Доброго времени суток. Как можно разделить в спецификации монолитные и сборные детали и чтобы они в разных разделах писались?
И еще вопрос: какая переменная регулирует скрытие линий если два элемента полностью прилегают друг к другу? На чертеже справа и слева столбы а между ними лежат блоки. как сделать чтобы линии не прятались?
И еще вопрос: какая переменная регулирует скрытие линий если два элемента полностью прилегают друг к другу? На чертеже справа и слева столбы а между ними лежат блоки. как сделать чтобы линии не прятались?
-
Константин
- Сообщения: 148
- Регистрация: 14 авг 2012, 09:59
- Откуда: Луганск, Ессентуки
- Контактная информация:
Re: Чертежи железобетонных конструкций в Tekla Structures
Доброго времени суток. Подскажите плз, сделал спецификацию на несколько монолитных железобетонных элементов, но почему-то не добавляется бетон на каждую сборку. Где ошибка? Спасибо
Внешний вид хомутов на чертеже
Что-то не так с хомутами на чертеже. Хаотично то появляются, то обрываются края. Как настроить?
- Таран Д. А.
- Администратор
- Сообщения: 2877
- Регистрация: 30 ноя 2011, 18:41
- Откуда: г. Москва
- Контактная информация:
Re: Чертежи железобетонных конструкций в Tekla Structures
Тут надо копаться.Константин писал(а):Доброго времени суток. Подскажите плз, сделал спецификацию на несколько монолитных железобетонных элементов, но почему-то не добавляется бетон на каждую сборку. Где ошибка? Спасибо
Редактор немного своеобразный.
Ну ты бы хоть табличку то скинул бы.
Администратор Topengineer.ru 8 (495) 215-07-79 (офис) ; 8 (925) 755-9318 (сот.); Skype wildomen ; http://vk.com/tekla_structures
Разработка КМД | Разработка КМ | Разработка КЖ | Обучение Tekla Structures | Купить Tekla Structures
Разработка КМД | Разработка КМ | Разработка КЖ | Обучение Tekla Structures | Купить Tekla Structures
Re: Чертежи железобетонных конструкций в Tekla Structures
Позицию сборки попробуйте добавить. По одной картинке трудно судить.Константин писал(а): Доброго времени суток. Подскажите плз, сделал спецификацию на несколько монолитных железобетонных элементов, но почему-то не добавляется бетон на каждую сборку. Где ошибка? Спасибо
alstey писал(а):Что-то не так с хомутами на чертеже. Хаотично то появляются, то обрываются края. Как настроить?
Пробовал у себя - всё ок. Вы уверены в целесообразности такого отбражения двумя линиями с заполнением?ГОСТ другое нам диктует.
Re: Чертежи железобетонных конструкций в Tekla Structures
[/quote]
Пробовал у себя - всё ок. Вы уверены в целесообразности такого отбражения двумя линиями с заполнением?ГОСТ другое нам диктует.[/quote]
Целесообразности нет такой, конечно. Но при установке отображения "одна линия" тоже не все как нужно... Как настроить правильное отображение согласно СПДС?
Пробовал у себя - всё ок. Вы уверены в целесообразности такого отбражения двумя линиями с заполнением?ГОСТ другое нам диктует.[/quote]
Целесообразности нет такой, конечно. Но при установке отображения "одна линия" тоже не все как нужно... Как настроить правильное отображение согласно СПДС?
Re: Чертежи железобетонных конструкций в Tekla Structures
Это какое?Сплошной очень толстой линией?С крючками на концах, если надо начало и конец разных стержней?alstey писал(а):Как настроить правильное отображение согласно СПДС?
Re: Чертежи железобетонных конструкций в Tekla Structures
Про крестики и кружки - можно же или размер поменять до мельчайшего. На двг недавно что-то подобное кто-то спрашивал про них. Хотя как по мне, они так как раз по ГОСТ.
Re: Чертежи железобетонных конструкций в Tekla Structures
Вот из Русскевича два листика (п. 19.4.7). Так же и соответствии с ГОСТ 21.501-2011 СПДС (Правила выполнения рабочей документации архитектурных и конструктивных решений). Т.е. стержни обозначаются сплошной основной линией, попадающие в сечение- круглыми точками.Zezza писал(а):Это какое?Сплошной очень толстой линией?С крючками на концах, если надо начало и конец разных стержней?alstey писал(а):Как настроить правильное отображение согласно СПДС?
- Вложения
-
Н.Л.Русскевич_СПРАВОЧНИК по инженерно-строительному черчению и.2 1987 (стр.265)_v.2.djvu.pdf- (415.95 КБ) 2900 скачиваний
Re: Чертежи железобетонных конструкций в Tekla Structures
Не совсем понял, что Вы имеете ввиду. Можете поподробнее?Zezza писал(а):Про крестики и кружки - можно же или размер поменять до мельчайшего. На двг недавно что-то подобное кто-то спрашивал про них. Хотя как по мне, они так как раз по ГОСТ.
Re: Чертежи железобетонных конструкций в Tekla Structures
Русскевича не знаю. Упомянутый ГОСТ гласит "- арматурные и закладные изделия - очень толстой сплошной линией (в 1,5-2 раза толще сплошной толстой основной линии);". Кружки - filled line, не шарю как там переведено. Но это для тех, что в сечение попадают. Для гнутых - по ГОСТ 21.201 - крестики-кружки от читателя- к читателю. Ну, и там же, 1.3 пункт для прямых стержней обозначение для концов стержней и всем счастье.
-
AndrejjerdnA
- Сообщения: 103
- Регистрация: 18 сен 2014, 07:20
Re: Чертежи железобетонных конструкций в Tekla Structures
Вот это не из этой оперы? http://teklastructures.support.tekla.co ... l_min_sizealstey писал(а):Не совсем понял, что Вы имеете ввиду. Можете поподробнее?Zezza писал(а):Про крестики и кружки - можно же или размер поменять до мельчайшего. На двг недавно что-то подобное кто-то спрашивал про них. Хотя как по мне, они так как раз по ГОСТ.
Re: Чертежи железобетонных конструкций в Tekla Structures
Да оно самое. Мы показываем.AndrejjerdnA писал(а):Вот это не из этой оперы? http://teklastructures.support.tekla.co ... l_min_sizealstey писал(а):Не совсем понял, что Вы имеете ввиду. Можете поподробнее?Zezza писал(а):Про крестики и кружки - можно же или размер поменять до мельчайшего. На двг недавно что-то подобное кто-то спрашивал про них. Хотя как по мне, они так как раз по ГОСТ.
Re: Чертежи железобетонных конструкций в Tekla Structures
Поставил значение "0", но символы все равно присутствуют. Можете сбросить пример своего чертежа с вертикальным разрезом и хомутами в горизонтальной плоскости?AndrejjerdnA писал(а):Вот это не из этой оперы? http://teklastructures.support.tekla.co ... l_min_sizealstey писал(а):Не совсем понял, что Вы имеете ввиду. Можете поподробнее?Zezza писал(а):Про крестики и кружки - можно же или размер поменять до мельчайшего. На двг недавно что-то подобное кто-то спрашивал про них. Хотя как по мне, они так как раз по ГОСТ.
Чертеж фиксатора "лягушка" для дистанцирования сеток
Как сделать так, чтоб отдельный элемент в виде "лягушки" для дистанцирования сеток в составе фундамента не попадал в ведомость элементов ? (поскольку там он корректно не образмеривается)?
-
AndrejjerdnA
- Сообщения: 103
- Регистрация: 18 сен 2014, 07:20
Re: Чертеж фиксатора "лягушка" для дистанцирования сеток
Можно чуть чуть подправить шаблон ведомости. Так сказать отфильтровать по какому-то критерию.alstey писал(а):Как сделать так, чтоб отдельный элемент в виде "лягушки" для дистанцирования сеток в составе фундамента не попадал в ведомость элементов ? (поскольку там он корректно не образмеривается)?
Re: Чертеж фиксатора "лягушка" для дистанцирования сеток
Андрей, можешь подсказать, как?AndrejjerdnA писал(а):Можно чуть чуть подправить шаблон ведомости. Так сказать отфильтровать по какому-то критерию.alstey писал(а):Как сделать так, чтоб отдельный элемент в виде "лягушки" для дистанцирования сеток в составе фундамента не попадал в ведомость элементов ? (поскольку там он корректно не образмеривается)?
-
AndrejjerdnA
- Сообщения: 103
- Регистрация: 18 сен 2014, 07:20
Re: Чертеж фиксатора "лягушка" для дистанцирования сеток
Напиши в скайп. Сделаем. andrejjerdnaalstey писал(а):Андрей, можешь подсказать, как?AndrejjerdnA писал(а):Можно чуть чуть подправить шаблон ведомости. Так сказать отфильтровать по какому-то критерию.alstey писал(а):Как сделать так, чтоб отдельный элемент в виде "лягушки" для дистанцирования сеток в составе фундамента не попадал в ведомость элементов ? (поскольку там он корректно не образмеривается)?
Re: Чертежи железобетонных конструкций в Tekla Structures
Уважаемый AndrejjerdnA показал как просто отфильтровать позиции из ведомости арматуры, за что ему благодарность. Видео выкладываю в массы.
- Вложения
-
Фильтр ведомости арматуры.rar- (11.24 МБ) 2619 скачиваний
Re: Чертеж фиксатора "лягушка" для дистанцирования сеток
Что там некорректно и где вы его тогда показываете?alstey писал(а):Как сделать так, чтоб отдельный элемент в виде "лягушки" для дистанцирования сеток в составе фундамента не попадал в ведомость элементов ? (поскольку там он корректно не образмеривается)?
-
Константин
- Сообщения: 148
- Регистрация: 14 авг 2012, 09:59
- Откуда: Луганск, Ессентуки
- Контактная информация:
Re: Чертежи железобетонных конструкций в Tekla Structures
Объясните идею работы.
Делаем опалубку плиты, на ней показываем тонкой линией все примыкающие элементы (диафрагмы, шахты, колонны, ригеля). Т.е. отфильтровываем их соседней деталью.
Для чертежа опалубки используем чертеж общего вида.
При выполнении уже чертежей армирования уже используем "Создание чертежа отливаемого элемента" или продолжаем на том-же чертеже опалубки?
Делаем опалубку плиты, на ней показываем тонкой линией все примыкающие элементы (диафрагмы, шахты, колонны, ригеля). Т.е. отфильтровываем их соседней деталью.
Для чертежа опалубки используем чертеж общего вида.
При выполнении уже чертежей армирования уже используем "Создание чертежа отливаемого элемента" или продолжаем на том-же чертеже опалубки?
Re: Чертежи железобетонных конструкций в Tekla Structures
Монолит, или сборный ж/б?
Много зависит от требований оформления. По большому счету, монолит можно оформить полностью в чертежах общего вида
Много зависит от требований оформления. По большому счету, монолит можно оформить полностью в чертежах общего вида
-
Константин
- Сообщения: 148
- Регистрация: 14 авг 2012, 09:59
- Откуда: Луганск, Ессентуки
- Контактная информация:
Re: Чертежи железобетонных конструкций в Tekla Structures
Наверно да, при этом будет более четкая картина что куда приходит и не придется лезть постоянно в схему смотреть что куда примыкает...DrBianko писал(а):Монолит, или сборный ж/б?
Много зависит от требований оформления. По большому счету, монолит можно оформить полностью в чертежах общего вида
только до конца надо разобраться с соседними деталями и их армированием и ведомостью деталей...
Re: Чертежи железобетонных конструкций в Tekla Structures
О каких конкретно ведомостях идет речь?)
-
Константин
- Сообщения: 148
- Регистрация: 14 авг 2012, 09:59
- Откуда: Луганск, Ессентуки
- Контактная информация:
Re: Чертежи железобетонных конструкций в Tekla Structures
Ведомость расхода стали, мы в другой ветке форума (viewtopic.php?f=45&t=1933) обсудили этот вопросDrBianko писал(а):О каких конкретно ведомостях идет речь?)
-
Константин
- Сообщения: 148
- Регистрация: 14 авг 2012, 09:59
- Откуда: Луганск, Ессентуки
- Контактная информация:
Re: Чертежи железобетонных конструкций в Tekla Structures
Добавлю новый вопрос по спецификациям КЖ:
В спецификации на фундаментную плиту составленную из подготовки (В7,5), Плиты (В25) и прилива к плите (В25) а также с присоединенной закладной деталью объем всех элементов показывает отдельно Как сделать чтоб показывало правильно?
В спецификации на фундаментную плиту составленную из подготовки (В7,5), Плиты (В25) и прилива к плите (В25) а также с присоединенной закладной деталью объем всех элементов показывает отдельно Как сделать чтоб показывало правильно?
-
Константин
- Сообщения: 148
- Регистрация: 14 авг 2012, 09:59
- Откуда: Луганск, Ессентуки
- Контактная информация:
Re: Чертежи железобетонных конструкций в Tekla Structures
От значения стали в спецификации избавился путем добавления условия на вывод строки. Осталось понять как объединить две детали с бетоном В25 в одно значение 
Re: Чертежи железобетонных конструкций в Tekla Structures
Галочку "Суммировать значение по всем строкам" ?
-
Константин
- Сообщения: 148
- Регистрация: 14 авг 2012, 09:59
- Откуда: Луганск, Ессентуки
- Контактная информация:
Re: Чертежи железобетонных конструкций в Tekla Structures
Стоит. В том то и вопрос. Картинка вторая сверху. И в отлитый элемент объединено все...DrBianko писал(а):Галочку "Суммировать значение по всем строкам" ?
Re: Чертежи железобетонных конструкций в Tekla Structures
Тогда уберите сортировку где у вас написано бетон + в25, значит в этом проблема.
а вместо него просто переменную Material с сортировкой и параметром скрыть.
а вместо него просто переменную Material с сортировкой и параметром скрыть.
-
Константин
- Сообщения: 148
- Регистрация: 14 авг 2012, 09:59
- Откуда: Луганск, Ессентуки
- Контактная информация:
Re: Чертежи железобетонных конструкций в Tekla Structures
Спасибо за наводку. Получилось но только по другому:DrBianko писал(а):Тогда уберите сортировку где у вас написано бетон + в25, значит в этом проблема.
а вместо него просто переменную Material с сортировкой и параметром скрыть.
В объеме сортировку убрал, а на тексте оставил. И все встало на свои места.
-
Andreyznam
- Сообщения: 3
- Регистрация: 16 май 2017, 16:07
Re: Чертежи железобетонных конструкций в Tekla Structures
В спецификацию и ведомость деталей попадает только одна позиция, хотя на чертеже их больше 150. В чем проблема? В редакторе шаблонов посмотрел, вроде бы все стандартно (сравнивал со старой копией где все работает).
Изначально все работало, но как часто бывает, разбирался в редакторе шаблонов, и видимо там что-то сбил.
Изначально все работало, но как часто бывает, разбирался в редакторе шаблонов, и видимо там что-то сбил.
Re: Чертежи железобетонных конструкций в Tekla Structures
Доброго времени суток, уважаемые пользователи Tekla. Подскажите, можно ли штатными средствами обозначать таким образом зоны дополнительного армирования в плите, как в приведенном ниже примере. В зоне дополнительного армирования должен показываться только один замаркированный стержень, а сама зона обозначена сплошной или пунктирной линией по периметру и заштрихована.
- Вложения
-
Зоны доп армирования.pdf- Пример армирования монолитной плиты перекрытия (4 слой)
- (181.89 КБ) 2358 скачиваний
Re: Чертежи железобетонных конструкций в Tekla Structures
Добрый день, помогите пожалуйста разобраться, я сейчас делаю монолитный каркас здания с плитным фундаментом и ступеньками под колонны. Мой фундамент состоит из ступеней и плиты, скажите как я могу объединить все его части (на чертежах мне отдельно наименует каждую составляющую, хотя я и объединила как отлитые элементы)
Re: Чертежи железобетонных конструкций в Tekla Structures
Проблема с ведомостью арматуры, при выключенном переключателе "сквозная нумерация" на чертеже сборки не отображаются позиции. При включенном переключателе "сквозная нумерация" вместо позиций нули. Версия 21.1
Re: Чертежи железобетонных конструкций в Tekla Structures
Скорее всего поможет просто перезайти в чертеж или еще раз пронумероваться. У меня 2017 версия, и шаблоны тоже не сразу подхватывают присвоенные номера.
-
Pavel Karpovich
- Сообщения: 8
- Регистрация: 09 дек 2017, 11:47
- Откуда: Минск
- Контактная информация:
Re: Чертежи железобетонных конструкций в Tekla Structures
Добрый день! Есть вопрос по типовым плитами перекрытия.
Есть здание 20 этажей, жилой дом, монолит. Колонны, диафрагмы закинем в пользовательский компонент, там заармируем, текла их чётко пронумерует и мы их оформим как надо.
А что с делать с типовыми плитами перекрытий?
Они большие по 600 м2. При закидывании в пользовательский компонент "пропадает связь" с каркасом, т.е. при редактировании пользовательского компонента не видно, где колонны-стены, нет осей, в этом случае крайне сложно армировать и после править. В то же время одинаковых плит может быть 5-10 шт. по этажам. Хотелось, чтобы при изменении одной менялись все без дополнительного танца с бубнами, удаления копирования.
Может быть у кого-нибудь есть опыт в таком вопросе? Был бы признателен за любые мысли по данному вопросу
Есть здание 20 этажей, жилой дом, монолит. Колонны, диафрагмы закинем в пользовательский компонент, там заармируем, текла их чётко пронумерует и мы их оформим как надо.
А что с делать с типовыми плитами перекрытий?
Они большие по 600 м2. При закидывании в пользовательский компонент "пропадает связь" с каркасом, т.е. при редактировании пользовательского компонента не видно, где колонны-стены, нет осей, в этом случае крайне сложно армировать и после править. В то же время одинаковых плит может быть 5-10 шт. по этажам. Хотелось, чтобы при изменении одной менялись все без дополнительного танца с бубнами, удаления копирования.
Может быть у кого-нибудь есть опыт в таком вопросе? Был бы признателен за любые мысли по данному вопросу
Re: Чертежи железобетонных конструкций в Tekla Structures
Плиты оформляем чертежами общего вида, меняю глубину вида оформляем другие отметки.
- Вложения
-
KZ_EX.pdf- (337.67 КБ) 2337 скачиваний
-
Pavel Karpovich
- Сообщения: 8
- Регистрация: 09 дек 2017, 11:47
- Откуда: Минск
- Контактная информация:
-
Alexey2011
- Сообщения: 26
- Регистрация: 24 фев 2015, 20:49
Re: Чертежи железобетонных конструкций в Tekla Structures
Подскажите пожалуйста, вы решили эту проблему? И если да, то как?Andreyznam писал(а): ↑16 май 2017, 16:11В спецификацию и ведомость деталей попадает только одна позиция, хотя на чертеже их больше 150. В чем проблема? В редакторе шаблонов посмотрел, вроде бы все стандартно (сравнивал со старой копией где все работает).
Изначально все работало, но как часто бывает, разбирался в редакторе шаблонов, и видимо там что-то сбил.
Upd.
Решил проблему правкой шаблона.(см. скрины)
Есть где-нибудь полный список ведомостей, которые есть в среде топинженер?
- pavelkutas
- Сообщения: 276
- Регистрация: 16 янв 2013, 14:11
- Откуда: Санкт-Петербург
- Контактная информация:
Re: Чертежи железобетонных конструкций в Tekla Structures
Все верно. Просто, перед покупкой топинженеровской среды, хотелось бы посмотреть полный состав ведомостей.
phpbb3 styles
Кто сейчас на конференции
Сейчас этот форум просматривают: Bing [Bot] и 1 гость

