Практический семинар Tekla Structures 2017

Уклон на ж/б поддоне в Tekla Structures

Ответить
Anton
Сообщения: 9
Регистрация: 14 ноя 2013, 06:51

Уклон на ж/б поддоне в Tekla Structures

Сообщение Anton » 14 ноя 2013, 06:57

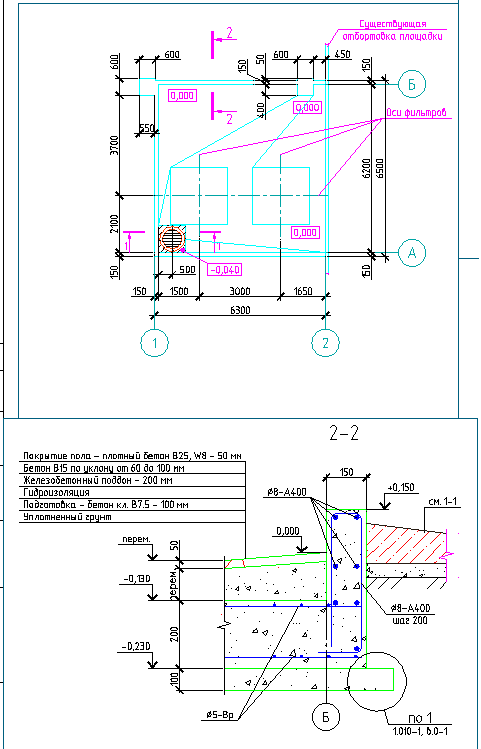
Подскажите пожалуйста самый оптимальный вариант как в TS создать уклон
Вложения
Безымянный.PNG

Аватара пользователя
Таран Д. А.
Администратор
Сообщения: 2877
Регистрация: 30 ноя 2011, 18:41
Откуда: г. Москва
Контактная информация:

Re: Уклон на ж/б поддоне в Tekla Structures

Сообщение Таран Д. А. » 18 ноя 2013, 10:05

Так проще всего
223.png

Anton
Сообщения: 9
Регистрация: 14 ноя 2013, 06:51

Re: Уклон на ж/б поддоне в Tekla Structures

Сообщение Anton » 18 ноя 2013, 10:07

Спасибо!

Ответить
phpbb3 styles

Вернуться в «3D моделирование в Tekla Structures»

Кто сейчас на конференции

Сейчас этот форум просматривают: нет зарегистрированных пользователей и 1 гость