Вопросы от начинающего Tekla Structures
Вопросы от начинающего Tekla Structures
Пытаюсь освоить самостоятельно Теклу дома. И миллион вопросов:
1. как скопировать элементы из одного файла в другой?
2. Можно оставить сразу несколько файлов открытыми. У меня почему-то приоткрытии нового сразу закрывается старый.
3. Как сделать, чтобы по умолчанию везде материал выбирался сталь С255 (сейчас почему-то С235)?
Зараннее спасибо за ответы)
1. как скопировать элементы из одного файла в другой?
2. Можно оставить сразу несколько файлов открытыми. У меня почему-то приоткрытии нового сразу закрывается старый.
3. Как сделать, чтобы по умолчанию везде материал выбирался сталь С255 (сейчас почему-то С235)?
Зараннее спасибо за ответы)
- Таран Д. А.
- Администратор
- Сообщения: 2877
- Регистрация: 30 ноя 2011, 18:41
- Откуда: г. Москва
- Контактная информация:
Re: Вопросы от начинающего Tekla Structures
1. В верхнем меню есть копирование там на 1 пункт больше как раз это он. Правка/специальное копирование/из другой модели.
Только там надо указать из какой и какие стадии.
2. Зачем если там модель???? Модель то одна чертежей много. Они все в баз есть. Зачем сразу несколько проектов?
3. В свойстве балке выбери нужный материал и нажми применить.
4. Самый простой вариант это пройти у нас курс 2 дня и все готов. Сэкономишь 2 года жизни.
Только там надо указать из какой и какие стадии.
2. Зачем если там модель???? Модель то одна чертежей много. Они все в баз есть. Зачем сразу несколько проектов?
3. В свойстве балке выбери нужный материал и нажми применить.
4. Самый простой вариант это пройти у нас курс 2 дня и все готов. Сэкономишь 2 года жизни.
Администратор Topengineer.ru 8 (495) 215-07-79 (офис) ; 8 (925) 755-9318 (сот.); Skype wildomen ; http://vk.com/tekla_structures
Разработка КМД | Разработка КМ | Разработка КЖ | Обучение Tekla Structures | Купить Tekla Structures
Разработка КМД | Разработка КМ | Разработка КЖ | Обучение Tekla Structures | Купить Tekla Structures
Re: Вопросы от начинающего Tekla Structures
Не ответ. Возможно-ли сборку составить с отдельных сборок????
- Таран Д. А.
- Администратор
- Сообщения: 2877
- Регистрация: 30 ноя 2011, 18:41
- Откуда: г. Москва
- Контактная информация:
Re: Вопросы от начинающего Tekla Structures
Немного не понял вопрос. Уточни.dyr писал(а):Не ответ. Возможно-ли сборку составить с отдельных сборок????
Администратор Topengineer.ru 8 (495) 215-07-79 (офис) ; 8 (925) 755-9318 (сот.); Skype wildomen ; http://vk.com/tekla_structures
Разработка КМД | Разработка КМ | Разработка КЖ | Обучение Tekla Structures | Купить Tekla Structures
Разработка КМД | Разработка КМ | Разработка КЖ | Обучение Tekla Structures | Купить Tekla Structures
Re: Вопросы от начинающего Tekla Structures
Ферма со спаренных уголков. Раскосы, стойки и пояса - сборки. Теперь с этих сборок слепить сборку-ферму.
- Таран Д. А.
- Администратор
- Сообщения: 2877
- Регистрация: 30 ноя 2011, 18:41
- Откуда: г. Москва
- Контактная информация:
Re: Вопросы от начинающего Tekla Structures
Сборка это то в каком виде изделие покидает завод.dyr писал(а):Ферма со спаренных уголков. Раскосы, стойки и пояса - сборки. Теперь с этих сборок слепить сборку-ферму.
То есть его форм и состав однозначны.
Никаких разночтений быть не может. Скорее всего у тебя вся ферма это одна сборка.
Если ферма огромная и собирается на месте то нам монтажке надо указать куда какие сборки ставить. По другому не надо делать.
Администратор Topengineer.ru 8 (495) 215-07-79 (офис) ; 8 (925) 755-9318 (сот.); Skype wildomen ; http://vk.com/tekla_structures
Разработка КМД | Разработка КМ | Разработка КЖ | Обучение Tekla Structures | Купить Tekla Structures
Разработка КМД | Разработка КМ | Разработка КЖ | Обучение Tekla Structures | Купить Tekla Structures
Re: Вопросы от начинающего Tekla Structures
Короче - возможности нетути. Негабаритные фермы необходимо делить на две и более полуфермы. Вышеуказанный постулат некатит.
Последний раз редактировалось dyr 22 ноя 2013, 13:03, всего редактировалось 2 раза.
Re: Вопросы от начинающего Tekla Structures
возможность есть: использовать многоуровневую сборку. Однако, ещё не видел необходимости в таком варианте
«Есть только две бесконечные вещи: Вселенная и глупость. Хотя насчет Вселенной я не вполне уверен.» А. Эйнштейн
Re: Вопросы от начинающего Tekla Structures
Спасиба. Поинтересуюсь.meart писал(а):возможность есть: использовать многоуровневую сборку. Однако, ещё не видел необходимости в таком варианте
- Таран Д. А.
- Администратор
- Сообщения: 2877
- Регистрация: 30 ноя 2011, 18:41
- Откуда: г. Москва
- Контактная информация:
Re: Вопросы от начинающего Tekla Structures
Можно собирать детали в более крупные детали.
Сборки в суб сборки и более крупные сборки.
Но с завода уходят отправочные марки они же сборки.
Необходимости в таком усложнении нет да и это будет неверное КМД. Так не делаю.
Сборки это 1 чертеж одна сборка и на монтажке ее и надо обозначить. Если полуфермы 2 то какой смысл их вместе то делать если они одинаковые?
Если не одинаковые то вообще смысла нет так как это должны быть 2 чертежа Иначе будет путаница на монтажках где сборки где укрупненные... Просто нет смысла.
Вообще мы использовали инструмент объединения в одну деталь из нескольких для имитации сип панелей из дерева и пенопласта. Но это только доля того чтобы чертеж сборки был целая стена. а не сама панель. Так это позволяло в ведомости выводить отдельно размеры ДВП и размеры пенопласта разумеется они разные. Но боюсь что это не ваш случай.
Если вам все же надо по какой то причине сделать их рядом на чертеже так это в любом случае монтажная схема.
Сборки в суб сборки и более крупные сборки.
Но с завода уходят отправочные марки они же сборки.
Необходимости в таком усложнении нет да и это будет неверное КМД. Так не делаю.
Сборки это 1 чертеж одна сборка и на монтажке ее и надо обозначить. Если полуфермы 2 то какой смысл их вместе то делать если они одинаковые?
Если не одинаковые то вообще смысла нет так как это должны быть 2 чертежа Иначе будет путаница на монтажках где сборки где укрупненные... Просто нет смысла.
Вообще мы использовали инструмент объединения в одну деталь из нескольких для имитации сип панелей из дерева и пенопласта. Но это только доля того чтобы чертеж сборки был целая стена. а не сама панель. Так это позволяло в ведомости выводить отдельно размеры ДВП и размеры пенопласта разумеется они разные. Но боюсь что это не ваш случай.
Если вам все же надо по какой то причине сделать их рядом на чертеже так это в любом случае монтажная схема.
Администратор Topengineer.ru 8 (495) 215-07-79 (офис) ; 8 (925) 755-9318 (сот.); Skype wildomen ; http://vk.com/tekla_structures
Разработка КМД | Разработка КМ | Разработка КЖ | Обучение Tekla Structures | Купить Tekla Structures
Разработка КМД | Разработка КМ | Разработка КЖ | Обучение Tekla Structures | Купить Tekla Structures
-
Flamderwinght
- Сообщения: 42
- Регистрация: 03 фев 2014, 20:22
- Откуда: Минск
- Контактная информация:
Re: Вопросы от начинающего Tekla Structures
Приветствую всех. Искал в старых темах, но так и не удалось найти ответ. Потому излагаю здесь. Как сделать в текла решетчатый настил? Как он отображаться будет в модели или на чертежах - не принципиально, пусть даже как пластина. Главное, чтоб массы совпадали. Была идея отредактировать профиль пластины, но не очень понравилось, ибо потом неудобно редактировать вырезы. Хотелось бы, чтоб создавалась она как контурная пластина. И вопрос №2. Как бы похитрее сделать лестницу с покупными ступенями (на заводе не изготавливаются, просто собираем), желательно, чтоб они входили в спецификацию просто пунктом "ступень такая-то", нулевую массу и материал уже можно убрать. Заранее спасибо.
Re: Вопросы от начинающего Tekla Structures
Выглядит как-то так:
Направление несущей полосы сделано обычным вырезом
Массу не прописывал, поскольку не просили.
Если она нужна, я думаю надо создать материал под конкретный настил (много всяких разных с разными шагами несущей полосы и пр.), ему задать объемный вес. Текла посчитает массу.
Массу не прописывал, поскольку не просили.
Если она нужна, я думаю надо создать материал под конкретный настил (много всяких разных с разными шагами несущей полосы и пр.), ему задать объемный вес. Текла посчитает массу.
-
Flamderwinght
- Сообщения: 42
- Регистрация: 03 фев 2014, 20:22
- Откуда: Минск
- Контактная информация:
Re: Вопросы от начинающего Tekla Structures
Хех))) И ступень мне такая же как раз нужна. Правда что-то не совсем понял как это сделать если нет среды КМД РУС? И да, как настил сделали сверху на площадке?CuPo>I<a писал(а):Выглядит как-то так: Направление несущей полосы сделано обычным вырезом
Массу не прописывал, поскольку не просили.
Если она нужна, я думаю надо создать материал под конкретный настил (много всяких разных с разными шагами несущей полосы и пр.), ему задать объемный вес. Текла посчитает массу.
Re: Вопросы от начинающего Tekla Structures
а при чем тут среда?
настилы и ступени сделаны контурной пластиной нужной толщины. Хотите - делайте балкой.
настилы и ступени сделаны контурной пластиной нужной толщины. Хотите - делайте балкой.
-
Flamderwinght
- Сообщения: 42
- Регистрация: 03 фев 2014, 20:22
- Откуда: Минск
- Контактная информация:
Re: Вопросы от начинающего Tekla Structures
Или я туплю или не знаю))) А как такое окошко вызвать?)) Ну нарисовал я контурную пластину. а дальше? Просто в названии профиля прописать "ступень такая-то?" и убрать материал?CuPo>I<a писал(а):а при чем тут среда?
настилы и ступени сделаны контурной пластиной нужной толщины. Хотите - делайте балкой.
Re: Вопросы от начинающего Tekla Structures
Это определённые пользователем атрибуты
Настраиваются в файле objects.inp
Настраиваются в файле objects.inp
-
Flamderwinght
- Сообщения: 42
- Регистрация: 03 фев 2014, 20:22
- Откуда: Минск
- Контактная информация:
Re: Вопросы от начинающего Tekla Structures
трохи разобрался) правда если балкой, то проще. не знаю как создать новый профиль пластины. Для контурной пластины не выбирается мой новый, который я создал(((
Re: Вопросы от начинающего Tekla Structures
Контурная пластина - только профиль PL
-
finder7500
- Сообщения: 5
- Регистрация: 05 июл 2013, 09:00
Re: Вопросы от начинающего Tekla Structures
есть много точно совпадающих элементов, их много, удаление поэлементно займет очень много времени.
можно ли быстро удалить точно совпадающие элементы??
Спасибо!
можно ли быстро удалить точно совпадающие элементы??
Спасибо!
- Таран Д. А.
- Администратор
- Сообщения: 2877
- Регистрация: 30 ноя 2011, 18:41
- Откуда: г. Москва
- Контактная информация:
Re: Вопросы от начинающего Tekla Structures
Даже не совсем понимаю как могло такое получиться. От куда у вас столько совпадающих объектов.finder7500 писал(а):есть много точно совпадающих элементов, их много, удаление поэлементно займет очень много времени.
можно ли быстро удалить точно совпадающие элементы??
Спасибо!
Снизь точность проверки до 1 мм. Может там и нет столько.
Расскажи подробнее от куда у тебя столько совпадений. В любом случае надо лечить причину а не симптом.
Администратор Topengineer.ru 8 (495) 215-07-79 (офис) ; 8 (925) 755-9318 (сот.); Skype wildomen ; http://vk.com/tekla_structures
Разработка КМД | Разработка КМ | Разработка КЖ | Обучение Tekla Structures | Купить Tekla Structures
Разработка КМД | Разработка КМ | Разработка КЖ | Обучение Tekla Structures | Купить Tekla Structures
-
finder7500
- Сообщения: 5
- Регистрация: 05 июл 2013, 09:00
Re: Вопросы от начинающего Tekla Structures
совпадающие элементы появились при копировании из другой модели (проморгал, что они в той же стадии с копируемыми)
Re: Вопросы от начинающего Tekla Structures
Смотрю на рисунок, и элементы конструкции практически белые.CuPo>I<a писал(а):Выглядит как-то так: Направление несущей полосы сделано обычным вырезом
Массу не прописывал, поскольку не просили.
Если она нужна, я думаю надо создать материал под конкретный настил (много всяких разных с разными шагами несущей полосы и пр.), ему задать объемный вес. Текла посчитает массу.
У себя такого не наблюдаю (чисто серый).
Это настройки монитора или Теклы?
А вам нужен белый цвет в Текле?
pdimav1979(не собака)yandex.ru
Re: Вопросы от начинающего Tekla Structures
белые сборки - выданные в производство. Это белый цвет в представлении
Re: Вопросы от начинающего Tekla Structures
Спасибо, хорошая идея. Приблизиться к белому...
pdimav1979(не собака)yandex.ru
-
Just_Dream
- Сообщения: 16
- Регистрация: 05 авг 2012, 23:11
Re: Вопросы от начинающего Tekla Structures
Добрый день, подскажите пожалуйста, каким образом создать вид модели, что бы работать на конкретной отметке?Хочу что бы опорная пластина рисовалась сразу на на отм. 0,000 на на -0,130 при виде "сверху"
- Таран Д. А.
- Администратор
- Сообщения: 2877
- Регистрация: 30 ноя 2011, 18:41
- Откуда: г. Москва
- Контактная информация:
Re: Вопросы от начинающего Tekla Structures
Пластина создается на рабочей плоскости ее можно задать разными способами. В хелпе все есть.Just_Dream писал(а):Добрый день, подскажите пожалуйста, каким образом создать вид модели, что бы работать на конкретной отметке?Хочу что бы опорная пластина рисовалась сразу на на отм. 0,000 на на -0,130 при виде "сверху"
Вообще по хорошему все пластины надо рисовать в компонентах а там такой проблемы нет.
Администратор Topengineer.ru 8 (495) 215-07-79 (офис) ; 8 (925) 755-9318 (сот.); Skype wildomen ; http://vk.com/tekla_structures
Разработка КМД | Разработка КМ | Разработка КЖ | Обучение Tekla Structures | Купить Tekla Structures
Разработка КМД | Разработка КМ | Разработка КЖ | Обучение Tekla Structures | Купить Tekla Structures
Re: Вопросы от начинающего Tekla Structures
а как создать компонент деталь кирпичную стену из блоков (отрисовыввался кирпич со всей перевязкой)? пример компонента может кто показать, или какое правило написать можно, очень признателен.
- Таран Д. А.
- Администратор
- Сообщения: 2877
- Регистрация: 30 ноя 2011, 18:41
- Откуда: г. Москва
- Контактная информация:
Re: Вопросы от начинающего Tekla Structures
Я просто делаю веритикальное копирование потом горизонтальное. Как правило кладка простаяDenis писал(а):а как создать компонент деталь кирпичную стену из блоков (отрисовыввался кирпич со всей перевязкой)? пример компонента может кто показать, или какое правило написать можно, очень признателен.
Администратор Topengineer.ru 8 (495) 215-07-79 (офис) ; 8 (925) 755-9318 (сот.); Skype wildomen ; http://vk.com/tekla_structures
Разработка КМД | Разработка КМ | Разработка КЖ | Обучение Tekla Structures | Купить Tekla Structures
Разработка КМД | Разработка КМ | Разработка КЖ | Обучение Tekla Structures | Купить Tekla Structures
Re: Вопросы от начинающего Tekla Structures
почему не отображаются нормально болты
утстановлена текла 20.0 ср3 + среда топинженер
утстановлена текла 20.0 ср3 + среда топинженер
- Таран Д. А.
- Администратор
- Сообщения: 2877
- Регистрация: 30 ноя 2011, 18:41
- Откуда: г. Москва
- Контактная информация:
Re: Вопросы от начинающего Tekla Structures
В настройках вида у тебя отображение болтов упрощенно, поставь точно.
Администратор Topengineer.ru 8 (495) 215-07-79 (офис) ; 8 (925) 755-9318 (сот.); Skype wildomen ; http://vk.com/tekla_structures
Разработка КМД | Разработка КМ | Разработка КЖ | Обучение Tekla Structures | Купить Tekla Structures
Разработка КМД | Разработка КМ | Разработка КЖ | Обучение Tekla Structures | Купить Tekla Structures
Re: Вопросы от начинающего Tekla Structures
1 а как создать пластину из антиматериала чтобы сделать вырез в детали?
сейчас я просто расчленил чужой компонент, скопировал от туда и дальше копирую себе, меняя размеры
2 можно как-нибудь превратить например швеллер(трубу, двутавр) в антиматериал?
сейчас я просто расчленил чужой компонент, скопировал от туда и дальше копирую себе, меняя размеры
2 можно как-нибудь превратить например швеллер(трубу, двутавр) в антиматериал?
Re: Вопросы от начинающего Tekla Structures
Нет. можно использовать инструмент "Создать разрез многоугольником"
«Есть только две бесконечные вещи: Вселенная и глупость. Хотя насчет Вселенной я не вполне уверен.» А. Эйнштейн
Re: Вопросы от начинающего Tekla Structures
1 - обрезать деталь многоугольникомАртур писал(а):1 а как создать пластину из антиматериала чтобы сделать вырез в детали?
сейчас я просто расчленил чужой компонент, скопировал от туда и дальше копирую себе, меняя размеры
2 можно как-нибудь превратить например швеллер(трубу, двутавр) в антиматериал?
2 - обрезать деталь другой деталью
-
Bagiration
- Сообщения: 52
- Регистрация: 05 фев 2012, 14:02
Re: Вопросы от начинающего Tekla Structures
Привет, ребят.
У меня 2 вопроса к уважаемому сообществу.
1. Часто ли у вас глючит редактор шаблонов? Моя ситуация: обычно перед тем как создать сборочный чертёж, я делаю все деталировочные чертежи, которые в будущем автоматически подгружаются в сборочный чертёж. Однако, текла всегда игнорирует главную деталь и в итоге приходится (когда есть необходимость) подгружать чертёж главной детали в ручную ("связать виды чертежей" или же "копировать"), но когда я загружаю вручную, начинаются проблемы в спецификации, то количество гланой детали неправильное, то в ведомости отправочных чертежей появляются сборки, где тоже применяется даная главная деталь). В общем это вный глюк программы. Вижу 2 выхода. Или же где-то прописать автоматическую подгрузку абсолютно всех деталировочных чертежей или же как-то грамотно с редактором шаблона обойтись. (на скрине количество деталей должно быть 1, вместо 2)
2. Как вы наносите реснички в сборке в версии 20.0 и 20.1, если глючит приложение от топинженеров, а в автокаде нарушается весь смысл проектирования в текле?
У меня 2 вопроса к уважаемому сообществу.
1. Часто ли у вас глючит редактор шаблонов? Моя ситуация: обычно перед тем как создать сборочный чертёж, я делаю все деталировочные чертежи, которые в будущем автоматически подгружаются в сборочный чертёж. Однако, текла всегда игнорирует главную деталь и в итоге приходится (когда есть необходимость) подгружать чертёж главной детали в ручную ("связать виды чертежей" или же "копировать"), но когда я загружаю вручную, начинаются проблемы в спецификации, то количество гланой детали неправильное, то в ведомости отправочных чертежей появляются сборки, где тоже применяется даная главная деталь). В общем это вный глюк программы. Вижу 2 выхода. Или же где-то прописать автоматическую подгрузку абсолютно всех деталировочных чертежей или же как-то грамотно с редактором шаблона обойтись. (на скрине количество деталей должно быть 1, вместо 2)
2. Как вы наносите реснички в сборке в версии 20.0 и 20.1, если глючит приложение от топинженеров, а в автокаде нарушается весь смысл проектирования в текле?
- Таран Д. А.
- Администратор
- Сообщения: 2877
- Регистрация: 30 ноя 2011, 18:41
- Откуда: г. Москва
- Контактная информация:
Re: Вопросы от начинающего Tekla Structures
Bagiration писал(а):Привет, ребят.
У меня 2 вопроса к уважаемому сообществу.
1. Часто ли у вас глючит редактор шаблонов? Моя ситуация: обычно перед тем как создать сборочный чертёж, я делаю все деталировочные чертежи, которые в будущем автоматически подгружаются в сборочный чертёж. Однако, текла всегда игнорирует главную деталь и в итоге приходится (когда есть необходимость) подгружать чертёж главной детали в ручную ("связать виды чертежей" или же "копировать"), но когда я загружаю вручную, начинаются проблемы в спецификации, то количество гланой детали неправильное, то в ведомости отправочных чертежей появляются сборки, где тоже применяется даная главная деталь). В общем это вный глюк программы. Вижу 2 выхода. Или же где-то прописать автоматическую подгрузку абсолютно всех деталировочных чертежей или же как-то грамотно с редактором шаблона обойтись. (на скрине количество деталей должно быть 1, вместо 2)
2. Как вы наносите реснички в сборке в версии 20.0 и 20.1, если глючит приложение от топинженеров, а в автокаде нарушается весь смысл проектирования в текле?
1) Что то ты не так делаешь. Я вообще не понял что нужно.
2) Нажимаешь кнопку проставить сварки у она расставляется.
Администратор Topengineer.ru 8 (495) 215-07-79 (офис) ; 8 (925) 755-9318 (сот.); Skype wildomen ; http://vk.com/tekla_structures
Разработка КМД | Разработка КМ | Разработка КЖ | Обучение Tekla Structures | Купить Tekla Structures
Разработка КМД | Разработка КМ | Разработка КЖ | Обучение Tekla Structures | Купить Tekla Structures
-
Bagiration
- Сообщения: 52
- Регистрация: 05 фев 2012, 14:02
Re: Вопросы от начинающего Tekla Structures
Я пользуюсь данным расширением: см. скрин, но при создании сборочных чертежей никогда не подгружается деталировочный чертёж главной детали сборки. Тогда я подгружаю сам (вручную), но при этом возникают косяки в спецификации.
Дмитрий, определённо точно скажу, что у меня на 2-ух разных комьютерах и 3-ёх версиях теклы (17, 20.0, 20.1), приложение сварки не работает. Вчера мы по телефону общались... По крайней мере программа стала точно умнее (кстати я Вас благодарю за это), но и менее устойчив в работе. Видимо она уже слишком сложная стала и трудная в отладке. А в 17-ой версии прежнее приложение сварки устойчиво работает (правда, если запускаешь с архива). В общем с последними версиями приложения сварки стали определённо немножко "подтупливать"...
Дмитрий, определённо точно скажу, что у меня на 2-ух разных комьютерах и 3-ёх версиях теклы (17, 20.0, 20.1), приложение сварки не работает. Вчера мы по телефону общались... По крайней мере программа стала точно умнее (кстати я Вас благодарю за это), но и менее устойчив в работе. Видимо она уже слишком сложная стала и трудная в отладке. А в 17-ой версии прежнее приложение сварки устойчиво работает (правда, если запускаешь с архива). В общем с последними версиями приложения сварки стали определённо немножко "подтупливать"...
- Таран Д. А.
- Администратор
- Сообщения: 2877
- Регистрация: 30 ноя 2011, 18:41
- Откуда: г. Москва
- Контактная информация:
Re: Вопросы от начинающего Tekla Structures
Смотреть внимательно и до конца. Лучше 2 раза - реально.
phpBB [media]
Администратор Topengineer.ru 8 (495) 215-07-79 (офис) ; 8 (925) 755-9318 (сот.); Skype wildomen ; http://vk.com/tekla_structures
Разработка КМД | Разработка КМ | Разработка КЖ | Обучение Tekla Structures | Купить Tekla Structures
Разработка КМД | Разработка КМ | Разработка КЖ | Обучение Tekla Structures | Купить Tekla Structures
Re: Вопросы от начинающего Tekla Structures
Доброго времени суток!!!
Я очень хорошо знаю Advance steel, сейчас из-за разных причин изучаю Tekla. У меня возникла проблема, никак не могу понять общий принцип построения в данной программе . Если в AS, то с помощью ПСК создаешь рабочие плоскости под любыми углами, чертишь эскизы и по ним делаешь любые профили, пластины .... я практически и не пользовался компонентами. А в Tekla сложилось впечатление, что вся модель собирается только из компонентов, т.е. набросал профили, а соединяешь их компонентами. Я прав?
Я очень хорошо знаю Advance steel, сейчас из-за разных причин изучаю Tekla. У меня возникла проблема, никак не могу понять общий принцип построения в данной программе . Если в AS, то с помощью ПСК создаешь рабочие плоскости под любыми углами, чертишь эскизы и по ним делаешь любые профили, пластины .... я практически и не пользовался компонентами. А в Tekla сложилось впечатление, что вся модель собирается только из компонентов, т.е. набросал профили, а соединяешь их компонентами. Я прав?
Re: Вопросы от начинающего Tekla Structures
не обязательно, но в идеале - даrom_kaxxx писал(а):Доброго времени суток!!!
Я очень хорошо знаю Advance steel, сейчас из-за разных причин изучаю Tekla. У меня возникла проблема, никак не могу понять общий принцип построения в данной программе . Если в AS, то с помощью ПСК создаешь рабочие плоскости под любыми углами, чертишь эскизы и по ним делаешь любые профили, пластины .... я практически и не пользовался компонентами. А в Tekla сложилось впечатление, что вся модель собирается только из компонентов, т.е. набросал профили, а соединяешь их компонентами. Я прав?
ведь нет смысла отрисовывать один и тот же узел 100 раз.. а если он поменялся?
«Есть только две бесконечные вещи: Вселенная и глупость. Хотя насчет Вселенной я не вполне уверен.» А. Эйнштейн
Re: Вопросы от начинающего Tekla Structures
Я так понимаю, что если в компоненте чего-то не хватает, то дорисовываешь и добавляешь? А можно несколько вопросов
:
1. Команды сварка и сборка - что создает отправочную марку?
2. Как выделить отправочную марку? В Advance steel выделяешь один элемент и жмешь команду "Выделить отправочную марку", а здесь как?
3. Компоненты... В настройках компонента куча галочек, какая их цель?
4. Где можно прочитать или лучше посмотреть, как создавать элементы, как работать плоскостями. Во всех видео какие находил, все делают одно и то же: накопируют колон, вставят компонент и потом его копируют. А если что-то в компоненте не так, что делать? Или не хватает какого-то элемента?
1. Команды сварка и сборка - что создает отправочную марку?
2. Как выделить отправочную марку? В Advance steel выделяешь один элемент и жмешь команду "Выделить отправочную марку", а здесь как?
3. Компоненты... В настройках компонента куча галочек, какая их цель?
4. Где можно прочитать или лучше посмотреть, как создавать элементы, как работать плоскостями. Во всех видео какие находил, все делают одно и то же: накопируют колон, вставят компонент и потом его копируют. А если что-то в компоненте не так, что делать? Или не хватает какого-то элемента?
Re: Вопросы от начинающего Tekla Structures
как сделать чтобы в чертеже при обозначении позиции (например поз.1) после цифры исчезли все нежелательные символы и цифры?
- Таран Д. А.
- Администратор
- Сообщения: 2877
- Регистрация: 30 ноя 2011, 18:41
- Откуда: г. Москва
- Контактная информация:
Re: Вопросы от начинающего Tekla Structures
У тебя все нормально. Просто ты еще не провел нумирацию.Артур писал(а):как сделать чтобы в чертеже при обозначении позиции (например поз.1) после цифры исчезли все нежелательные символы и цифры?
Как только ты ее сделаешь цифры обновятся и станут нормальными.
Администратор Topengineer.ru 8 (495) 215-07-79 (офис) ; 8 (925) 755-9318 (сот.); Skype wildomen ; http://vk.com/tekla_structures
Разработка КМД | Разработка КМ | Разработка КЖ | Обучение Tekla Structures | Купить Tekla Structures
Разработка КМД | Разработка КМ | Разработка КЖ | Обучение Tekla Structures | Купить Tekla Structures
Re: Вопросы от начинающего Tekla Structures
пордскажите пожалуйста
делаю шаблон своего штампа
создал новый, вставил штамп и 2 поля значения(скопировал из среды топ инженер)
if length(GetValue("DRAWING.USERDEFINED.ispolnil")) >1 then "Разработал" else " " endif
и
GetValue("DRAWING.USERDEFINED.ispolnil")
в итоге ничего не получилось одни нули
в чем ошибка?
я так понял нужно чтобы было заполнено DRAWING.USERDEFINED.ispolnil
ps
добавил endif в конце, пропал только ноль, фамилия не появилась
делаю шаблон своего штампа
создал новый, вставил штамп и 2 поля значения(скопировал из среды топ инженер)
if length(GetValue("DRAWING.USERDEFINED.ispolnil")) >1 then "Разработал" else " " endif
и
GetValue("DRAWING.USERDEFINED.ispolnil")
в итоге ничего не получилось одни нули
в чем ошибка?
я так понял нужно чтобы было заполнено DRAWING.USERDEFINED.ispolnil
ps
добавил endif в конце, пропал только ноль, фамилия не появилась
Re: Вопросы от начинающего Tekla Structures
GetValue пробовал убрать?
Re: Вопросы от начинающего Tekla Structures
нет, не то
Re: Вопросы от начинающего Tekla Structures
Добрый день!
Подскажите как лучше смоделировать такой узел.
Подскажите как лучше смоделировать такой узел.
Re: Вопросы от начинающего Tekla Structures
Начертить контурную пластину и воспользоваться подгонкой.
Re: Вопросы от начинающего Tekla Structures
Я бы воспользовался стандартным компонентом 71 и игрался бы с переменными, чтобы добиться нужной конфигурации...Добрый день!
Подскажите как лучше смоделировать такой узел.
А разве балка не швеллер?
Re: Вопросы от начинающего Tekla Structures
Благодарю за ответы
Re: Вопросы от начинающего Tekla Structures
Все сечения верны на чертеже
Re: Вопросы от начинающего Tekla Structures
Тогда балка или швеллер или I-beam, но уж никак не уголок...Все сечения верны на чертеже
Re: Вопросы от начинающего Tekla Structures
Доброго времени суток. В профилях есть просечка ПВ-506. а мне нужна 510. при добовлении профиля копированием существующего, и изменения его значений - в отчетах и на чертежах, всё равно вес считается не правильно. как добавить профиль 510 что бы считало правильно?
среда топинженер.текла 20.1
Есть ли другие способы создания просечки, как например в среде раша, где просто создаёшь пластину, а потом загружаешь профиль
среда топинженер.текла 20.1
Есть ли другие способы создания просечки, как например в среде раша, где просто создаёшь пластину, а потом загружаешь профиль
Re: Вопросы от начинающего Tekla Structures
Или создавай профили аналогично 506.Artu писал(а):Доброго времени суток. В профилях есть просечка ПВ-506. а мне нужна 510. при добовлении профиля копированием существующего, и изменения его значений - в отчетах и на чертежах, всё равно вес считается не правильно. как добавить профиль 510 что бы считало правильно?
среда топинженер.текла 20.1
Есть ли другие способы создания просечки, как например в среде раша, где просто создаёшь пластину, а потом загружаешь профиль
Или создай материал ПВ510, задай вес кв.метра. А толщину листа возьми из ГОСТа.
Или экспортируйте из среды Россия все, что вам нужно.
Re: Вопросы от начинающего Tekla Structures
Текла 20.1. Как сделать, чтобы при клонировании не создавался новый чертеж на марку, а изменялся уже созданный чертеж?
- teandrey89
- Сообщения: 120
- Регистрация: 11 июл 2012, 01:18
- Откуда: Saint Petersburg
Re: Вопросы от начинающего Tekla Structures
Добрый день! Клонирование - копирование. Изменять этой функцией что-то невозможно... только создавать новое. https://ru.wikipedia.org/wiki/%D0%9A%D0 ... 0%B8%D0%B5ak4 писал(а):Текла 20.1. Как сделать, чтобы при клонировании не создавался новый чертеж на марку, а изменялся уже созданный чертеж?
- Таран Д. А.
- Администратор
- Сообщения: 2877
- Регистрация: 30 ноя 2011, 18:41
- Откуда: г. Москва
- Контактная информация:
Re: Вопросы от начинающего Tekla Structures
Просто удали его. А потом клонируй.ak4 писал(а):Текла 20.1. Как сделать, чтобы при клонировании не создавался новый чертеж на марку, а изменялся уже созданный чертеж?
Администратор Topengineer.ru 8 (495) 215-07-79 (офис) ; 8 (925) 755-9318 (сот.); Skype wildomen ; http://vk.com/tekla_structures
Разработка КМД | Разработка КМ | Разработка КЖ | Обучение Tekla Structures | Купить Tekla Structures
Разработка КМД | Разработка КМ | Разработка КЖ | Обучение Tekla Structures | Купить Tekla Structures
-
DarkAlucard
- Сообщения: 5
- Регистрация: 05 апр 2015, 00:14
Re: Вопросы от начинающего Tekla Structures
Простите за вопрос но может кто нибудь подсказать что означает номер класса (цвет) в свойствах колонны или другой детали ?
- Таран Д. А.
- Администратор
- Сообщения: 2877
- Регистрация: 30 ноя 2011, 18:41
- Откуда: г. Москва
- Контактная информация:
Re: Вопросы от начинающего Tekla Structures
Это реально всего лишь цвет.DarkAlucard писал(а):Простите за вопрос но может кто нибудь подсказать что означает номер класса (цвет) в свойствах колонны или другой детали ?
Администратор Topengineer.ru 8 (495) 215-07-79 (офис) ; 8 (925) 755-9318 (сот.); Skype wildomen ; http://vk.com/tekla_structures
Разработка КМД | Разработка КМ | Разработка КЖ | Обучение Tekla Structures | Купить Tekla Structures
Разработка КМД | Разработка КМ | Разработка КЖ | Обучение Tekla Structures | Купить Tekla Structures
Re: Вопросы от начинающего Tekla Structures
Ну это как бы не просто цвет, а свойство объекта, по нему можно фильтровать на чертежах например, в фильтрах выбора использовать.
"Всего лишь цвет" находится в представлениях видов
"Всего лишь цвет" находится в представлениях видов
Re: Вопросы от начинающего Tekla Structures
Почему в абсолютно вертикальных элементах (стенки, колонны) на чертежах в плане видны скрытые линии контура?
Причем непонятно, почему в одних элементах нет этого отображения, а в некоторых - есть.
Причем непонятно, почему в одних элементах нет этого отображения, а в некоторых - есть.
- Таран Д. А.
- Администратор
- Сообщения: 2877
- Регистрация: 30 ноя 2011, 18:41
- Откуда: г. Москва
- Контактная информация:
Re: Вопросы от начинающего Tekla Structures
Ты хоть скрин дай. Ничего не понятно.Yuzer писал(а):Почему в абсолютно вертикальных элементах (стенки, колонны) на чертежах в плане видны скрытые линии контура?
Причем непонятно, почему в одних элементах нет этого отображения, а в некоторых - есть.
Администратор Topengineer.ru 8 (495) 215-07-79 (офис) ; 8 (925) 755-9318 (сот.); Skype wildomen ; http://vk.com/tekla_structures
Разработка КМД | Разработка КМ | Разработка КЖ | Обучение Tekla Structures | Купить Tekla Structures
Разработка КМД | Разработка КМ | Разработка КЖ | Обучение Tekla Structures | Купить Tekla Structures
Re: Вопросы от начинающего Tekla Structures
Разобрались. В глубину вида попадало несколько элементов. Они и отображались пунктирно.
Re: Вопросы от начинающего Tekla Structures
Не пойму почему в деталях отображаются скрытые линии. Длина деталей без сотых.
Соседние детали то же имеют привязку без сотых, но в месте пересечения появляется скрытая линия.
Соседние детали то же имеют привязку без сотых, но в месте пересечения появляется скрытая линия.
-
DarkAlucard
- Сообщения: 5
- Регистрация: 05 апр 2015, 00:14
Re: Вопросы от начинающего Tekla Structures
Подскажите пожалуйста, как вставить уже созданные модели Оп1, Оп2, Оп3 в пустую модель. В пустой модели расположены только сетки опор. Просто сначала начал создавать опоры по отдельности, а потом решил сделать как в разделе КМ. Пробовал я через специальное копирование, но получается вот так (не копируются колонны и некоторые листы).Когда выбирал всю модель то побывал через переключатель выбора выбирать и сборки и детали, вообщем не получается.
Re: Вопросы от начинающего Tekla Structures
компонент типа "Деталь"
Re: Вопросы от начинающего Tekla Structures
Подскажите пожалуйста, что не так??? Создаю гнутую трубу d=40 через "Создать криволинейную балку", проверяю длину, а там ошибка! Должна быть 235.5, Текла выдает 180,8!
- vladimir_a
- Сообщения: 699
- Регистрация: 07 дек 2011, 21:22
Re: Вопросы от начинающего Tekla Structures
в расширенных настройках найди образмеривание разверток "XS_UNFOLDING_DONT_USE_NEUTRAL_AXIS_FOR_RADIUS "- "FALSE"rom_kaxxx писал(а):Подскажите пожалуйста, что не так??? Создаю гнутую трубу d=40 через "Создать криволинейную балку", проверяю длину, а там ошибка! Должна быть 235.5, Текла выдает 180,8!
Re: Вопросы от начинающего Tekla Structures
Поменял, но все равно выдает 180,8!!! Что еще может быть?
Re: Вопросы от начинающего Tekla Structures
Если создать гнутую трубу через составную балку, то длину трубы считает правильно, но через составную балку не получается создать типа отвод, труба превращается в линию. Т.е. создаю составную балку 150х150 и скругляю с помощью фаски угол радиусом 150, далее труба превращается в линию!!! Но если добавить по 50 мм с каждой стороны, то все получится и Текла считает длину правильно - 335,6. А если создавать через "Создать криволинейную балку", то все создается, но считается не верно! Как быть?vladimir_a писал(а):в расширенных настройках найди образмеривание разверток "XS_UNFOLDING_DONT_USE_NEUTRAL_AXIS_FOR_RADIUS "- "FALSE"rom_kaxxx писал(а):Подскажите пожалуйста, что не так??? Создаю гнутую трубу d=40 через "Создать криволинейную балку", проверяю длину, а там ошибка! Должна быть 235.5, Текла выдает 180,8!
Re: Вопросы от начинающего Tekla Structures
как проще всего создать ферму?
есть ли в текле способ импортировать туда чертеж расчетной схемы из автокада (или нарисовать в текле) и потом по нему профили задать?
инструменты в каталоге компонентов не совсем подходят мне
есть ли в текле способ импортировать туда чертеж расчетной схемы из автокада (или нарисовать в текле) и потом по нему профили задать?
инструменты в каталоге компонентов не совсем подходят мне
Re: Вопросы от начинающего Tekla Structures
Меню Файл->После печати следующая строчка, у меня в английской - Insert reference model... - это для вставки подложек или чего там хотите. По ней профилями обычными нарисуйте и вперед.
Re: Вопросы от начинающего Tekla Structures
спасибо, уже сам нашел, а как-нибудь возможно точки на профилях(конечные и начальные) привязать в подложке? чтобы конструкция менялась вместе с подложкой, каждый раз двигать вручную долгоZezza писал(а):Меню Файл->После печати следующая строчка, у меня в английской - Insert reference model... - это для вставки подложек или чего там хотите. По ней профилями обычными нарисуйте и вперед.
Re: Вопросы от начинающего Tekla Structures
Добрый день! Задавал вопрос в другой теме, но вопрос остался без ответа. Решил попытать счастья в этой теме. Может кто разъяснить: возможно ли настроить проверку на конфликты таким образом, чтобы конфликты до 1мм (пересечение и т.п.), не учитывались? При этом не во вред остальной проверке (конфликтам).
- Таран Д. А.
- Администратор
- Сообщения: 2877
- Регистрация: 30 ноя 2011, 18:41
- Откуда: г. Москва
- Контактная информация:
Re: Вопросы от начинающего Tekla Structures
viewtopic.php?f=5&t=62&p=17327&hilit=конфликты#p17327asd555 писал(а):Добрый день! Задавал вопрос в другой теме, но вопрос остался без ответа. Решил попытать счастья в этой теме. Может кто разъяснить: возможно ли настроить проверку на конфликты таким образом, чтобы конфликты до 1мм (пересечение и т.п.), не учитывались? При этом не во вред остальной проверке (конфликтам).
Администратор Topengineer.ru 8 (495) 215-07-79 (офис) ; 8 (925) 755-9318 (сот.); Skype wildomen ; http://vk.com/tekla_structures
Разработка КМД | Разработка КМ | Разработка КЖ | Обучение Tekla Structures | Купить Tekla Structures
Разработка КМД | Разработка КМ | Разработка КЖ | Обучение Tekla Structures | Купить Tekla Structures
Re: Вопросы от начинающего Tekla Structures
У меня в модели присутствуют две "нулевые" марки. Найти их не могу не визуально, не через "Найти отдаленные объекты". Конечно они мне не мешают, но все таки интересно, что за "косяк" такой. Спасибо за помощь. Текла 20.1
Re: Вопросы от начинающего Tekla Structures
Через отчет Текловский их найти можно, X_Marks_By_Name например
Re: Вопросы от начинающего Tekla Structures
Вот они, а как удалить не знаю.DrBianko писал(а):Через отчет Текловский их найти можно, X_Marks_By_Name например
Re: Вопросы от начинающего Tekla Structures
зажать F или Z и нажать на них
Re: Вопросы от начинающего Tekla Structures
Все удалил. Правая кнопка мышки, выбрать : удалить из сборки.DrBianko писал(а):зажать F или Z и нажать на них
Re: Вопросы от начинающего Tekla Structures
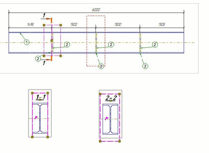
Вопрос знатокам.
Как восстановить ошибочно удаленную метку разреза 2-2 (выделено красным прямоугольником).
Или узнать где сделано сечение 2-2. У сечения 1-1 есть розовый прямоугольник глубины, а у 2-2 даже его нет.
Как восстановить ошибочно удаленную метку разреза 2-2 (выделено красным прямоугольником).
Или узнать где сделано сечение 2-2. У сечения 1-1 есть розовый прямоугольник глубины, а у 2-2 даже его нет.
-
profitro11
- Сообщения: 13
- Регистрация: 09 июн 2016, 09:44
Re: Вопросы от начинающего Tekla Structures
Доброго времени суток! А как работает профиль —ПВ506X1400 и иже с ним, пытался делать вырезы, срезы, в спецификации в графе ПРОФИЛЬ все равно выдает "—ПВ506 Просечно-вытяжной лист"с шириной 1400 и ставит длину равную длине балки (оно и понятно), в то же время на чертеже все вырезы и отсечения есть и соответствуют истине...
Re: Вопросы от начинающего Tekla Structures
как в модели выбрать только колонны, балки или пластины?
Re: Вопросы от начинающего Tekla Structures
Через фильтр выбора Ctrl+Grka писал(а):как в модели выбрать только колонны, балки или пластины?
Re: Вопросы от начинающего Tekla Structures
Спасибо за ответ. А как конкретно выбрать тип колонна (точки на одной вертикальной оси, начальная точка внизу) в фильтре?bert30 писал(а):Через фильтр выбора Ctrl+Grka писал(а):как в модели выбрать только колонны, балки или пластины?
Re: Вопросы от начинающего Tekla Structures
При создании модели сразу назначаешь имя и префикс будущих сборок. Например: имя - Колонна; префикс сборки - К1.
А в фильтре уже выбираешь по этим параметрам. Например: Категория - сборка; свойство - префикс; условие - начинается с или равно; значение - К1.
Это для сборок.
Для деталей можно использовать свойства сборки или например профиль (или материал). Чтобы выбрать все детали из листа в фильтре в условиях выбрать - содержит, в значение - через функцию - "выбрать из модели", выбрать любую деталь из листа, а потом удалить толщину листа, оставив знак "-".
В общем принцип такой. Вообще фильтр имеет много возможностей выбора. Экспериментируй.
А в фильтре уже выбираешь по этим параметрам. Например: Категория - сборка; свойство - префикс; условие - начинается с или равно; значение - К1.
Это для сборок.
Для деталей можно использовать свойства сборки или например профиль (или материал). Чтобы выбрать все детали из листа в фильтре в условиях выбрать - содержит, в значение - через функцию - "выбрать из модели", выбрать любую деталь из листа, а потом удалить толщину листа, оставив знак "-".
В общем принцип такой. Вообще фильтр имеет много возможностей выбора. Экспериментируй.
Re: Вопросы от начинающего Tekla Structures
интересует именно тип колонна или балка, без фильтра по остальным атрибутам
Re: Вопросы от начинающего Tekla Structures
Как в отчете отфильтровать детали, чтоб остались только профили у которых нет разделок, отверстий, подрезок .... профиль у которого веса заготовки и готовой детали равны.
PROFILE_TYPE != B,
HAS_HOLES == 0,
а дальше думал через вес, типа WEIGHT_GROSS == WEIGHT_NET, но они почему-то разные.
PROFILE_TYPE != B,
HAS_HOLES == 0,
а дальше думал через вес, типа WEIGHT_GROSS == WEIGHT_NET, но они почему-то разные.
Re: Вопросы от начинающего Tekla Structures
Подскажите как правильно составить сборку чтобы виды в чертеже выглядели правильно. Оси в проекте радиальной формы, поэтому рамка сборки имеет кривой вид, - отсюда и виды в чертеже кривые
Re: Вопросы от начинающего Tekla Structures
Зависит от поворота главное детали
«Есть только две бесконечные вещи: Вселенная и глупость. Хотя насчет Вселенной я не вполне уверен.» А. Эйнштейн
Re: Вопросы от начинающего Tekla Structures
Главная деталь - труба по оси. Система координат - модель. В локальной - то же самое только горизонтально. Можно конечно попробовать покрутить трубу вокруг своей оси. Но я пробовал менять главную деталь - никакого эффекта.
Re: Вопросы от начинающего Tekla Structures
Здравствуйте! Подскажите, пожалуйста, как можно создать сухари вдоль связи из сдвоенного уголка "крестом"? Если использовать компонент (1046) "прокладка или сухарь", то приходиться создавать по одному.
- Таран Д. А.
- Администратор
- Сообщения: 2877
- Регистрация: 30 ноя 2011, 18:41
- Откуда: г. Москва
- Контактная информация:
Re: Вопросы от начинающего Tekla Structures
Проще всего
1) нарисовать простую пластину.
2) Скопировать линейным копированием вдоль связи с запасом 1-2 пластины
3) Скопировать от объекта к обекту к другим связям их обычно не так много
4) Удалить лишние пластинки.
Разумеется лучше делать компонентом но для новичка не знающего компоненты это самый простой выход.
Администратор Topengineer.ru 8 (495) 215-07-79 (офис) ; 8 (925) 755-9318 (сот.); Skype wildomen ; http://vk.com/tekla_structures
Разработка КМД | Разработка КМ | Разработка КЖ | Обучение Tekla Structures | Купить Tekla Structures
Разработка КМД | Разработка КМ | Разработка КЖ | Обучение Tekla Structures | Купить Tekla Structures
Re: Вопросы от начинающего Tekla Structures
Подскажите пожалуйста, как проще будет сделать такие вертикальные связи:
Вот такими элементами:
- Таран Д. А.
- Администратор
- Сообщения: 2877
- Регистрация: 30 ноя 2011, 18:41
- Откуда: г. Москва
- Контактная информация:
Re: Вопросы от начинающего Tekla Structures
1) нарисуй сначала линии вспомогательной геометрией
2) нарисуй все профиля.
3) воспользуйся стандартными соединениями для связей. либо икс плагинами как вариант
Администратор Topengineer.ru 8 (495) 215-07-79 (офис) ; 8 (925) 755-9318 (сот.); Skype wildomen ; http://vk.com/tekla_structures
Разработка КМД | Разработка КМ | Разработка КЖ | Обучение Tekla Structures | Купить Tekla Structures
Разработка КМД | Разработка КМ | Разработка КЖ | Обучение Tekla Structures | Купить Tekla Structures
Re: Вопросы от начинающего Tekla Structures
Спасибо, Дмитрий, попробую разобраться
Re: Вопросы от начинающего Tekla Structures
Спасибо! У меня получилось!!!
Re: Вопросы от начинающего Tekla Structures
Подскажите, кто пользовался, по вот такому плагину:
Как изменить площади соприкасающихся поверхностей?
И как поменять расположение болтов, чтобы получилось в точности как на иконке?
Re: Вопросы от начинающего Tekla Structures
создать вид на отметке +0.000?
«Есть только две бесконечные вещи: Вселенная и глупость. Хотя насчет Вселенной я не вполне уверен.» А. Эйнштейн
Re: Вопросы от начинающего Tekla Structures
Почему не выделяются железобетонные элементы созданные сверху над металлической моделью?
Создал внизу фундаменты колонн. Потом понял что они не выделяются! (Пробовал копировать) И теперь не могу понять как мне отредактировать созданные ЖБ элементы чтобы отредактировать их?
Где в Текле "Дерево модели"? Если на экране нельзя выделить, тогда может в дереве можно выделить нужные строки и удалить?
Почему эти ЖБэшки не редактируются?
Где в Текле "Дерево модели"? Если на экране нельзя выделить, тогда может в дереве можно выделить нужные строки и удалить?
Почему эти ЖБэшки не редактируются?
Re: Вопросы от начинающего Tekla Structures
может что-то в настройках фильтра
phpbb3 styles
Кто сейчас на конференции
Сейчас этот форум просматривают: нет зарегистрированных пользователей и 8 гостей

