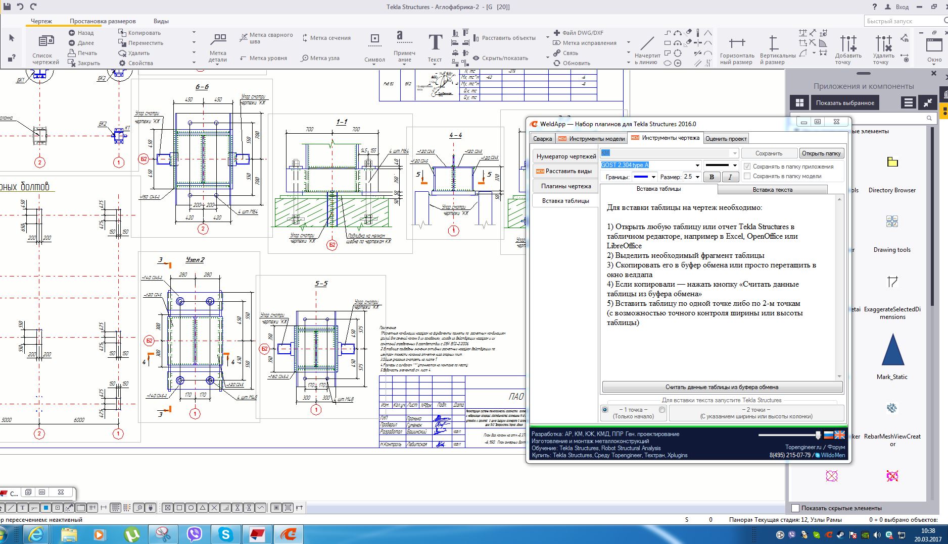
Не вставляется Вставка таблиц и Вставка текста
-
Fedorov_dtxxx
- Сообщения: 7
- Регистрация: 01 дек 2016, 13:34
Не вставляется Вставка таблиц и Вставка текста
При вставке текста или таблицы неактивны кнопки вставки, при этом чертеж открыт.
Re: Не вставляется Вставка таблиц и Вставка текста
Перезапусти ВелдАпп
-
Fedorov_dtxxx
- Сообщения: 7
- Регистрация: 01 дек 2016, 13:34
Re: Не вставляется Вставка таблиц и Вставка текста
Перезапускал 2 раза с Правами Админа, не помагает
- Таран Д. А.
- Администратор
- Сообщения: 2877
- Регистрация: 30 ноя 2011, 18:41
- Откуда: г. Москва
- Контактная информация:
Re: Не вставляется Вставка таблиц и Вставка текста
1) Текла должна быть запущена только одна иначе не будет работать вообще.
2) Убедись что запустил велдап именно под нужную версию теклы это важно
2) Убедись что запустил велдап именно под нужную версию теклы это важно
Администратор Topengineer.ru 8 (495) 215-07-79 (офис) ; 8 (925) 755-9318 (сот.); Skype wildomen ; http://vk.com/tekla_structures
Разработка КМД | Разработка КМ | Разработка КЖ | Обучение Tekla Structures | Купить Tekla Structures
Разработка КМД | Разработка КМ | Разработка КЖ | Обучение Tekla Structures | Купить Tekla Structures
-
Fedorov_dtxxx
- Сообщения: 7
- Регистрация: 01 дек 2016, 13:34
Re: Не вставляется Вставка таблиц и Вставка текста
Пробовал все возможные варианты, не слушается и все....
Спасибо за советы, вот решил записать видео:
1. Запустил среду Топинженер от Админа
2. Запустил Tekla Structures 2016
3. Запустил среду под Tekla Structures 2016
И все равно не хочет, может требуются какие то обновления для Windows-7
Спасибо за советы, вот решил записать видео:
1. Запустил среду Топинженер от Админа
2. Запустил Tekla Structures 2016
3. Запустил среду под Tekla Structures 2016
И все равно не хочет, может требуются какие то обновления для Windows-7
- Вложения
-
- Не вставляется текст на лист.wmv
- (3.26 МБ) 1458 скачиваний
Re: Не вставляется Вставка таблиц и Вставка текста
1. Если вдруг не перезагружались — перезагрузитесьFedorov_dtxxx писал(а): ↑19 мар 2017, 20:03Пробовал все возможные варианты, не слушается и все....
Спасибо за советы, вот решил записать видео:
1. Запустил среду Топинженер от Админа
2. Запустил Tekla Structures 2016
3. Запустил среду под Tekla Structures 2016
И все равно не хочет, может требуются какие то обновления для Windows-7
2. Если TopEngineer Updater не запущен — запустите
3. Запустите теклу прямо из апдейтера, нажатием на показанную кнопку: 4. Откройте модель, запустите велдап
5. Если вставка текста всё ещё не работает — проверьте работает ли, например, ручная сварка
-
Fedorov_dtxxx
- Сообщения: 7
- Регистрация: 01 дек 2016, 13:34
Re: Не вставляется Вставка таблиц и Вставка текста
Провел все манипуляции с бубном, все в точной последовательности но увы не хочет.
Сварка ручная и автомат работает исключительно а вот вкладка Вставка таблицы и Вставка текста не работает.
А так работает все нормально в штатном бережном режиме.
Спасибо за помощь, но надеюсь поможете решить все же проблему полностью.
Сварка ручная и автомат работает исключительно а вот вкладка Вставка таблицы и Вставка текста не работает.
А так работает все нормально в штатном бережном режиме.
Спасибо за помощь, но надеюсь поможете решить все же проблему полностью.
Re: Не вставляется Вставка таблиц и Вставка текста
А, ну раз вставка работает тогда понятнее стало, это нужно с нашей стороны подправить под седьмую винду.Fedorov_dtxxx писал(а): ↑20 мар 2017, 11:39Провел все манипуляции с бубном, все в точной последовательности но увы не хочет.
Сварка ручная и автомат работает исключительно а вот вкладка Вставка таблицы и Вставка текста не работает.
А так работает все нормально в штатном бережном режиме.
Спасибо за помощь, но надеюсь поможете решить все же проблему полностью.
Кстати, очень поможет если вы сможете добавить меня в скайпе (TopEngineer.ru) и помочь потестировать исправления, у нас в офисе нет компьютеров на семёрке.
-
Fedorov_dtxxx
- Сообщения: 7
- Регистрация: 01 дек 2016, 13:34
Re: Не вставляется Вставка таблиц и Вставка текста
Спасибо
будем ждать обновление 
phpbb3 styles
Кто сейчас на конференции
Сейчас этот форум просматривают: нет зарегистрированных пользователей и 9 гостей

