Ведомость элементов в КМ
-
Евгений_71
- Сообщения: 6
- Регистрация: 13 мар 2016, 23:32
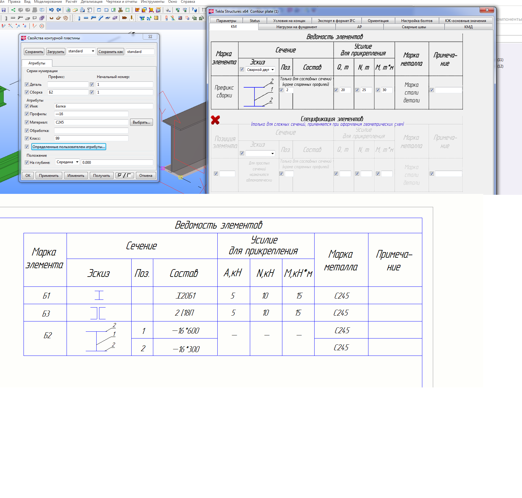
Ведомость элементов в КМ
Не выводит усилия в сварных элементах в ведомости элементов для КМ, такая же история для компоновки если элемент сложный. Не знаете в чем может быть проблема???
phpbb3 styles
Кто сейчас на конференции
Сейчас этот форум просматривают: нет зарегистрированных пользователей и 12 гостей

