Вопросы и замечания по КМД
Вопросы и замечания по КМД
Добрый день,
Просьба в этой ветке писать в чем мы накасячили с КМД, чего добавить нового или что некорректно работает.
Просьба в этой ветке писать в чем мы накасячили с КМД, чего добавить нового или что некорректно работает.
Администратор Topengineer.ru 8 (495) 215-07-79 (офис) ; 8 (925) 755-9316 (сот.); Skype: perezhog
Разработка КМД | Разработка КМ | Обучение Tekla Structures
Разработка КМД | Разработка КМ | Обучение Tekla Structures
Re: Вопросы и замечания по КМД
от rka был вопрос (перенес сюда): Просьба выложить небольшой пример модельки с типовыми сборками и чертежами, чтобы детали, сборки, болты, сварки корректно отображались в чертежах и отчетах.
Модель выложу.
Модель выложу.
Администратор Topengineer.ru 8 (495) 215-07-79 (офис) ; 8 (925) 755-9316 (сот.); Skype: perezhog
Разработка КМД | Разработка КМ | Обучение Tekla Structures
Разработка КМД | Разработка КМ | Обучение Tekla Structures
Re: Вопросы и замечания по КМД
для отображения стрелок в символе сечении
XS_SECTION_SYMBOL_LEFT_ARROW_SYMBOL sections@1
XS_SECTION_SYMBOL_RIGHT_ARROW_SYMBOL sections@0
XS_SECTION_SYMBOL_LEFT_ARROW_SYMBOL sections@1
XS_SECTION_SYMBOL_RIGHT_ARROW_SYMBOL sections@0
Re: Запуск Среды TopEngineer. Установщик Topengineer-Updater
Среда запустилась спассибо... Не совсем разобрался, отчеты по болтам теперь не создаются отдельно, только на листах проекта в монтажках?
Re: Запуск Среды TopEngineer. Установщик Topengineer-Updater
После нумерации модели перестала работать функция запросить объект...
Re: Вопросы и замечания по КМД
Отчеты проверяю и добавляю.
Пока можете взять старые из КМДРУС
Пока можете взять старые из КМДРУС
Администратор Topengineer.ru 8 (495) 215-07-79 (офис) ; 8 (925) 755-9316 (сот.); Skype: perezhog
Разработка КМД | Разработка КМ | Обучение Tekla Structures
Разработка КМД | Разработка КМ | Обучение Tekla Structures
Re: Вопросы и замечания по КМД
отчеты по запросить объект, добавлю, пока можете вручную добавить .....Environments\Topengineer\template
- Вложения
-
template.rar- (31.24 КБ) 2997 скачиваний
Администратор Topengineer.ru 8 (495) 215-07-79 (офис) ; 8 (925) 755-9316 (сот.); Skype: perezhog
Разработка КМД | Разработка КМ | Обучение Tekla Structures
Разработка КМД | Разработка КМ | Обучение Tekla Structures
Re: Вопросы и замечания по КМД
По профилям на двутавры по ГОСТ 19425-74, нарисованы немного не так, скругление симметрично...
Re: Вопросы и замечания по КМД
1. В ведомостях масса всех элементов ="0.0"
2. В ведомостях в екселе вместо цифровых значений даты...........
2. В ведомостях в екселе вместо цифровых значений даты...........
Re: Вопросы и замечания по КМД
1. По поводу дат:
В текле разделитель дробной части точка, соответственно точки ексель понял как даты, у себя я поставил в панель управления-региональные настройки формат дат через /
2. Про 0 вес:
Скорее всего вы пробуете генерериовать отчет на готовом проекте сделанном не в новой среде, зайдите в пользовательские свойства проекта и в настройках подсчета веса заполните что хотите увидеть и нажмите изменить.
В текле разделитель дробной части точка, соответственно точки ексель понял как даты, у себя я поставил в панель управления-региональные настройки формат дат через /
2. Про 0 вес:
Скорее всего вы пробуете генерериовать отчет на готовом проекте сделанном не в новой среде, зайдите в пользовательские свойства проекта и в настройках подсчета веса заполните что хотите увидеть и нажмите изменить.
Администратор Topengineer.ru 8 (495) 215-07-79 (офис) ; 8 (925) 755-9316 (сот.); Skype: perezhog
Разработка КМД | Разработка КМ | Обучение Tekla Structures
Разработка КМД | Разработка КМ | Обучение Tekla Structures
Re: Вопросы и замечания по КМД
Спасибо. все поправил. все заработало.
Так как новая среда TopEngineer не "дружит" с КМД РУС v.2 , то может подскажите, как "форматнуть" модель, которая на 90% готова и частично выпущены чертежи в производство, для нормальной работы в новой среде?
Или доделывать в КМД РУС, а только новые проекты можно будет начать в среде TopEngineer?
Так как новая среда TopEngineer не "дружит" с КМД РУС v.2 , то может подскажите, как "форматнуть" модель, которая на 90% готова и частично выпущены чертежи в производство, для нормальной работы в новой среде?
Или доделывать в КМД РУС, а только новые проекты можно будет начать в среде TopEngineer?
Re: Вопросы и замечания по КМД
Ну проблема встала когда серьезно занялись КМ.
Пробелы в имени профиля мешали, пришлось убрать. В остальном, если скопируете базу профилей в новую среду она совместима с КМД РУС v.2 , единственно нужно зайти в пользовательские свойства проекта заполнить и нажать изменить.
Конечно если в модели сделаны чертежи придется копировать файл компановок и таблицы.
Сейчас глобальная задача доделать установщик, пока программисты доделают мы добавим все отчеты и доведем до ума среду.
Пробелы в имени профиля мешали, пришлось убрать. В остальном, если скопируете базу профилей в новую среду она совместима с КМД РУС v.2 , единственно нужно зайти в пользовательские свойства проекта заполнить и нажать изменить.
Конечно если в модели сделаны чертежи придется копировать файл компановок и таблицы.
Сейчас глобальная задача доделать установщик, пока программисты доделают мы добавим все отчеты и доведем до ума среду.
Администратор Topengineer.ru 8 (495) 215-07-79 (офис) ; 8 (925) 755-9316 (сот.); Skype: perezhog
Разработка КМД | Разработка КМ | Обучение Tekla Structures
Разработка КМД | Разработка КМ | Обучение Tekla Structures
Re: Вопросы и замечания по КМД
Когда можно будет приобрести новую среду?
Re: Вопросы и замечания по КМД
распаковка обновлений не совсем точно указана директория : c:\TeklaStructures\xx.x\Bitmaps\
приходится папку [bitmaps] вручную перекидывать в : c:\TeklaStructures\xx.x\nt\bitmaps\
приходится папку [bitmaps] вручную перекидывать в : c:\TeklaStructures\xx.x\nt\bitmaps\
Re: Вопросы и замечания по КМД
Подскажите пожалуйста, как включить вес линий в чертеже при режиме "черно-белый" ?
Re: Вопросы и замечания по КМД
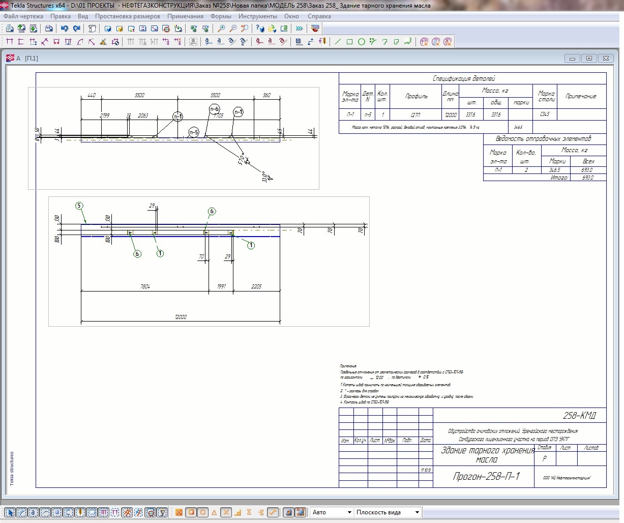
Изображение двутавра в спецификации сказочное
- Pomogalkina
- Сообщения: 26
- Регистрация: 20 июн 2012, 13:45
Re: Вопросы и замечания по КМД
Здравствуйте. похожий вопрос уже был, но ответа я не увидела.
в среде топинженер создала сборку, сварка в ней присутствует. в свойствах проекта задала 1,5% на наплавку.
в чертеже сборки общий вес сборки считает правильно с учетом наплавки, но в самой таблице сварка отображается нулем.
что исправить?
в среде топинженер создала сборку, сварка в ней присутствует. в свойствах проекта задала 1,5% на наплавку.
в чертеже сборки общий вес сборки считает правильно с учетом наплавки, но в самой таблице сварка отображается нулем.
что исправить?
- Pomogalkina
- Сообщения: 26
- Регистрация: 20 июн 2012, 13:45
Re: Вопросы и замечания по КМД
Pomogalkina
Как я писал ранее, вы пытаетесь открыть модель сделанную в среде КМД_РУС в Topengineer. Попробуйте зайти в пользовательские свойства проекта и нажать изменить-ок.
Были добавлены нове переменные, они сразу не подхватываются.
PPS
По поводу стертых названий полей, к сожалению пока не знаю, как их победить, буду пробовать.
Как я писал ранее, вы пытаетесь открыть модель сделанную в среде КМД_РУС в Topengineer. Попробуйте зайти в пользовательские свойства проекта и нажать изменить-ок.
Были добавлены нове переменные, они сразу не подхватываются.
PPS
По поводу стертых названий полей, к сожалению пока не знаю, как их победить, буду пробовать.
Администратор Topengineer.ru 8 (495) 215-07-79 (офис) ; 8 (925) 755-9316 (сот.); Skype: perezhog
Разработка КМД | Разработка КМ | Обучение Tekla Structures
Разработка КМД | Разработка КМ | Обучение Tekla Structures
- Pomogalkina
- Сообщения: 26
- Регистрация: 20 июн 2012, 13:45
Re: Вопросы и замечания по КМД
Alex, перед тем, как написать на форум, я попробовала оба способа. то есть сначала проверила на старой созданной модели в кмд рус 2 , а помом создала абсолютно новую модель в среде топинженер. и проблема повторилась. после вашего ответа перезагрузила комп. создала все с чистого листа. к сожалению проблема осталась. а у других ее точно нет?
Re: Вопросы и замечания по КМД
А будет включена спецификация деталей сборок для комплексного чертежа ? 
Re: Вопросы и замечания по КМД
Мой вопрос от 14 октября 2013 остался как бы без ответа. Вроде анонсировали адекватное отображение двутавра в спецификации еще в более ранних версиях среды. На деле же видимых изменений нет.
Последний раз редактировалось Алексей 17 окт 2013, 07:25, всего редактировалось 1 раз.
- Pomogalkina
- Сообщения: 26
- Регистрация: 20 июн 2012, 13:45
Re: Вопросы и замечания по КМД
В шаблоне "Спецификация деталей" массу наплавленного металла отображает нулем (хотя в свойствах проекта она задана 1,5%) потому что процент раскроя у меня стоит 0
как только задаю процент раскроя, массу наплавленного начинает отображать в спецификации вместе с раскроем
а мне например раскрой в спецификации не нужен. почему они связаны, и можно ли это как нибудь исправить?
как только задаю процент раскроя, массу наплавленного начинает отображать в спецификации вместе с раскроем
а мне например раскрой в спецификации не нужен. почему они связаны, и можно ли это как нибудь исправить?
-
khadeyev
- Сообщения: 41
- Регистрация: 22 июл 2013, 17:50
- Откуда: Россия, г.Новоуральск Свердловская область
Re: Вопросы и замечания по КМД
Доброе утро. у меня проблема возникла со средой топинженер:
1. При формировании сборочного чертежа в спецификацию входит только основная деталь, а остальные не попадают. хотя в этой моделе ранее были сделаны чертежи колонн и ригелей, там было всё правильно. Что я мог сделать не так? вроде всё проверил, но ошибки найти не могу (текла 19 ср1, операционка win7).
2. Ещё момент. попробовал сформировать дальше чертежи сборок фахверковых колонн. опять в состав спецификации не вошли правда две детали. это уголки 90х7
1. При формировании сборочного чертежа в спецификацию входит только основная деталь, а остальные не попадают. хотя в этой моделе ранее были сделаны чертежи колонн и ригелей, там было всё правильно. Что я мог сделать не так? вроде всё проверил, но ошибки найти не могу (текла 19 ср1, операционка win7).
2. Ещё момент. попробовал сформировать дальше чертежи сборок фахверковых колонн. опять в состав спецификации не вошли правда две детали. это уголки 90х7
Последний раз редактировалось khadeyev 17 окт 2013, 12:13, всего редактировалось 1 раз.
Re: Вопросы и замечания по КМД
Pomogalkina
попробуйте заменить спецификацию во вложении
khadeyev
попробуйте высланную спецификацию
попробуйте заменить спецификацию во вложении
khadeyev
попробуйте высланную спецификацию
- Вложения
-
G_A_Спецификация деталей сборки.rar- (5.64 КБ) 2760 скачиваний
Администратор Topengineer.ru 8 (495) 215-07-79 (офис) ; 8 (925) 755-9316 (сот.); Skype: perezhog
Разработка КМД | Разработка КМ | Обучение Tekla Structures
Разработка КМД | Разработка КМ | Обучение Tekla Structures
- Таран Д. А.
- Администратор
- Сообщения: 2877
- Регистрация: 30 ноя 2011, 18:41
- Откуда: г. Москва
- Контактная информация:
Re: Вопросы и замечания по КМД
Ну вы хоть скрины то обрезайте. Реально они просто огромны.khadeyev писал(а):Доброе утро. у меня проблема возникла со средой топинженер:
1. При формировании сборочного чертежа в спецификацию входит только основная деталь, а остальные не попадают. хотя в этой моделе ранее были сделаны чертежи колонн и ригелей, там было всё правильно. Что я мог сделать не так? вроде всё проверил, но ошибки найти не могу (текла 19 ср1, операционка win7).
2. Ещё момент. попробовал сформировать дальше чертежи сборок фахверковых колонн. опять в состав спецификации не вошли правда две детали. это уголки 90х7
Администратор Topengineer.ru 8 (495) 215-07-79 (офис) ; 8 (925) 755-9318 (сот.); Skype wildomen ; http://vk.com/tekla_structures
Разработка КМД | Разработка КМ | Разработка КЖ | Обучение Tekla Structures | Купить Tekla Structures
Разработка КМД | Разработка КМ | Разработка КЖ | Обучение Tekla Structures | Купить Tekla Structures
-
khadeyev
- Сообщения: 41
- Регистрация: 22 июл 2013, 17:50
- Откуда: Россия, г.Новоуральск Свердловская область
Re: Вопросы и замечания по КМД
ИСПРАВИЛ)))
Таран Д. А. писал(а):Ну вы хоть скрины то обрезайте. Реально они просто огромны.khadeyev писал(а):Доброе утро. у меня проблема возникла со средой топинженер:
1. При формировании сборочного чертежа в спецификацию входит только основная деталь, а остальные не попадают. хотя в этой моделе ранее были сделаны чертежи колонн и ригелей, там было всё правильно. Что я мог сделать не так? вроде всё проверил, но ошибки найти не могу (текла 19 ср1, операционка win7).
2. Ещё момент. попробовал сформировать дальше чертежи сборок фахверковых колонн. опять в состав спецификации не вошли правда две детали. это уголки 90х7![]()
![]()
-
khadeyev
- Сообщения: 41
- Регистрация: 22 июл 2013, 17:50
- Откуда: Россия, г.Новоуральск Свердловская область
Re: Вопросы и замечания по КМД
Попробывал, но к сожалению не помоглоAlex писал(а):Pomogalkina
попробуйте заменить спецификацию во вложении
khadeyev
попробуйте высланную спецификацию
Re: Вопросы и замечания по КМД
khadeyev
По поводу Pomogalkina был наш косяк.
По поводу вашей модели даже не знаю, можете ее прислать?
По поводу Pomogalkina был наш косяк.
По поводу вашей модели даже не знаю, можете ее прислать?
Администратор Topengineer.ru 8 (495) 215-07-79 (офис) ; 8 (925) 755-9316 (сот.); Skype: perezhog
Разработка КМД | Разработка КМ | Обучение Tekla Structures
Разработка КМД | Разработка КМ | Обучение Tekla Structures
-
khadeyev
- Сообщения: 41
- Регистрация: 22 июл 2013, 17:50
- Откуда: Россия, г.Новоуральск Свердловская область
Re: Вопросы и замечания по КМД
Могу. по какому адресу её отправить? Может быть я, что то не так сделал. Но вроде всё проверил, что мог.Alex писал(а):khadeyev
По поводу Pomogalkina был наш косяк.
По поводу вашей модели даже не знаю, можете ее прислать?
Re: Вопросы и замечания по КМД
info@topengineer.ru посмотреть смогу во вторник
Администратор Topengineer.ru 8 (495) 215-07-79 (офис) ; 8 (925) 755-9316 (сот.); Skype: perezhog
Разработка КМД | Разработка КМ | Обучение Tekla Structures
Разработка КМД | Разработка КМ | Обучение Tekla Structures
Re: Вопросы и замечания по КМД
Добрый день. Вопрос уже поднимался, но описанный здесь способ у меня не сработал.
В ведомостях отправочных марок, в графе масса - нули.
Зашел в файл>>>свойства проекта>>>>определенные пользователем атрибуты>>>параметры подсчета веса, поставил галочку "нетто".
Наплавка и раскрой - единица. Генерирую заново ведомости, все равно нули. Что делать?
В ведомостях отправочных марок, в графе масса - нули.
Зашел в файл>>>свойства проекта>>>>определенные пользователем атрибуты>>>параметры подсчета веса, поставил галочку "нетто".
Наплавка и раскрой - единица. Генерирую заново ведомости, все равно нули. Что делать?
- Таран Д. А.
- Администратор
- Сообщения: 2877
- Регистрация: 30 ноя 2011, 18:41
- Откуда: г. Москва
- Контактная информация:
Re: Вопросы и замечания по КМД
Проверь материал.zmkkontur писал(а):Добрый день. Вопрос уже поднимался, но описанный здесь способ у меня не сработал.
В ведомостях отправочных марок, в графе масса - нули.
Зашел в файл>>>свойства проекта>>>>определенные пользователем атрибуты>>>параметры подсчета веса, поставил галочку "нетто".
Наплавка и раскрой - единица. Генерирую заново ведомости, все равно нули. Что делать?
Администратор Topengineer.ru 8 (495) 215-07-79 (офис) ; 8 (925) 755-9318 (сот.); Skype wildomen ; http://vk.com/tekla_structures
Разработка КМД | Разработка КМ | Разработка КЖ | Обучение Tekla Structures | Купить Tekla Structures
Разработка КМД | Разработка КМ | Разработка КЖ | Обучение Tekla Structures | Купить Tekla Structures
Re: Вопросы и замечания по КМД
S235, родная среда все считала
- Таран Д. А.
- Администратор
- Сообщения: 2877
- Регистрация: 30 ноя 2011, 18:41
- Откуда: г. Москва
- Контактная информация:
Re: Вопросы и замечания по КМД
В нашей среде нет такой. Вообще в природе нет такой есть C235zmkkontur писал(а):S235, родная среда все считала
Замени все стали по фильтру. Если все одинаковые то просто всем из каталога выбери.
Администратор Topengineer.ru 8 (495) 215-07-79 (офис) ; 8 (925) 755-9318 (сот.); Skype wildomen ; http://vk.com/tekla_structures
Разработка КМД | Разработка КМ | Разработка КЖ | Обучение Tekla Structures | Купить Tekla Structures
Разработка КМД | Разработка КМ | Разработка КЖ | Обучение Tekla Structures | Купить Tekla Structures
Re: Вопросы и замечания по КМД
спасибо
- Pomogalkina
- Сообщения: 26
- Регистрация: 20 июн 2012, 13:45
Re: Вопросы и замечания по КМД
Alex, спасибо, теперь спецификация работает нормально, массу наплавненного считает как надо 
Re: Вопросы и замечания по КМД
Добрый день, возникает проблема со шрифтами, вылазят за пределы ячеек таблиц. Как с этим бороться?
Re: Вопросы и замечания по КМД
установить нужный шрифт
Re: Вопросы и замечания по КМД
Гостовские шрифты стоят, какой нужно ставить? Потом проблема не в самом шрифте а в его размещении и (или) размере знаков.
Re: Вопросы и замечания по КМД
если бы стоял, такого бы не было. на картинке видно, что гостовский шрифт подменяется другим
криво стоит значит
криво стоит значит
Re: Вопросы и замечания по КМД
В автокад, спдс, солидворкс работают. Вы не могли бы приложить файл нужного шрифта.
Re: Вопросы и замечания по КМД
Вручную изменил все шрифты через Инструменты → Параметры → Расширенные параметры
на GOST2304A
после перезапуска программы шрифт DRAWINGS - снова Arial, так что дело в среде судя по всему, при этом шрифты в модели изменились на гост
на GOST2304A
после перезапуска программы шрифт DRAWINGS - снова Arial, так что дело в среде судя по всему, при этом шрифты в модели изменились на гост
-
khadeyev
- Сообщения: 41
- Регистрация: 22 июл 2013, 17:50
- Откуда: Россия, г.Новоуральск Свердловская область
Re: Вопросы и замечания по КМД
Подскажите пожалуйста. При выполнении ИНСТРУМЕНТЫ - ДИАГНОСТИКА И ИСПРАВЛЕНИЕ МОДЕЛИ появляется следующие сообщение
Что это значит и как с этим бороться? сортамент перечисленный в сообщении в модели не применялся. Это сообщение появляется даже если в модели всего пару балок. 
Re: Вопросы и замечания по КМД
У меня тоже самое в самом начале при создании нового проекта.khadeyev писал(а):Подскажите пожалуйста. При выполнении ИНСТРУМЕНТЫ - ДИАГНОСТИКА И ИСПРАВЛЕНИЕ МОДЕЛИ появляется следующие сообщениеЧто это значит и как с этим бороться? сортамент перечисленный в сообщении в модели не применялся. Это сообщение появляется даже если в модели всего пару балок.
Re: Вопросы и замечания по КМД
эта ошибка возникает когда начинали модель в старой версии среды а продолжаете в новой.
вариант когда взяли старую модель удалили все и начали новый проект не подходит
отличие новой среды: убрали пробелы в имени профиля, для лучшей связи с расчетными комплексами.
вариант когда взяли старую модель удалили все и начали новый проект не подходит
отличие новой среды: убрали пробелы в имени профиля, для лучшей связи с расчетными комплексами.
Администратор Topengineer.ru 8 (495) 215-07-79 (офис) ; 8 (925) 755-9316 (сот.); Skype: perezhog
Разработка КМД | Разработка КМ | Обучение Tekla Structures
Разработка КМД | Разработка КМ | Обучение Tekla Structures
-
khadeyev
- Сообщения: 41
- Регистрация: 22 июл 2013, 17:50
- Откуда: Россия, г.Новоуральск Свердловская область
Re: Вопросы и замечания по КМД
я создаю абсолютно новую модель. ошибка всё равноAlex писал(а):эта ошибка возникает когда начинали модель в старой версии среды а продолжаете в новой.
вариант когда взяли старую модель удалили все и начали новый проект не подходит
отличие новой среды: убрали пробелы в имени профиля, для лучшей связи с расчетными комплексами.
Re: Вопросы и замечания по КМД
аналогично
Re: Вопросы и замечания по КМД
Похоже причина в нестандартных компонентах - там профиля старые остались.
Re: Вопросы и замечания по КМД
ошибка из за компонентах в них еще пробелы в профилях не убрали.
профиля в компонентах обновим при следующем обновлении среды
профиля в компонентах обновим при следующем обновлении среды
Администратор Topengineer.ru 8 (495) 215-07-79 (офис) ; 8 (925) 755-9316 (сот.); Skype: perezhog
Разработка КМД | Разработка КМ | Обучение Tekla Structures
Разработка КМД | Разработка КМ | Обучение Tekla Structures
Re: Вопросы и замечания по КМД
Что нужно сделать чтобы в отчет по метизам включались пружинные шайбы? Пробовал добавить в каталог болтов - не помогает, а также в свойствах болта пользовательские атрибуты поставил переключатель "да" - не помогает.
- Pomogalkina
- Сообщения: 26
- Регистрация: 20 июн 2012, 13:45
Re: Вопросы и замечания по КМД
Ув. разработчики среды topengineer, я правильно понимаю, что для мультичертежей сборок нет шаблонов для спецификации деталей, ведомости металла, ведомости отправочных элементов? они нам очень-очень нужны!
Re: Вопросы и замечания по КМД
Pomogalkina писал(а):Ув. разработчики среды topengineer, я правильно понимаю, что для мультичертежей сборок нет шаблонов для спецификации деталей, ведомости металла, ведомости отправочных элементов? они нам очень-очень нужны!
Re: Вопросы и замечания по КМД
пока нет,
добавим, так же добавим программку которая ассоциирует сборочные чертежи с мульти (стрианицы и т.д)
добавим, так же добавим программку которая ассоциирует сборочные чертежи с мульти (стрианицы и т.д)
Администратор Topengineer.ru 8 (495) 215-07-79 (офис) ; 8 (925) 755-9316 (сот.); Skype: perezhog
Разработка КМД | Разработка КМ | Обучение Tekla Structures
Разработка КМД | Разработка КМ | Обучение Tekla Structures
Re: Вопросы и замечания по КМД
Почему то после обновления среды на кнопках панели инструментов TopEngineer одни крестики? Что делать? Заново вручную создавать панель?
- Таран Д. А.
- Администратор
- Сообщения: 2877
- Регистрация: 30 ноя 2011, 18:41
- Откуда: г. Москва
- Контактная информация:
Re: Вопросы и замечания по КМД
Они управляют плагинами. Они берутся в экстранете. К сожалению распространять их мы не можем. Как только вы их установите кнопочки будут с картинками и работать.saveall писал(а):Почему то после обновления среды на кнопках панели инструментов TopEngineer одни крестики? Что делать? Заново вручную создавать панель?
Администратор Topengineer.ru 8 (495) 215-07-79 (офис) ; 8 (925) 755-9318 (сот.); Skype wildomen ; http://vk.com/tekla_structures
Разработка КМД | Разработка КМ | Разработка КЖ | Обучение Tekla Structures | Купить Tekla Structures
Разработка КМД | Разработка КМ | Разработка КЖ | Обучение Tekla Structures | Купить Tekla Structures
Re: Вопросы и замечания по КМД
Так до этого же все работало. Только после последнего обновления перестало.Таран Д. А. писал(а):Они управляют плагинами. Они берутся в экстранете. К сожалению распространять их мы не можем. Как только вы их установите кнопочки будут с картинками и работать.saveall писал(а):Почему то после обновления среды на кнопках панели инструментов TopEngineer одни крестики? Что делать? Заново вручную создавать панель?
Re: Вопросы и замечания по КМД
Добрый день, Денис! Как сделать разрезы не латинскими буквами, а цифрами?
Re: Вопросы и замечания по КМД
Почему в среде гнутый швеллер изображается без наружного радиуса закругления?
Это же не правильно!
Это же не правильно!
- Таран Д. А.
- Администратор
- Сообщения: 2877
- Регистрация: 30 ноя 2011, 18:41
- Откуда: г. Москва
- Контактная информация:
Re: Вопросы и замечания по КМД
Обновитьсяsanybod писал(а):Добрый день, Денис! Как сделать разрезы не латинскими буквами, а цифрами?
Администратор Topengineer.ru 8 (495) 215-07-79 (офис) ; 8 (925) 755-9318 (сот.); Skype wildomen ; http://vk.com/tekla_structures
Разработка КМД | Разработка КМ | Разработка КЖ | Обучение Tekla Structures | Купить Tekla Structures
Разработка КМД | Разработка КМ | Разработка КЖ | Обучение Tekla Structures | Купить Tekla Structures
Re: Вопросы и замечания по КМД
Подскажите в каком месте в отчетах спецификация деталей сборки и ведомость металла на сборку происходит "отсечение" профилей, в которых был внесен пользовательский атрибут как нестандартный крепеж? Вроде как поле атрибута USERDEFINED.Naimenovanie_bolt, но не могу найти где он встречается в выше перечисленных отчетах.
Re: Вопросы и замечания по КМД
И тишина.....................................
Еще.
На выборке и на отправочных где-то ошибка, но с виду формулы одинаковые стоят как в спецификации.
Еще.
На выборке и на отправочных где-то ошибка, но с виду формулы одинаковые стоят как в спецификации.
- Таран Д. А.
- Администратор
- Сообщения: 2877
- Регистрация: 30 ноя 2011, 18:41
- Откуда: г. Москва
- Контактная информация:
Re: Вопросы и замечания по КМД
Надо смотреть. У нас то все работает. Скинь модель. Потестим.PPS писал(а):И тишина.....................................
Еще.
На выборке и на отправочных где-то ошибка, но с виду формулы одинаковые стоят как в спецификации.
Администратор Topengineer.ru 8 (495) 215-07-79 (офис) ; 8 (925) 755-9318 (сот.); Skype wildomen ; http://vk.com/tekla_structures
Разработка КМД | Разработка КМ | Разработка КЖ | Обучение Tekla Structures | Купить Tekla Structures
Разработка КМД | Разработка КМ | Разработка КЖ | Обучение Tekla Structures | Купить Tekla Structures
Re: Вопросы и замечания по КМД
После обновления среды вот - в выборке масса такая же как в спецификации с наплавкой.
, но хоть не выше как прежде.
Зато в отправочных хрень осталась.
Может подскажете, где исправление делаете. Руками быстрее получится, чем ждать обновление.
ps и на это "военная" тайна или просто игнор "Подскажите в каком месте в отчетах спецификация деталей сборки и ведомость металла на сборку происходит "отсечение" (не попадание в спецификацию) профилей, в которых был внесен пользовательский атрибут как нестандартный крепеж?"
Зато в отправочных хрень осталась.
Может подскажете, где исправление делаете. Руками быстрее получится, чем ждать обновление.
ps и на это "военная" тайна или просто игнор "Подскажите в каком месте в отчетах спецификация деталей сборки и ведомость металла на сборку происходит "отсечение" (не попадание в спецификацию) профилей, в которых был внесен пользовательский атрибут как нестандартный крепеж?"
- Таран Д. А.
- Администратор
- Сообщения: 2877
- Регистрация: 30 ноя 2011, 18:41
- Откуда: г. Москва
- Контактная информация:
Re: Вопросы и замечания по КМД
Запустите обновление средыPPS писал(а):После обновления среды вот - в выборке масса такая же как в спецификации с наплавкой., но хоть не выше как прежде.
Зато в отправочных хрень осталась.
Может подскажете, где исправление делаете. Руками быстрее получится, чем ждать обновление.
ps и на это "военная" тайна или просто игнор "Подскажите в каком месте в отчетах спецификация деталей сборки и ведомость металла на сборку происходит "отсечение" (не попадание в спецификацию) профилей, в которых был внесен пользовательский атрибут как нестандартный крепеж?"
Администратор Topengineer.ru 8 (495) 215-07-79 (офис) ; 8 (925) 755-9318 (сот.); Skype wildomen ; http://vk.com/tekla_structures
Разработка КМД | Разработка КМ | Разработка КЖ | Обучение Tekla Structures | Купить Tekla Structures
Разработка КМД | Разработка КМ | Разработка КЖ | Обучение Tekla Structures | Купить Tekla Structures
Re: Вопросы и замечания по КМД
на предыдущем посте скрины это после вчерашнего обновления, больше не обновляетсяТаран Д. А. писал(а): Запустите обновление среды
- Таран Д. А.
- Администратор
- Сообщения: 2877
- Регистрация: 30 ноя 2011, 18:41
- Откуда: г. Москва
- Контактная информация:
Re: Вопросы и замечания по КМД
Я протестировал у меня вас норм.PPS писал(а):на предыдущем посте скрины это после вчерашнего обновления, больше не обновляетсяТаран Д. А. писал(а): Запустите обновление среды
Администратор Topengineer.ru 8 (495) 215-07-79 (офис) ; 8 (925) 755-9318 (сот.); Skype wildomen ; http://vk.com/tekla_structures
Разработка КМД | Разработка КМ | Разработка КЖ | Обучение Tekla Structures | Купить Tekla Structures
Разработка КМД | Разработка КМ | Разработка КЖ | Обучение Tekla Structures | Купить Tekla Structures
Re: Вопросы и замечания по КМД
А можете отдельно tpl-ки выборки и отправочных сбросить, которые у Вас?Таран Д. А. писал(а): Я протестировал у меня вас норм.
- Таран Д. А.
- Администратор
- Сообщения: 2877
- Регистрация: 30 ноя 2011, 18:41
- Откуда: г. Москва
- Контактная информация:
Re: Вопросы и замечания по КМД
У нас такая же среда как и у всех.PPS писал(а):А можете отдельно tpl-ки выборки и отправочных сбросить, которые у Вас?Таран Д. А. писал(а): Я протестировал у меня вас норм.
Администратор Topengineer.ru 8 (495) 215-07-79 (офис) ; 8 (925) 755-9318 (сот.); Skype wildomen ; http://vk.com/tekla_structures
Разработка КМД | Разработка КМ | Разработка КЖ | Обучение Tekla Structures | Купить Tekla Structures
Разработка КМД | Разработка КМ | Разработка КЖ | Обучение Tekla Structures | Купить Tekla Structures
Re: Вопросы и замечания по КМД
Вечером опять какое-то обновление прошло, но проблему не решил.

В ячейке итого в формуле выборка металла стоит таже формула, что и в спецификации деталей с наплавкой и раскроем?
Понятно, что можно самому исправить я поэтому и спрашиваю выше про "нестандарт".
ps БУДЕТ ИСПРАВЛЕНИЕ ПО ПРОФИЛЯМ, КАСАЕТСЯ ДВУТАВРОВ М ГОСТ 19425 и ГНУТЫЙ ШВЕЛЛЕР???
Я так понял на моей модели у Вас все нормально показывает? Но как?Таран Д. А. писал(а): Я протестировал у меня вас норм.
В ячейке итого в формуле выборка металла стоит таже формула, что и в спецификации деталей с наплавкой и раскроем?
Понятно, что можно самому исправить я поэтому и спрашиваю выше про "нестандарт".
ps БУДЕТ ИСПРАВЛЕНИЕ ПО ПРОФИЛЯМ, КАСАЕТСЯ ДВУТАВРОВ М ГОСТ 19425 и ГНУТЫЙ ШВЕЛЛЕР???
Re: Вопросы и замечания по КМД
1. Так выглядит I24М в среде topengineer.
2. Так выглядит I24М в среде russia.
Как говорится найди 3 отличия.
2. Так выглядит I24М в среде russia.
Как говорится найди 3 отличия.
Re: Вопросы и замечания по КМД
Сам отвечу.
XS_CS_CHAMFER_DIVIDE_ANGLE
изменяя этот параметр изменяется количество "скругляемых" фасок в сечении профиля, хотя в руководстве написано
Служит для изменения углов, по которым делится фаска поперечного сечения. и пример дурацкий.
в среде стояло 5, поэтому 5 фасок и скруглялись.
XS_CS_CHAMFER_DIVIDE_ANGLE
изменяя этот параметр изменяется количество "скругляемых" фасок в сечении профиля, хотя в руководстве написано
Служит для изменения углов, по которым делится фаска поперечного сечения. и пример дурацкий.
в среде стояло 5, поэтому 5 фасок и скруглялись.
- Danila_ZLT
- Сообщения: 603
- Регистрация: 02 окт 2012, 12:14
- Откуда: Златоуст
- Контактная информация:
Re: Вопросы и замечания по КМД
Возвращаясь к таблицам на сборку.
В выборке металла не понятно зачем считаете массу с наплавкой, ну да ладно.
А вот с ведомостью отправочных вообще загадка. Показывает верную массу только после удаления балок с атрибутом крепеж
Хотя в остальные спецификации все верно.
Еще при редактировании формулы поле Итог пишет неверный атрибут "PROJECT.USERDEFINED.PR_WEIGHT_TYPE" - это где НЕТТО и БРУТТО
В выборке металла не понятно зачем считаете массу с наплавкой, ну да ладно.
А вот с ведомостью отправочных вообще загадка. Показывает верную массу только после удаления балок с атрибутом крепеж
Еще при редактировании формулы поле Итог пишет неверный атрибут "PROJECT.USERDEFINED.PR_WEIGHT_TYPE" - это где НЕТТО и БРУТТО
- Таран Д. А.
- Администратор
- Сообщения: 2877
- Регистрация: 30 ноя 2011, 18:41
- Откуда: г. Москва
- Контактная информация:
Re: Вопросы и замечания по КМД
1) Все очевидно. Чтобы массы сборки сходились во всех ведомостях. Иначе это вызывает массу вопросов.PPS писал(а):Возвращаясь к таблицам на сборку.
1) В выборке металла не понятно зачем считаете массу с наплавкой, ну да ладно.
2 )А вот с ведомостью отправочных вообще загадка. Показывает верную массу только после удаления балок с атрибутом крепежХотя в остальные спецификации все верно.
Еще при редактировании формулы поле Итог пишет неверный атрибут "PROJECT.USERDEFINED.PR_WEIGHT_TYPE" - это где НЕТТО и БРУТТО
2) Скрин
Администратор Topengineer.ru 8 (495) 215-07-79 (офис) ; 8 (925) 755-9318 (сот.); Skype wildomen ; http://vk.com/tekla_structures
Разработка КМД | Разработка КМ | Разработка КЖ | Обучение Tekla Structures | Купить Tekla Structures
Разработка КМД | Разработка КМ | Разработка КЖ | Обучение Tekla Structures | Купить Tekla Structures
Re: Вопросы и замечания по КМД
Скрин чего? Скрин не верно считает выше.
Вот скрин того, что удалил и все заработало.
Вот скрин того, что удалил и все заработало.
- Таран Д. А.
- Администратор
- Сообщения: 2877
- Регистрация: 30 ноя 2011, 18:41
- Откуда: г. Москва
- Контактная информация:
Re: Вопросы и замечания по КМД
Сей час глянем может там формулу не подправили.PPS писал(а):Скрин чего? Скрин не верно считает выше.
Вот скрин того, что удалил и все заработало.
Администратор Topengineer.ru 8 (495) 215-07-79 (офис) ; 8 (925) 755-9318 (сот.); Skype wildomen ; http://vk.com/tekla_structures
Разработка КМД | Разработка КМ | Разработка КЖ | Обучение Tekla Structures | Купить Tekla Structures
Разработка КМД | Разработка КМ | Разработка КЖ | Обучение Tekla Structures | Купить Tekla Structures
Re: Вопросы и замечания по КМД
как не странно, но да) врет!Danila_ZLT писал(а): Помощь нагло врет???
Re: Вопросы и замечания по КМД
и какое число тут нужно поставить чтобы отображались фаски?ZMK писал(а):как не странно, но да) врет!Danila_ZLT писал(а): Помощь нагло врет???
pdimav1979(не собака)yandex.ru
Re: Вопросы и замечания по КМД
сколько фасок хочешь увидеть столько и ставьpdimav писал(а): и какое число тут нужно поставить чтобы отображались фаски?
я пробовал ставил 7 - 7 и показывало, сейчас стоит 10
- Danila_ZLT
- Сообщения: 603
- Регистрация: 02 окт 2012, 12:14
- Откуда: Златоуст
- Контактная информация:
Re: Вопросы и замечания по КМД
какая версия теклы?PPS писал(а):сколько фасок хочешь увидеть столько и ставьpdimav писал(а): и какое число тут нужно поставить чтобы отображались фаски?
я пробовал ставил 7 - 7 и показывало, сейчас стоит 10
Автоматизируем хаос... Недорого...
Re: Вопросы и замечания по КМД
Что-то с трудом верится что это тот параметр, который отвечает за кол-во фасок. И что ОНИ намеренно ошиблись в справке.PPS писал(а):сколько фасок хочешь увидеть столько и ставьpdimav писал(а): и какое число тут нужно поставить чтобы отображались фаски?
я пробовал ставил 7 - 7 и показывало, сейчас стоит 10
Вот когда я задавал вопрос тех.под., почему не отображается нужное мне кол-во фасок во вновь созданном профиле, они ответили, что есть ограничение по количеству точек, которое отрисовывается при отображении профиля. И если стоит точность отображения (есть параметр такой) большая, то и точек требуется много. А ограничение порядка 99 точек (точно не помню!).
Но после ваших предположений про вышеописанный параметр потыкал всевозможные(и этот в том числе)...и все равно в мое профиле(параметрический с фасками) фаски отображаются не везде.
А Вы можете провести эксперимент с фасками. Создайте контурную пластину с множеством изгибов. И в месте изгиба задайте фаску по радиусу. И посмотрите на какой фаске Текла вам ее не отрисует!
Вот тогда и будет ясно, какой параметр влияет, а какой нет:)
pdimav1979(не собака)yandex.ru
Re: Вопросы и замечания по КМД
Может мы о разных вещах говорим?
Как было дело.
Профиль - I24М, в сечении отображал только 5 "закругленных углов" (назову их так) из 8 нужных, после изменения параметра XS_CS_CHAMFER_DIVIDE_ANGLE с 5 на 7, тот же профиль стал показывать 7 "закругленных углов" из 8, после я поставил значение 10 и профиль стал нормально изображаться, т.е. все 8 "закругленных углов".
Теперь ради эксперимента создал сечение на скрине с 14 углами и все показывает "закругленными".
Я даже не знаю, что сказать
ps по поводу создания пластины в модели с множеством изгибов, я это делал, когда профиль еще криво изображался, и фаски были, >10 точно.
pss текла 19.0
Как было дело.
Профиль - I24М, в сечении отображал только 5 "закругленных углов" (назову их так) из 8 нужных, после изменения параметра XS_CS_CHAMFER_DIVIDE_ANGLE с 5 на 7, тот же профиль стал показывать 7 "закругленных углов" из 8, после я поставил значение 10 и профиль стал нормально изображаться, т.е. все 8 "закругленных углов".
Теперь ради эксперимента создал сечение на скрине с 14 углами и все показывает "закругленными".
Я даже не знаю, что сказать
ps по поводу создания пластины в модели с множеством изгибов, я это делал, когда профиль еще криво изображался, и фаски были, >10 точно.
pss текла 19.0
- Danila_ZLT
- Сообщения: 603
- Регистрация: 02 окт 2012, 12:14
- Откуда: Златоуст
- Контактная информация:
Re: Вопросы и замечания по КМД
В 19.1 наверное это "исправили"
Не работает.
Не работает.
Автоматизируем хаос... Недорого...
Re: Вопросы и замечания по КМД
PPS писал(а):А будет включена спецификация деталей сборок для комплексного чертежа ?
- Таран Д. А.
- Администратор
- Сообщения: 2877
- Регистрация: 30 ноя 2011, 18:41
- Откуда: г. Москва
- Контактная информация:
Re: Вопросы и замечания по КМД
Может включим просто ими пользуется крайне малое количество пользователей.PPS писал(а):PPS писал(а):А будет включена спецификация деталей сборок для комплексного чертежа ?
Администратор Topengineer.ru 8 (495) 215-07-79 (офис) ; 8 (925) 755-9318 (сот.); Skype wildomen ; http://vk.com/tekla_structures
Разработка КМД | Разработка КМ | Разработка КЖ | Обучение Tekla Structures | Купить Tekla Structures
Разработка КМД | Разработка КМ | Разработка КЖ | Обучение Tekla Structures | Купить Tekla Structures
Re: Вопросы и замечания по КМД
Включим - это создадим?Таран Д. А. писал(а):Может включим просто ими пользуется крайне малое количество пользователей.PPS писал(а):PPS писал(а):А будет включена спецификация деталей сборок для комплексного чертежа ?
или поищем у себя (где-то валялась
- Таран Д. А.
- Администратор
- Сообщения: 2877
- Регистрация: 30 ноя 2011, 18:41
- Откуда: г. Москва
- Контактная информация:
Re: Вопросы и замечания по КМД
Включим - это создадим?
или поищем у себя (где-то валялась
) и прилепим к следующему обновлению?[/quote]
В новой среде логика расчетов поменялась очень сильно так что старые не подойдут
или поищем у себя (где-то валялась
В новой среде логика расчетов поменялась очень сильно так что старые не подойдут
Администратор Topengineer.ru 8 (495) 215-07-79 (офис) ; 8 (925) 755-9318 (сот.); Skype wildomen ; http://vk.com/tekla_structures
Разработка КМД | Разработка КМ | Разработка КЖ | Обучение Tekla Structures | Купить Tekla Structures
Разработка КМД | Разработка КМ | Разработка КЖ | Обучение Tekla Structures | Купить Tekla Structures
Re: Вопросы и замечания по КМД
До Нового Года будет?Таран Д. А. писал(а): Может включим просто ими пользуется крайне малое количество пользователей.
я имею ввиду до 2014?
- Таран Д. А.
- Администратор
- Сообщения: 2877
- Регистрация: 30 ноя 2011, 18:41
- Откуда: г. Москва
- Контактная информация:
Re: Вопросы и замечания по КМД
До нового года точно нетPPS писал(а):До Нового Года будет?Таран Д. А. писал(а): Может включим просто ими пользуется крайне малое количество пользователей.
я имею ввиду до 2014?
Администратор Topengineer.ru 8 (495) 215-07-79 (офис) ; 8 (925) 755-9318 (сот.); Skype wildomen ; http://vk.com/tekla_structures
Разработка КМД | Разработка КМ | Разработка КЖ | Обучение Tekla Structures | Купить Tekla Structures
Разработка КМД | Разработка КМ | Разработка КЖ | Обучение Tekla Structures | Купить Tekla Structures
Re: Вопросы и замечания по КМД
А до 2015г.?Таран Д. А. писал(а):До нового года точно нетPPS писал(а):До Нового Года будет?Таран Д. А. писал(а): Может включим просто ими пользуется крайне малое количество пользователей.
я имею ввиду до 2014?
Это я к тому может прикрутите голосовалку, может намного больше пользователей, чем вы думаете, кому нужен этот шаблон?
Re: Вопросы и замечания по КМД
Это выборка металла по проекту.
Ш30 - это гайка.
В выборке метизов тоже ошибки.
Ш30 - это гайка.
В выборке метизов тоже ошибки.
- vladimir_a
- Сообщения: 699
- Регистрация: 07 дек 2011, 21:22
Re: Вопросы и замечания по КМД
реализовано ли в новой среде в отчетах по болтам отображение шайб и гаек других типов соответственно 3 типа шайб и 2 типа гаек?
Re: Вопросы и замечания по КМД
Как победить следующую ситуацию: при компоновке с вед .отпр. эл-в все нормально, при компоновке с выборкой техтребования слетают не на свое место...
- Таран Д. А.
- Администратор
- Сообщения: 2877
- Регистрация: 30 ноя 2011, 18:41
- Откуда: г. Москва
- Контактная информация:
Re: Вопросы и замечания по КМД
косяк исправим в обновлении. Тут детская ошибка.alstey писал(а):Как победить следующую ситуацию: при компоновке с вед .отпр. эл-в все нормально, при компоновке с выборкой техтребования слетают не на свое место...
Спасибо за находку.
Администратор Topengineer.ru 8 (495) 215-07-79 (офис) ; 8 (925) 755-9318 (сот.); Skype wildomen ; http://vk.com/tekla_structures
Разработка КМД | Разработка КМ | Разработка КЖ | Обучение Tekla Structures | Купить Tekla Structures
Разработка КМД | Разработка КМ | Разработка КЖ | Обучение Tekla Structures | Купить Tekla Structures
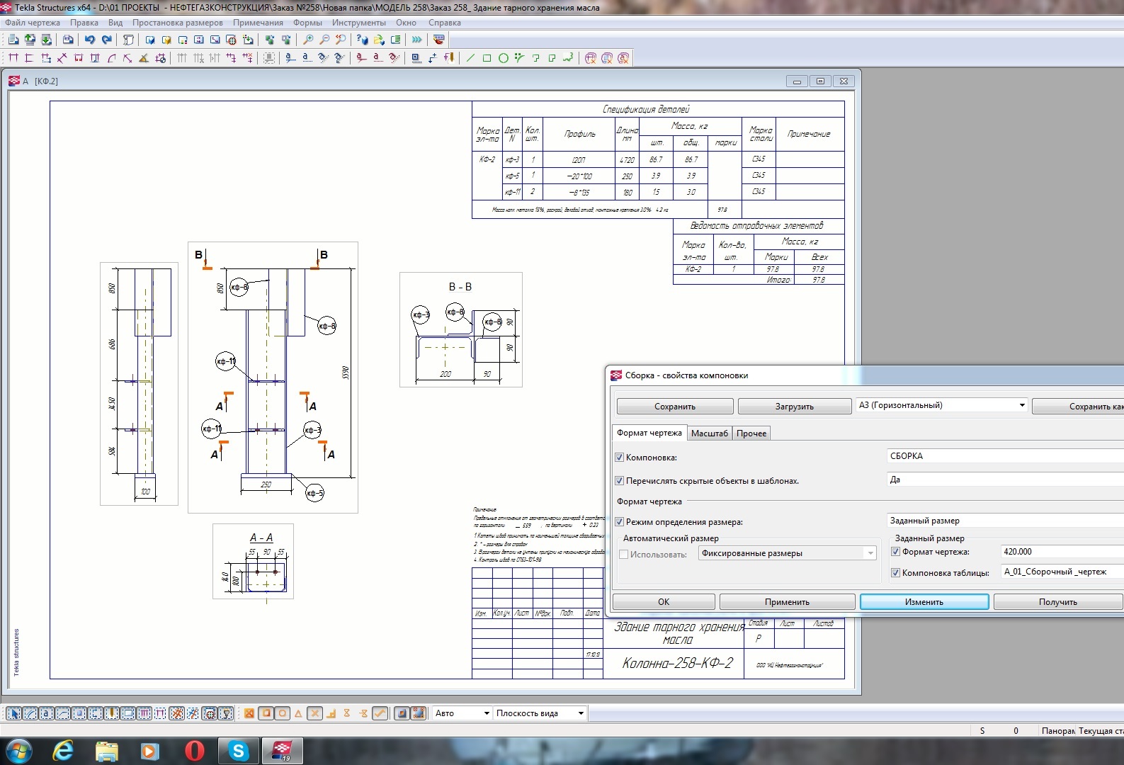
проблемы с компоновками
Независимо от версии теклы, происходит следующее:
В сборочном чертеже при назначении компоновки таблицы
а) А_01_Сборочный_чертеж- скрин №1
б) А_02_Сборочный_чертеж+ведомость металла- скрин №2
в) А_03_сборочный_чертеж+болты- скрин №3
г) для последующих в списке компоновок кроме А_07_Сборочный чертеж+ведомость_металла+сварка- скрин №3 т.е. отсутствие таблиц.
Как решить проблему?
В сборочном чертеже при назначении компоновки таблицы
а) А_01_Сборочный_чертеж- скрин №1
б) А_02_Сборочный_чертеж+ведомость металла- скрин №2
в) А_03_сборочный_чертеж+болты- скрин №3
г) для последующих в списке компоновок кроме А_07_Сборочный чертеж+ведомость_металла+сварка- скрин №3 т.е. отсутствие таблиц.
Как решить проблему?
Re: Вопросы и замечания по КМД
alstey писал(а):Независимо от версии теклы, происходит следующее:
В сборочном чертеже при назначении компоновки таблицы
а) А_01_Сборочный_чертеж- скрин №1
б) А_02_Сборочный_чертеж+ведомость металла- скрин №2
в) А_03_сборочный_чертеж+болты- скрин №3
г) для последующих в списке компоновок кроме А_07_Сборочный чертеж+ведомость_металла+сварка- скрин №3 т.е. отсутствие таблиц![]()
![]()
.
Как решить проблему?
-
Just_Dream
- Сообщения: 16
- Регистрация: 05 авг 2012, 23:11
Re: Вопросы и замечания по КМД
Добрый вечер. А вопрос со шрифтом не решился? Т.е. шрифт сечений все равно ариал и обозначение символа двутавра, хотя установлен GOST2304A??
досадная ситуация с техтребованиями
Из-за такой вот проблемы невозможен выпуск чертежей без доработок в других программах...Пользовательские техтребования располагаются на том же месте. Гуру писал, что ошибка детская...Почему б ее не поправить?
phpbb3 styles
Кто сейчас на конференции
Сейчас этот форум просматривают: нет зарегистрированных пользователей и 9 гостей

