Практический семинар Tekla Structures 2017

Запуск Среды TopEngineer. Установщик Topengineer-Updater

storm
Сообщения: 67
Регистрация: 15 дек 2012, 18:34

Запуск Среды TopEngineer. Установщик Topengineer-Updater

Сообщение storm » 23 сен 2013, 17:02

Начинаем тестирование нового установщика среды Topengineer-Updater.

Всем пользователяс ранее купившим среду и записавшимся на тестирование
в этой ветке viewtopic.php?f=16&t=1865будем высылать лицензии.

Ждем от вас предложений, замечаний, выловленных багах в работе самого установщика и самой среды.

Zezza
Сообщения: 152
Регистрация: 27 мар 2013, 07:36

Re: Запуск Среды TopEngineer. Установщик Topengineer-Updater

Сообщение Zezza » 26 сен 2013, 10:13

Добрый день. Когда же уже пришлёте? :?

storm
Сообщения: 67
Регистрация: 15 дек 2012, 18:34

Re: Запуск Среды TopEngineer. Установщик Topengineer-Updater

Сообщение storm » 27 сен 2013, 16:00

Первым четырнадцати человекам отправили письма с лицензией, инструкцией. Тестируйте пожалуйста. Будут проблемы пишите тут. Если не будет критических ошибок, в понедельник вышлем всем остальным.

paps
Сообщения: 118
Регистрация: 13 янв 2012, 09:23

Re: Запуск Среды TopEngineer. Установщик Topengineer-Updater

Сообщение paps » 01 окт 2013, 13:48

когда же можно опробовать НОВИНКУ??????

storm
Сообщения: 67
Регистрация: 15 дек 2012, 18:34

Re: Запуск Среды TopEngineer. Установщик Topengineer-Updater

Сообщение storm » 01 окт 2013, 14:58

Вносим небольшие изменения в установщик, будет несколько удобнее обновлять среду. думаю завтра(02.10) после обеда.

storm
Сообщения: 67
Регистрация: 15 дек 2012, 18:34

Re: Запуск Среды TopEngineer. Установщик Topengineer-Updater

Сообщение storm » 02 окт 2013, 12:36

Всем кто отправлял заявку, отосланы лицензии.
Были пару звоночков с проблемой. Проблема связана с самой установкой теклы.
При установке теклы предлагается выбор поставить
1. C:\Program Files\TeklaStructures
2. C:\TeklaStructures

В первом варианте текла все необходимые компоненты среды раскидывает по различным папкам, отсюда возникают сложности, и среда в первом случае работать не будет.

Предпочтительный выбор установки теклы в C:\TeklaStructures, в этом случае все будет работать корректно.

Аватара пользователя
gap
Сообщения: 29
Регистрация: 31 июл 2013, 12:43

Re: Запуск Среды TopEngineer. Установщик Topengineer-Updater

Сообщение gap » 02 окт 2013, 12:43

Установщик не работает. Причина - наличие прокси-сервера.
ЗАО "Казанский Гипронииавиапром"

Алексей
Сообщения: 118
Регистрация: 06 мар 2012, 14:17

Re: Запуск Среды TopEngineer. Установщик Topengineer-Updater

Сообщение Алексей » 02 окт 2013, 13:33

Установил среду в C:\TeklaStructures. Ввожу высланный лицензионный номер, жму кнопку OK и ничего не происходит. Подключение к интернету есть, система XP SP3. Подскажите как быть. При этом проверка обновлений среды происходит - выходит сообщение "Нет обновлений TE для TS 17/0".

storm
Сообщения: 67
Регистрация: 15 дек 2012, 18:34

Re: Запуск Среды TopEngineer. Установщик Topengineer-Updater

Сообщение storm » 02 окт 2013, 13:42

С прокси придется немного подождать, добавим к установщику возможность использовать прокси сервер.
НА XP SP3 мы не тестировали установщик, попробуем поставить, проверим в чем ошибка. Тестировали на 7ке, 8ке. (да без активированной лицензии это возможно)
Здесь сообщим результаты. Спасибо.

Аватара пользователя
gap
Сообщения: 29
Регистрация: 31 июл 2013, 12:43

Re: Запуск Среды TopEngineer. Установщик Topengineer-Updater

Сообщение gap » 02 окт 2013, 13:46

Storm (я правильно понимаю, Алексей?), сдается мне, что у него проблема не с ХР, а с той же проксей.
ЗАО "Казанский Гипронииавиапром"

rka
Сообщения: 100
Регистрация: 11 янв 2012, 12:19
Откуда: Курган

Re: Запуск Среды TopEngineer. Установщик Topengineer-Updater

Сообщение rka » 02 окт 2013, 13:51

7x64 pro на работе и 7x64 home дома так же реагируют, пишет нет обновления.

Аватара пользователя
gap
Сообщения: 29
Регистрация: 31 июл 2013, 12:43

Re: Запуск Среды TopEngineer. Установщик Topengineer-Updater

Сообщение gap » 02 окт 2013, 13:57

Тогда болезнь повсеместная, ибо внешне ведет себя так же.
ЗАО "Казанский Гипронииавиапром"

storm
Сообщения: 67
Регистрация: 15 дек 2012, 18:34

Re: Запуск Среды TopEngineer. Установщик Topengineer-Updater

Сообщение storm » 02 окт 2013, 14:01

1. Нет не Алексей :) Потестим на ХП в любом случае, прокси сделаем.
2.
7x64 pro на работе и 7x64 home дома так же реагируют
Лицензию не принимает?

Попробуйте запускать установщик "От имени администратора" он должен обновится до версии 1.1.0.3

storm
Сообщения: 67
Регистрация: 15 дек 2012, 18:34

Re: Запуск Среды TopEngineer. Установщик Topengineer-Updater

Сообщение storm » 02 окт 2013, 14:16

Отправил вам на почту повторное письмо с лицензией, проверте номер лицензии, может в нем вкралась ошибка.

обходное (временное) решение по прокси: пользователям попросить своего админа (если конечно есть техническая возможность) дать доступ к update.topengineer.ru и self.topengineer.ru по http (tcp порт 80) без прокси.

Аватара пользователя
gap
Сообщения: 29
Регистрация: 31 июл 2013, 12:43

Re: Запуск Среды TopEngineer. Установщик Topengineer-Updater

Сообщение gap » 02 окт 2013, 14:19

Хотя у меня прокся, попробовал от админа, результат тот же, не обновляет себя, не принимает лицуху.
ЗАО "Казанский Гипронииавиапром"

paps
Сообщения: 118
Регистрация: 13 янв 2012, 09:23

Re: Запуск Среды TopEngineer. Установщик Topengineer-Updater

Сообщение paps » 02 окт 2013, 14:25

Win 7, х32, Установщик (1.1.0.3) запускал от имени администратора. Ввел ключ лицензии, нажал "ОК", но ничего не происходит. На "обновить" пишет "нет обновлений"

Аватара пользователя
gap
Сообщения: 29
Регистрация: 31 июл 2013, 12:43

Re: Запуск Среды TopEngineer. Установщик Topengineer-Updater

Сообщение gap » 02 окт 2013, 14:40

либо господа программеры чего-то не учли, либо господа админы.
ЗАО "Казанский Гипронииавиапром"

rka
Сообщения: 100
Регистрация: 11 янв 2012, 12:19
Откуда: Курган

Re: Запуск Среды TopEngineer. Установщик Topengineer-Updater

Сообщение rka » 02 окт 2013, 14:42

Переустановил от администратора
Вложения
02-10-2013 17-41-13.jpg
02-10-2013 17-41-13.jpg (62.04 КБ) 25945 просмотров

storm
Сообщения: 67
Регистрация: 15 дек 2012, 18:34

Re: Запуск Среды TopEngineer. Установщик Topengineer-Updater

Сообщение storm » 02 окт 2013, 14:45

Судя по лог файлу, у 11 человек сработало, по крайне мере обновления пришли. Постепенно все вопросы решим.

Алексей
Сообщения: 118
Регистрация: 06 мар 2012, 14:17

Re: Запуск Среды TopEngineer. Установщик Topengineer-Updater

Сообщение Алексей » 02 окт 2013, 14:54

storm писал(а):Отправил вам на почту повторное письмо с лицензией, проверте номер лицензии, может в нем вкралась ошибка.
.
Проверил, ошибок с номером лицензии нет. По прежнему при нажатии кнопки OK никакого результата.
Каким-то чудесным образом обновляется до версии 1.0.3, но это не меняет общей картины - при нажатии кнопки OK никакого результата.
Последний раз редактировалось Алексей 02 окт 2013, 15:26, всего редактировалось 1 раз.

storm
Сообщения: 67
Регистрация: 15 дек 2012, 18:34

Re: Запуск Среды TopEngineer. Установщик Topengineer-Updater

Сообщение storm » 02 окт 2013, 15:03

Переустановил от администратора
Надо выйти из updater'a
exit.png
exit.png (11.52 КБ) 25939 просмотров
Еще лучше удалить как обычно "Панель управления\Программы\Программы и компоненты"

Судя по скрину апдейтер активен.

rka
Сообщения: 100
Регистрация: 11 янв 2012, 12:19
Откуда: Курган

Re: Запуск Среды TopEngineer. Установщик Topengineer-Updater

Сообщение rka » 02 окт 2013, 15:36

Переустановил. Проблема осталась.

storm
Сообщения: 67
Регистрация: 15 дек 2012, 18:34

Re: Запуск Среды TopEngineer. Установщик Topengineer-Updater

Сообщение storm » 02 окт 2013, 15:40

to gap сгенерировали новую лицензию, отправил, проверте пожалуйста.

storm
Сообщения: 67
Регистрация: 15 дек 2012, 18:34

Re: Запуск Среды TopEngineer. Установщик Topengineer-Updater

Сообщение storm » 02 окт 2013, 15:46

to rka сгенерировали новую лицензию, отправил, проверте пожалуйста.

storm
Сообщения: 67
Регистрация: 15 дек 2012, 18:34

Re: Запуск Среды TopEngineer. Установщик Topengineer-Updater

Сообщение storm » 02 окт 2013, 15:49

to Алексей сгенерировали новую лицензию, отправил, проверте пожалуйста.

storm
Сообщения: 67
Регистрация: 15 дек 2012, 18:34

Re: Запуск Среды TopEngineer. Установщик Topengineer-Updater

Сообщение storm » 02 окт 2013, 15:55

to paps сгенерировали новую лицензию, отправил, проверте пожалуйста.

storm
Сообщения: 67
Регистрация: 15 дек 2012, 18:34

Re: Запуск Среды TopEngineer. Установщик Topengineer-Updater

Сообщение storm » 02 окт 2013, 15:57

Собирал данные с форума, импортировал в базу, при этом генерируется лицензия, но в основную базу номер не попал, проверте с новым номером пожалуйста.

Алексей
Сообщения: 118
Регистрация: 06 мар 2012, 14:17

Re: Запуск Среды TopEngineer. Установщик Topengineer-Updater

Сообщение Алексей » 02 окт 2013, 15:58

storm писал(а):to Алексей сгенерировали новую лицензию, отправил, проверте пожалуйста.
Спасибо. Проверил, после введения нового лицензионного номера и нажатия кнопки ОК никакой реакции.

Аватара пользователя
gap
Сообщения: 29
Регистрация: 31 июл 2013, 12:43

Re: Запуск Среды TopEngineer. Установщик Topengineer-Updater

Сообщение gap » 02 окт 2013, 16:08

Попробовал. Работает только кнопка закрыть окно. Обновления не видит, лицензию не цепляет. Прокся есть.
ЗАО "Казанский Гипронииавиапром"

storm
Сообщения: 67
Регистрация: 15 дек 2012, 18:34

Re: Запуск Среды TopEngineer. Установщик Topengineer-Updater

Сообщение storm » 02 окт 2013, 16:11

ок. спасибо. тогда подождите реализацию прокси.

paps
Сообщения: 118
Регистрация: 13 янв 2012, 09:23

Re: Запуск Среды TopEngineer. Установщик Topengineer-Updater

Сообщение paps » 02 окт 2013, 16:14

С новым ключом лицензии все запустилось!!!!!!!! Спасибо!!!! Приятно удивлен оперативности решения вопроса!!!!!

ZED
Сообщения: 6
Регистрация: 23 дек 2012, 18:05

Re: Запуск Среды TopEngineer. Установщик Topengineer-Updater

Сообщение ZED » 02 окт 2013, 20:39

Лицензия не работает. На кнопку ОК никак не реагирует. Пишет, что обновлений нет.

rka
Сообщения: 100
Регистрация: 11 янв 2012, 12:19
Откуда: Курган

Re: Запуск Среды TopEngineer. Установщик Topengineer-Updater

Сообщение rka » 03 окт 2013, 06:01

с новой лицензией установилось

rka
Сообщения: 100
Регистрация: 11 янв 2012, 12:19
Откуда: Курган

Re: Запуск Среды TopEngineer. Установщик Topengineer-Updater

Сообщение rka » 03 окт 2013, 06:49

в КМ template основные штампы не скопированы
Вложения
aaa.jpg
aaa.jpg (46.51 КБ) 25886 просмотров

Alex
Сообщения: 236
Регистрация: 01 дек 2011, 09:23
Контактная информация:

Re: Запуск Среды TopEngineer. Установщик Topengineer-Updater

Сообщение Alex » 03 окт 2013, 07:06

Давайте в этой ветке писать про проблемы установщика.
Сейчас создам новые темы.

Я в курсе что не хватает КМ и КЖ настроек ведомостей компоновок, сейчас все тестирую и добавляю каждый день что проверил.

Для КМД не хватает отчетов их можете пока скопировать из старой среды.
Администратор Topengineer.ru 8 (495) 215-07-79 (офис) ; 8 (925) 755-9316 (сот.); Skype: perezhog
Разработка КМД | Разработка КМ | Обучение Tekla Structures

troy-47
Сообщения: 135
Регистрация: 29 янв 2013, 10:15
Откуда: Краснодар

Re: Запуск Среды TopEngineer. Установщик Topengineer-Updater

Сообщение troy-47 » 03 окт 2013, 08:15

Здравствуйте, такая же проблема как и многих, после ввода лицензионного ключа и нажатии кнопки ОК ниченго не происходит... (подключение к интернету есть)

storm
Сообщения: 67
Регистрация: 15 дек 2012, 18:34

Re: Запуск Среды TopEngineer. Установщик Topengineer-Updater

Сообщение storm » 03 окт 2013, 10:40

troy-47, ZED отправил новые лицензии попробуйте.

beta
Сообщения: 44
Регистрация: 06 апр 2012, 11:51

Re: Запуск Среды TopEngineer. Установщик Topengineer-Updater

Сообщение beta » 03 окт 2013, 11:49

Здравствуйте, такая же проблема как и многих, после ввода лицензионного ключа и нажатии кнопки ОК ниченго не происходит... (подключение к интернету есть)

storm
Сообщения: 67
Регистрация: 15 дек 2012, 18:34

Re: Запуск Среды TopEngineer. Установщик Topengineer-Updater

Сообщение storm » 03 окт 2013, 13:49

troy-47 Ваш вопрос перенесли в соседнюю ветку viewtopic.php?f=45&t=1932#p10059

beta
Здравствуйте, такая же проблема как и многих, после ввода лицензионного ключа и нажатии кнопки ОК ничего не происходит... (подключение к интернету есть)
Лицензию новую выслал, но боюсь не поможет(ключ правильный был), у вас либо прокси, либо возможно еще какая проблемка. Решаем.

troy-47
Сообщения: 135
Регистрация: 29 янв 2013, 10:15
Откуда: Краснодар

Re: Запуск Среды TopEngineer. Установщик Topengineer-Updater

Сообщение troy-47 » 03 окт 2013, 14:01

Понял, извиняюсь...

ZED
Сообщения: 6
Регистрация: 23 дек 2012, 18:05

Re: Запуск Среды TopEngineer. Установщик Topengineer-Updater

Сообщение ZED » 03 окт 2013, 18:19

Спасибо! Ключ подошел. Обновление скачалось.

AGFreeman
Сообщения: 10
Регистрация: 18 фев 2012, 17:46

Re: Запуск Среды TopEngineer. Установщик Topengineer-Updater

Сообщение AGFreeman » 04 окт 2013, 08:26

Здравствуйте. Нет реакции после нажатия ОК. Win7x64, Proxy есть но для меня стоит байпасс.

storm
Сообщения: 67
Регистрация: 15 дек 2012, 18:34

Re: Запуск Среды TopEngineer. Установщик Topengineer-Updater

Сообщение storm » 04 окт 2013, 09:54

AGFreeman отправил новый ключик, пробуйте.

AGFreeman
Сообщения: 10
Регистрация: 18 фев 2012, 17:46

Re: Запуск Среды TopEngineer. Установщик Topengineer-Updater

Сообщение AGFreeman » 04 окт 2013, 10:25

Спасибо, все заработало.

Аватара пользователя
gap
Сообщения: 29
Регистрация: 31 июл 2013, 12:43

Re: Запуск Среды TopEngineer. Установщик Topengineer-Updater

Сообщение gap » 04 окт 2013, 14:04

Как скоро ждать поддержку прокси?
ЗАО "Казанский Гипронииавиапром"

Alexey Cherepanov
Сообщения: 3
Регистрация: 06 июн 2013, 08:41
Откуда: г. Санкт-Петербург

Re: Запуск Среды TopEngineer. Установщик Topengineer-Updater

Сообщение Alexey Cherepanov » 06 окт 2013, 13:46

Такая же проблема, как у многих - с нажатием кнопки ОК ничего не происходит. Нужна помощь

storm
Сообщения: 67
Регистрация: 15 дек 2012, 18:34

Re: Запуск Среды TopEngineer. Установщик Topengineer-Updater

Сообщение storm » 07 окт 2013, 10:49

Alexey Cherepanov новую лицензию выслал. проверяйте.
gap
Как скоро ждать поддержку прокси?
Ближайшее время, сегодня, завтра.

storm
Сообщения: 67
Регистрация: 15 дек 2012, 18:34

Re: Запуск Среды TopEngineer. Установщик Topengineer-Updater

Сообщение storm » 07 окт 2013, 16:54

Вышла новая версия 1.1.0.4
У всех при запуске версии 1.1.0.3 установщик само обновится до версия 1.1.0.4

Добавлена поддержка прокси.
(по умолчанию делать ничего не нужно, стоит авто обнаружение прокси-сервера) - в настройках IE(Internet Explorer) установлено в "Свойствах браузера - Подключения - Настройка сети - Автоматическое определение параметров"

Если вдруг не работает и если известны настройки прокси-сервера их можно прописать их вручную (в IE) "Свойствах браузера - Подключения - Настройка сети - Прокси-сервер".

gap, beta, проверьте пожалуйста.

Аватара пользователя
gap
Сообщения: 29
Регистрация: 31 июл 2013, 12:43

Re: Запуск Среды TopEngineer. Установщик Topengineer-Updater

Сообщение gap » 07 окт 2013, 17:02

Не работает. Использовал последний высланный вами серийник.
ЗАО "Казанский Гипронииавиапром"

storm
Сообщения: 67
Регистрация: 15 дек 2012, 18:34

Re: Запуск Среды TopEngineer. Установщик Topengineer-Updater

Сообщение storm » 07 окт 2013, 17:15

А если в настройках IE прописать(если известны)? программа оттуда тоже подхватывает.

Аватара пользователя
gap
Сообщения: 29
Регистрация: 31 июл 2013, 12:43

Re: Запуск Среды TopEngineer. Установщик Topengineer-Updater

Сообщение gap » 08 окт 2013, 08:17

Ну...у меня там и прописано. Попробовал новый серийник. Реакция та же.
ЗАО "Казанский Гипронииавиапром"

storm
Сообщения: 67
Регистрация: 15 дек 2012, 18:34

Re: Запуск Среды TopEngineer. Установщик Topengineer-Updater

Сообщение storm » 08 окт 2013, 08:34

Версия точно обновилась?(до 1.1.0.4) новую можно скачать по ссылке из письма.

Аватара пользователя
gap
Сообщения: 29
Регистрация: 31 июл 2013, 12:43

Re: Запуск Среды TopEngineer. Установщик Topengineer-Updater

Сообщение gap » 08 окт 2013, 09:24

Версия сама не обновилась, скачал у вас.
ЗАО "Казанский Гипронииавиапром"

storm
Сообщения: 67
Регистрация: 15 дек 2012, 18:34

Re: Запуск Среды TopEngineer. Установщик Topengineer-Updater

Сообщение storm » 08 окт 2013, 09:32

спасибо. будем разбираться.

Alexey Cherepanov
Сообщения: 3
Регистрация: 06 июн 2013, 08:41
Откуда: г. Санкт-Петербург

Re: Запуск Среды TopEngineer. Установщик Topengineer-Updater

Сообщение Alexey Cherepanov » 08 окт 2013, 12:07

Сработало. Спасибо. Версия установщика обновляется.

Алексей
Сообщения: 118
Регистрация: 06 мар 2012, 14:17

Re: Запуск Среды TopEngineer. Установщик Topengineer-Updater

Сообщение Алексей » 08 окт 2013, 21:20

не работает ни ранее скаченная версия с ранее высланным паролем, ни новая с новым паролем...ничегошеньки

jonnyrock
Сообщения: 5
Регистрация: 28 май 2013, 17:00

Re: Запуск Среды TopEngineer. Установщик Topengineer-Updater

Сообщение jonnyrock » 10 окт 2013, 07:39

Такая же проблема, как у большинства.
Установил среду в C:\TeklaStructures. Ввожу высланный лицензионный номер, жму кнопку OK и ничего не происходит. Подключение к интернету есть, система W7 Ultimate 64. Проверка обновлений среды происходит - выходит сообщение "Нет обновлений TE для TS 17/0".

storm
Сообщения: 67
Регистрация: 15 дек 2012, 18:34

Re: Запуск Среды TopEngineer. Установщик Topengineer-Updater

Сообщение storm » 10 окт 2013, 11:22

jonnyrock выслал новую лицензию, проверяйте.

Алексей, gap,

Пробовали тестировать на локальном прокси, программа работает, дополнительно сделали отладчик.

Новая версия 1.1.0.6 - Скачать по ссылке из письма.

Добавили в программу отладчик. Выслав нам сообщение, будет легче разобраться в чем причина.

Запускаем
supp.png
supp.png (11.02 КБ) 25410 просмотров
Проверка идет около минуты, не волнуйтесь программа не повисла, в диспетчере не вырубайте.
Далее выскочит сообщение, его скопировать и отправить на support@topengineer.ru
mess.jpg
Спасибо за терпение.

Аватара пользователя
gap
Сообщения: 29
Регистрация: 31 июл 2013, 12:43

Re: Запуск Среды TopEngineer. Установщик Topengineer-Updater

Сообщение gap » 10 окт 2013, 12:34

В настройках IE есть прокси-сервер: http://srv10.gap-rt.ru:3128/
Сайты update.topengineer.ru и self.topengineer.ru не доступны по HTTP с использованием данного прокси-сервера.
Сайты google.com и yandex.ru не доступны по HTTP с использованием данного прокси-сервера.
----------------------------------------------------------------------

Используемый MAC-адрес клиента: ---------------------xx
-----------------------------------------------------------------------
Проверка лицензии на сервере не пройдена. Ответ сервера: <!DOCTYPE html PUBLIC "-//W3C//DTD HTML 4.01//EN" "http://www.w3.org/TR/html4/strict.dtd">
Последний раз редактировалось gap 10 окт 2013, 12:43, всего редактировалось 1 раз.
ЗАО "Казанский Гипронииавиапром"

Аватара пользователя
gap
Сообщения: 29
Регистрация: 31 июл 2013, 12:43

Re: Запуск Среды TopEngineer. Установщик Topengineer-Updater

Сообщение gap » 10 окт 2013, 12:35

Как-то так. Сайты ваши из ослика, мозиллы и хрома доступны. А для апдейтера не доступны.
ЗАО "Казанский Гипронииавиапром"

Аватара пользователя
gap
Сообщения: 29
Регистрация: 31 июл 2013, 12:43

Re: Запуск Среды TopEngineer. Установщик Topengineer-Updater

Сообщение gap » 10 окт 2013, 13:19

Поделитесь задействованными портами, такая вот возникла мысль.
ЗАО "Казанский Гипронииавиапром"

storm
Сообщения: 67
Регистрация: 15 дек 2012, 18:34

Re: Запуск Среды TopEngineer. Установщик Topengineer-Updater

Сообщение storm » 10 окт 2013, 15:46

Порт 80, но это не поможет.

Аватара пользователя
gap
Сообщения: 29
Регистрация: 31 июл 2013, 12:43

Re: Запуск Среды TopEngineer. Установщик Topengineer-Updater

Сообщение gap » 11 окт 2013, 09:38

Мне все равно нужно знать на всякий.
ЗАО "Казанский Гипронииавиапром"

saveall
Сообщения: 47
Регистрация: 16 дек 2011, 13:40
Откуда: Санкт-Петербург

Re: Запуск Среды TopEngineer. Установщик Topengineer-Updater

Сообщение saveall » 11 окт 2013, 10:05

Не работает обновление... Жмешь ок и ничего не происходит.

Хотя, я вижу, что не у одного меня такая проблема. Как решать?

После отладки пишет: Проверка лицензии на сервере лицензий не пройдена. Ответ сервера: Неверный лицензионный код.

storm
Сообщения: 67
Регистрация: 15 дек 2012, 18:34

Re: Запуск Среды TopEngineer. Установщик Topengineer-Updater

Сообщение storm » 11 окт 2013, 11:48

saveall, отправил новую лицензию, пробуйте. Это у нас ошибка была, при импорте из csv, лицензии сгенерировались, но в основную базу не добавились.

saveall
Сообщения: 47
Регистрация: 16 дек 2011, 13:40
Откуда: Санкт-Петербург

Re: Запуск Среды TopEngineer. Установщик Topengineer-Updater

Сообщение saveall » 11 окт 2013, 11:55

storm писал(а):saveall, отправил новую лицензию, пробуйте. Это у нас ошибка была, при импорте из csv, лицензии сгенерировались, но в основную базу не добавились.

Спасибо, попробую...

Алексей
Сообщения: 118
Регистрация: 06 мар 2012, 14:17

Re: Запуск Среды TopEngineer. Установщик Topengineer-Updater

Сообщение Алексей » 11 окт 2013, 20:24

здравствуйте
попробовал с "отладить", результаты отправил по адресу support@topengineer.ru
спасибо

Аватара пользователя
Pomogalkina
Сообщения: 26
Регистрация: 20 июн 2012, 13:45

Re: Запуск Среды TopEngineer. Установщик Topengineer-Updater

Сообщение Pomogalkina » 14 окт 2013, 06:32

Здравствуйте. Лицензионный номер ввела, ничего не происходит...

storm
Сообщения: 67
Регистрация: 15 дек 2012, 18:34

Re: Запуск Среды TopEngineer. Установщик Topengineer-Updater

Сообщение storm » 14 окт 2013, 09:45

Pomogalkina, выслал ключь, проверяйте.

С ошибками разбираемся.

Аватара пользователя
Pomogalkina
Сообщения: 26
Регистрация: 20 июн 2012, 13:45

Re: Запуск Среды TopEngineer. Установщик Topengineer-Updater

Сообщение Pomogalkina » 14 окт 2013, 11:24

спасибо. лицензию ввела , она прошла.
в окне лицензии были надписи, что обновление не требуется...
захожу в 19 тэклу, среды топинженер нет...

Аватара пользователя
Pomogalkina
Сообщения: 26
Регистрация: 20 июн 2012, 13:45

Re: Запуск Среды TopEngineer. Установщик Topengineer-Updater

Сообщение Pomogalkina » 14 окт 2013, 11:30

ура! таки обновилась среда, все работает.
благодарю за поддержку

storm
Сообщения: 67
Регистрация: 15 дек 2012, 18:34

Re: Запуск Среды TopEngineer. Установщик Topengineer-Updater

Сообщение storm » 14 окт 2013, 13:24

Вышла новая версия 1.1.0.7 с поддержкой прокси. (Доступна по ссылке из письма регистрации)
register.JPG
proxy.JPG
Проверяйте пожалуйста.

Аватара пользователя
gap
Сообщения: 29
Регистрация: 31 июл 2013, 12:43

Re: Запуск Среды TopEngineer. Установщик Topengineer-Updater

Сообщение gap » 14 окт 2013, 14:14

Проверил. Виснет и не отвисает. Проверка соединения показывает ОК, а отладка показывает фэйл аутентификации.
ЗАО "Казанский Гипронииавиапром"

storm
Сообщения: 67
Регистрация: 15 дек 2012, 18:34

Re: Запуск Среды TopEngineer. Установщик Topengineer-Updater

Сообщение storm » 14 окт 2013, 14:16

Бывало такое, надо просто перезапустить. попробуйте еще пожалуйста.

storm
Сообщения: 67
Регистрация: 15 дек 2012, 18:34

Re: Запуск Среды TopEngineer. Установщик Topengineer-Updater

Сообщение storm » 14 окт 2013, 14:18

да еще новую версию 1.1.0.8 скачайте, там косяки подправили.

jonnyrock
Сообщения: 5
Регистрация: 28 май 2013, 17:00

Re: Запуск Среды TopEngineer. Установщик Topengineer-Updater

Сообщение jonnyrock » 14 окт 2013, 16:23

Захожу в свойства проекта и рисунок не отображается
Вложения
Вопрос.jpg

storm
Сообщения: 67
Регистрация: 15 дек 2012, 18:34

Re: Запуск Среды TopEngineer. Установщик Topengineer-Updater

Сообщение storm » 14 окт 2013, 16:56

Текла правильно установлена?
viewtopic.php?f=45&t=1922#p10018

Возможно из за этого.

Алексей
Сообщения: 118
Регистрация: 06 мар 2012, 14:17

Re: Запуск Среды TopEngineer. Установщик Topengineer-Updater

Сообщение Алексей » 14 окт 2013, 17:41

storm
спасибо, программа активировалась

sanybod
Сообщения: 48
Регистрация: 20 янв 2013, 12:27

Re: Запуск Среды TopEngineer. Установщик Topengineer-Updater

Сообщение sanybod » 15 окт 2013, 08:00

storm писал(а):to Алексей сгенерировали новую лицензию, отправил, проверте пожалуйста.
Вышлите новую лицензию и нам. При нажатие на "отладка" пишет: Проверка лицензии на сервере не пройдена. Ответ сервера: Неверный лицензионный код.

Рыбин Дмитрий Анатольевич
2012 НПО ЗМК
nmfs1@yandex.ru
npozmk@mail.ru
спасибо!

storm
Сообщения: 67
Регистрация: 15 дек 2012, 18:34

Re: Запуск Среды TopEngineer. Установщик Topengineer-Updater

Сообщение storm » 15 окт 2013, 09:45

НПО ЗМК Отправил.

<nmfs1@yandex.ru>: host mx.yandex.ru[213.180.193.89] said: 550 5.7.1 No such user! (in reply to RCPT TO command)

nmfs1@yandex.ru - Нет такого пользователя!

на вторую почту ушло.

Аватара пользователя
gap
Сообщения: 29
Регистрация: 31 июл 2013, 12:43

Re: Запуск Среды TopEngineer. Установщик Topengineer-Updater

Сообщение gap » 15 окт 2013, 10:18

1.0.8 не скачивается, пишет 1.0.7. вы точно по ссылке обновили дистр?
ЗАО "Казанский Гипронииавиапром"

storm
Сообщения: 67
Регистрация: 15 дек 2012, 18:34

Re: Запуск Среды TopEngineer. Установщик Topengineer-Updater

Сообщение storm » 15 окт 2013, 10:41

Версия точно обновлена, скачал проверил. Это видимо кэширование(браузера) не дает скачать новую версию. Можно попробовать скачать другим браузером. Отправил инсталятор на почту.

sanybod
Сообщения: 48
Регистрация: 20 янв 2013, 12:27

Re: Запуск Среды TopEngineer. Установщик Topengineer-Updater

Сообщение sanybod » 15 окт 2013, 14:01

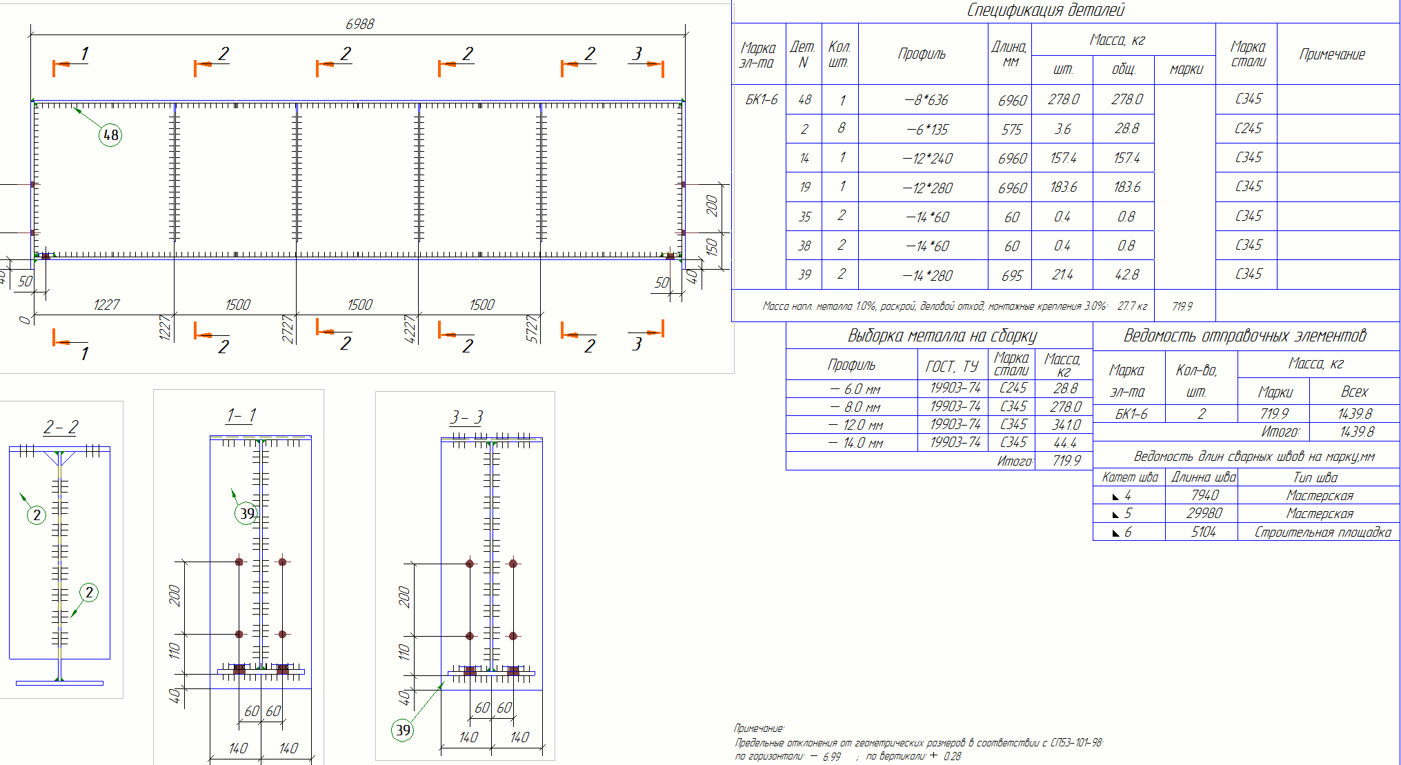
не правильно считает вес в сборочном чертеже. Все детали по 7кг. - прям распродажа какая-то. Хотя свойства профилей отображаются корректно.
Вложения
Topinginer.png

Аватара пользователя
gap
Сообщения: 29
Регистрация: 31 июл 2013, 12:43

Re: Запуск Среды TopEngineer. Установщик Topengineer-Updater

Сообщение gap » 15 окт 2013, 14:05

Номер лицензии клиента: ****************
Используемый MAC-адрес клиента: 14-xxxxxxxxx-78
-----------------------------------------------------------------------
Ошибка: Proxy Authentication Required
при это тест - ОК. обновил до 1.0.8.
ЗАО "Казанский Гипронииавиапром"

Alex
Сообщения: 236
Регистрация: 01 дек 2011, 09:23
Контактная информация:

Re: Запуск Среды TopEngineer. Установщик Topengineer-Updater

Сообщение Alex » 15 окт 2013, 15:36

sanybod

Судя по профилям модель сделана в старой среде. Я проверил, почему то на старых моделях созданных в старой среде, не считается вес, наверное потому что были добавлены новые переменные влияющие на подсчет веса.
Вложения
Снимок.PNG
Администратор Topengineer.ru 8 (495) 215-07-79 (офис) ; 8 (925) 755-9316 (сот.); Skype: perezhog
Разработка КМД | Разработка КМ | Обучение Tekla Structures

Аватара пользователя
gap
Сообщения: 29
Регистрация: 31 июл 2013, 12:43

Re: Запуск Среды TopEngineer. Установщик Topengineer-Updater

Сообщение gap » 16 окт 2013, 15:36

Алекс, вы по нашей проблеме не посмотрели?
ЗАО "Казанский Гипронииавиапром"

storm
Сообщения: 67
Регистрация: 15 дек 2012, 18:34

Re: Запуск Среды TopEngineer. Установщик Topengineer-Updater

Сообщение storm » 16 окт 2013, 15:52

gap
Делаем, осталась проблемка с проксями. Надеюсь уже скоро вопрос снимем. Как будет готово я обязательно вышлю сообщение.

Аватара пользователя
gap
Сообщения: 29
Регистрация: 31 июл 2013, 12:43

Re: Запуск Среды TopEngineer. Установщик Topengineer-Updater

Сообщение gap » 16 окт 2013, 16:19

Премного благодарен!
ЗАО "Казанский Гипронииавиапром"

hgf
Сообщения: 18
Регистрация: 05 ноя 2012, 19:26

Re: Запуск Среды TopEngineer. Установщик Topengineer-Updater

Сообщение hgf » 23 окт 2013, 19:10

Высланная вчера лицензия не активируется.
Отправил по электронной почте данные отладчика.

storm
Сообщения: 67
Регистрация: 15 дек 2012, 18:34

Re: Запуск Среды TopEngineer. Установщик Topengineer-Updater

Сообщение storm » 24 окт 2013, 09:55

gap
Вышла новая версия 1.1.1.0 отправил письмо на почту. Проверяйте.

hgf
Отправил новый ключь. Проверяйте.

Аватара пользователя
gap
Сообщения: 29
Регистрация: 31 июл 2013, 12:43

Re: Запуск Среды TopEngineer. Установщик Topengineer-Updater

Сообщение gap » 24 окт 2013, 09:55

Доступ к тестовым веб-сайтам есть.
Проверка лицензии на сервере не пройдена.
ЗАО "Казанский Гипронииавиапром"

storm
Сообщения: 67
Регистрация: 15 дек 2012, 18:34

Re: Запуск Среды TopEngineer. Установщик Topengineer-Updater

Сообщение storm » 24 окт 2013, 10:47

Отпрвил ключь на проверку.

Аватара пользователя
gap
Сообщения: 29
Регистрация: 31 июл 2013, 12:43

Re: Запуск Среды TopEngineer. Установщик Topengineer-Updater

Сообщение gap » 24 окт 2013, 11:42

Проверил, та же история. Странно.
ЗАО "Казанский Гипронииавиапром"

Аватара пользователя
gap
Сообщения: 29
Регистрация: 31 июл 2013, 12:43

Re: Запуск Среды TopEngineer. Установщик Topengineer-Updater

Сообщение gap » 24 окт 2013, 11:45

Проверил без прокси. Активировалась. Что-то вы недоглядели.
ЗАО "Казанский Гипронииавиапром"

igor.lupashin
Сообщения: 4
Регистрация: 24 окт 2013, 11:39

Re: Запуск Среды TopEngineer. Установщик Topengineer-Updater

Сообщение igor.lupashin » 24 окт 2013, 11:49

Добрый день,
приобрел старую версию среды год назад.
Сейчас хотел бы получить новую среду с функцией автоматического
обновления. Для этого установил Updater версия 1.1.1.0
Код получил. На этом все... среду так и не получил и обновления не приходят.
На экране вижу следующую картинку в приложении (код поменял на кресты)

Помогите пожалуйста !
Вложения
2 picture.JPG
Тут у меня все пусто - может что то надо ?
1 picture.JPG
При вводе пароля и нажатии Зарегистрировать - ничего не происходит

storm
Сообщения: 67
Регистрация: 15 дек 2012, 18:34

Re: Запуск Среды TopEngineer. Установщик Topengineer-Updater

Сообщение storm » 24 окт 2013, 12:01

igor.lupashin
Отправил Вам номер лицензии, проверить правильная ли она.
Если с этим ключем не сработает то, для проверки кликните на иконке Updatera правой и нажмите Отладка(примерно минуту подождите) выскочит окно с сообщением, скопируйте и вышлете на support@topengineer.ru попробуем разобраться в чем причина.

storm
Сообщения: 67
Регистрация: 15 дек 2012, 18:34

Re: Запуск Среды TopEngineer. Установщик Topengineer-Updater

Сообщение storm » 24 окт 2013, 12:04

gap писал(а):Проверил без прокси. Активировалась. Что-то вы недоглядели.
Это уже хорошо. Посмотрим.

igor.lupashin
Сообщения: 4
Регистрация: 24 окт 2013, 11:39

Re: Запуск Среды TopEngineer. Установщик Topengineer-Updater

Сообщение igor.lupashin » 24 окт 2013, 13:50

Спасибо,
среда установилась так быстро что я и не заметил.
Щас она стоит. Вопрос по компоновкам для КЖ.
Я их не нашел - только лист , спецификации отсутствуют.
Может я что то не нашел ?

Пожалуйста помогите.
Вложения
3 picture.JPG
Компоновки отсутствуют

Аватара пользователя
gap
Сообщения: 29
Регистрация: 31 июл 2013, 12:43

Re: Запуск Среды TopEngineer. Установщик Topengineer-Updater

Сообщение gap » 24 окт 2013, 14:41

Суть проблемы все же осталась. После прокси не активируется, хотя связь есть.
ЗАО "Казанский Гипронииавиапром"

Аватара пользователя
Таран Д. А.
Администратор
Сообщения: 2877
Регистрация: 30 ноя 2011, 18:41
Откуда: г. Москва
Контактная информация:

Re: Запуск Среды TopEngineer. Установщик Topengineer-Updater

Сообщение Таран Д. А. » 24 окт 2013, 16:51

igor.lupashin писал(а):Спасибо,
среда установилась так быстро что я и не заметил.
Щас она стоит. Вопрос по компоновкам для КЖ.
Я их не нашел - только лист , спецификации отсутствуют.
Может я что то не нашел ?

Пожалуйста помогите.
Там какая то засада... переключи интерфейс на русский язык и все будет работать. В чем дело сложно сказать какой то новый глюк.

Закрыто
phpbb3 styles

Вернуться в «Среда TopEngineer»

Кто сейчас на конференции

Сейчас этот форум просматривают: нет зарегистрированных пользователей и 1 гость