Товарищи, подскажите плз.
Если балка имеет уклон, а к ней должна крепиться другая балка, но уже параллельно земле - то стандартные "кирпичи" из пользовательской палитры инструментов не подойдут чтобы создать узел крепления? Так как они рассчитаны чтоб быть параллельно или перпендикулярно наклоненной балке. И надо все пластины крепления рисовать руками?
Или я ошибаюсь?
Если ошибаюсь - подскажите плз где искать.
Спасибо большое.
Как создать правильно узел крепления в Advance Steel
Re: Как создать правильно узел крепления в Advance Steel
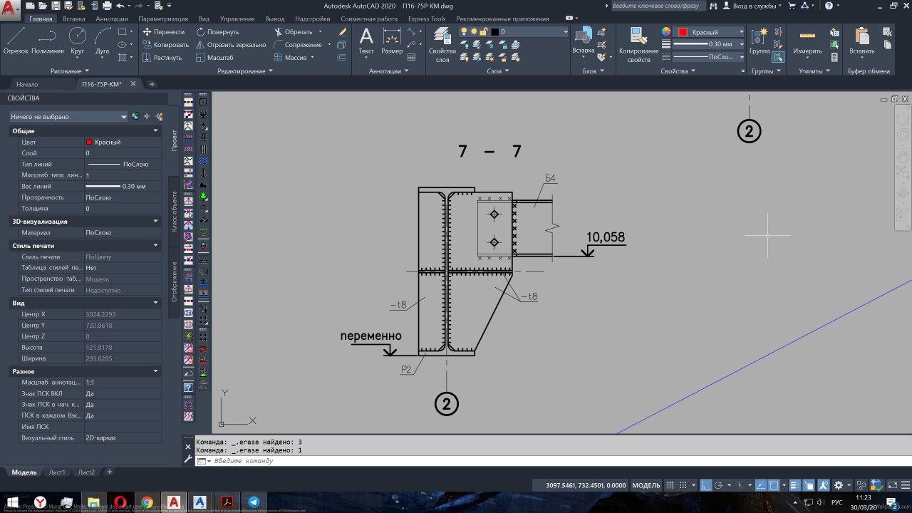
Картинку узла который надо покажите
Re: Как создать правильно узел крепления в Advance Steel
а какая балка наклонная? )) какгрица "без четкого ТЗ - результат ХЗ"
Re: Как создать правильно узел крепления в Advance Steel
Р2 - наклонный ригель
Re: Как создать правильно узел крепления в Advance Steel
Спасибо большое!
Re: Как создать правильно узел крепления в Advance Steel
должен подойти, нужно будет только треугольную подрезку добавить и гор.ребра.
Нашел инфу на другом форуме
Нашел инфу на другом форуме
phpbb3 styles
Кто сейчас на конференции
Сейчас этот форум просматривают: нет зарегистрированных пользователей и 7 гостей

