Не фильтруются в шаблоне объекты Tekla Structures
-
Real_Steel
- Сообщения: 43
- Регистрация: 10 янв 2015, 01:00
Не фильтруются в шаблоне объекты Tekla Structures
В чем может быть причина того, что в одной среде отфильтрованые объекты не попадают в спецификацию (как и надо) , а в другой попадают??
Re: Не фильтруются в шаблоне объекты
1. У них есть какие-то свои атрибуты.
2. Из-за соседних деталей.
Желательно бы картинку какую-то...
2. Из-за соседних деталей.
Желательно бы картинку какую-то...
-
Real_Steel
- Сообщения: 43
- Регистрация: 10 янв 2015, 01:00
Re: Не фильтруются в шаблоне объекты
Во вложении вордовский файл, со скринами. Смысл такой, что в свойствах соседних деталей стоит "отображать до крайних точек" , после того как я балку отфильтровал в чертеже, она изменила свой цвет (занеслась в соседние детали), а из спецификации уходит только тогда, когда я в свойствах соседних деталей делаю "не отображать"/изменить/ потом опять до крайних точек и переоткрываю лист. Может глюк, а может я что то не то делаю. Или правильно отображение "до крайних точек" ставить только после занесения деталей в соседнии?
Re: Не фильтруются в шаблоне объекты
спецификация перестраивается при переоткрытии чертежа ..Real_Steel писал(а):Во вложении вордовский файл, со скринами. Смысл такой, что в свойствах соседних деталей стоит "отображать до крайних точек" , после того как я балку отфильтровал в чертеже, она изменила свой цвет (занеслась в соседние детали), а из спецификации уходит только тогда, когда я в свойствах соседних деталей делаю "не отображать"/изменить/ потом опять до крайних точек и переоткрываю лист. Может глюк, а может я что то не то делаю. Или правильно отображение "до крайних точек" ставить только после занесения деталей в соседнии?
" из спецификации уходит только тогда, когда я в свойствах соседних деталей делаю "не отображать"/изменить/ потом опять до крайних точек и переоткрываю лист" - ключевым здесь является "переоткрываю лист".
«Есть только две бесконечные вещи: Вселенная и глупость. Хотя насчет Вселенной я не вполне уверен.» А. Эйнштейн
-
Real_Steel
- Сообщения: 43
- Регистрация: 10 янв 2015, 01:00
Re: Не фильтруются в шаблоне объекты
Она перестраивается, только когда я выключаю, а потом включаю видимость соседних деталей, когда видимость соседних деталей стоит по умолчанию "до крайних точек", чертеж переоткрываю, ничего не меняется. Или так и должно быть?
Re: Не фильтруются в шаблоне объекты
по мне, так не должно быть, но так естьReal_Steel писал(а):...Или так и должно быть?
-
Real_Steel
- Сообщения: 43
- Регистрация: 10 янв 2015, 01:00
Re: Не фильтруются в шаблоне объекты
у Вас тоже так? или только у меня
Re: Не фильтруются в шаблоне объекты
В соседних деталях выставить основные/второстепенные - оба.
Потом попробовать выставить соседние детали - нет и потом опять - до крайних точек.
Нужно заново включить и выключить.
Еще нужно выставить фильтр соседних деталей. Из основного фильтра балки исключить, а в него добавить балки.
Потом попробовать выставить соседние детали - нет и потом опять - до крайних точек.
Нужно заново включить и выключить.
Еще нужно выставить фильтр соседних деталей. Из основного фильтра балки исключить, а в него добавить балки.
-
Real_Steel
- Сообщения: 43
- Регистрация: 10 янв 2015, 01:00
Re: Не фильтруются в шаблоне объекты
немного не понял зачем балки фильтровать в фильтре соседних деталей?Все вышеперечисленное работает, вот только не пойму почему сразу(без дополнительных манипуляций типа включить/выключить) не работает.
Фильтр работает когда первый раз балки заносятся в список соседних деталей(деталь/имя не равно/балка) и переоткрывается чертеж (из спецификации балки уходят).
Далее, если балки обратно внести в список основных деталей (отключить фильтр) и переоткрыть чертеж, то спецификация перестраивается(балки появляются в спецификации). Затем, если их обратно отфильтровать, то после переоткрытии листа спецификация уже не реагирует.
Для того что бы спецификация перестроилась необходимо выключить/включить видимость соседних деталей и переоткрыть лист заново. как то так
Скрины смотреть снизу-вверх
Фильтр работает когда первый раз балки заносятся в список соседних деталей(деталь/имя не равно/балка) и переоткрывается чертеж (из спецификации балки уходят).
Далее, если балки обратно внести в список основных деталей (отключить фильтр) и переоткрыть чертеж, то спецификация перестраивается(балки появляются в спецификации). Затем, если их обратно отфильтровать, то после переоткрытии листа спецификация уже не реагирует.
Для того что бы спецификация перестроилась необходимо выключить/включить видимость соседних деталей и переоткрыть лист заново. как то так
Скрины смотреть снизу-вверх
Re: Не фильтруются в шаблоне объекты
уххх как много картинок)
для обновления вида можно потянуть за его границу и не "ходить" в свойства вида
спецификации обновляются при переоткрытии чертежа
для обновления вида можно потянуть за его границу и не "ходить" в свойства вида
спецификации обновляются при переоткрытии чертежа
-
Real_Steel
- Сообщения: 43
- Регистрация: 10 янв 2015, 01:00
Re: Не фильтруются в шаблоне объекты
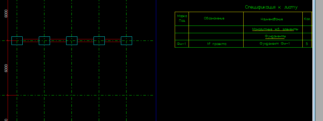
Спасибо за совет. Вот на 5 скрине (сверху) видно ,что после переоктрытия чертежа спецификация не обновилась
Re: Не фильтруются в шаблоне объекты
не должно быть такого! с фильтрами беда видимо. Может чего лишнего впихнули в соседние детали?
-
Real_Steel
- Сообщения: 43
- Регистрация: 10 янв 2015, 01:00
Re: Не фильтруются в шаблоне объекты
В фильтре только балки были
phpbb3 styles
Кто сейчас на конференции
Сейчас этот форум просматривают: нет зарегистрированных пользователей и 1 гость

